Freizeit für alle: Das neue Sesc-Gebäude in São Paulo
Foto: Nelson Kon
Öffentlicher Raum ist im historischen Zentrum von São Paulo eher eine Seltenheit – zumal mit Aufenthaltsqualitäten. Zwar füllen sich tagsüber die Straßen rund um das Theatro Municipal mit Büroangestellten. Doch nachts wird der dichte urbane Raum von vielen Paulistas aus Sicherheitsgründen eher gemieden.
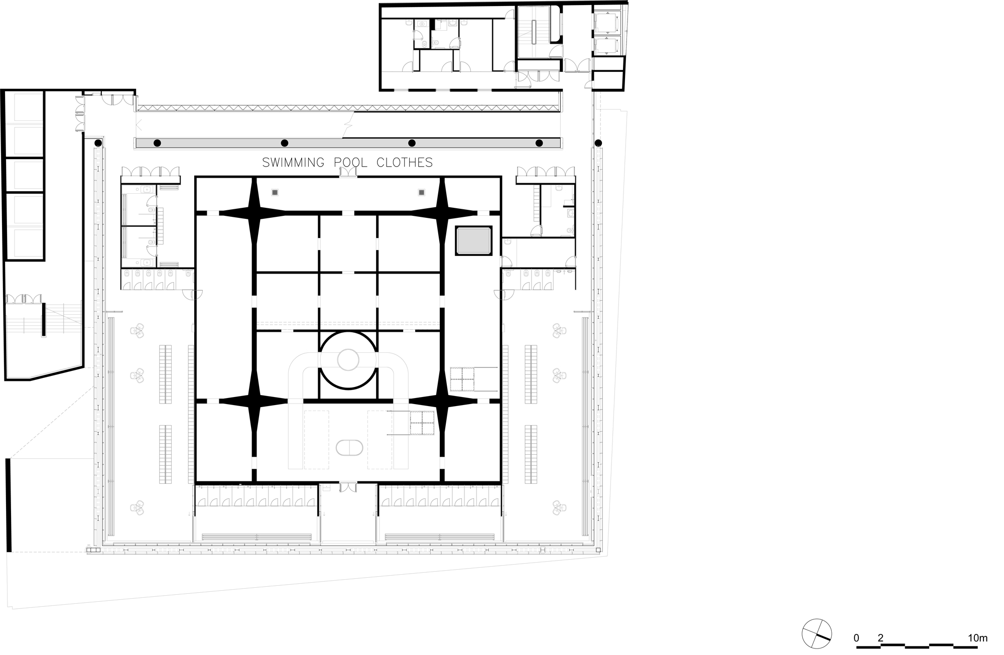
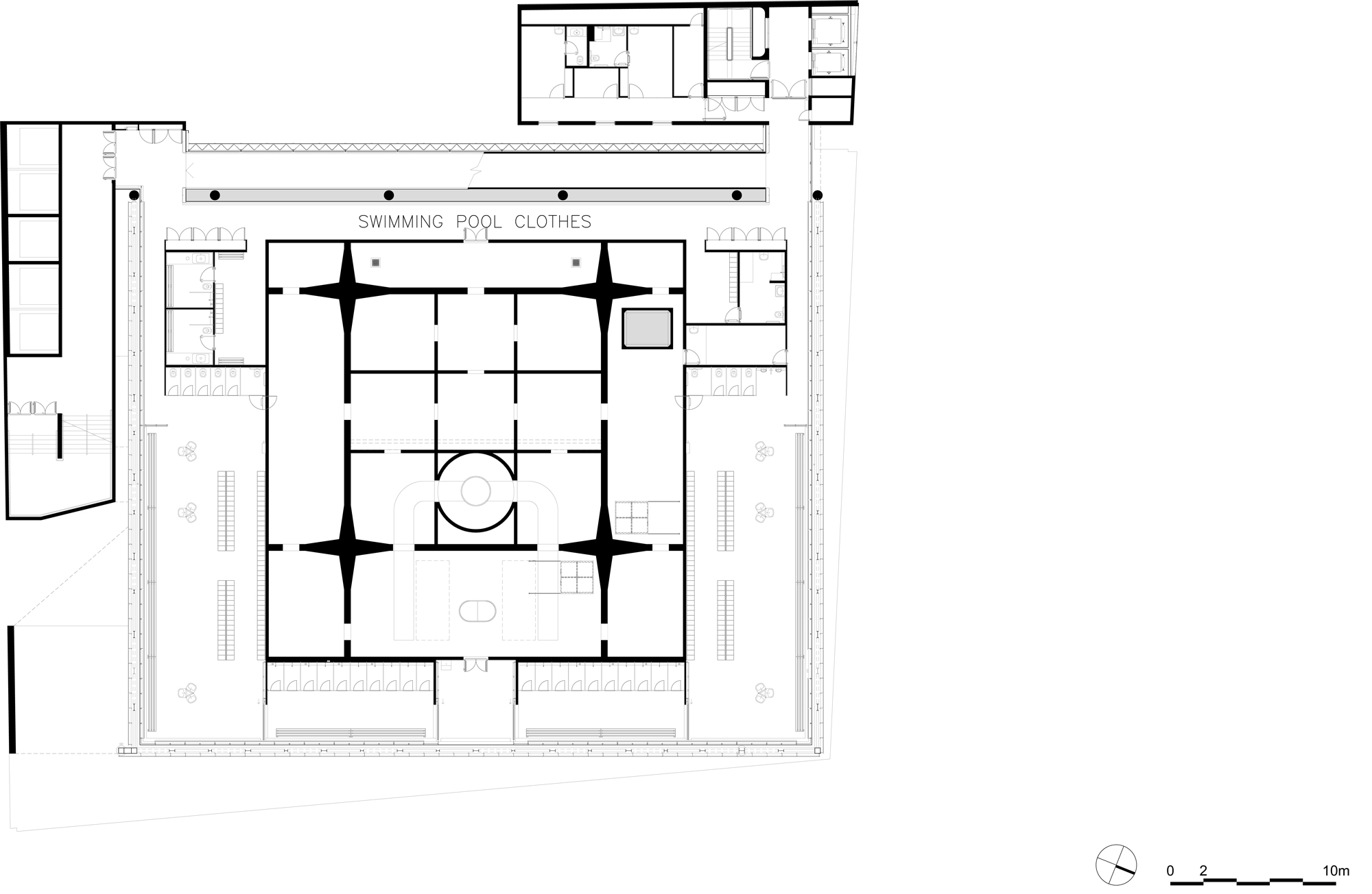
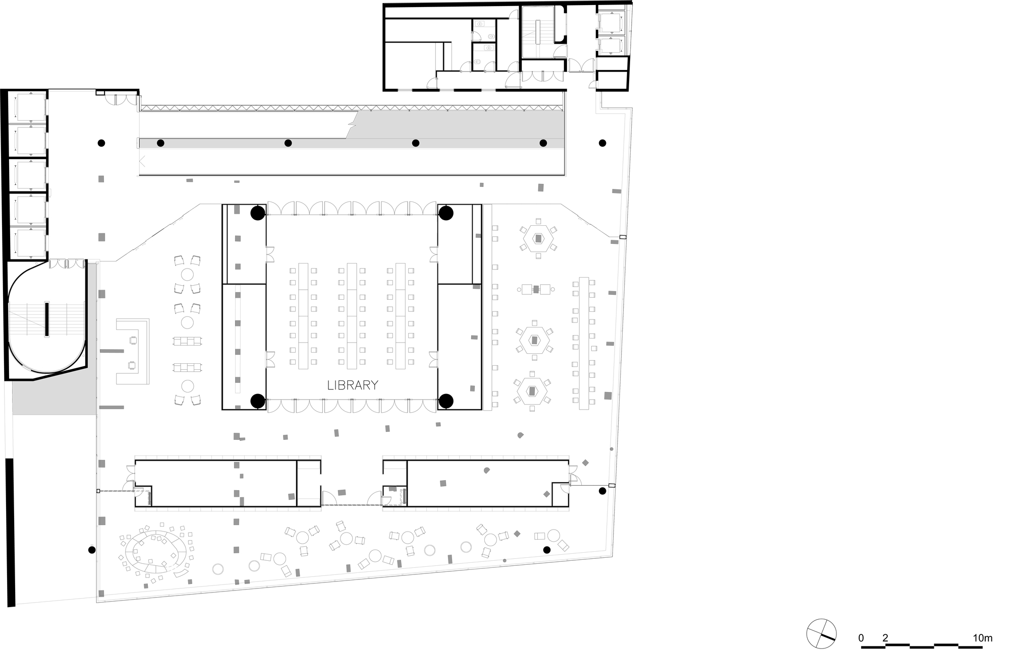
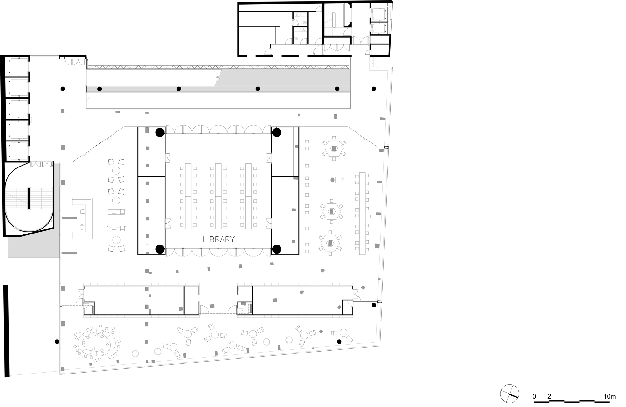
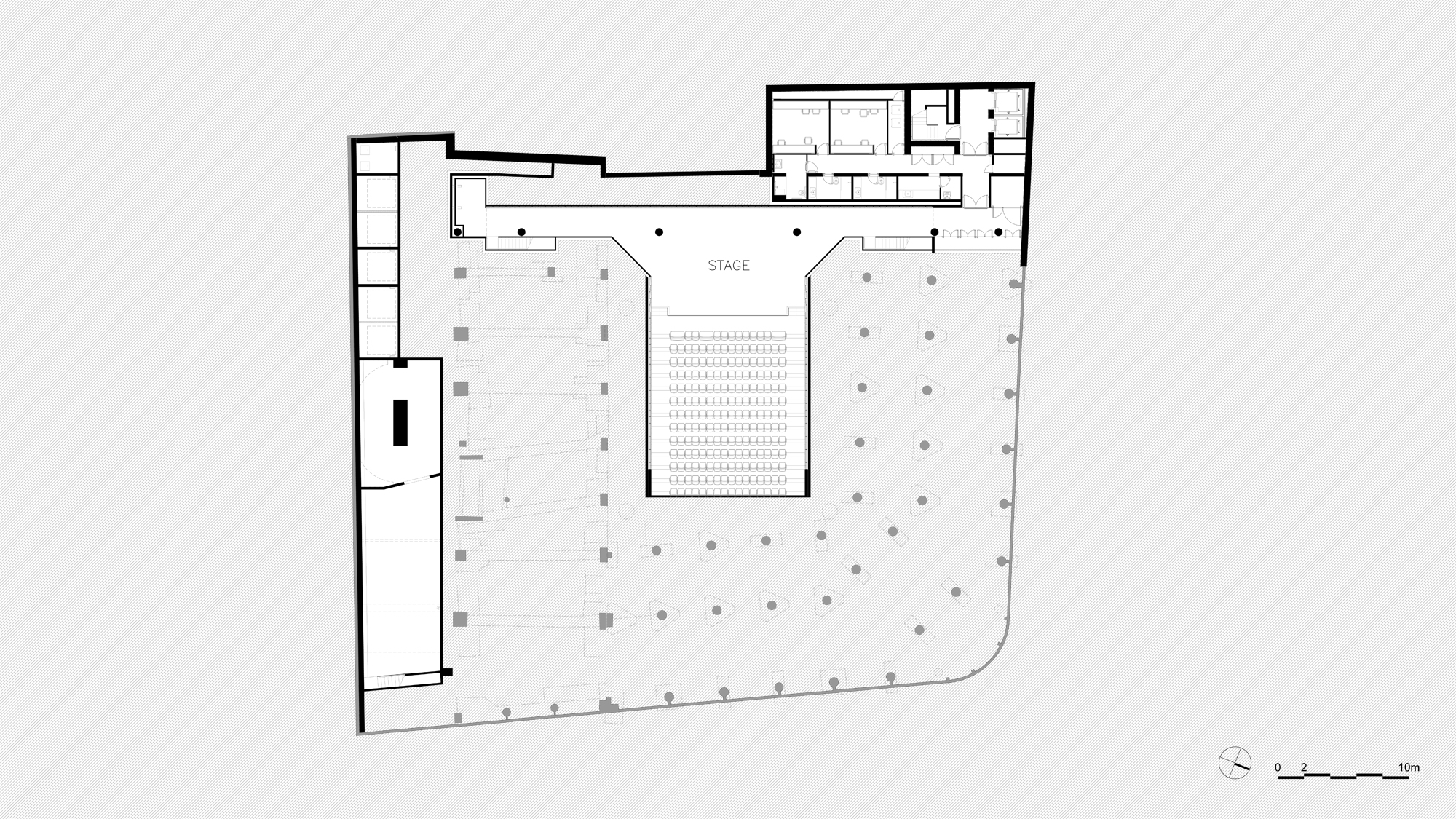
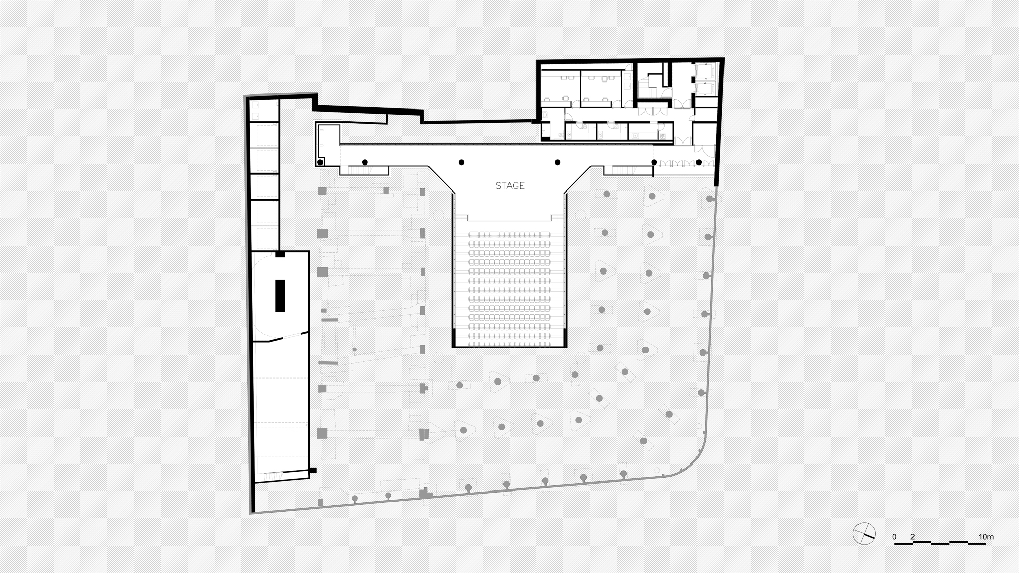
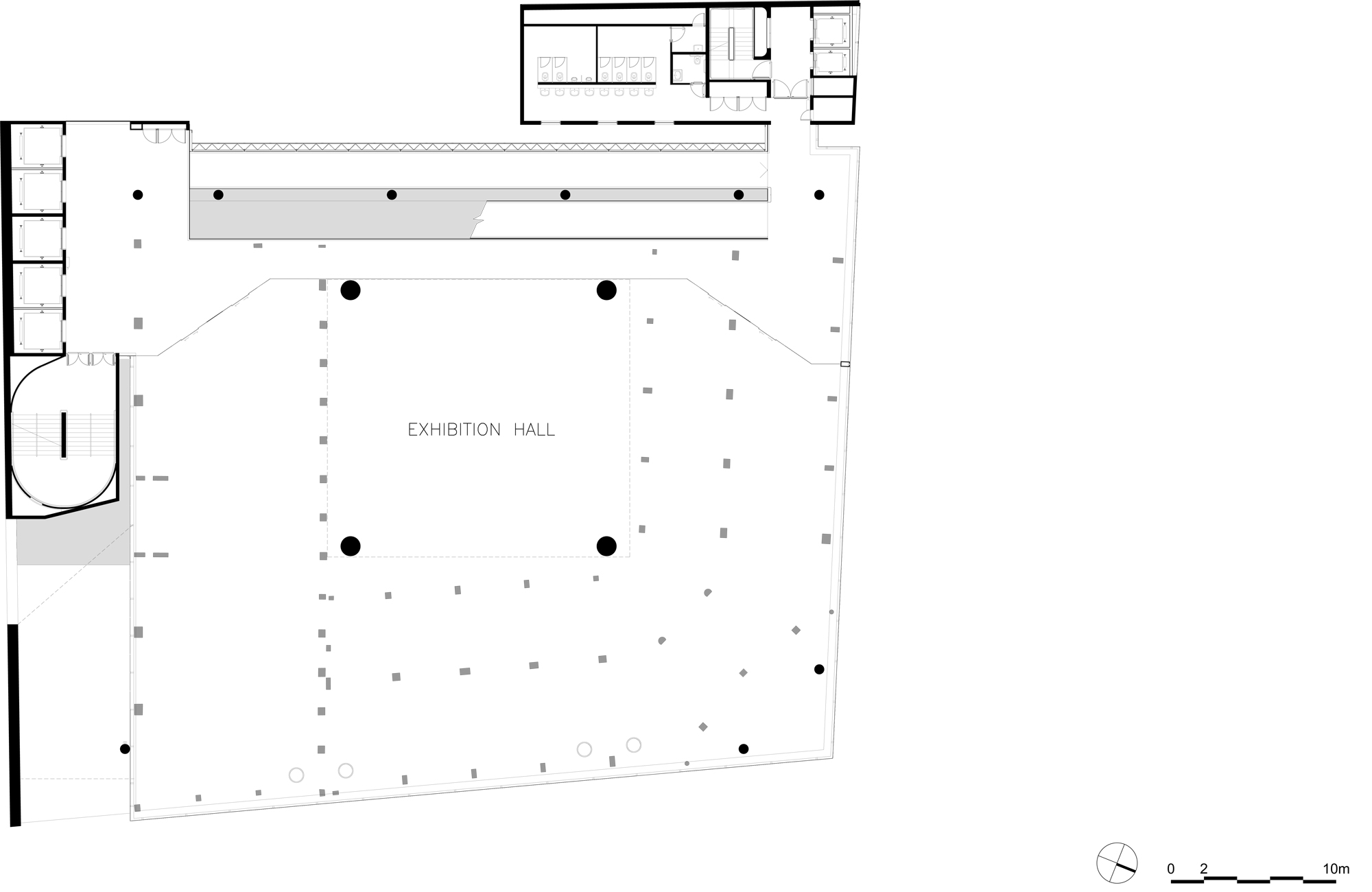
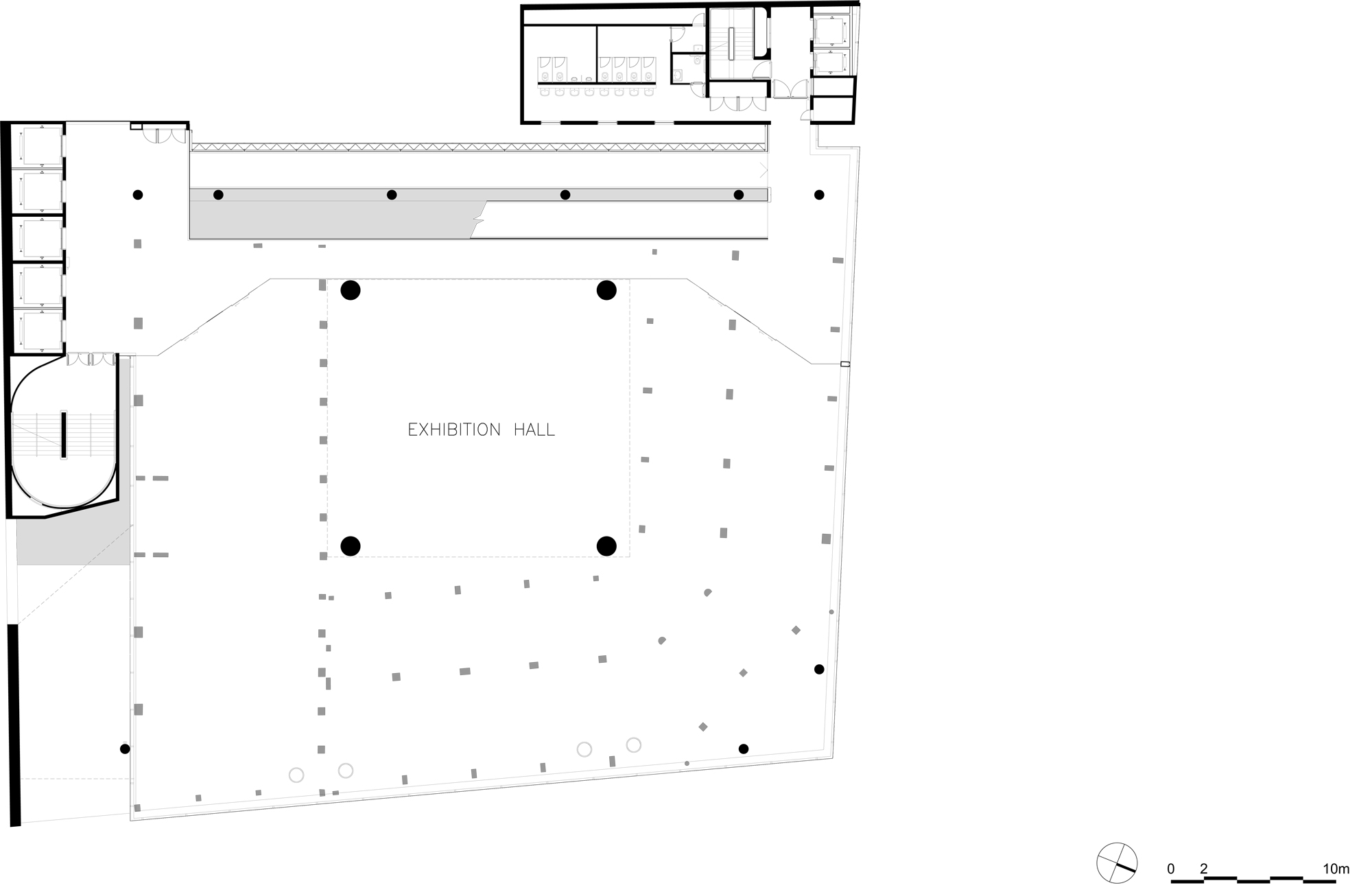
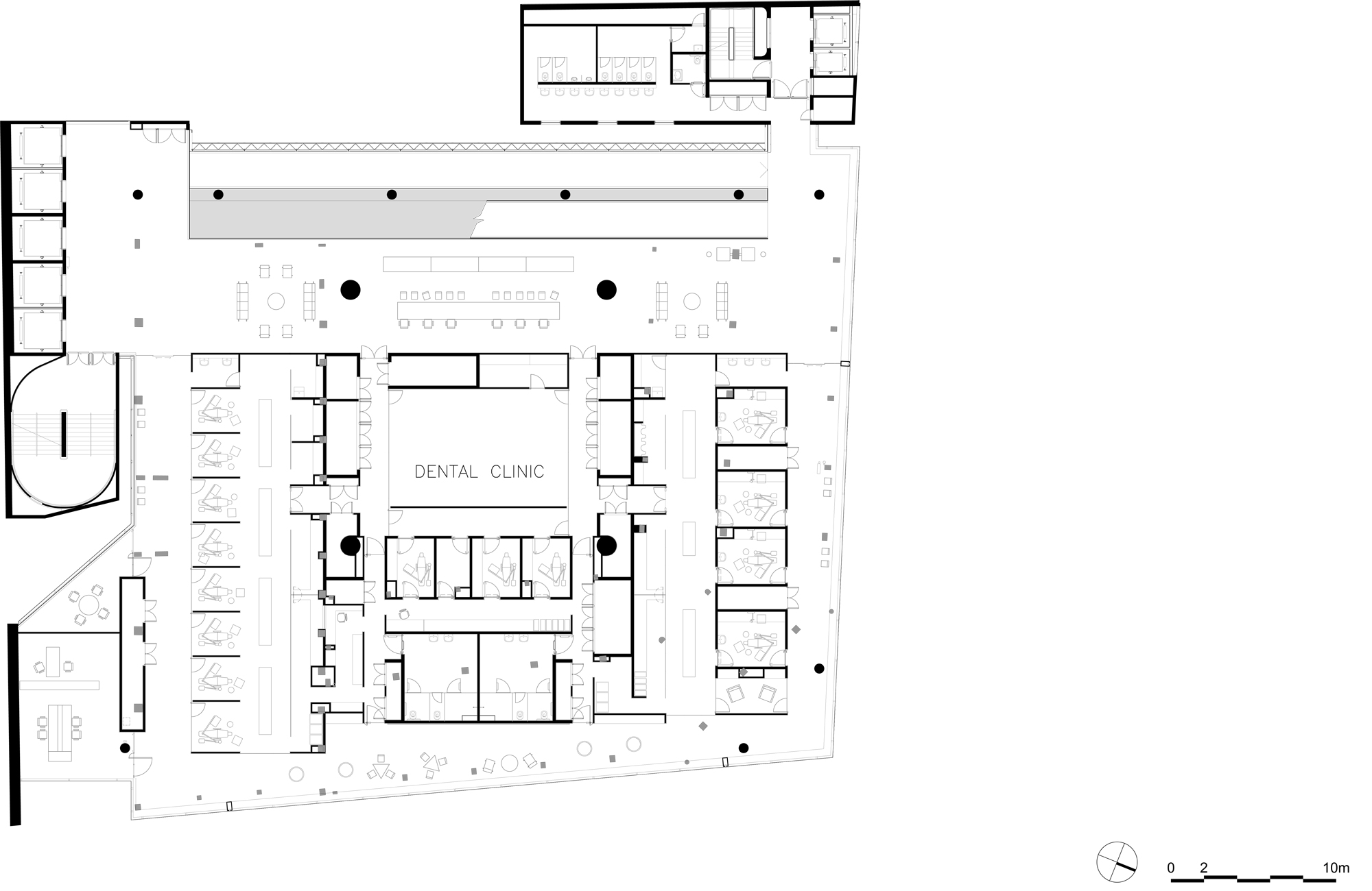
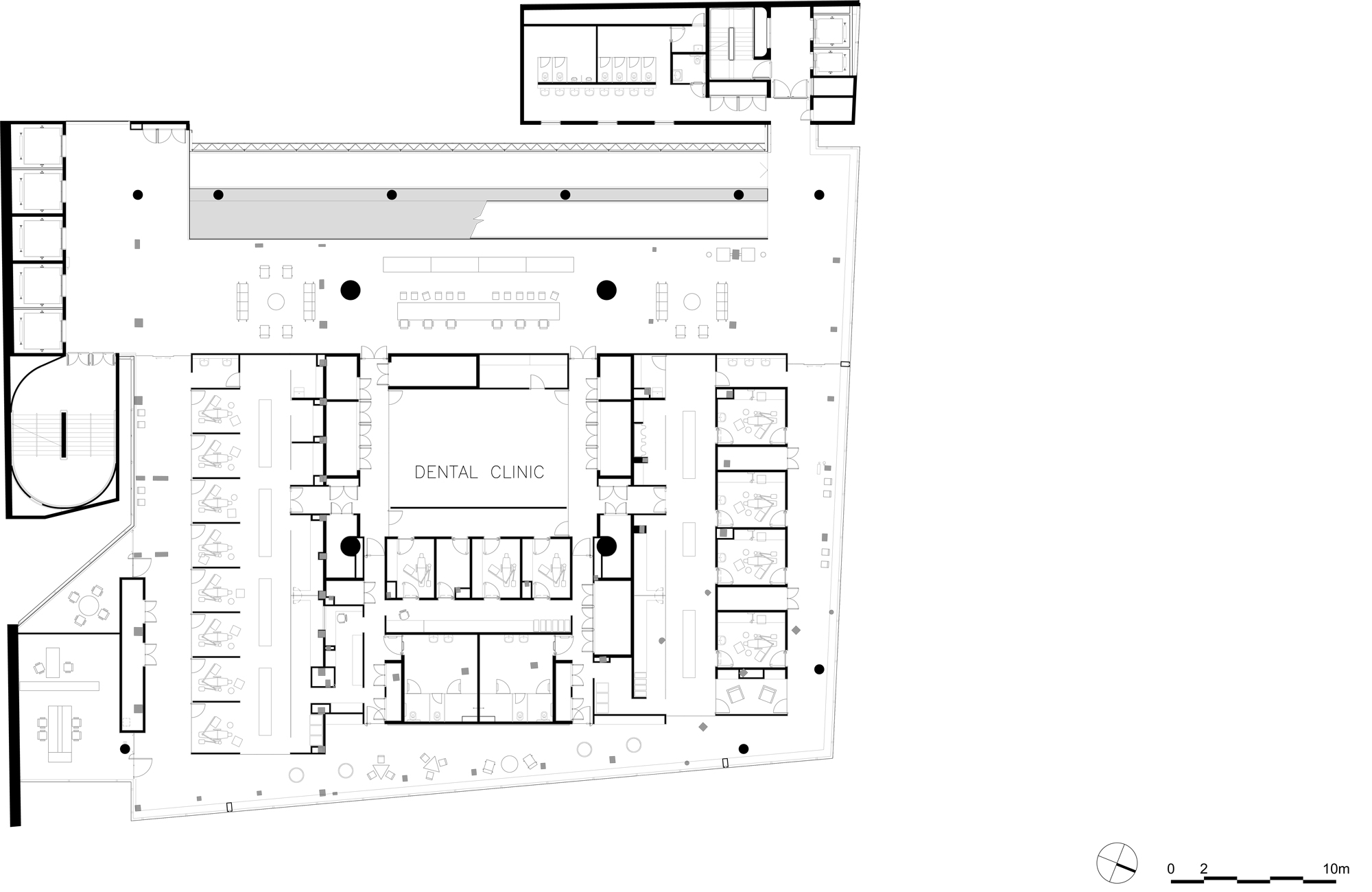
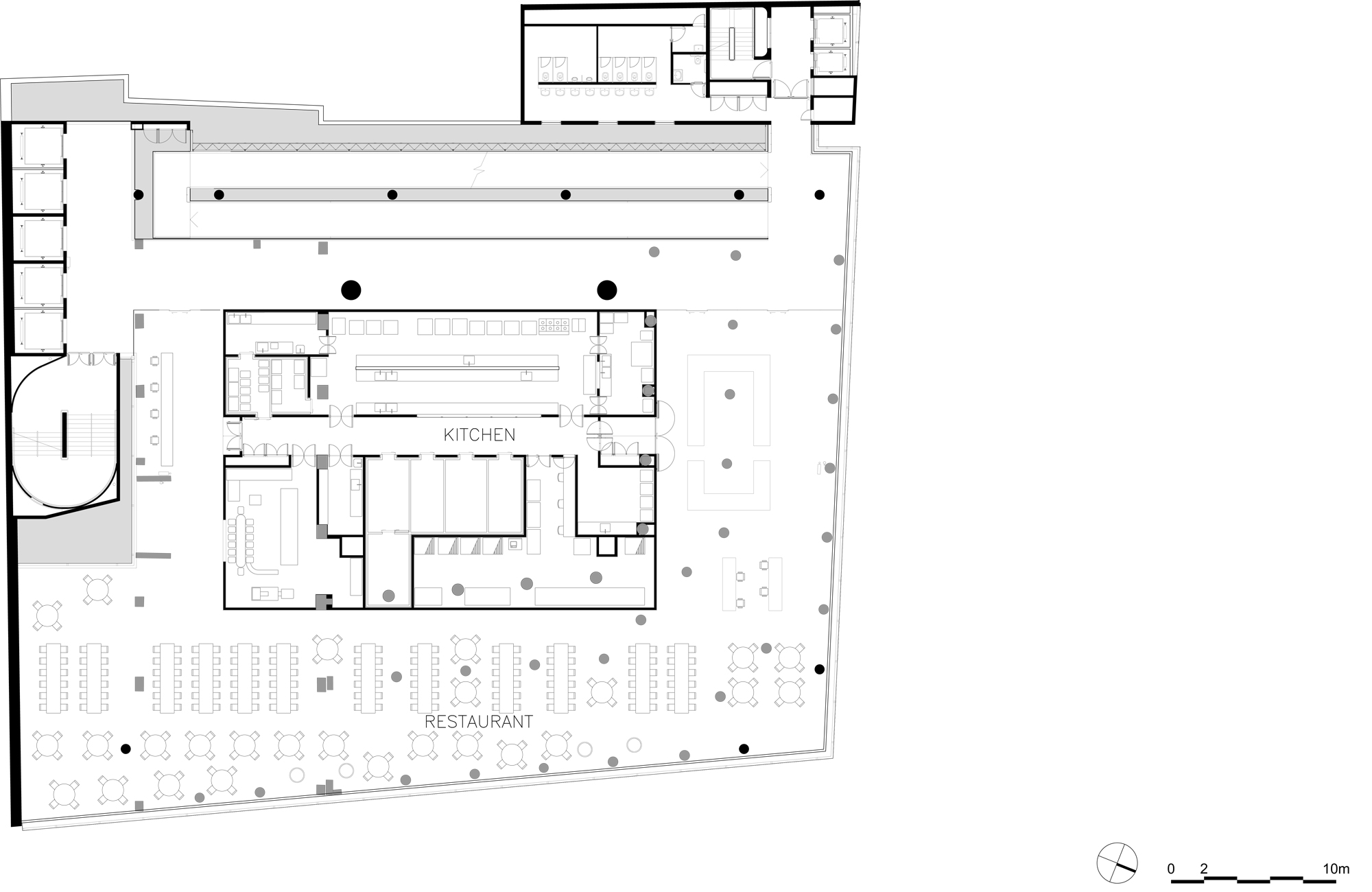
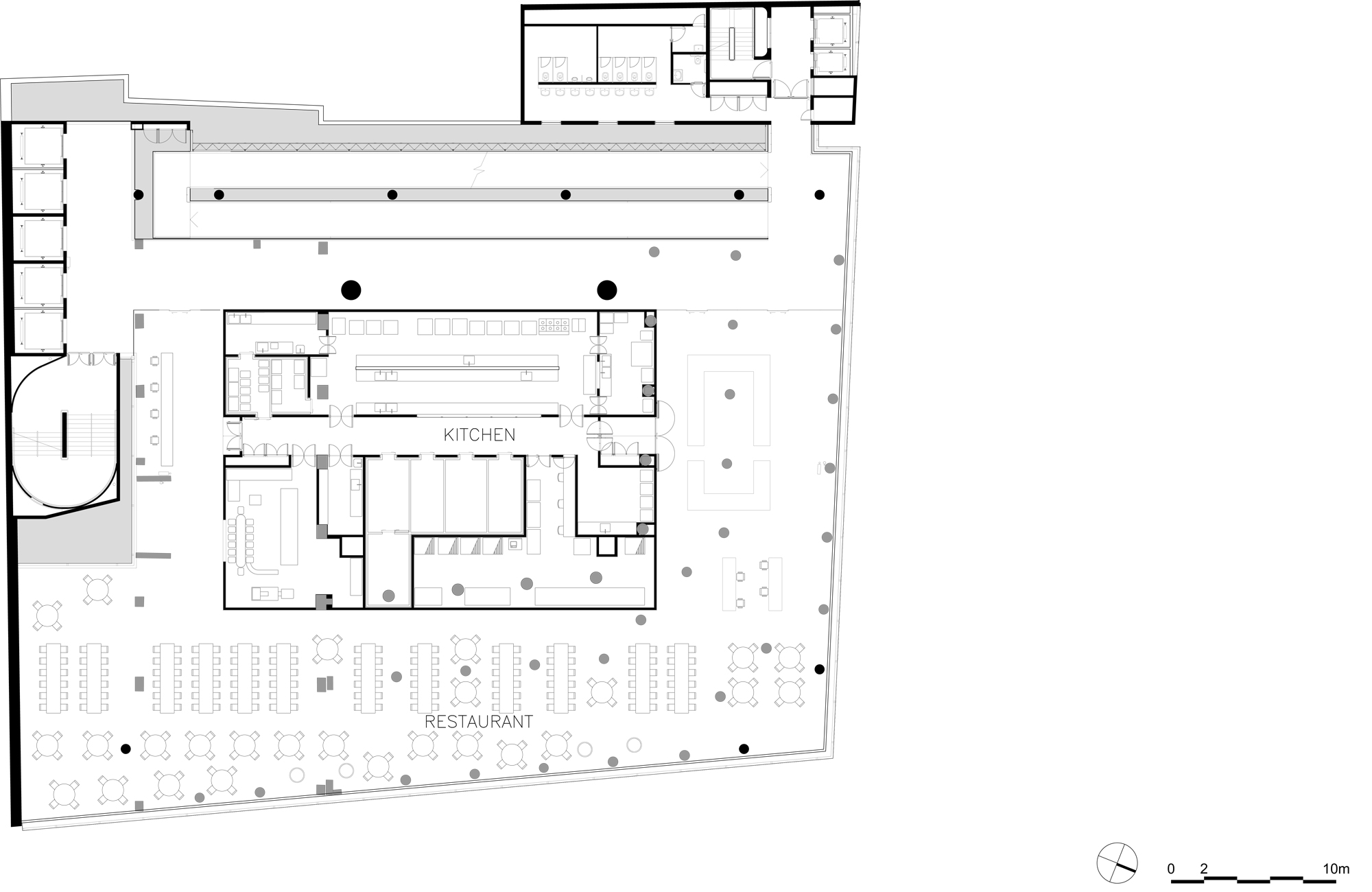
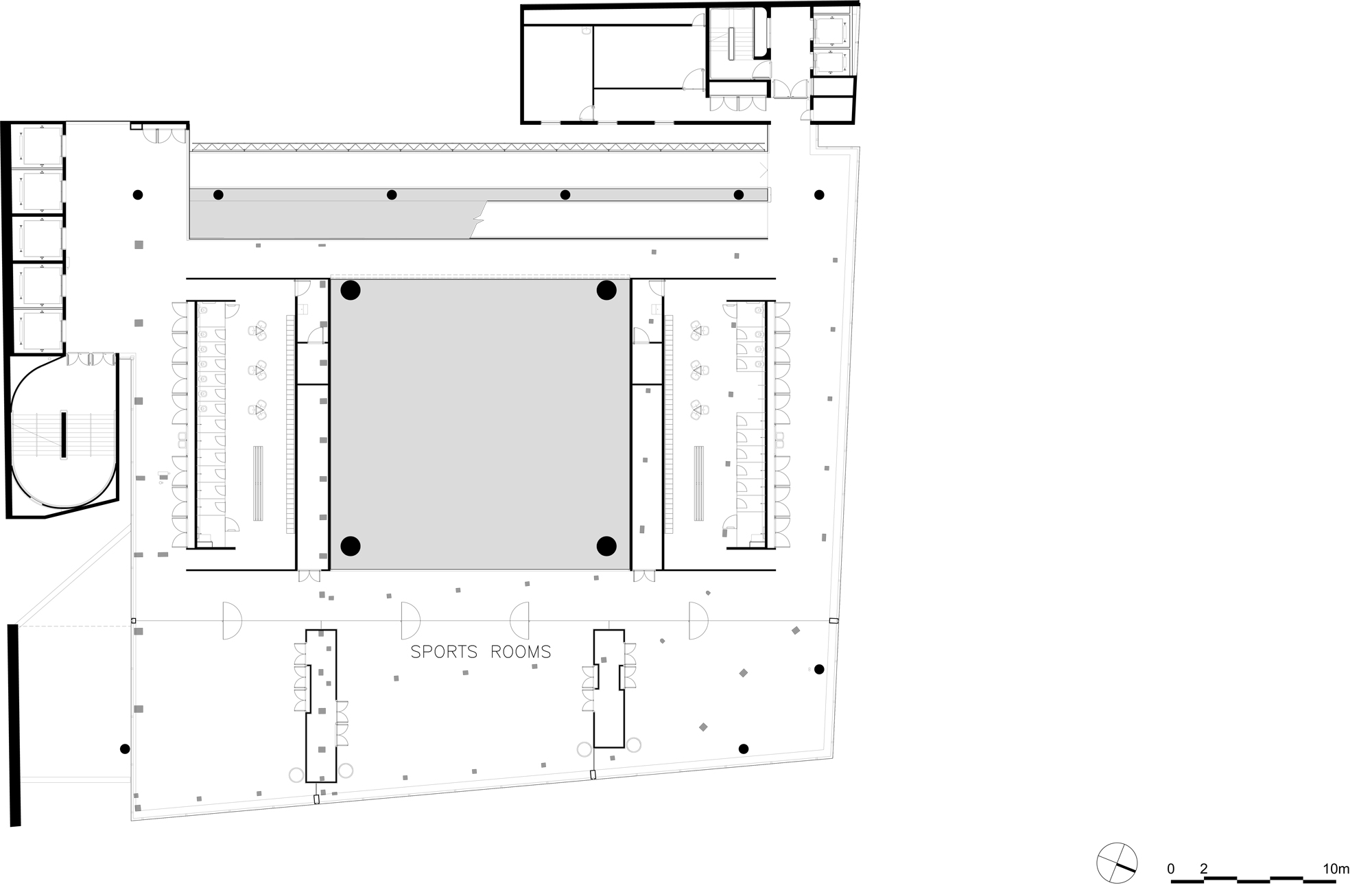
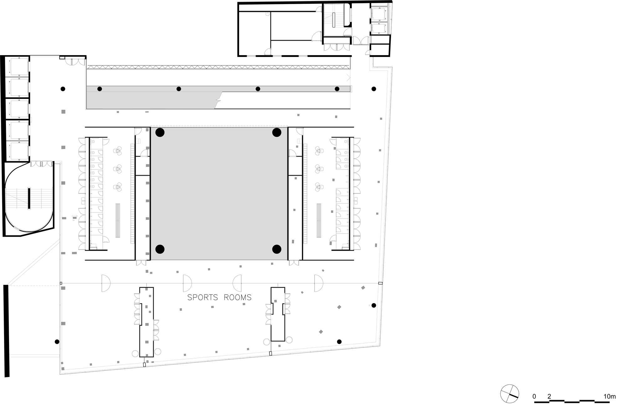
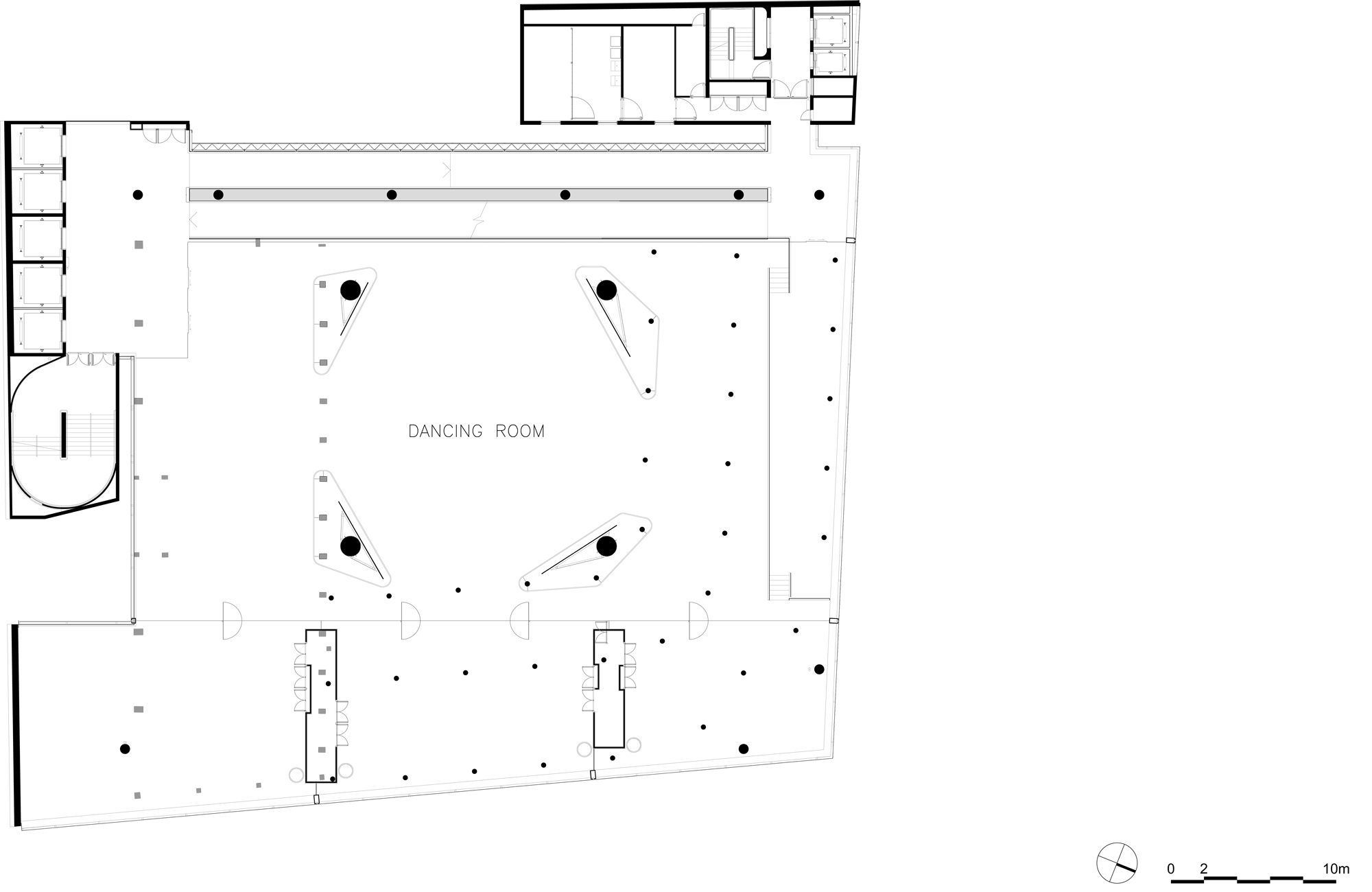
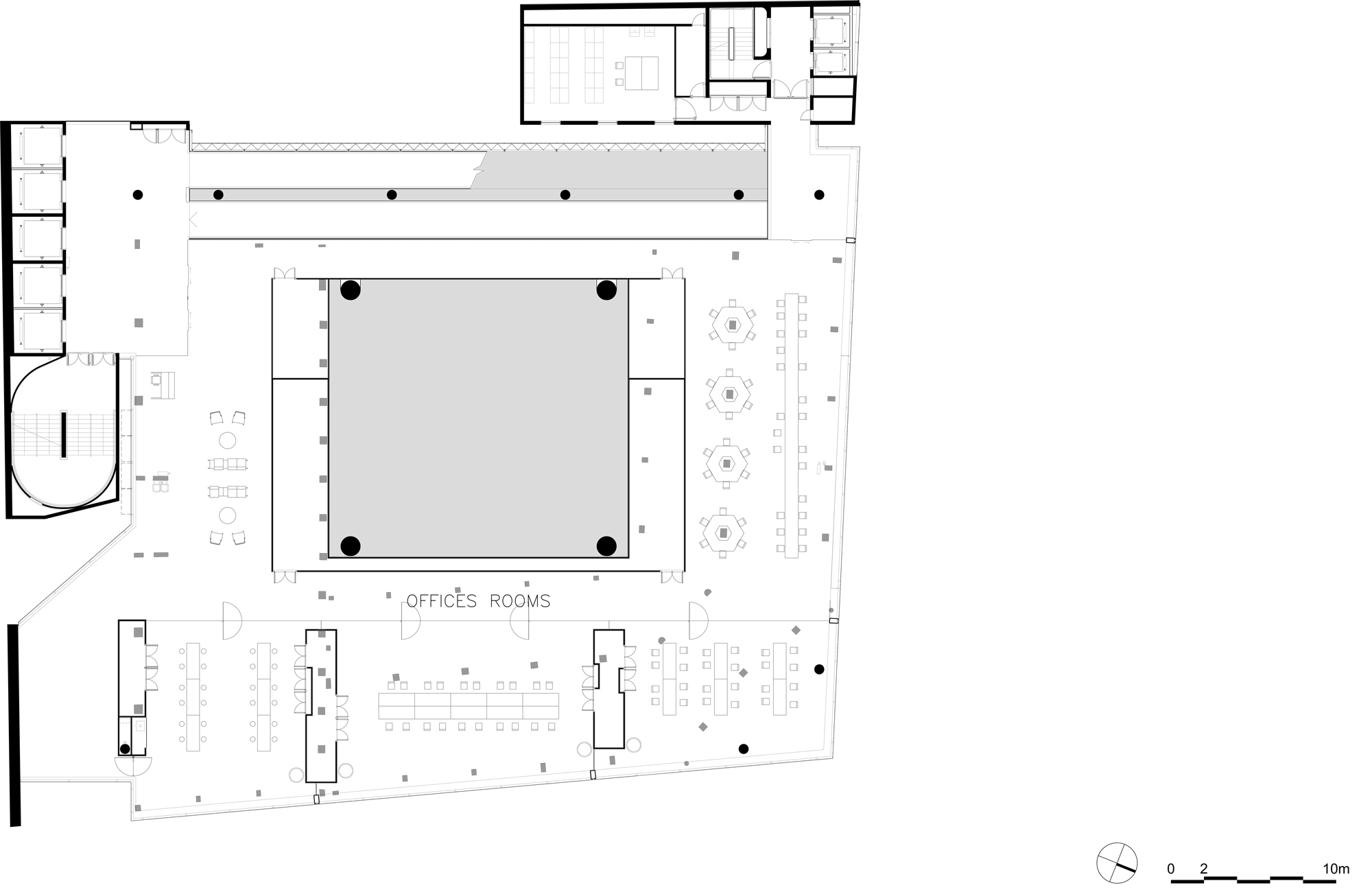
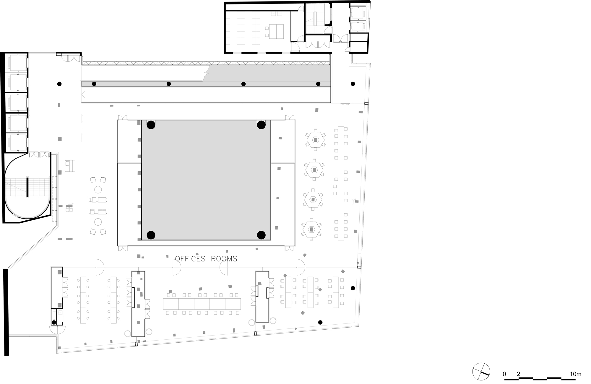
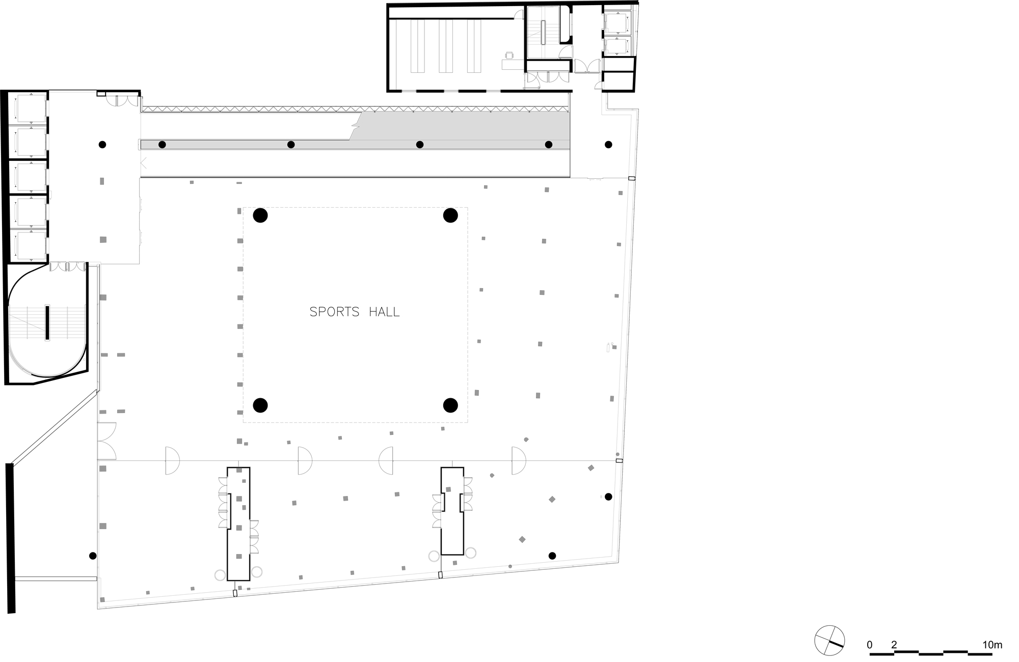
Das neue Gebäude des Sesc 24 de Maio nach dem gemeinsamen Entwurf des Pritzkerpreisträgers Paulo Mendes da Rocha mit Mmbb Arquitetos schließt diese Lücke ein Stück weit. Es stapelt die unterschiedlichsten Freizeitangebote auf 14 Etagen – vom Schwimmbad auf dem Dach bis zur Bibliothek, einem Restaurant und einem Theater im Untergeschoss. Die meisten Räume der sozialen Einrichtung sind offen für alle – eine großzügige rückwärtige Rampe erschließt das Gebäude und lädt zum Flanieren ein. Es gibt jedoch auch Bereiche, die nur den Mitgliedern vorenthalten und dezidiert auf ihre Bedürfnisse zugeschnitten sind. Sie können sich im neuen Sesc auch zahnärztlich behandeln lassen – für viele Paulistas ein Luxus, den man sich ansonsten kaum leisten kann.
Das neue Gebäude des Serviçio Social de Comércio setzt einen gesellschaftlichen und sozialen Auftrag um, der mit dem berühmten Sesc Pompéia Gebäude von Lina Bo Bardi in architektonischer Hinsicht Schule gemacht hat. Paolo Mendes da Rocha und Mmbb Arquitetos haben diesen Auftrag mit Bedacht auf den urbanen Kontext umgesetzt. Ihr Entwurf für das vielschichtige Programm des Kultur- und Sportzentrums ist von innen nach außen konzipiert und erweitert den öffentlichen Raum. In der verspiegelten Glasfassade des Gebäudes, in dem täglich bis zu 5.000 Besucher erwartet werden, zeichnet sich nachts sein lebendiges Innenleben ab. Das Erdgeschoss ist als öffentliche Passage konzipiert, die das Eckgrundstück diagonal durchquert und gleichzeitig als Foyer dient. Im dichten Straßengefüge der Megacity setzt das Sesc 24 de Maio einen präganten Meilenstein, weil sich seine Architektur nicht abschottet, sondern mehr Öffentlichkeit wagt.

















