Freunde unter einem Dach: Wohnhaus in Barcelona von Lussi + Partner
Foto: Adrià Goula
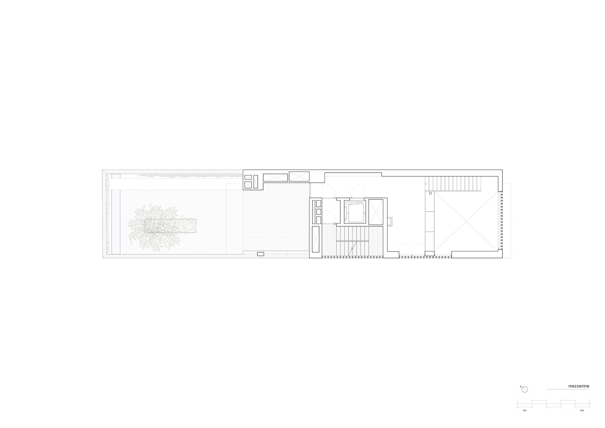
Ein schmaler Streifen in der Blockrandbebauung diente als Grundstück für das sechsgeschossige Wohnhaus. Es schmiegt sich an eine Brandwand und flankiert den Durchgang ins Innere des Blocks. Vier befreundete Paare, darunter auch der Architekt, wollten dieses Grundstück nutzen, um gemeinsam unter einem Dach zu leben. Jedes Paar lebt auf einem der 80 m² großen Geschosse mit jeweils einem Balkon zum Innenhof und einem an der Straßenfassade. Die Faltschiebeläden aus Holz, mit denen der Sonneneinfall auf die Balkons reguliert wird, charakterisieren das Erscheinungsbild des Gebäudes. Sie nehmen sowohl die gesamte Straßenfassade als auch die Fassade zum Innenhof ein und erzeugen ein dynamisches, belebtes Bild. Ein schönes Detail ist, dass sie um die Ecke geführt werden und so zur perforierten, verputzten Seitenwand überleiten, hinter der sich das Treppenhaus befindet. Dank dieser Durchlässigkeit wird es konstant natürlich belüftet und tagsüber auch belichtet.
Im Erd- und Zwischengeschoss hat der beteiligte Architekt sein Büro eingerichtet. Die Terrasse auf der Rückseite wird gemeinschaftlich genutzt, genauso wie der Pool auf der Dachterrasse. Besonders durch die kombinierten Materialien entsteht eine sinnliche Optik und Haptik sowohl im Innenraum als auch zur Stadt hin. Keramik, Sumpfkalkputz und das Holz des Sonnenschutzes sind inspiriert von der traditionellen Architektur der katalanischen Hauptstadt. In den Wohnungen werden sie kombiniert mit gegossenem Beton als Bodenbelag.
Neben der Ästhetik und der Geselligkeit, die der Aufbau des Hauses ermöglichen soll, galt ein Augenmerk auch der energetischen Nachhaltigkeit. Dank zweischaliger Außenwände verfügt das Gebäude über eine gute thermische Hülle – 10 cm Dämmung an den Außenwänden und 12 cm auf dem Dach isolieren die Innenräume. Das Heiz- und Kühlsystem mit Fußbodenheizung und integrierter Klimaanlage konnte beim Bau des Hauses an die Bedürfnisse angepasst werden.
Weitere Informationen:
Team: Fermin Garrote Llorens, Oscar Lussi
Bauingenieur: Bernuz Fernandez arquitectes slp surveyor
Bauleitung: Joan March Haustechnik: AiA instal.lacions
Generalunternhemer: Baldo Serveis I Obres, S.L.
Baukosten: 1.650.000 €
Gesamtfläche: 912 m² + 177 m² Terrasse





























