Frische Erlebnisreise: Tropical Cave von H&P Architects
Foto: Nguyen Tien Thanh
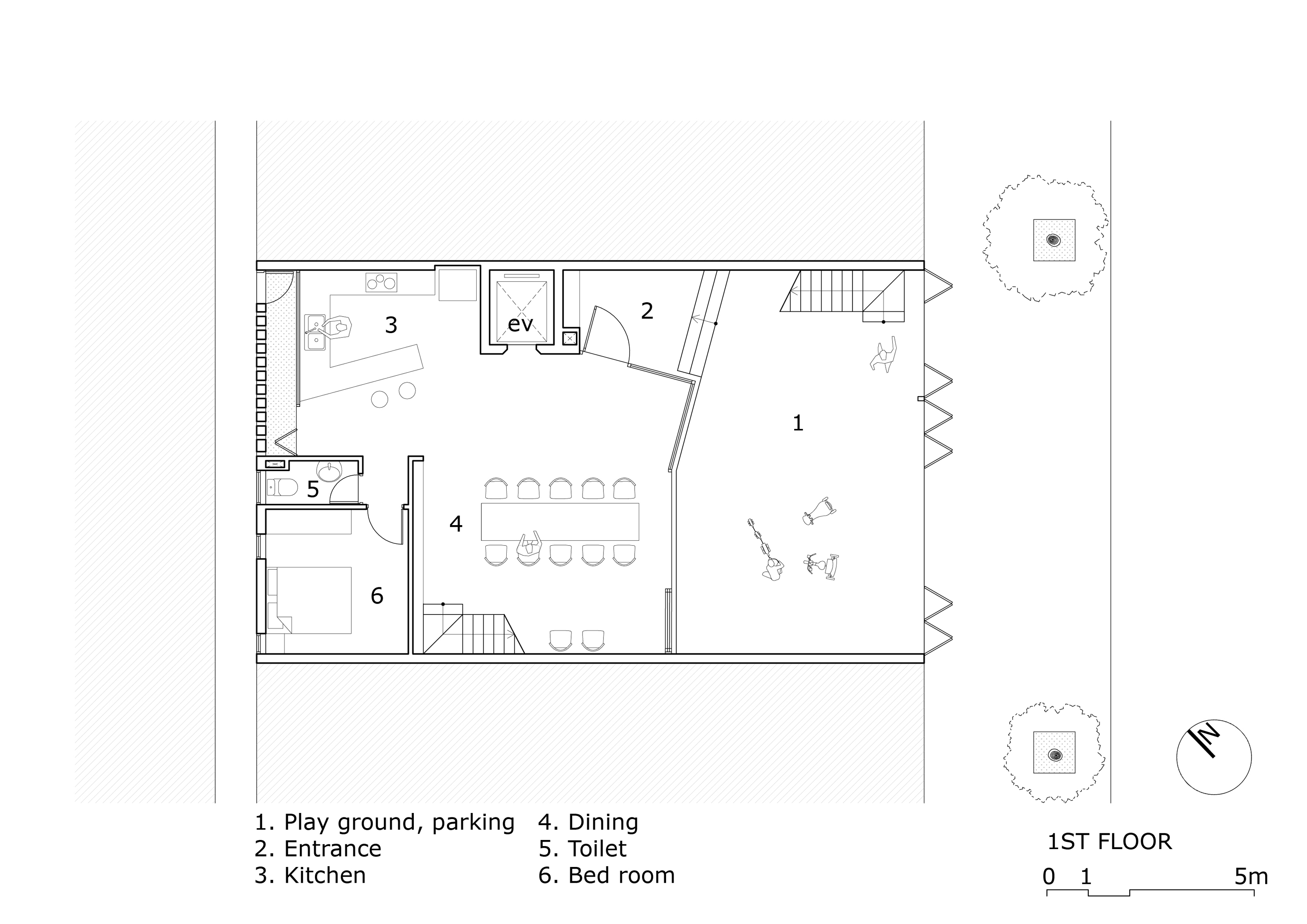
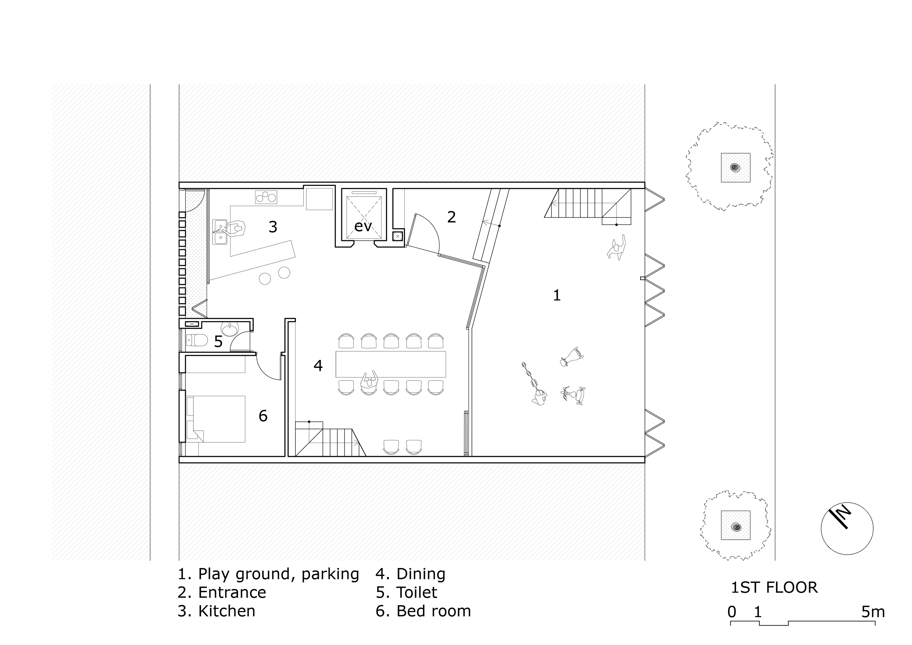
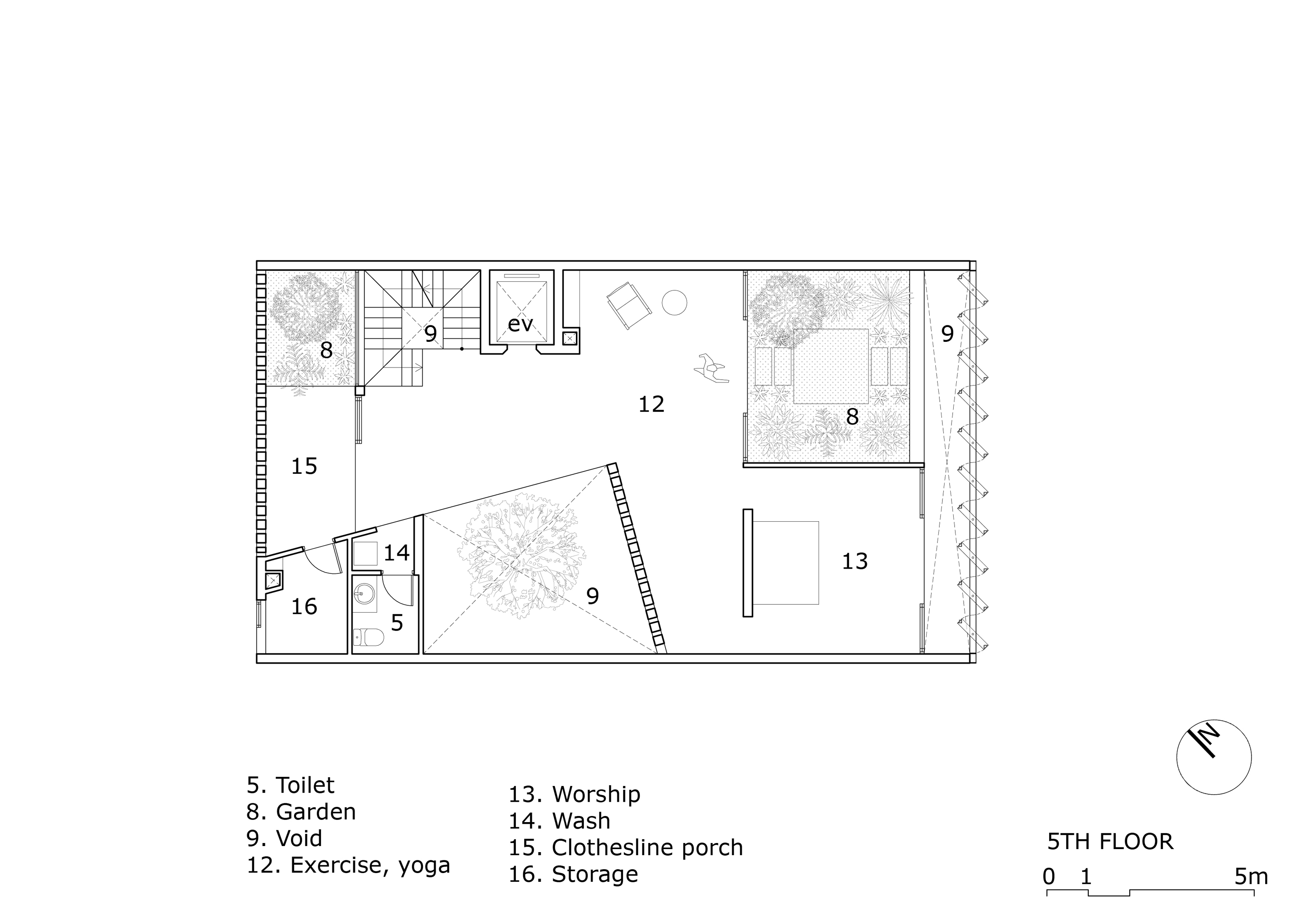
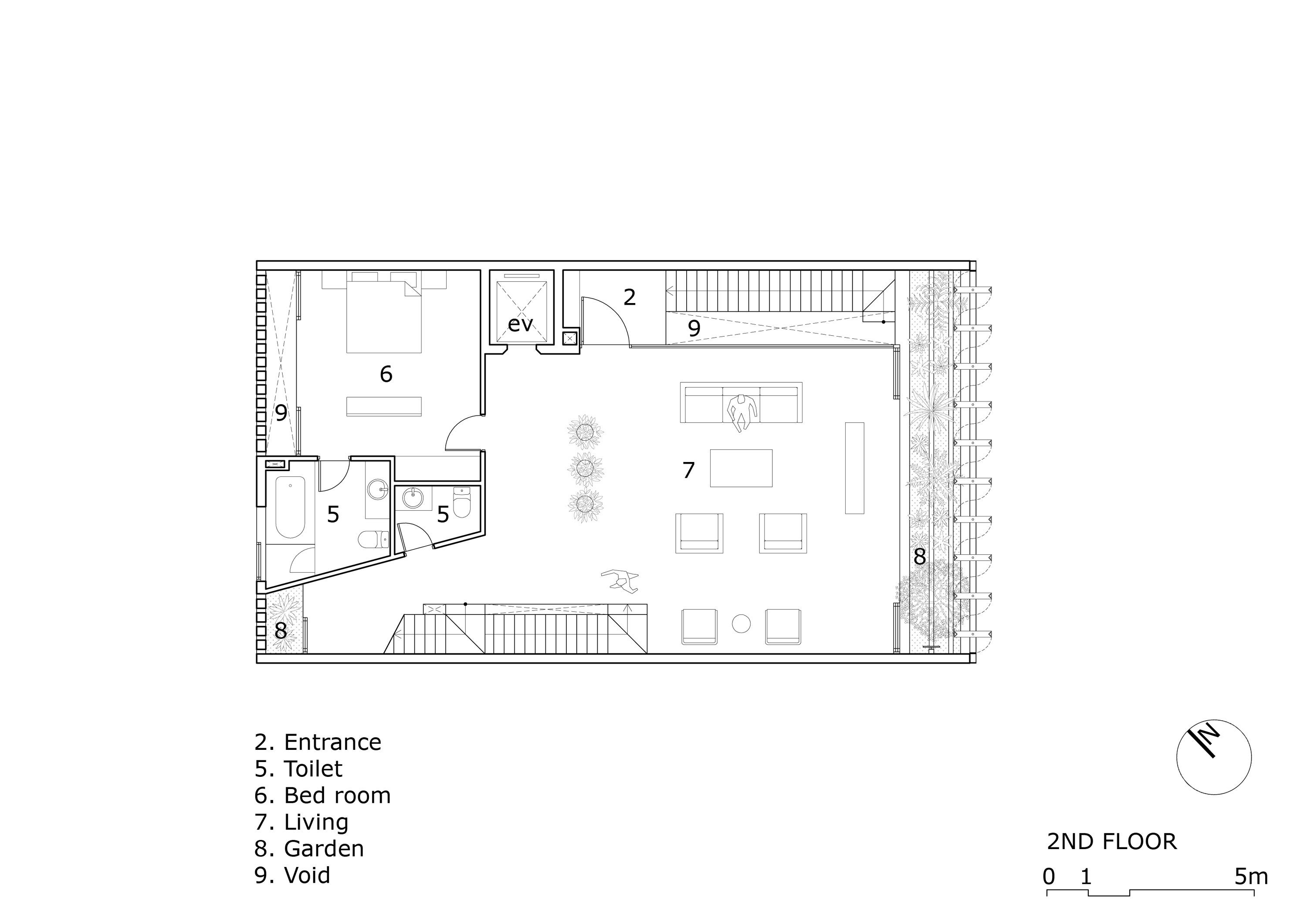
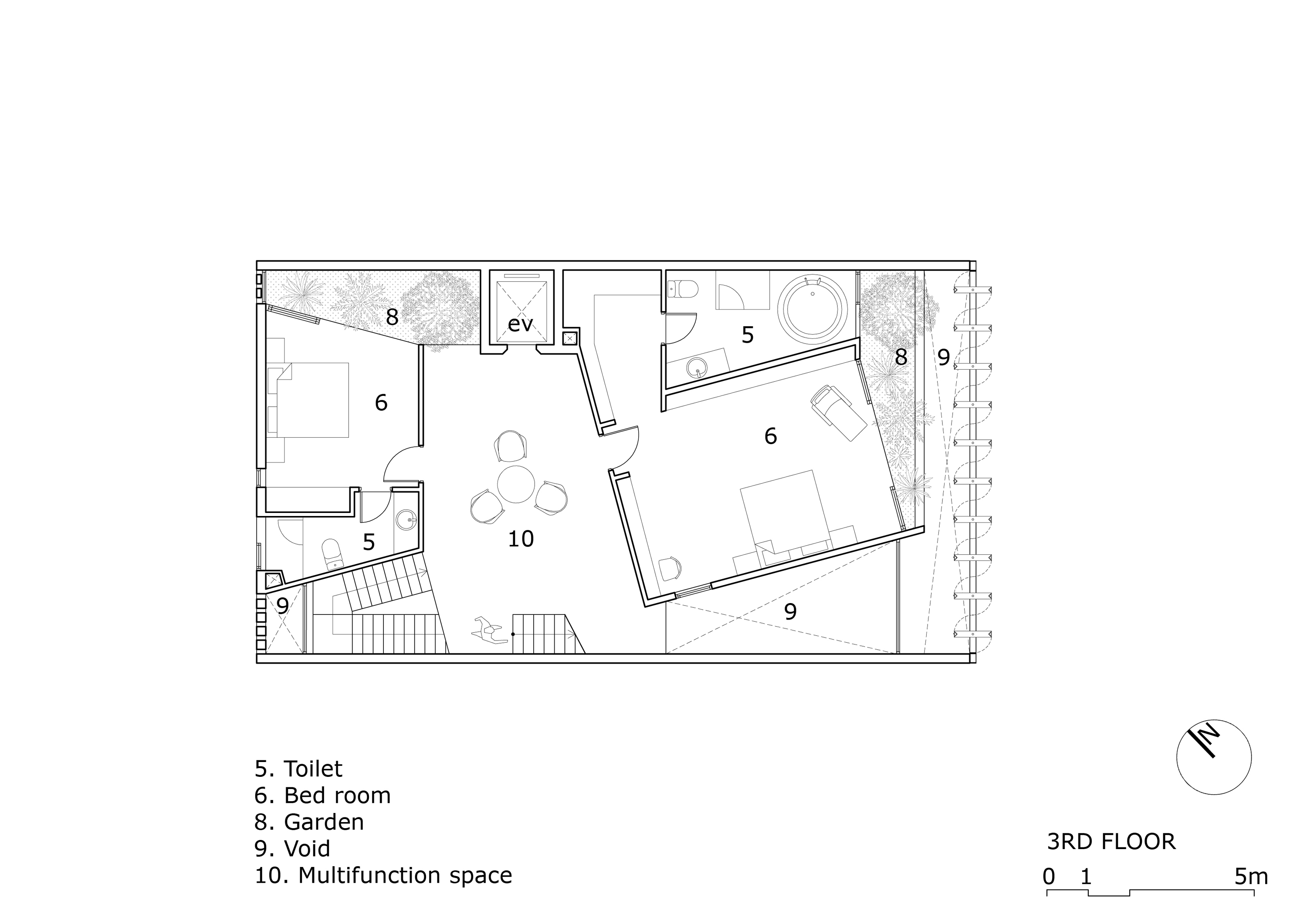
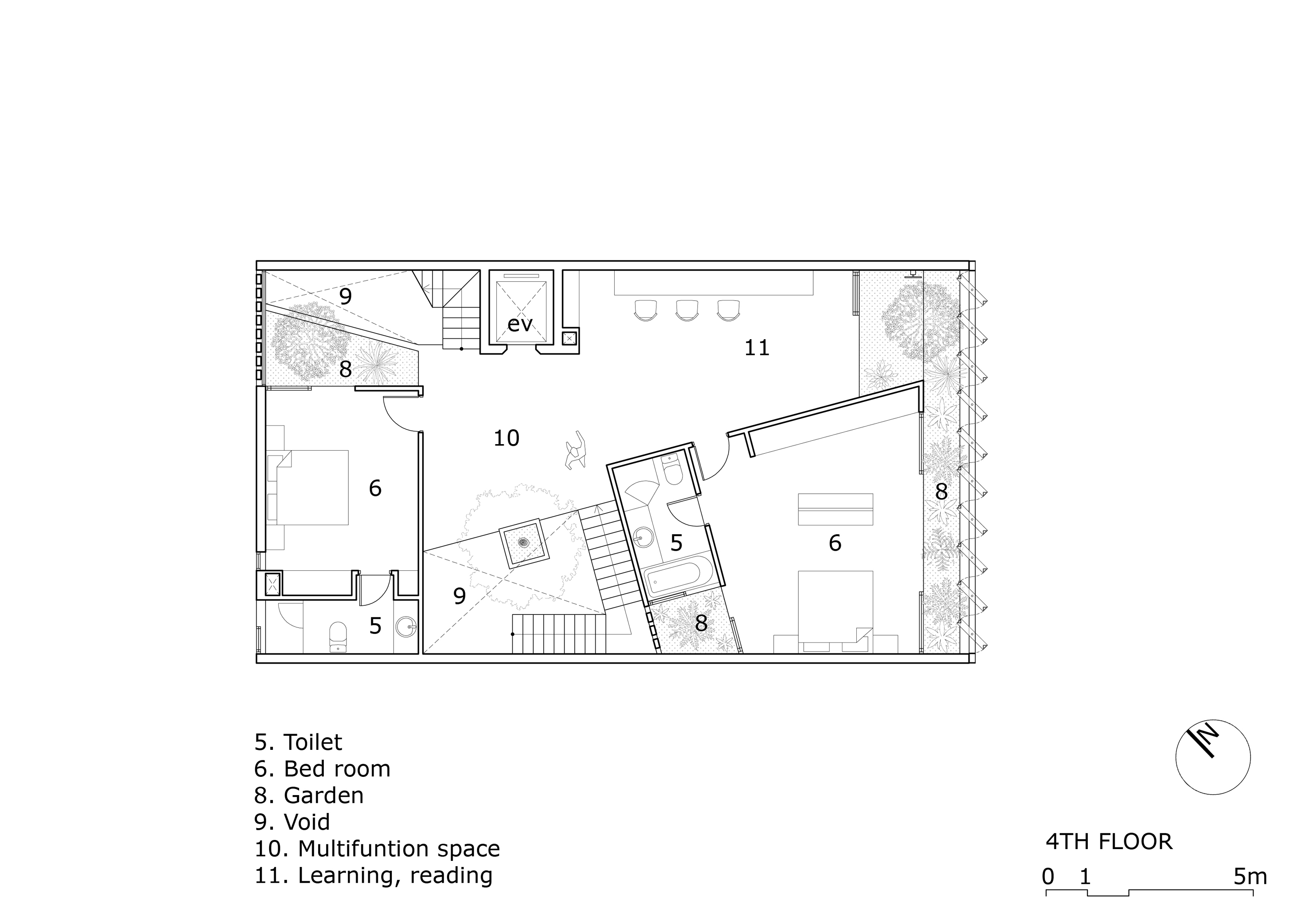
Im Zentrum der vietnamesischen Provinz Bac Ninh gelegen, beherbergt das als „Tropical Cave“ betitelte Familienhaus von H&P Architects vier Generationen unter einem Dach. Der Entwurf bezieht seinen Namen von den Licht- und Raumeffekten subtropischer Höhlengeologien – im Mittelpunkt der Struktur steht ein Leerraum, der als Katalysator das Gesamtgefüge mit mehreren Wandschichten für den Windschutz aufzieht.
Vereinzelte Treppenabschnitte verbinden sich in scheinbar zufälliger Abfolge mit den einzelnen Hausebenen, um eine „frische Erlebnisreise“ durch das Gebäudeinnere, auch nach mehrmaligen Erschließungen, aufrechtzuerhalten. Ein mehrdimensionaler Übergangsraum von gemeinsam genutzten hin zu (halb-) privaten Räumen komplementiert das Raumprogramm mit zahlreichen Pflanzenarten.
Die Fassade verfügt über zwei große Türsysteme mit insgesamt zehn Türen à 6,6m Höhe, die sich über einen Lenkradmechanismus öffnen lassen. Oberlicht, Gebäudeöffnungen und Vegetation tragen zur direkten Regulierung des Mikroklimas bei und lassen die Grenzen zwischen Architektur und Landschaft verschwimmen - eine Gegenmaßnahme zur zunehmenden Isolierung städtischer Häuser, betonen H&P Architects.
Team: Doan Thanh Ha ,Tran Ngoc Phuong, Nguyen Hai Hue, Trinh Thi Thanh Huyen, Nguyen Duc Anh, Ho Manh Cuong, Nguyen Van Thinh, Nguyen Thi Ngoc Mai
Land area: 160 m2
Total floor area: 700 m2







































