// Check if the article Layout ?>
Funktionale Verschränkung: »Matroschka-Haus« in Rotterdam
Foto: Noortje Knulst
Das Stadthaus ist Teil einer Blockrandstruktur. Ost- und westseitig begrenzt weist es eine bewegte Vergangenheit auf. Vom unlängst noch vernachlässigten Bau, an dem der Zahn der Zeit sichtbar nagte, bleibt im Zuge des Umbaus bis auf vereinzelte, gezielt inszenierte Relikte nicht mehr viel übrig.
Einmal zur Straße, einmal zum Innenhof hin orientieren sich die beiden Querseiten nach Norden und Süden. Um die geringe Belichtungsfläche maximal auszunutzen, sind die beiden Fassaden fast komplett verglast. In Richtung Garten gibt es große Schiebetüren, durch die der Wohnraum nach außen ausgeweitet werden kann. Ein Mansarddach schließt den Bau nach oben ab.
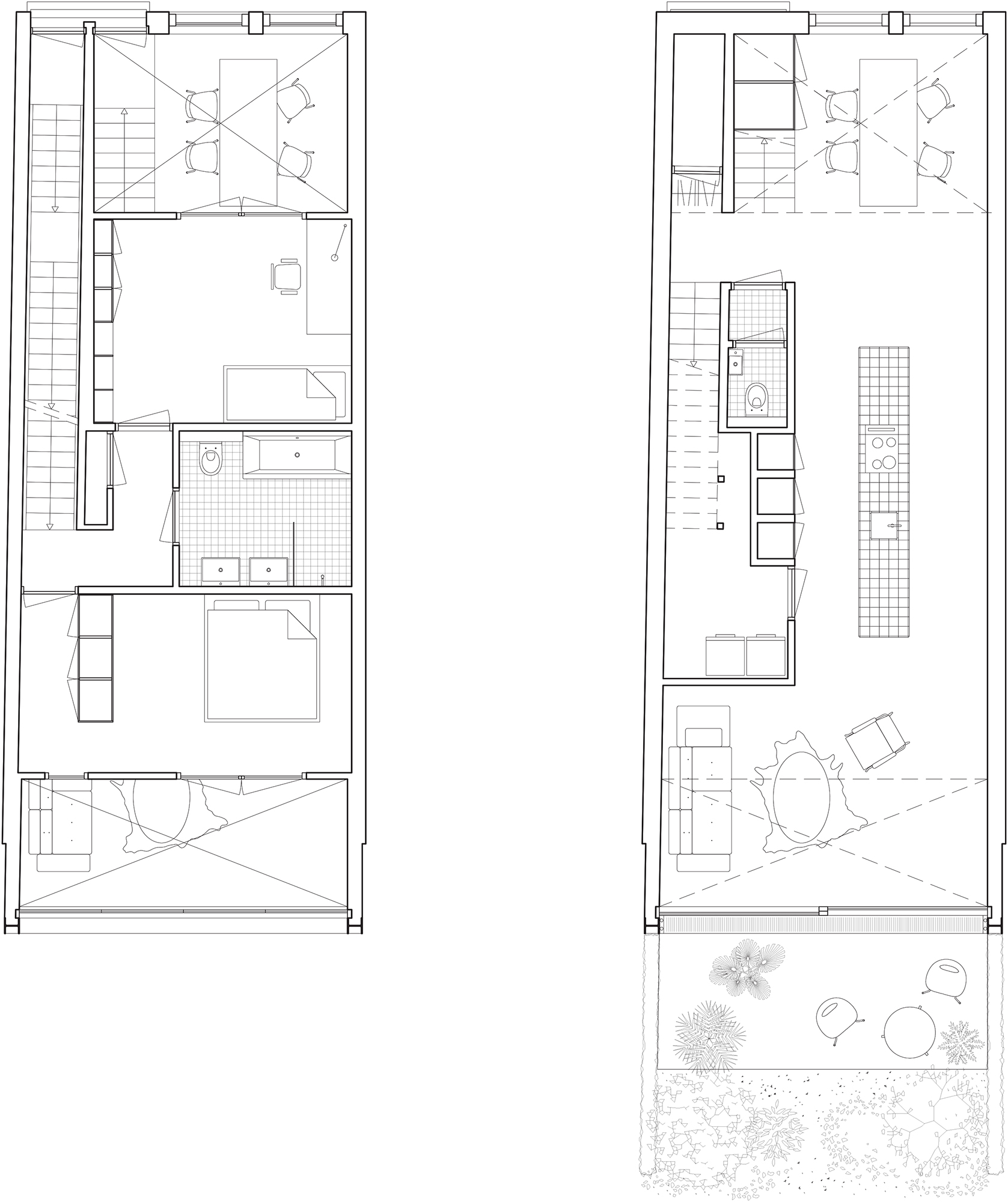
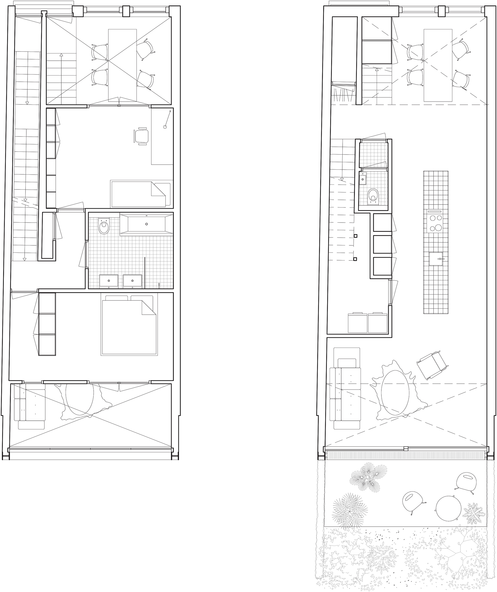
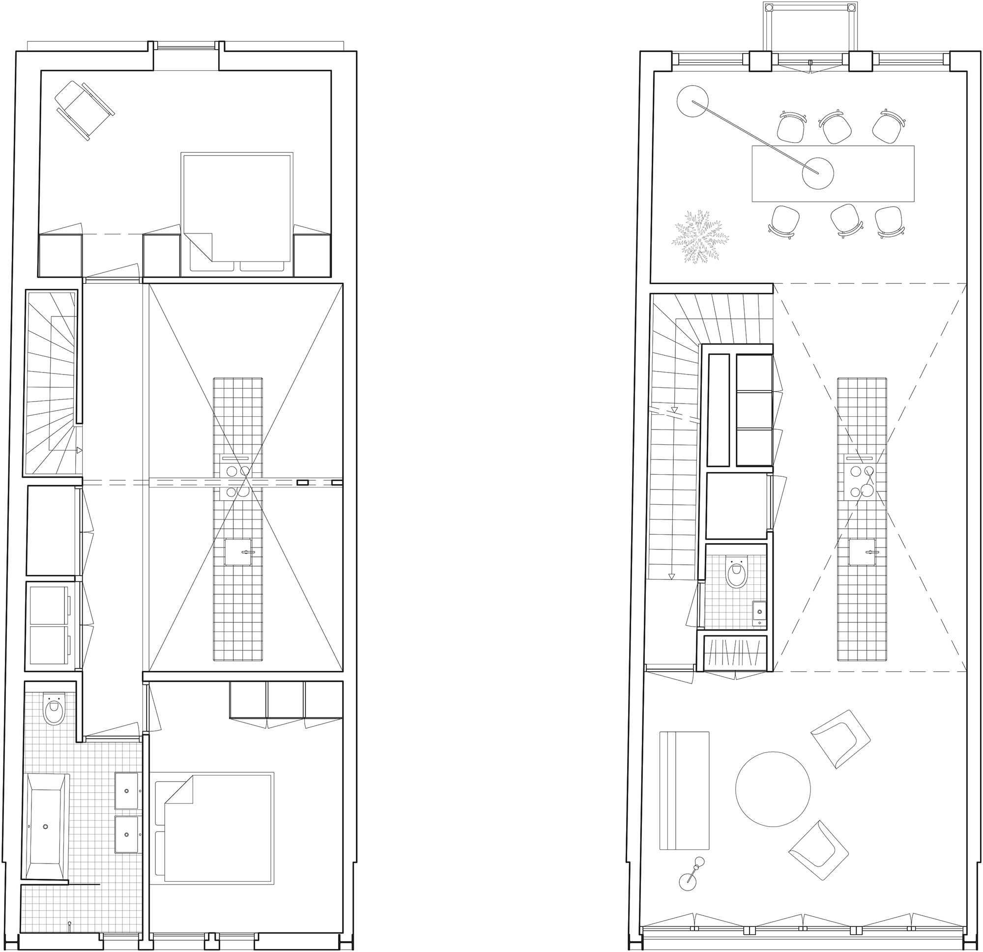
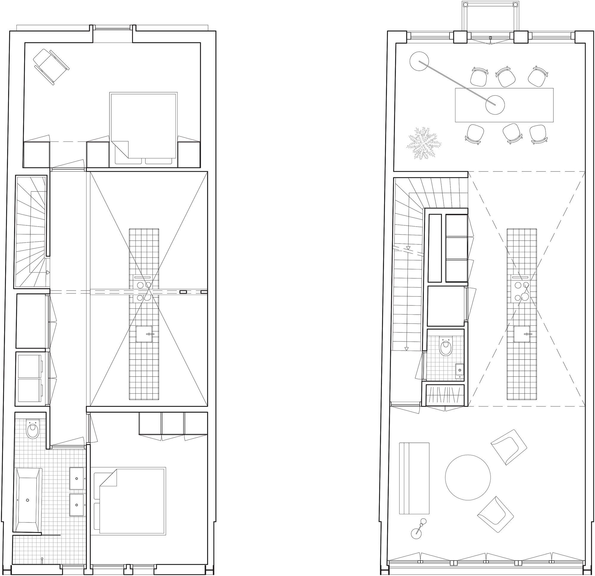
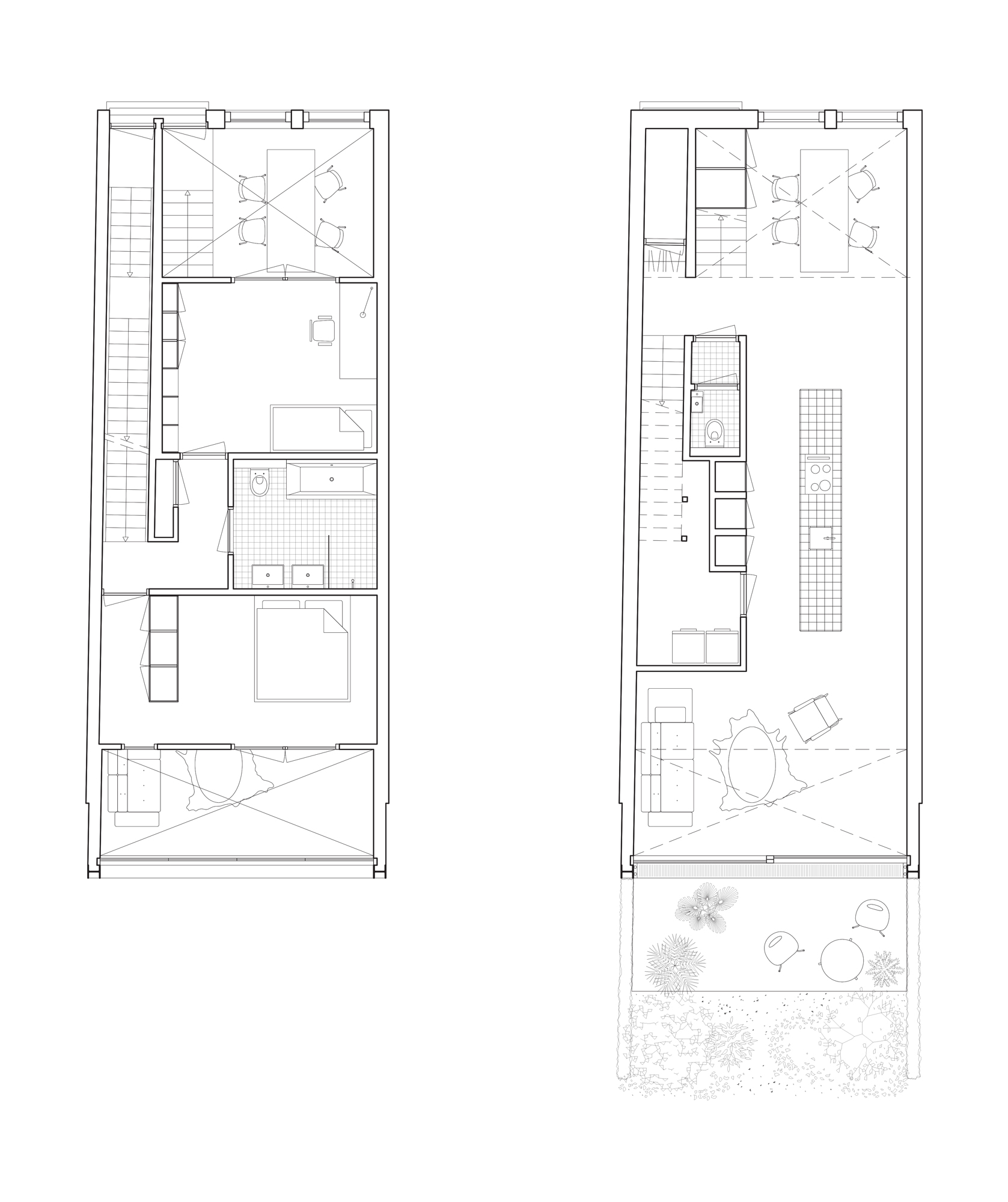
Die insgesamt vier Stockwerke gliedern sich in zwei etwa gleich große Wohnungen auf. Diese organisieren sich jeweils rund um einen zentralen Wohn-Essbereich. Ein Körper aus verzinktem Stahl, der sich an den westseitigen Bestandsbau anlehnt, geht von unten bis ganz nach oben durch beide Wohnungen. Er fasst die versorgenden Elemente wie Erschließung, Nasszellen, Stauraum und Küchenzubehör zu einem nach außen ruhigen Kern zusammen.
Das untere Apartment verschwindet straßenseitig leicht im Boden, um den Versatz zum tieferliegenden Garten zu kompensieren. Rund um eine zentral positionierte, freistehende Kücheninsel, finden Wohnen, Essen und Kochen nebeneinander statt. Zu den Fassaden hin geht der Raum jeweils über zwei Geschosse, so scheint er sich nach oben optisch zu öffnen. Mittig über dem Küchenblock hängt ein Volumen von der Decke, das wie eine eingepasste Tetris-Struktur aussieht. Sie beherbergt die privaten Räume, mit Fenstern zum Gemeinschaftsbereich.
In der oberen Wohnung bietet sich ein ähnliches Bild. Die funktionale Konzeption unterscheidet sich allerdings in ihrer formalen Ausführung: Wo unten Leerräume sind, befinden sich hier die abgeschlossenen Boxen. Die eingeschobenen Volumina befinden sich also an den Fassaden und der Wohnraum dehnt sich im Zentrum in die Höhe aus.
Designtechnisch setzt man auf Kontraste. Gezielt in Szene gesetzte Attribute zeugen von der Geschichte des Hauses, so zum Beispiel eine rohe Ziegelwand oder Dachträger, die bewusst unverkleidet bleiben. Aus den verschiedenen Materialien wie glatten Sichtbetonböden, weißen Wänden, leicht reflektierenden Stahloberflächen und bunten Farbakzenten ergibt sich eine stimmige Komposition, die einen modernen Gesamteindruck unterstreicht.
Weitere Informationen:
Team: Thijs van Bijsterveldt, Oana Rades, Harm Timmermans, Thomas Grievink, Sara Frikech
Interior-Design: Daphna Laurens, FabriekNL, Intrigue collection, Michael Schoner, OS ∆ OOS, Palau, Truly Truly
Interior-Design: Daphna Laurens, FabriekNL, Intrigue collection, Michael Schoner, OS ∆ OOS, Palau, Truly Truly
Weitere Informationen:
Team: Thijs van Bijsterveldt, Oana Rades, Harm Timmermans, Thomas Grievink, Sara Frikech
Interior-Design: Daphna Laurens, FabriekNL, Intrigue collection, Michael Schoner, OS ∆ OOS, Palau, Truly Truly
Interior-Design: Daphna Laurens, FabriekNL, Intrigue collection, Michael Schoner, OS ∆ OOS, Palau, Truly Truly



















