Kreislaufgerechter Wohnungsbau
Garagenaufstockung von Falk Schneemann Architektur
Nachverdichtung einer Wohnsiedlung in Karlsruhe: Garagenaufstockung als Wohnraum, © Stephan Baumann bild_raum
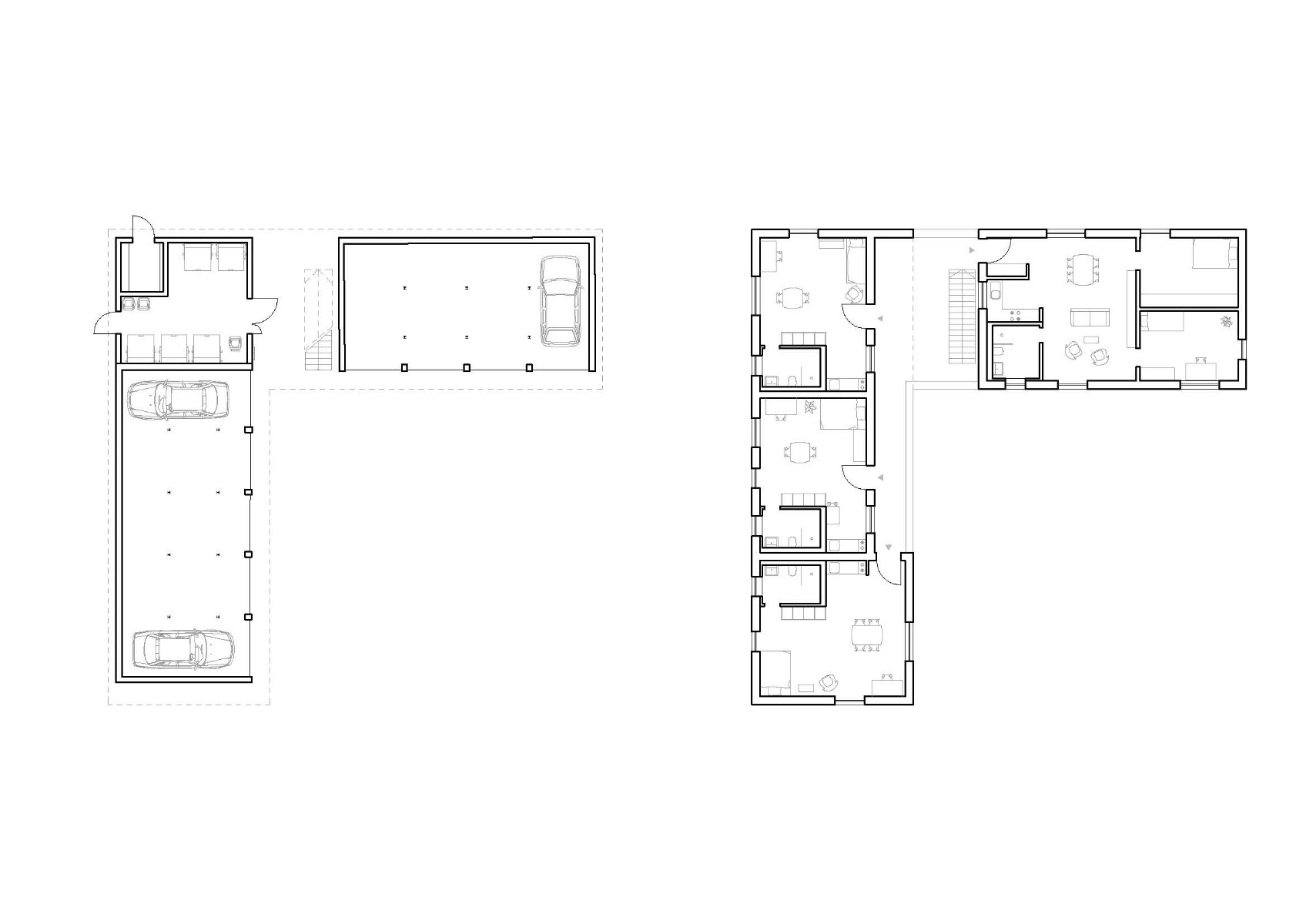
Drei bestehende Garagenanlagen zwischen Zeilenbauten aus den 1950er-Jahren in Karlsruhe sind der Ausgangspunkt für die Nachverdichtung der Wohngroßsiedlung Rintheim. Falk Schneemann Architektur interpretiert dabei den Umgang mit dem baulichen Bestand, die Rahmenbedingungen der Bebauungspläne und das Thema Mikrowohnen im urbanen Kontext. Zukunftsorientierter Ressourcenumgang durch Wohntypologie, Kreislauffähigkeit, Konstruktion und der Option der Wiederverwendbarkeit durch Versetzen rücken dabei in den Fokus.


Drei aufgestockte Garagenanlagen inmitten der Wohnbebauung aus den 1950er-Jahren. © Stephan Baumann bild_raum
Neuer Wohnraum ohne Bodenversiegelung
Die bestehenden Garagen der drei L-förmigen Anlangen bleiben in Betrieb. Auf insgesamt 535 m² werden zwölf neue Wohnungen geschaffen, ohne dabei neuen Boden zu versiegeln. Die größtenteils geförderten Ein- bis Dreizimmerwohnungen sollen durch die Vermietung an Studierende und Alleinerziehende die Vielfältigkeit im Quartier durch neue Bewohnergruppen fördern. Um die Akzeptanz des Projektes in der Nachbarschaft zu fördern, entstehen im Zuge des Neubaus Fahrradstellplätze, Müllräume und Waschsalons im Erdgeschoss, welche von allen Anwohnenden genutzt werden können.
Zeitgenössische Architektursprache
Eine außenliegende Treppe und ein Laubengang dienen der Erschließung und sollen zusätzlich identitätsstiftenden Raum für nachbarschaftliche Begegnung bieten. Die Dachlandschaft der Aufstockungen referenziert die umgebenden Zeilenbauten und interpretiert gleichzeitig den Prototyp des einfachen Wohnens neu. Außerdem bereichern die nach außen ablesbaren Raumhöhen die Qualitäten der unterschiedlichen Funktionsbereiche der Wohnungen. Küchen und Sanitärbereiche werden gezielt an den niedrigsten Stellen platziert, während hohe Wohnbereiche auch in den nur knapp 40 m² großen Einzimmerwohnungen ein großzügiges Wohngefühl vermitteln.


Gefördert wird das innovative und beispielgebende Projekt vom Land Baden-Württemberg. © Stephan Baumann bild_raum
Geringe Bauzeit durch Vorfertigung
Im Erdgeschoss wurde der Bestand durch Stahlstützen auf Punktfundamenten unterstützt. Die Aufstockungen ruhen auf einem Rost aus Stahlträgern, welcher durch Stahlfüße auf den Pultdächern der Garagen gehalten wird. Der hierbei entstandene Hohlraum wird für die Haustechnik genutzt. Die Boden-, Wand- und Dachelemente in Holzständerbauweise wurden in hohem Grad vorgefertigt. Sogar Fenstereinbau, Sonnenschutz- und Elektroinstallationen erfolgten bereits werkseitig.


Eingestellte Fertigbäder vereinfachen den Bau. © Falk Schneemann Architektur


Im Falle einer nötigen Demontage oder Versetzung können die Bäder einfach wieder entnommen werden. © Stephan Baumann bild_raum
Versetzbare Holzkonstruktion
Sollte das Quartier in Zukunft doch noch weiter nachverdichtet werden, erlaubt der vorgefertigte Holzständerbau den einfachen Transport zu einem neuen Standort oder die zerstörungsfreie Demontage. Eingestellte Fertigbäder, Elektroinstallationen mit Steckverbindungen, der Verzicht auf Verklebungen und der folienfreie Fassadenaufbau sind Aspekte, die das Gebäude kreislaufgerecht machen. Die Fassade aus unlackiertem Titanzink kommt durch die Ausführungsart ohne Trennlage aus, die Winddichtigkeit wird durch die Schalung mit Schwalbenschwanzverbindungen übernommen. Die Unterspannbahn des Daches ist aus recyclingfähigem Monomaterial ausgeführt. Zudem wurden Holzböden, Türbeschläge und Briefkästen aus einem rückzubauenden Bestandsgebäude entnommen, aufbereitet und in die Garagenaufstockung integriert.
Mehr dazu in Detail 6.2025 sowie in unserer Datenbank Detail Inspiration.
Architektur: Falk Schneemann Architektur FSA
Bauherrin: Volkswohnung GmbH
Standort: Heilbronner Straße 5a, 9a und 13a, 76131 Karlsruhe (DE)
Tragwerk: wh-p Ingenieure
HLS: gent + gent
Elektro: Ossowski Engineering
Bauphysik: Müller Ingenieure Waldbronn
Kreislaufgerechtigkeit: Prof. Dirk Hebel























