Industriekultur trifft Kommerzruine
Gate M West Bund Dream Center in Shanghai von MVRDV
Das Gebiet des Gate M Dream Center in der Abendstimmung. © Sanquian Visual Image Art
In Shanghai ticken die Uhren deutlich schneller als bei uns in Mitteleuropa. Gerade einmal zweieinhalb Jahre ist es her, dass das Büro MVRDV erste Renderings und Bestandsfotos des Gate M Dream Center am West Bund in Shanghai veröffentlichte. Nun ist das Sanierungsprojekt mit seinen immerhin 45 000 m² Geschossfläche bezugsbereit.
Bis Anfang der 2000er-Jahre stand auf dem Uferstreifen am Fluss Huangpu eine der größten Zementfabriken des Landes. Die Weltausstellung 2010 in Shanghai bot Gelegenheit, diesen Dinosaurier aus der Schwerindustrie außerhalb der Stadt zu verlagern. Ein darauffolgender, fehlgeschlagener Revitalisierungsversuch führte dazu, dass sich zwischen die verbliebenen Industrierelikte zahlreiche kommerzielle Bauruinen aus jüngerer Zeit mischten.


Am Südende des Geländes bliebt ein ehemaliges Zementsilo erhalten. Es dient künftig als Kletterzentrum. © Tian Fangfang
Weiterbauen am Bestand – auch da, wo er unbequem wird
In ihrem Masterplan legten MVRDV fest, dass weder der eine noch der andere Altbestand abgerissen werden durfte. Stattdessen bilden beide gemeinsam den heterogenen Ausgangspunkt für die Neugestaltung zum Entertainment- und Hotelquartier. „Von Anfang an war uns klar, dass in den noch erhaltenen Gebäuden ein enormer Wert steckte. Wir wollten nichts abreißen, nur weil es einfacher gewesen wäre, denn das hätte nur mehr Abfall und mehr Emissionen bedeutet“, sagt Jacob van Rijs, Partner im Büro MVRDV.


Lageplan des umgebauten Zementwerks, Grafik © MVRDV
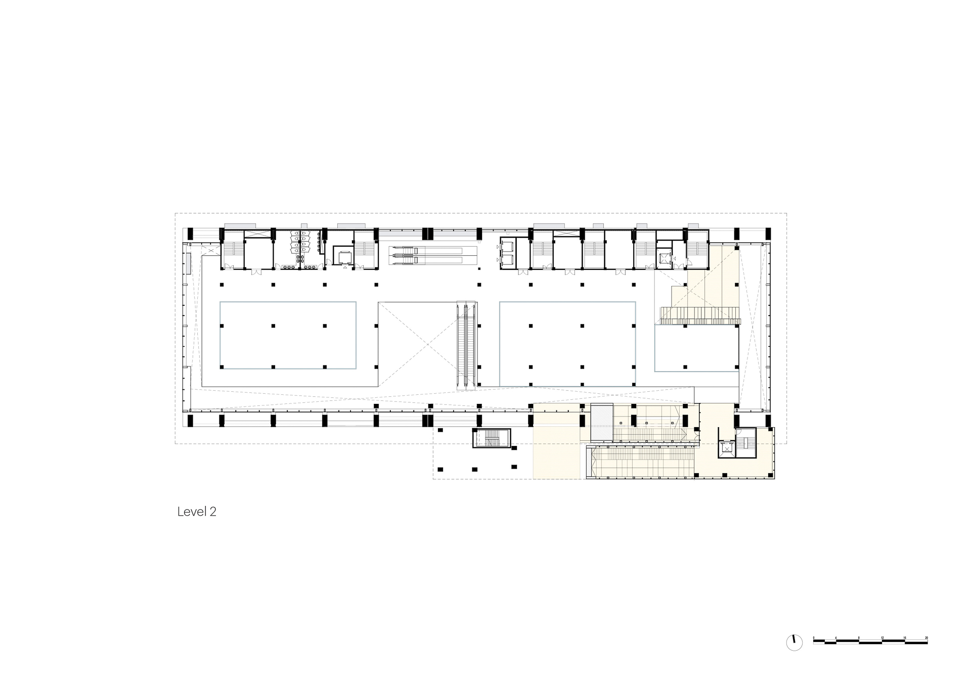
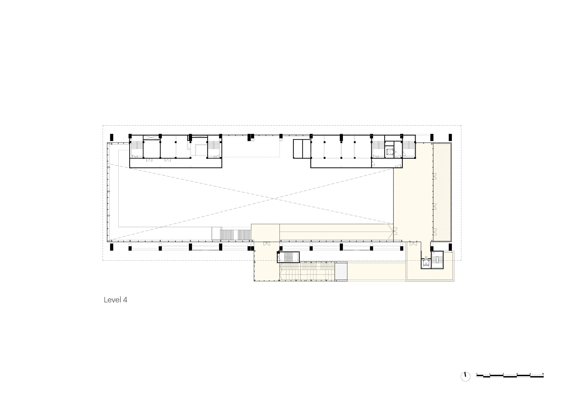
Als es an die Umsetzung ging, holten sich die niederländischen Architekten drei Partner ins Boot: Das dänische Büro Schmidt Hammer Lassen gestaltete das West Bund Dome Arts Centre sowie das neue Shanghai West Bund Theatre ganz im Norden des Areals. Das südlich daran anschließende Einkaufszentrum trägt die Handschrift des Büros Atelier Deshaus aus Shanghai. Die Landschaftsgestaltung des Uferstreifens übernahm das Büro James Corner Field Operations, und MVRDV selbst gestalteten die Bauten ganz im Süden des ehemaligen Zementwerks.


Das Hauptgebäude der Fabrik – heute M Factory – ist das weitaus größte Industrierelikt auf dem Areal. © Sanquian Visual Image Art
Klettern im Zementsilo, Food-Market in der Fabrik
Dazu zählten auch zwei postindustrielle Landmarks: Das sechsteilige Zementsilo ganz im Süden wurde zur Kletterhalle umfunktioniert. Gut möglich, dass sich MVRDV hierzu vom Kletterzentrum „Heaven’s Gate“ in den ehemaligen Pfanni-Silotürmen in München inspirieren ließen, nachdem sie gleich nebenan 2019 das Mehrzweckgebäude Werk12 fertigstellten. Das Hauptgebäude der Zementfabrik bestand vor dem Umbau nur noch aus zwei skelettierten Längswänden aus Beton und einer weit spannenden Dachkonstruktion aus Stahl. Heute enthält es – in „M Factory“ umgetauft –in den unteren Geschossen eine Markthalle für Lebensmittel mit Restaurantangebot Auf der obersten Ebene öffnet sich eine stützenfreie Mehrzweckhalle für Kulturveranstaltungen.


An den ehemaligen Industriebauten sind die neuen Erschließungsbereiche und Dachterrassen durchgehend in Orangerot gehalten. © Xia Zhi
Jacob van Rijs bezeichnet das Nebeneinander von Industrierelikten und ehemaligen kommerziellen Bauruinen als „ungünstige Paarung“. Das ist noch milde ausgedrückt – und deshalb entschieden sich MVRDV für zwei grundsätzlich unterschiedliche Umgangsformen mit dem Bestand. Die zumeist gesichtslosen Kommerzbauten wurden mit einer Hülle aus weißen, konkav gewölbten Aluminiumpaneelen und Glas so gut wie möglich vereinheitlicht. Die beiden ehemaligen Industriebauten haben die Architekten durch an- und aufgebaute Treppenhäuser, Aufzüge und Dachterrassen in leuchtendem Orange ergänzt.
Masterplan: MVRDV
Architektur: MVRDV, Atelier Deshaus, Schmidt Hammer Lassen
Partnerarchitekten: AISA
Bauherr: Hua Zhi Men Capital
Standort: Xuhui, Shanghai (CN)
Tragwerksplanung: ARUP, AISA
Landschaftsarchitektur: Field Operations
Innenarchitektur: CL3, Xu Studio
































