// Check if the article Layout ?>
Gebäudehülle mit Signalwirkung: Myeonmok Fire Station in Seoul
Foto: Kyungsub Shin
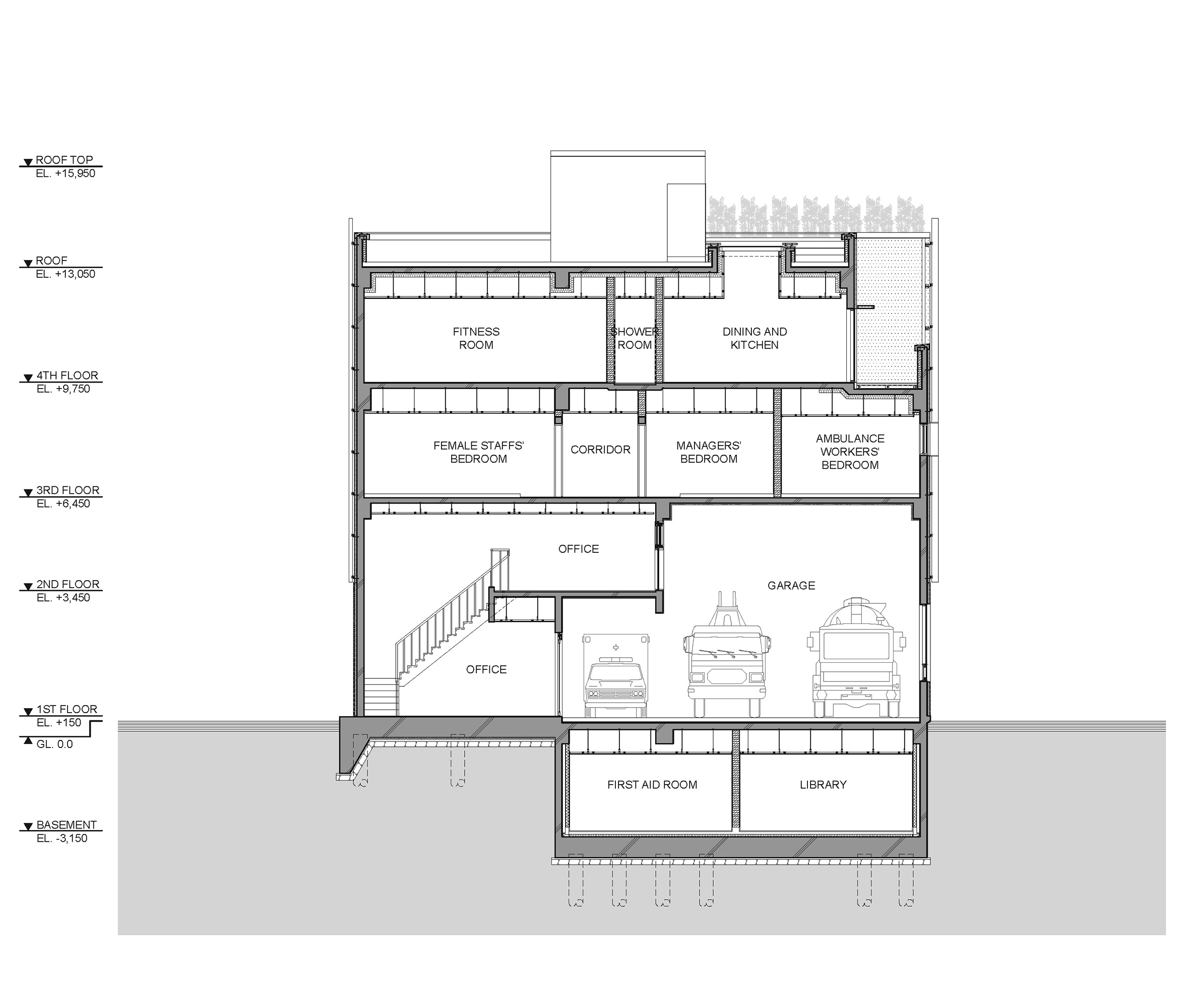
Der Bestandsbau der Feuerwehr im Osten von Seoul entsprach nicht mehr den zeitgenössischen Sicherheits- und Arbeitsanforderungen. Im neuen Gebäude sind nun alle notwendigen Einrichtungen untergebracht: Offene Büroräume und kurze Verkehrswege sind die Voraussetzung für eine schnelle Mobilisierung des Feuerwehrteams im Fall eines Einsatzes. Eine ebenerdige Garage beherbergt drei Feuerwehrfahrzeuge; darüber liegen die Büros, mit Blick auf die sechsspurige Straße. Die Schlafräume in den oberen Stockwerken sind zum Hinterhof hin orientiert.
Der kleine Bau liegt in einem Neubauwohngebiet und ist von monotonen Apartmenthochhäusern umgeben. Im umliegenden Quartier hat die neue Feuerwehr eine Symbolwirkung. Durch eine auffällige Fassadengestaltung vermitteln die Architekten die öffentliche Funktion des Bauwerks.
Eine dynamisch wirkende Fassadenverkleidung aus schräg platzierten Lamellen wird durch einzelne Fensteröffnungen in unterschiedlicher Höhe unterbrochen. Dadurch wirkt die Feuerwehr wie ein monolithisches Volumen. Die Verwendung von zwei Lamellenarten mit unterschiedlicher Tiefe – 100 mm und 200 mm – potenziert die Fassadendynamik. Ganz im Geiste von Robert Venturi und Denise Scott Brown ist die Feuerwehr von Yong Ju Lee Architecture eine »Ente«: eine Symbiose der Form und Funktion.














