// Check if the article Layout ?>
Gebaute Topografie: Kirche St. Ana in Rijeka
Foto: Urbis
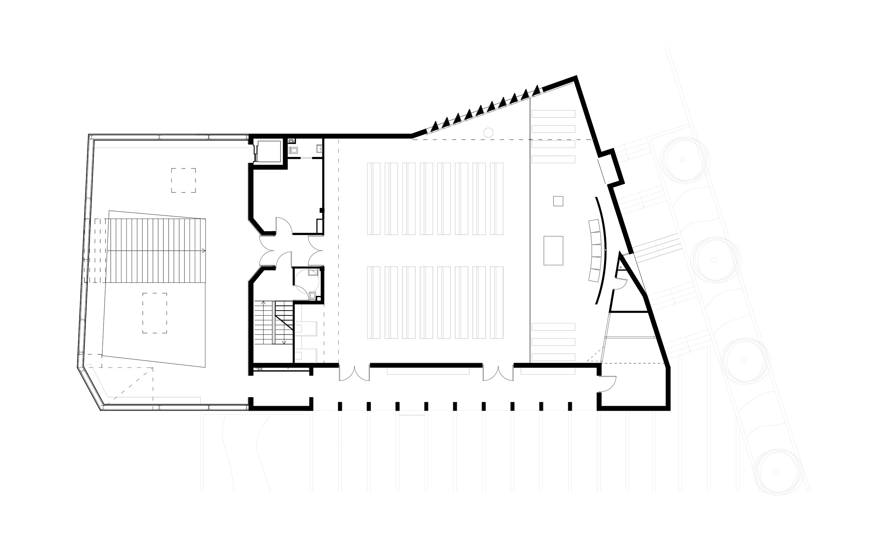
Die Kirche St. Ana steht hoch oben über der Innenstadt von Rijeka auf einem Hanggrundstück am Rande eines Wohnviertels. An dem Kreisverkehr im Westen vor dem Kircheneingang laufen mehrere größere Ausfallstraßen zusammen. Im Osten hinter der Kirche liegt dagegen ein kleiner Stadtteilpark mit Sportplatz und Schule. Die Kirche bildet somit den städtebaulichen Auftakt zur Stadt und zu deren Stadtteil Vežica.
Diese Portalfunktion und die Höhendifferenz von zwei Geschossen zwischen Straße und Park bestimmten den Kirchenentwurf von Urbis. Von Westen aus betritt man den Neubau gleichsam von unten über eine Freitreppe, die in ein rundum geschlossenes Atrium hineinführt. Geradeaus gelangt man durch ein Portal in den Kirchenraum, rechts führt eine Seitentür in die Vorhalle, die sich an der Längsseite im Süden der Kirche entlangzieht. Sie heißt wiederum die Kirchengäste willkommen, die sich vom umliegenden Wohngebiet aus nähern.
Einen deutlichen Kontrast zu dem schmucklosen Treppenatrium, das auch zu einem Verwaltungsbau gehören könnte, bildet der Kircheninnenraum. Hier spielt eindeutig das Licht die Hauptrolle. Von der Seite fällt es durch hochrechteckige, schlanke Fenster ein, die zwischen dreieckigen Betonstützen angeordnet sind. Am Altarende – das gleichzeitig der höchste Teil des Kirchenraums ist – sind drei Nischen ausgestülpt, die indirekt natürlich belichtet werden. In zweien davon sind das Tabernakel und das Taufbecken untergebracht. Die dritte befindet sich direkt hinter dem Altar, wo sich die Altarwand mit einem dramatischen vertikalen Lichtschlitz teilt. Auch die elektrische Beleuchtung passt sich dem Tageslichtkonzept an. Im Bereich der Längsseiten mit ihren hohen Fenstern wählten die Architekten eine kalte Lichtfarbe, in den „liturgischen Nischen“ hingegen eine warme.
Diese Portalfunktion und die Höhendifferenz von zwei Geschossen zwischen Straße und Park bestimmten den Kirchenentwurf von Urbis. Von Westen aus betritt man den Neubau gleichsam von unten über eine Freitreppe, die in ein rundum geschlossenes Atrium hineinführt. Geradeaus gelangt man durch ein Portal in den Kirchenraum, rechts führt eine Seitentür in die Vorhalle, die sich an der Längsseite im Süden der Kirche entlangzieht. Sie heißt wiederum die Kirchengäste willkommen, die sich vom umliegenden Wohngebiet aus nähern.
Einen deutlichen Kontrast zu dem schmucklosen Treppenatrium, das auch zu einem Verwaltungsbau gehören könnte, bildet der Kircheninnenraum. Hier spielt eindeutig das Licht die Hauptrolle. Von der Seite fällt es durch hochrechteckige, schlanke Fenster ein, die zwischen dreieckigen Betonstützen angeordnet sind. Am Altarende – das gleichzeitig der höchste Teil des Kirchenraums ist – sind drei Nischen ausgestülpt, die indirekt natürlich belichtet werden. In zweien davon sind das Tabernakel und das Taufbecken untergebracht. Die dritte befindet sich direkt hinter dem Altar, wo sich die Altarwand mit einem dramatischen vertikalen Lichtschlitz teilt. Auch die elektrische Beleuchtung passt sich dem Tageslichtkonzept an. Im Bereich der Längsseiten mit ihren hohen Fenstern wählten die Architekten eine kalte Lichtfarbe, in den „liturgischen Nischen“ hingegen eine warme.
weitere Informationen:
Mitarbeiter: Franko Andrijančić, Silvana Pilar
Lichtplaner: Skira d.o.o.; Dean Skira, Božidar Pustijanac
Tragwerksplanung: TGI d.o.o. Pula
Lichtplaner: Skira d.o.o.; Dean Skira, Božidar Pustijanac
Tragwerksplanung: TGI d.o.o. Pula
























