// Check if the article Layout ?>
Gebauter Kompetenznachweis: Trumpf Smart Factory bei Chicago
Foto: Steve Hall/Hall + Merrick Photographers
Eine Fabrik, die zugleich Ausstellungsgebäude ist – diese Kombination haben bislang nur wenige deutsche Industrieunternehmen gewagt. Die bekannteste Ausnahme ist vielleicht die Volkswagen AG, die nach der Wende ihre (letztlich kommerziell wenig erfolgreiche) »Gläserne Manufaktur« in Dresden errichtete.
Nun wagt der Werkzeugmaschinen- und Laserhersteller Trumpf in der Nähe von Chicago eine Neuauflage dieses Konzepts. Sein neues Vorführ- und Betriebszentrum ist nach Worten der Architekten Barkow Leibinger »eine Industrie-4.0-Demonstrationsfabrik mit digital vernetzten Maschinen, in der die gesamte Produktionskette von Blechbauteilen von der Beauftragung über die Konstruktion und Herstellung bis zur Auslieferung als intelligent verketteter, ganzheitlicher Prozess erlebbar wird.«
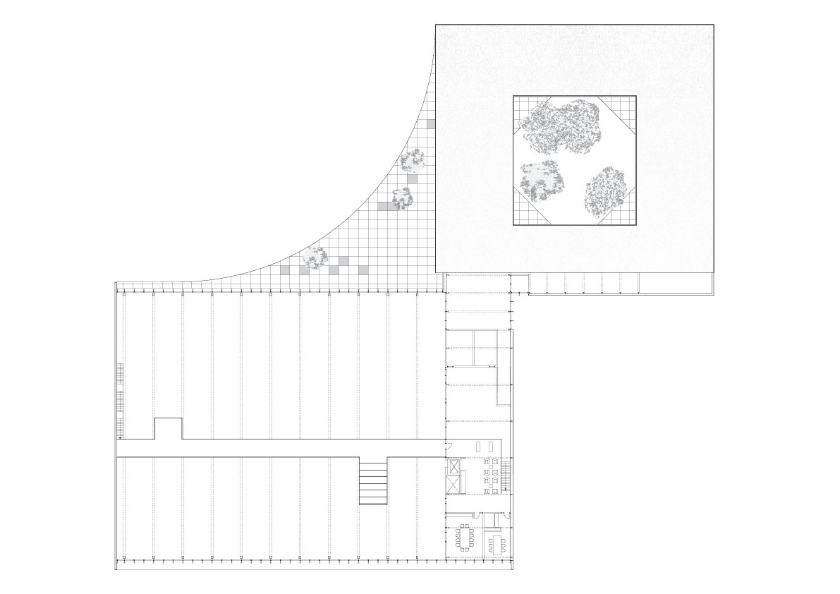
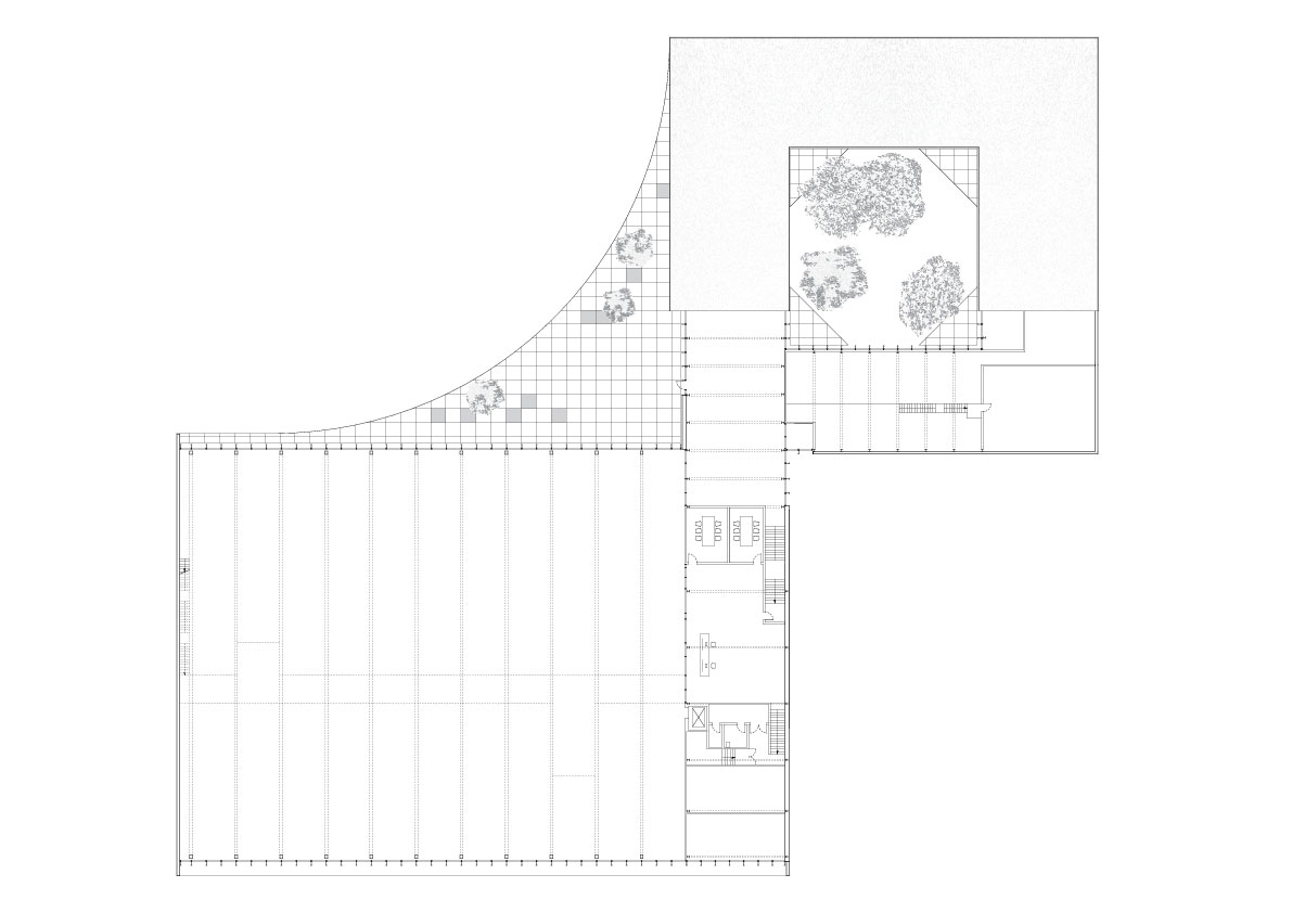
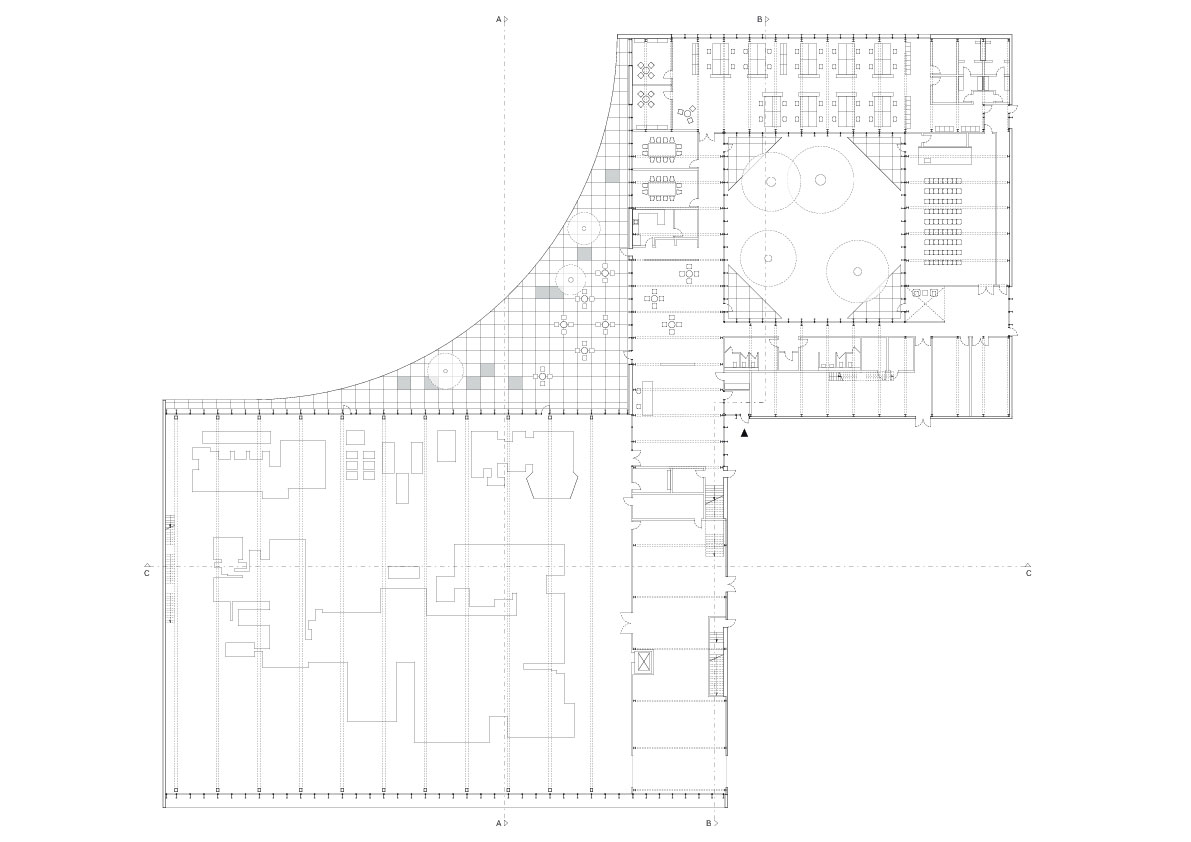
Die neue »Smart Factory« steht unmittelbar an der Interstate 90 in kurzer Entfernung zum internationalen Flughafen Chicago O’Hare. Trotz des angrenzenden Industriegebiets wirkt ihr unmittelbares Umfeld fast idyllisch: Auf seiner Rückseite grenzt das Gebäude an einen großen Teich, der als Regenwasserrückhaltebecken dient und von Wiesen mit Rad- und Fußwegen umgeben ist. Das Gebäude setzt sich aus zwei über Eck verbundenen Volumina zusammen, von denen das südliche dem Vorführbereich und das nördliche (mit Innenhof) den Büroflächen und einem Auditorium vorbehalten ist. Zusammengebunden werden die beiden Gebäudeteile durch ein gemeinsames Pultdach, das von 4,50 Metern im Norden bis auf rund 13 Metern im Süden ansteigt, wo sich die Schaufabrik mit einer großen Glasfassade zum Highway öffnet.
Für die unaufgeregte, aber sorgfältig detaillierte Formensprache ihres Neubaus zitieren die Architekten unter anderem die Fabrikbauten von Albert Kahn und Mies van der Rohe als Vorbilder. Die Fassaden sind großflächig mit tief rostrotem Cortenstahl-Trapezblech verkleidet. Außen vor den Pfosten-Riegel-Glasfassaden sind in Mies’scher Manier Doppel-T-Träger (ebenfalls aus vorbewittertem Stahl) angebracht, die die Fassaden gegen Windlasten stabilisieren. Ein drittes Material findet sich an den rückwärtigen, „naturnäheren“ Fassaden zum Innenhof und zum Teich: Hier sind vertikale Paneele aus beflammtem Douglasienholz angebracht, die farblich gut mit dem Cortenstahl harmonieren.
Per »Skywalk« durchs Dachtragwerk
Der rückwärtige Baukörper mit Innenhof beherbergt neben einem Großraumbüro und einem Auditorium auch ein zum Wasser orientiertes Café. An der Schnittstelle zwischen beiden Baukörpern liegt das gemeinsame Eingangsfoyer. Als Blickfang haben die Architekten jedoch vor allem den Vorführbereich konzipiert, und hier insbesondere das Dachtragwerk: Elf Vierendeel-Stahlträger überspannen diesen Bereich stützenfrei auf 45 Metern Länge. An ihrem Knickpunkt haben sie eine statische Höhe von 3,6 Metern.
Die Träger sind als Sonderanfertigungen aus lasergeschnittenen Teilen unterschiedlicher Größe verschweißt, die auf den Lasermaschinen von Trumpf hergestellt wurden. Auf diese Weise fungieren die Träger gleichsam als 17 Tonnen schwere Kompetenznachweise des Bauherren. Um sie aus der Nähe erlebbar zu machen, fädelten die Architekten einen offenen »Skywalk« auf 6,50 Metern Höhe zwischen die Träger ein. Er läuft 55 Meter quer durch die Trägerlagen hindurch, ist mit Gitterrost belegt und durch Glasbrüstungen gesichert.
Der Weg endet im »Control Center« in einer dreigeschossigen Raumspange, die den öffentlichen Vorführbereich auf der östlichen Seite flankiert. In dieser galerieartigen Schaltzentrale werden den Besuchern über große Displays in Echtzeit verschiedene Prozesskennzahlen zur Fertigungslinie angezeigt.
Nun wagt der Werkzeugmaschinen- und Laserhersteller Trumpf in der Nähe von Chicago eine Neuauflage dieses Konzepts. Sein neues Vorführ- und Betriebszentrum ist nach Worten der Architekten Barkow Leibinger »eine Industrie-4.0-Demonstrationsfabrik mit digital vernetzten Maschinen, in der die gesamte Produktionskette von Blechbauteilen von der Beauftragung über die Konstruktion und Herstellung bis zur Auslieferung als intelligent verketteter, ganzheitlicher Prozess erlebbar wird.«
Die neue »Smart Factory« steht unmittelbar an der Interstate 90 in kurzer Entfernung zum internationalen Flughafen Chicago O’Hare. Trotz des angrenzenden Industriegebiets wirkt ihr unmittelbares Umfeld fast idyllisch: Auf seiner Rückseite grenzt das Gebäude an einen großen Teich, der als Regenwasserrückhaltebecken dient und von Wiesen mit Rad- und Fußwegen umgeben ist. Das Gebäude setzt sich aus zwei über Eck verbundenen Volumina zusammen, von denen das südliche dem Vorführbereich und das nördliche (mit Innenhof) den Büroflächen und einem Auditorium vorbehalten ist. Zusammengebunden werden die beiden Gebäudeteile durch ein gemeinsames Pultdach, das von 4,50 Metern im Norden bis auf rund 13 Metern im Süden ansteigt, wo sich die Schaufabrik mit einer großen Glasfassade zum Highway öffnet.
Für die unaufgeregte, aber sorgfältig detaillierte Formensprache ihres Neubaus zitieren die Architekten unter anderem die Fabrikbauten von Albert Kahn und Mies van der Rohe als Vorbilder. Die Fassaden sind großflächig mit tief rostrotem Cortenstahl-Trapezblech verkleidet. Außen vor den Pfosten-Riegel-Glasfassaden sind in Mies’scher Manier Doppel-T-Träger (ebenfalls aus vorbewittertem Stahl) angebracht, die die Fassaden gegen Windlasten stabilisieren. Ein drittes Material findet sich an den rückwärtigen, „naturnäheren“ Fassaden zum Innenhof und zum Teich: Hier sind vertikale Paneele aus beflammtem Douglasienholz angebracht, die farblich gut mit dem Cortenstahl harmonieren.
Per »Skywalk« durchs Dachtragwerk
Der rückwärtige Baukörper mit Innenhof beherbergt neben einem Großraumbüro und einem Auditorium auch ein zum Wasser orientiertes Café. An der Schnittstelle zwischen beiden Baukörpern liegt das gemeinsame Eingangsfoyer. Als Blickfang haben die Architekten jedoch vor allem den Vorführbereich konzipiert, und hier insbesondere das Dachtragwerk: Elf Vierendeel-Stahlträger überspannen diesen Bereich stützenfrei auf 45 Metern Länge. An ihrem Knickpunkt haben sie eine statische Höhe von 3,6 Metern.
Die Träger sind als Sonderanfertigungen aus lasergeschnittenen Teilen unterschiedlicher Größe verschweißt, die auf den Lasermaschinen von Trumpf hergestellt wurden. Auf diese Weise fungieren die Träger gleichsam als 17 Tonnen schwere Kompetenznachweise des Bauherren. Um sie aus der Nähe erlebbar zu machen, fädelten die Architekten einen offenen »Skywalk« auf 6,50 Metern Höhe zwischen die Träger ein. Er läuft 55 Meter quer durch die Trägerlagen hindurch, ist mit Gitterrost belegt und durch Glasbrüstungen gesichert.
Der Weg endet im »Control Center« in einer dreigeschossigen Raumspange, die den öffentlichen Vorführbereich auf der östlichen Seite flankiert. In dieser galerieartigen Schaltzentrale werden den Besuchern über große Displays in Echtzeit verschiedene Prozesskennzahlen zur Fertigungslinie angezeigt.
Weitere Informationen:
Kontaktarchitekt: Heitman Architects Inc., Itasca
Generalunternehmer: McShane Construction Company, Rosemont
Projektsteuerung: Lendlease, Chicago
Tragwerksplanung: Knippers Helbig GmbH, Berlin/New York (Entwurf), KJWW Engineering Consultants, Naperville (Ausführungsplanung)
Klima- und Energiekonzept, Haustechnik, HLS, Elektroplanung: KJWW Engineering Consultants, Chicago
Fassadenplanung: Knippers Helbig GmbH, Berlin/New York
Lichtplanung: Studio Dinnebier, Berlin
Landschaftsarchitekten: Capatti Staubach, Berlin (Entwurf), Gary R. Weber Associates Inc., Wheaton (Ausführungsplanung)
Kontaktarchitekt: Heitman Architects Inc., Itasca
Generalunternehmer: McShane Construction Company, Rosemont
Projektsteuerung: Lendlease, Chicago
Tragwerksplanung: Knippers Helbig GmbH, Berlin/New York (Entwurf), KJWW Engineering Consultants, Naperville (Ausführungsplanung)
Klima- und Energiekonzept, Haustechnik, HLS, Elektroplanung: KJWW Engineering Consultants, Chicago
Fassadenplanung: Knippers Helbig GmbH, Berlin/New York
Lichtplanung: Studio Dinnebier, Berlin
Landschaftsarchitekten: Capatti Staubach, Berlin (Entwurf), Gary R. Weber Associates Inc., Wheaton (Ausführungsplanung)






















