// Check if the article Layout ?>
Gelungene Integration: Seniorenheim und Kinderkrippe in Paris
Foto: Sergio Grazia
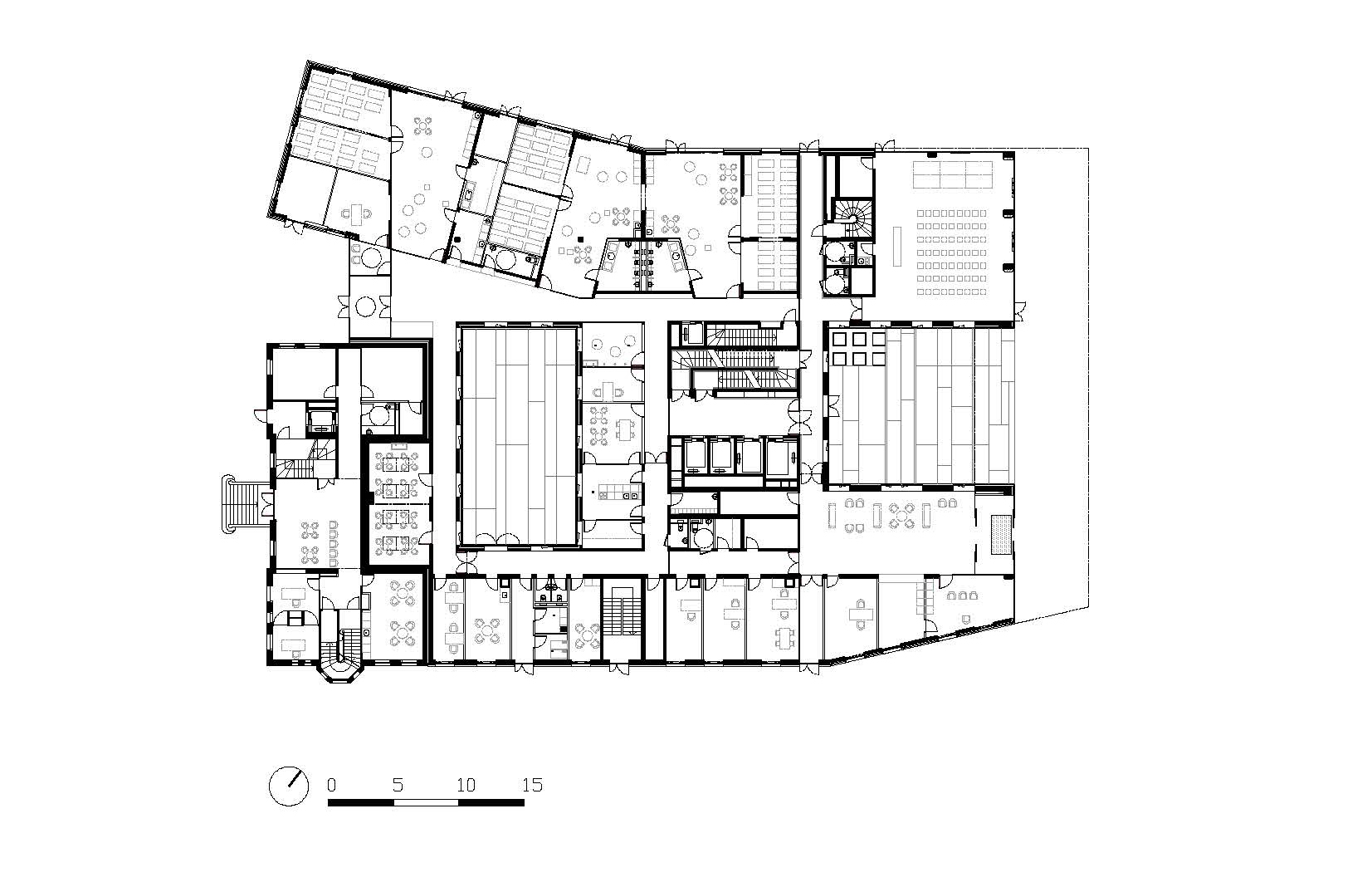
Das Areal rund um das neu errichtete Seniorenheim kann auf eine lange Geschichte zurückblicken: Der erste Flügel des dort ansässigen Krankenhauses entstand 1875 und wurde nach und nach durch eine Kapelle und diverse Neubauten ergänzt. Allesamt in der gleichen architektonischen Formensprache gehalten, folgten die Baukörper einem strengen, orthogonalen Raster entlang zweier Hauptachsen. 1985 führten Abbrüche und heterogene Neubauten zu einem Bruch des ehemaligen, stimmigen Gebäudeensembles. Genau an diesem Punkt setzten AZC Architekten an: Mit dem Ziel das ursprüngliche, harmonische Gesamtkonzept zu revitalisieren, wurden Baukörper ersetzt, ergänzt und Freiflächen konzipiert.
Zur Umstrukturierung des fast drei Hektar großen Areals wurde zunächst die Verkehrsführung umorganisiert. Zusätzlich zum ehemaligen Haupteingang entstand ein zweiter Zugang an der Rue Giordano Bruno. Von hier aus erstrecken sich zwei Hauptachsen, die in Fußgänger- und Fahrzeugbereiche unterteilt sind und durch den Neubau sowie eine gezielte landschaftsarchitektonische Gestaltung definiert werden. Die Ost-West-Achse verbindet den Haupteingang mit einem großzügigen Park, wo sich auch Schrebergärten und die Spielfläche der Kinderkrippe befinden. Die vollständig barrierefreie Gestaltung der Gartenanlage ermöglicht den Bewohnern des Seniorenheims jederzeit diese als Aufenthaltszone im Freien zu nutzen.
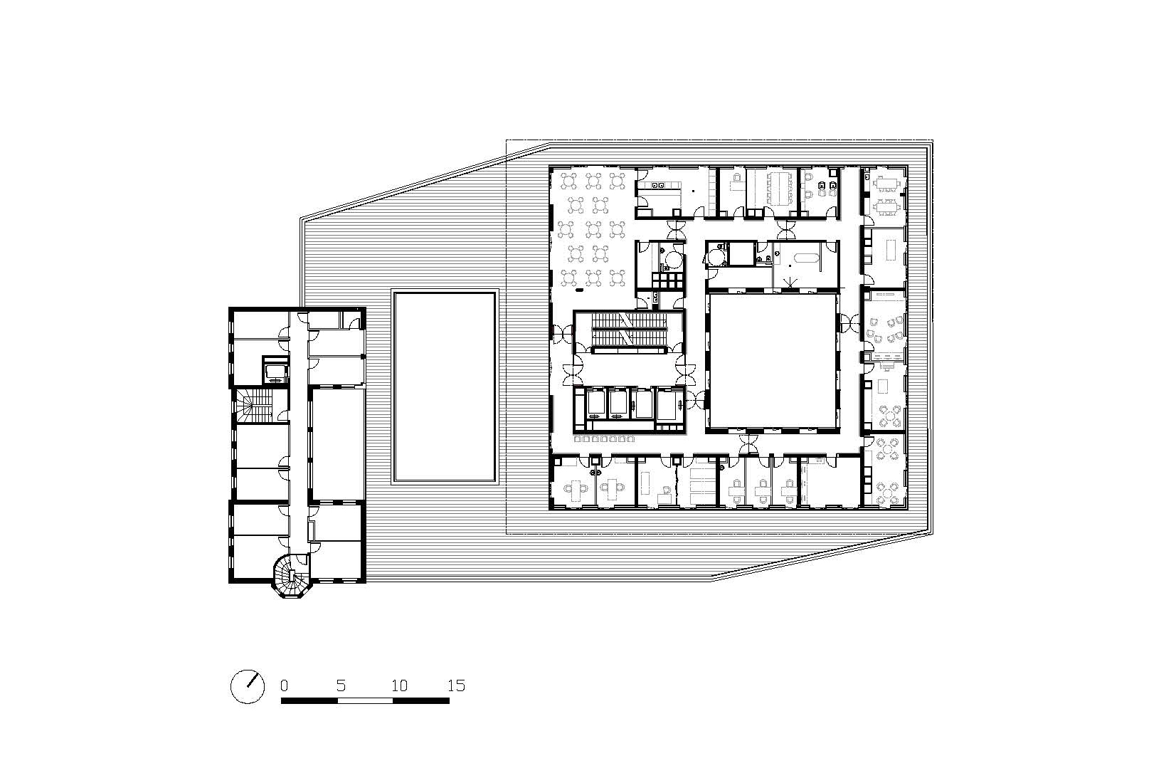
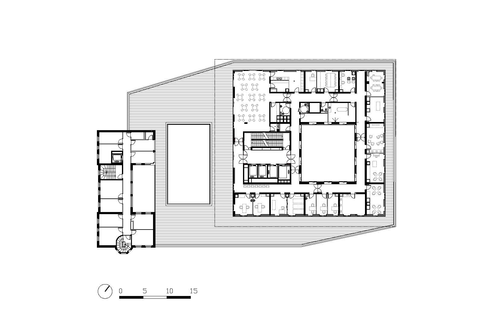
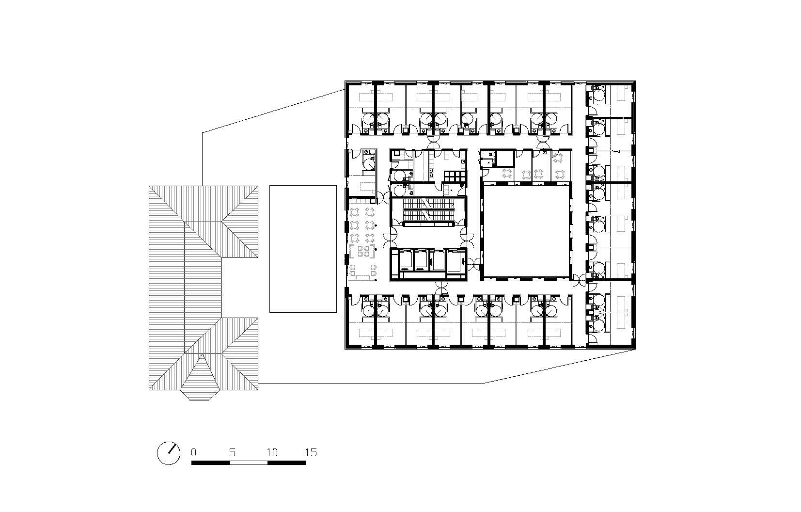
Das sechsgeschossige Heim wird im Inneren durch zwei bepflanzte Lichthöfe durchbrochen, die für eine natürliche Belichtung sorgen und den Bewohnern ein Gefühl von Sicherheit vermitteln sollen. Die Wohneinheiten der Senioren befinden sich im ersten, zweiten, vierten und fünften Obergeschoss. Diese wurden in Wohngemeinschaften mit 12 bis 14 Betten unterteilt und verfügen über eine offene Küche, ein Ess- und Wohnzimmer und eine überdachte Terrasse. Das Erdgeschoss beinhaltet neben einem großzügigen, offenen Foyer mit Ausblicken ins Grüne, auch die Kinderkrippe. In der dritten Etage liegt ein Zwischengeschoss, welches sich von außen als Einschnitt in den Baukörper offenbart. Hier befinden sich unter anderem lichtdurchflutete Aufenthaltsbereiche, die Raum für gemeinschaftliche Aktivitäten bieten.
Mithilfe ihres Projektes gelingt es AZC Architekten zwei Hauptthemen miteinander zu vereinen: In städtebaulicher Hinsicht wurde das ursprünglich unstrukturierte, heterogene Areal revitalisiert, neu organisiert und in ein zeitgemäßes urbanes Gefüge aus Baukörpern und Freiflächen transformiert. Auch die Frage nach einer angemessenen Integration von invaliden und älteren Menschen in eine Großstadt konnte durch dieses Projekt beantwortet werden: Adäquate Proportionen, großzügige Freiräume und natürlich belichtete Innenräume lassen hier kaum an eine medizinische Pflegeeinrichtung denken und erzeugen eine gewisses Maß an Wohnzimmeratmosphäre.
Zur Umstrukturierung des fast drei Hektar großen Areals wurde zunächst die Verkehrsführung umorganisiert. Zusätzlich zum ehemaligen Haupteingang entstand ein zweiter Zugang an der Rue Giordano Bruno. Von hier aus erstrecken sich zwei Hauptachsen, die in Fußgänger- und Fahrzeugbereiche unterteilt sind und durch den Neubau sowie eine gezielte landschaftsarchitektonische Gestaltung definiert werden. Die Ost-West-Achse verbindet den Haupteingang mit einem großzügigen Park, wo sich auch Schrebergärten und die Spielfläche der Kinderkrippe befinden. Die vollständig barrierefreie Gestaltung der Gartenanlage ermöglicht den Bewohnern des Seniorenheims jederzeit diese als Aufenthaltszone im Freien zu nutzen.
Das sechsgeschossige Heim wird im Inneren durch zwei bepflanzte Lichthöfe durchbrochen, die für eine natürliche Belichtung sorgen und den Bewohnern ein Gefühl von Sicherheit vermitteln sollen. Die Wohneinheiten der Senioren befinden sich im ersten, zweiten, vierten und fünften Obergeschoss. Diese wurden in Wohngemeinschaften mit 12 bis 14 Betten unterteilt und verfügen über eine offene Küche, ein Ess- und Wohnzimmer und eine überdachte Terrasse. Das Erdgeschoss beinhaltet neben einem großzügigen, offenen Foyer mit Ausblicken ins Grüne, auch die Kinderkrippe. In der dritten Etage liegt ein Zwischengeschoss, welches sich von außen als Einschnitt in den Baukörper offenbart. Hier befinden sich unter anderem lichtdurchflutete Aufenthaltsbereiche, die Raum für gemeinschaftliche Aktivitäten bieten.
Mithilfe ihres Projektes gelingt es AZC Architekten zwei Hauptthemen miteinander zu vereinen: In städtebaulicher Hinsicht wurde das ursprünglich unstrukturierte, heterogene Areal revitalisiert, neu organisiert und in ein zeitgemäßes urbanes Gefüge aus Baukörpern und Freiflächen transformiert. Auch die Frage nach einer angemessenen Integration von invaliden und älteren Menschen in eine Großstadt konnte durch dieses Projekt beantwortet werden: Adäquate Proportionen, großzügige Freiräume und natürlich belichtete Innenräume lassen hier kaum an eine medizinische Pflegeeinrichtung denken und erzeugen eine gewisses Maß an Wohnzimmeratmosphäre.













