Gemeinsam trainieren auf dem Campus: Pridham Hall von Snøhetta
Foto: Mark Syke
Inmitten der Universitätsgebäude in Adelaide fügt sich ein neues Gebäude ein, das dem Wohlbefinden und der Gesundheit der Studierenden dienen soll. In der Pridham Hall stehen ihnen ein Schwimmbad, eine Mehrzweckhalle mit Sportfeldern und Kletterwand, ein Fitnessstudio und informelle Treffpunkte drinnen wie draußen zur Verfügung. Auch die Anwohner des Viertels können das Gebäude frei nutzen, sodass es sich wie ein öffentliches Gebäude in die Nachbarschaft integriert.
Das Dach des nahezu quadratischen Gebäudes senkt sich an der nordöstlichen Ecke und auf der westlichen Seite bis auf Straßenniveau und bildet zwei Amphitheater umgeben von Beeten. Die Pflanzen darin repräsentieren die Biodiversität Australiens und insbesondere der Region um Adelaide. Außerdem fügen sie der terrassierten Fläche eine weitere, interessante Textur und Farbe hinzu. Die westliche Tribüne kann für das Open-Air-Kino und andere Veranstaltungen unter freiem Himmel genutzt werden. Im Gegensatz dazu ragt die nordwestliche Ecke des Gebäudes in die Höhe, um auf den Haupteingang hinzuweisen.
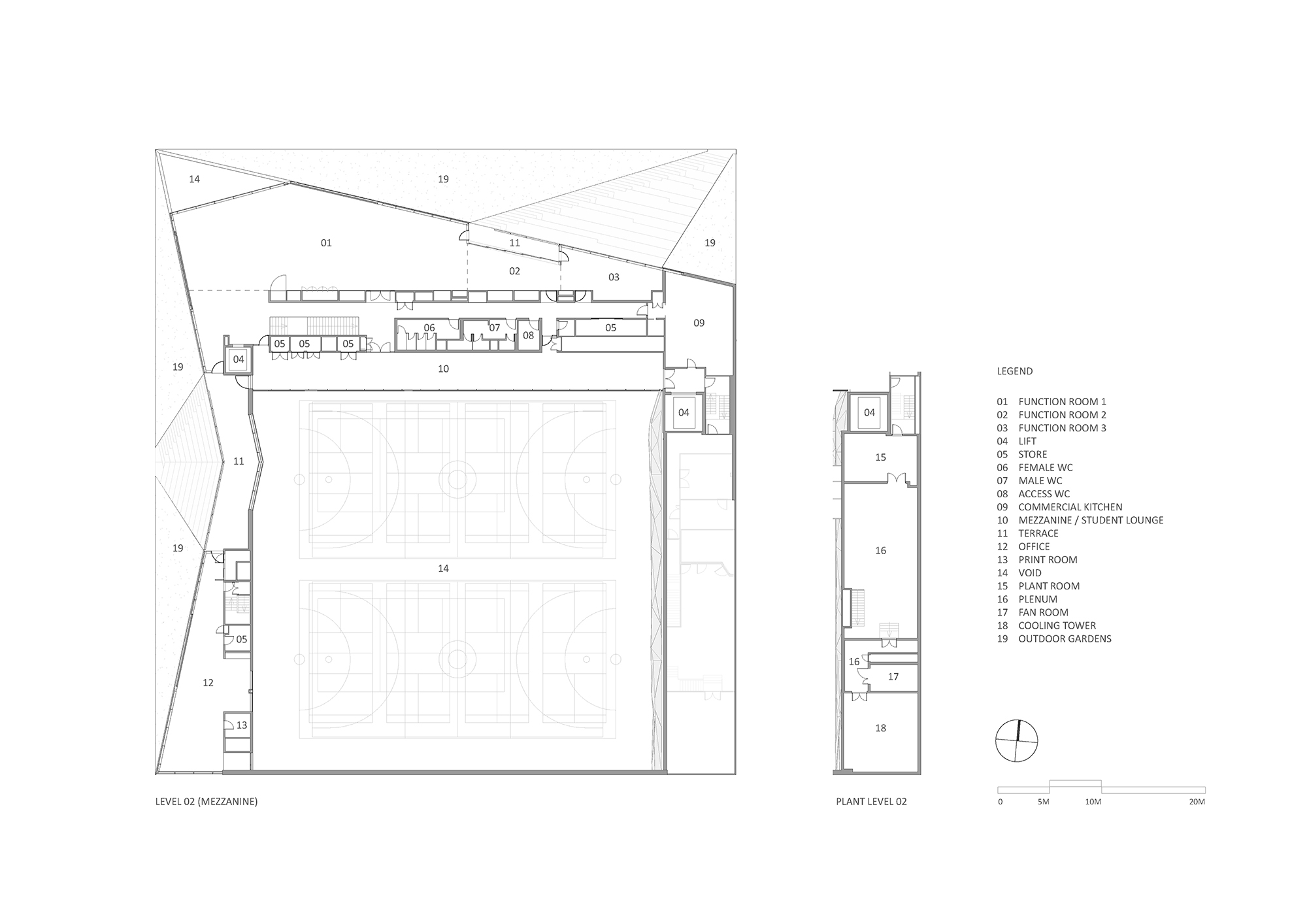
Die 1600 m² große Mehrzweckhalle im Zentrum des Erdgeschosses bietet zahllose Nutzungsmöglichkeiten. Von der Sporthalle lässt sie sich in einen Veranstaltungsraum für bis zu 2000 Gäste umwandeln. Rote, geometrische Akzente auf den Holzwänden kontrastieren mit den dezenten Grau- und Weißtönen und Holzoberflächen im Foyer. Im Untergeschoss befindet sich neben Tanz- und Fitnessstudios auch die 25 m lange Schwimmbahn. Unter der polygonalen, gefalteten Decke der Schwimmhalle bleiben die Träger der Struktur sichtbar und werden durch Lichtbänder akzentuiert. Große Glasflächen lassen die Sporträume immer wieder in einen Dialog mit der Umgebung treten.
Da die University of South Australia ihren CO2-Ausstoß bis 2021 um 15 % verringern möchte, griffen die Architekten auf diverse High- und Lowtech Lösungen zurück. Natürliches Licht wird besonders tief ins Gebäude geleitet, und die Glaswände der Lobby lassen sich zugunsten einer mechanischen Belüftung öffnen. Für ihren Umgang mit der Stadtlandschaft gewann die Pridham Hall den „Award of Excellence“ der SA Landscape Architecture Awards 2019. In der Kategorie „Built Small“ wurde sie außerdem für die WLA Awards nominiert.



















