// Check if the article Layout ?>
Gemeinschaft (er)leben: Jugendherberge von LAVA Architekten
Foto: DJH, Robert Pupeter
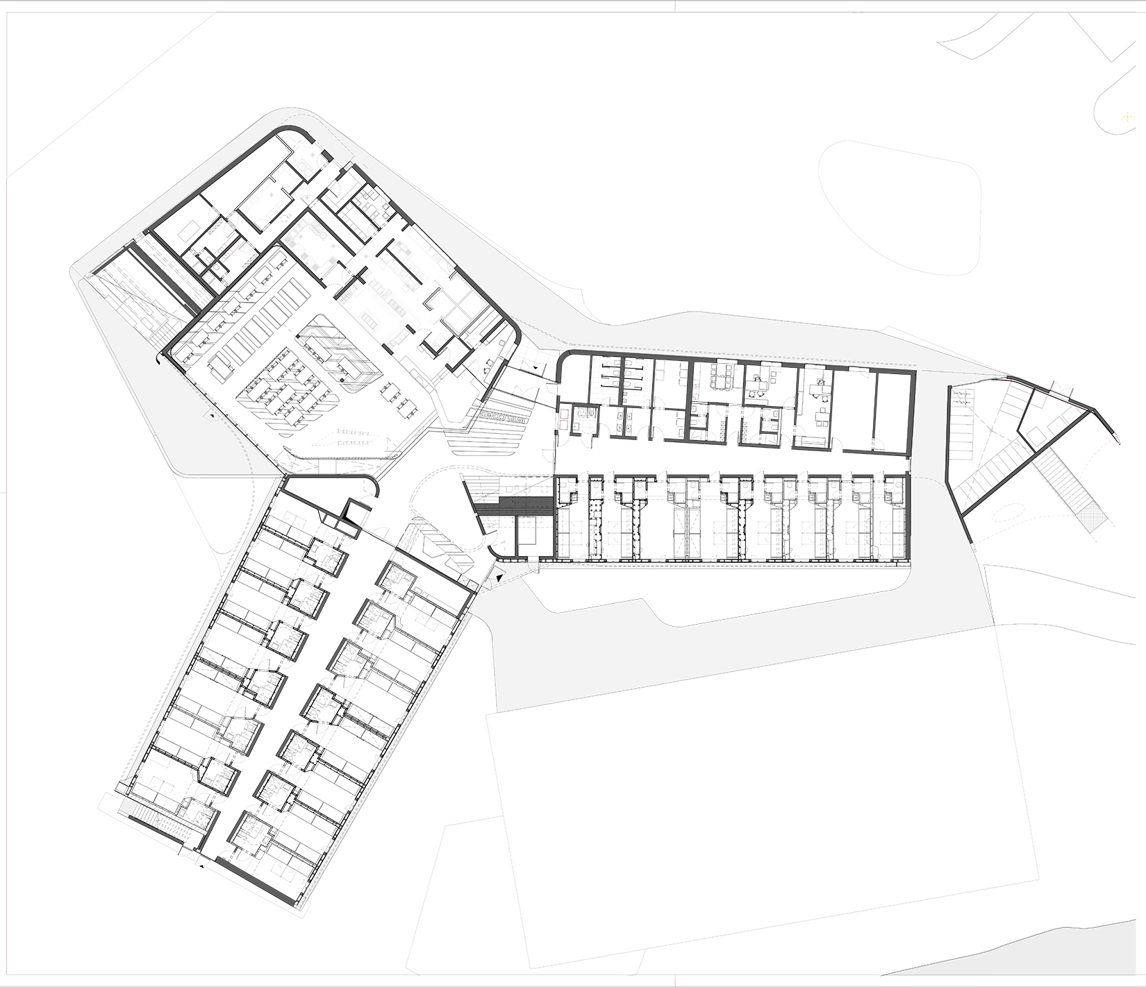
Schon in ihrer Formgebung scheint die Jugendherberge neue Wege zu beschreiten: Als riesiges, gebautes Y fügt sie sich, umgeben von Freiflächen, in die Landschaft ein, und reflektiert damit ihre Nutzer – die Generation Y. Besonderen Fokus legen LAVA Architekten auf die Verbindung von Innen- und Außenräumen. Sport- und Freiflächen sind großzügig angelegt und an diversen Punkten an die Jugendherberge angeschlossen: mal über eine Dachterrasse, an anderer Stelle über einen einfachen Ausgang im Erdgeschoss.
Die Außenansichten des Gebäudes präsentieren sich an den Längsfassaden raumhoch verglast und von einer fast organisch anmutenden, weißen Struktur umspielt. Diese zeichnet die Nahtstellen zu den Freiflächen nach und schafft somit auch optisch einen fließenden Übergang zwischen Interieur und Exterieur. Scharfe Ecken und Kanten sucht man vergeblich, an ihrer Stelle gibt es sanfte Rundungen. An den Stirnseiten schaffen schmale, horizontale Holzlatten, die sich zum Teil über die Gebäudeecken weiterziehen, einen schlichten Abschluss.
Die Jugendherberge bietet auf zwei Geschossen verteilt Platz für 180 Betten. Diese befinden sich jeweils an den Fingern des Y. Ein zentraler Gemeinschaftsbereich eint die einzelnen Trakte und wird zum kommunikativen Treffpunkt. Durch ein Oberlicht erscheint der Raum hell und inszeniert das Amphitheater, das Herzstück des Foyers. Des Weiteren gibt es einen Essbereich, Seminarräume und Sportmöglichkeiten. Besonderes Highlight bilden die eigens konzipierten Einbaumodule, die neben Raumteiler und Nasszelle außerdem Bettnischen in sich vereinen und ein flexibles, wandelbares Einrichtungskonzept ermöglichen. Je nach Bedarf fügt sich das intelligente System zu 2, 4 oder 6-Bett-Zimmern zusammen und garantiert den unterschiedlichen Nutzern neben seinem innovativen Design zudem maximale Platznutzung.
Die strukturellen, lastabtragenden Elemente sind zukunftsorientiert konzipiert. Sie befinden sich lediglich an den Fassaden und entlang der Gänge und machen somit eine spätere Umnutzung möglich. Im Inneren prägen die Konstruktionshölzer außerdem den Raumeindruck. Unverkleidet bleiben sie offen einsehbar und machen die Kraftverläufe des Gebäudes sichtbar. In Kombination mit rohen Materialien wie Sichtbeton- und Holzoberflächen verleihen sie den Innenräumen einen authentischen Charakter. Viel grelle Farbe und ein grafisches Orientierungssystem runden das moderne Design der Jugendherberge stimmig ab.
Nicht nur in der barrierefreien Umsetzung, sondern auch in der Nutzung des Gebäudes wird Integration und gemeinschaftliches Miteinander großgeschrieben. Neben des für Singles, Familien und Rollstuhlfahrer gleichermaßen geeigneten Angebots, beschäftigt die Jugendherberge auch eine Vielzahl von Personen mit besonderen Bedürfnissen.
Weitere Informationen:
LAVA: Tobias Wallisser, Alexander Rieck, Chris Bosse
Team: Julian Fahrenkamp (PL), Angelika Hermann, Jan Kozerski, Mikolay Scibisz, Nicola Schunter, Paula Gonzalez, Güley Alagöz, Elise Elsacker, Myung Lee, Yuan Ma, Sebastian Schott, Stephan Albrecht, Stefanie Pesel Wenzel+Wenzel: Matias Wenzel, Sven Becker, Thilo von Wintzingerode, Erik Muth Team | Mitarbeiter Engelsmann Peters, Stuttgart: Stephan Engelsmann, Stefan Peters, Christoph Dengler, Johannes Streib, Valerie Spalding, Christiane Kluge, Martin Beyer, Stefan Leitner, Verena Fuchs, Milos Dimcic)
Team: Julian Fahrenkamp (PL), Angelika Hermann, Jan Kozerski, Mikolay Scibisz, Nicola Schunter, Paula Gonzalez, Güley Alagöz, Elise Elsacker, Myung Lee, Yuan Ma, Sebastian Schott, Stephan Albrecht, Stefanie Pesel Wenzel+Wenzel: Matias Wenzel, Sven Becker, Thilo von Wintzingerode, Erik Muth Team | Mitarbeiter Engelsmann Peters, Stuttgart: Stephan Engelsmann, Stefan Peters, Christoph Dengler, Johannes Streib, Valerie Spalding, Christiane Kluge, Martin Beyer, Stefan Leitner, Verena Fuchs, Milos Dimcic)















