// Check if the article Layout ?>
Gemeinschaftliches Wohnen mit Weitblick: »Share Houses«
Foto: Bruce Engel
Die beiden separaten, am Hang liegenden Häuser grenzen direkt an das Krankenhaus an und bieten für 16 Mitarbeiter der Organisationen »Partners In Health« und »Ministry of Health« eine temporäre Behausung. So kann nicht nur Zeit und Geld gespart werden, man hofft zudem darauf, die Beziehung zwischen Personal und Gemeinde zu stärken und eine Art Dorf im Dorf zu schaffen. Bereits bei der Auswahl der Materialien und der Errichtung des Gebäudes wurden diese Aspekte mit einbezogen, sodass nahezu alle Materialien aus der näheren Umgebung stammen und die Bewohner des Ortes auf der Baustelle mitgearbeitet haben. Die Planer konnten auf diese Weise nicht nur das knappe Budget einhalten, auch die Ambition die lokale Wirtschaft zu fördern ist gelungen.
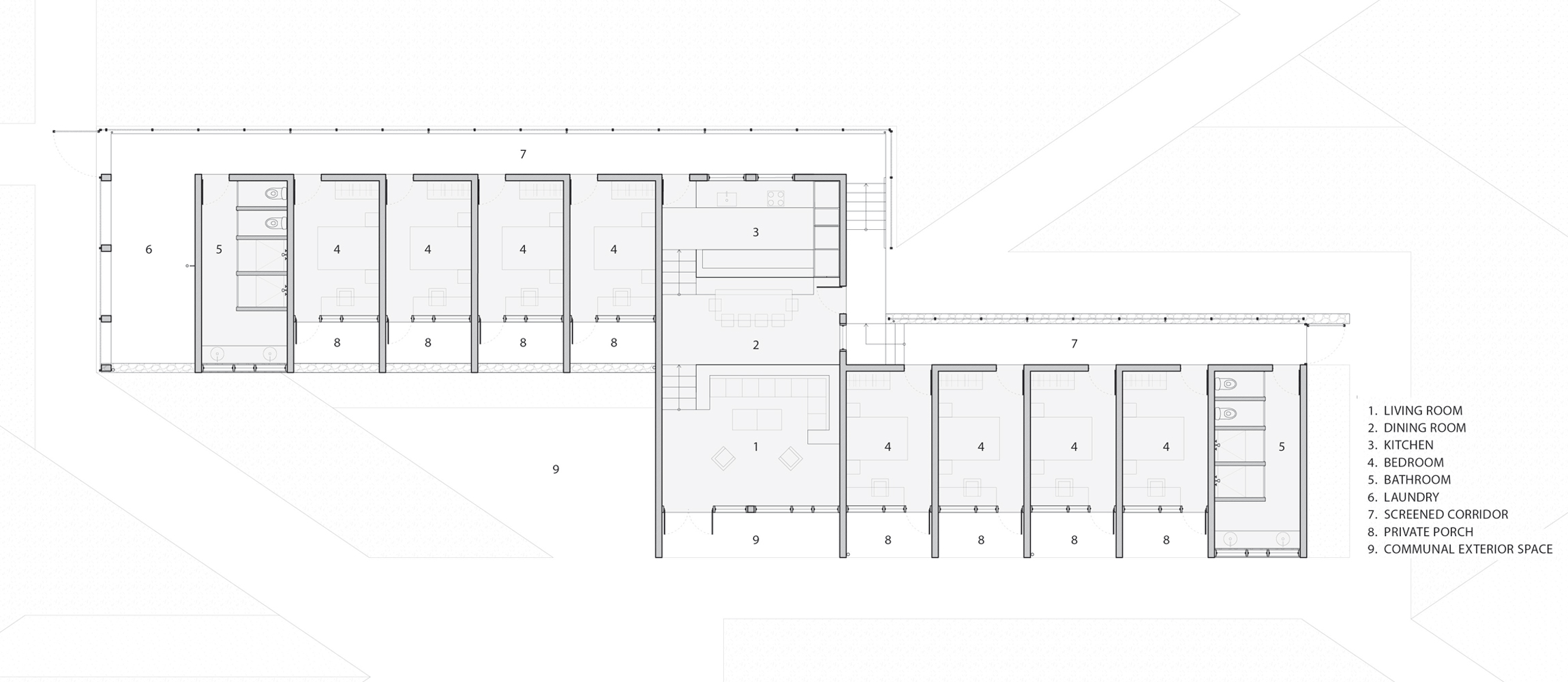
Es scheint als wären zwei einzelne Baukörper zu einem z-förmigen Gebäude zusammengeschoben worden. Die separaten Flügel beherbergen jeweils vier Schlafzimmer und ein Gemeinschaftsbad und schließen an einen zentralen Wohn-Essbereich an. Mit eigenem überdachten Außenbereich bieten die nach Nord-Westen orientierten Privaträume eine gigantische Aussicht auf das Kibaya-Tal. Neben der Möglichkeit den Gemeinschaftsraum als Aufenthaltsort zu nutzen, können die Bewohner hier ebenso kochen und essen. Durch die Hanglage und den Versprung innerhalb des Grundrisses werden hier die Niveauunterschiede der einzelnen Baukörper ausgeglichen, sodass ein abgetreppter Raum mit verschiedenen Nutzungsebenen entsteht. Große Fensteröffnungen an der Fassade und im Dach sorgen für eine natürliche Belichtung und stellen den Bezug nach Draußen her.
Ähnlich einer Laubengang-Erschließung erfolgt auch bei den »Share Houses« der Zugang zu den Zimmern über einen geschützten, überdachten Gang. Dieser ist mit Eukalyptus verkleidet und erinnert an die traditionelle Bauweise in Ruanda, bei der das pflanzliche Material in gewebter Struktur eingesetzt wird. Die restliche Fassade, ebenso wie die Wände im Inneren sind aus Backsteinen errichtet, die von einer Frauen-Kooperative handgefertigt wurden. Pro Gebäudeteil schützt ein mit Ziegeln gedecktes Satteldach vor Wind und Wetter.
In Zusammenarbeit mit Rwanda Village Enterprise entwickelte Sharon Davis das Projekt »Share Houses«. Es gilt neben dem »Women’s Opportunity Center« in Kayonza als das zweite wichtige Projekt das in Ruanda von der New Yorkerin umgesetzt wurde.
Es scheint als wären zwei einzelne Baukörper zu einem z-förmigen Gebäude zusammengeschoben worden. Die separaten Flügel beherbergen jeweils vier Schlafzimmer und ein Gemeinschaftsbad und schließen an einen zentralen Wohn-Essbereich an. Mit eigenem überdachten Außenbereich bieten die nach Nord-Westen orientierten Privaträume eine gigantische Aussicht auf das Kibaya-Tal. Neben der Möglichkeit den Gemeinschaftsraum als Aufenthaltsort zu nutzen, können die Bewohner hier ebenso kochen und essen. Durch die Hanglage und den Versprung innerhalb des Grundrisses werden hier die Niveauunterschiede der einzelnen Baukörper ausgeglichen, sodass ein abgetreppter Raum mit verschiedenen Nutzungsebenen entsteht. Große Fensteröffnungen an der Fassade und im Dach sorgen für eine natürliche Belichtung und stellen den Bezug nach Draußen her.
Ähnlich einer Laubengang-Erschließung erfolgt auch bei den »Share Houses« der Zugang zu den Zimmern über einen geschützten, überdachten Gang. Dieser ist mit Eukalyptus verkleidet und erinnert an die traditionelle Bauweise in Ruanda, bei der das pflanzliche Material in gewebter Struktur eingesetzt wird. Die restliche Fassade, ebenso wie die Wände im Inneren sind aus Backsteinen errichtet, die von einer Frauen-Kooperative handgefertigt wurden. Pro Gebäudeteil schützt ein mit Ziegeln gedecktes Satteldach vor Wind und Wetter.
In Zusammenarbeit mit Rwanda Village Enterprise entwickelte Sharon Davis das Projekt »Share Houses«. Es gilt neben dem »Women’s Opportunity Center« in Kayonza als das zweite wichtige Projekt das in Ruanda von der New Yorkerin umgesetzt wurde.















