Geometrisches Geflecht: Walking Box von unarchitecte
Foto: unarchitecte
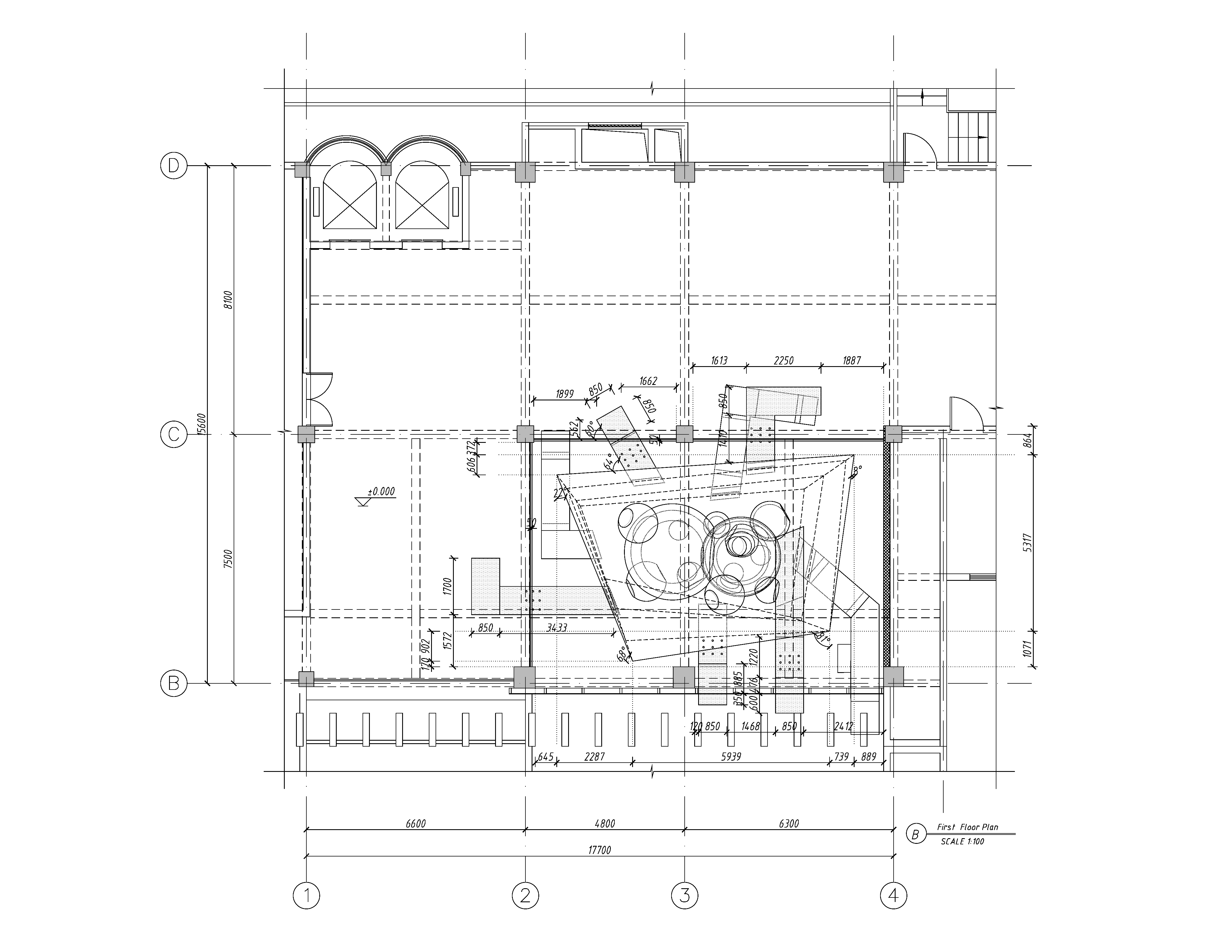
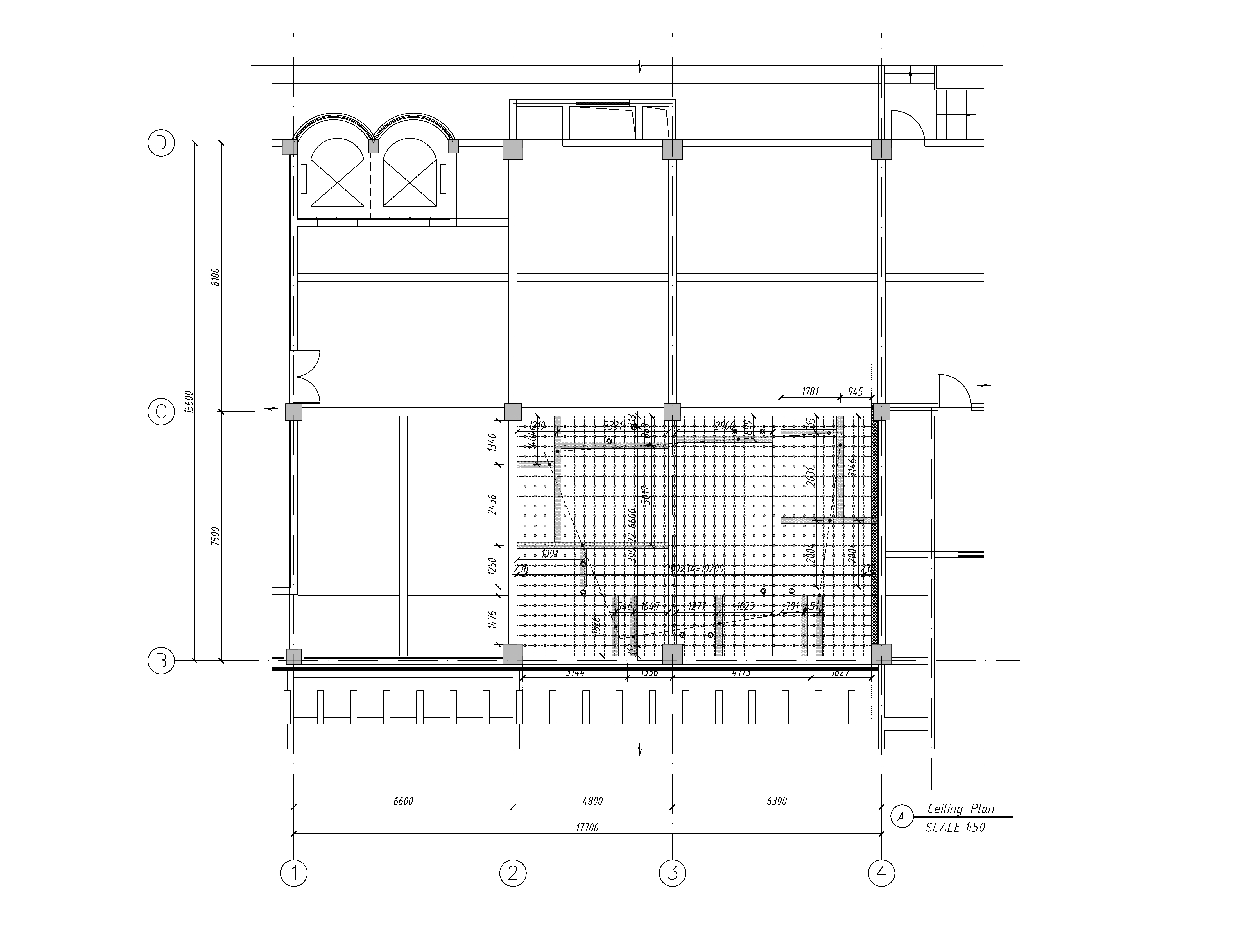
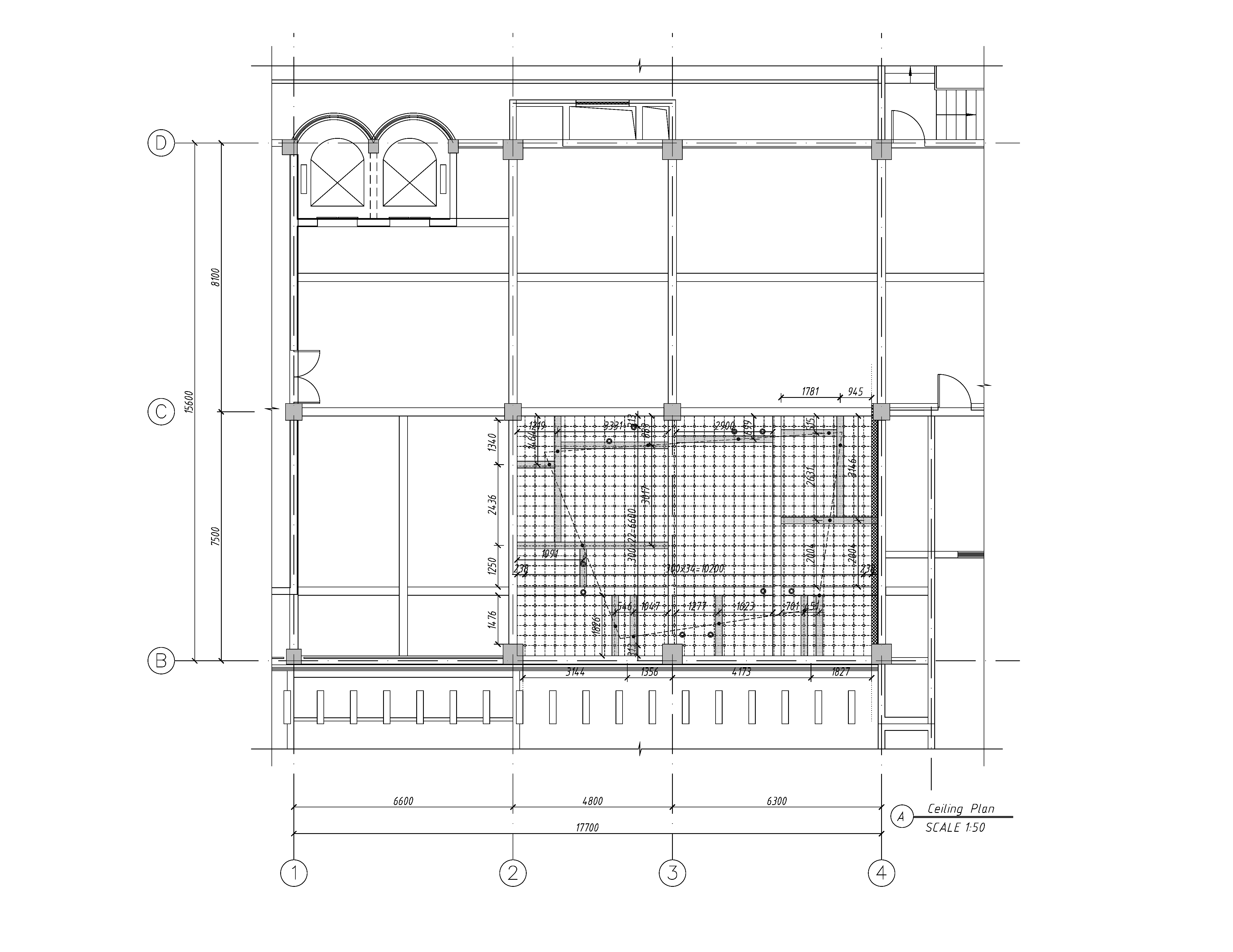
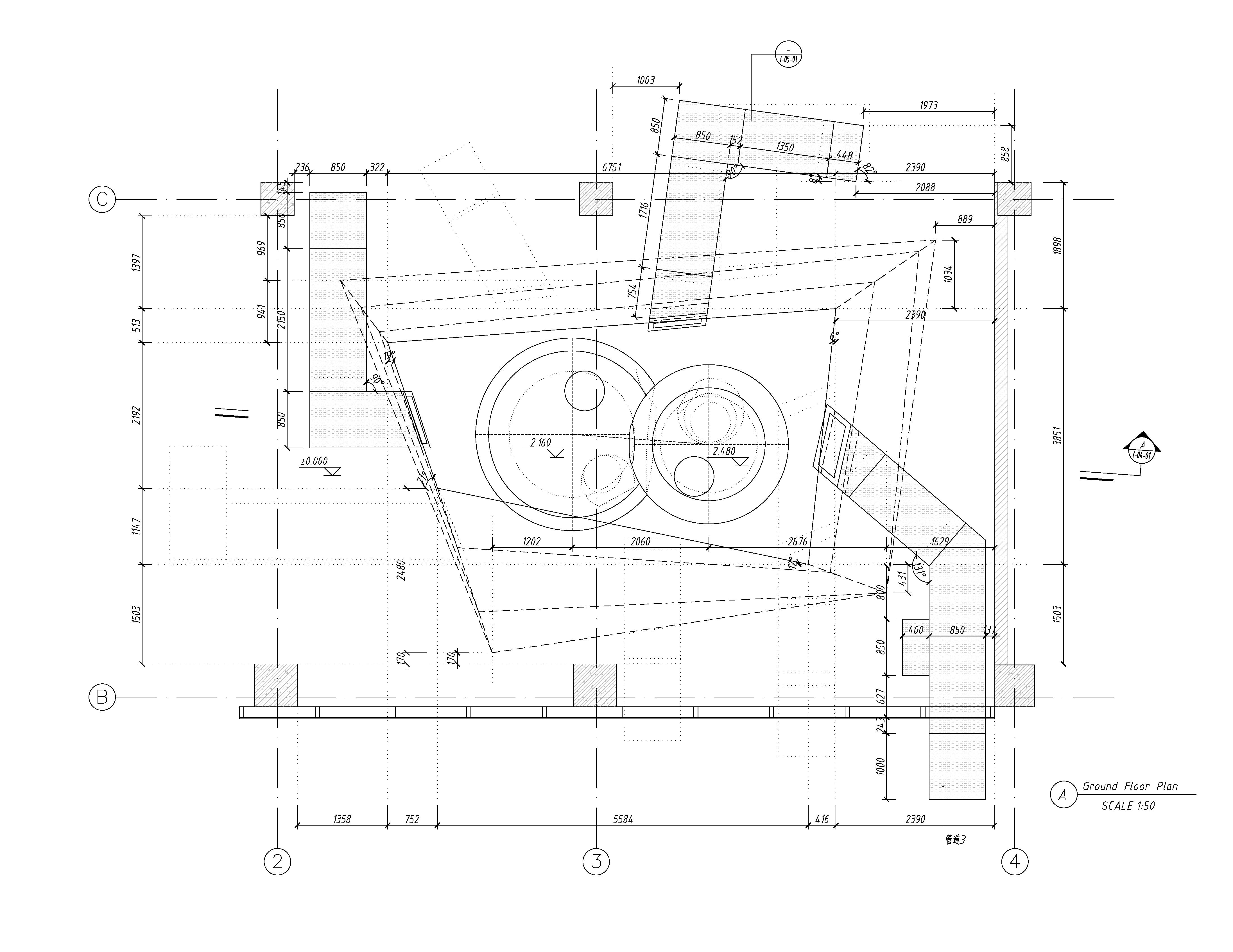
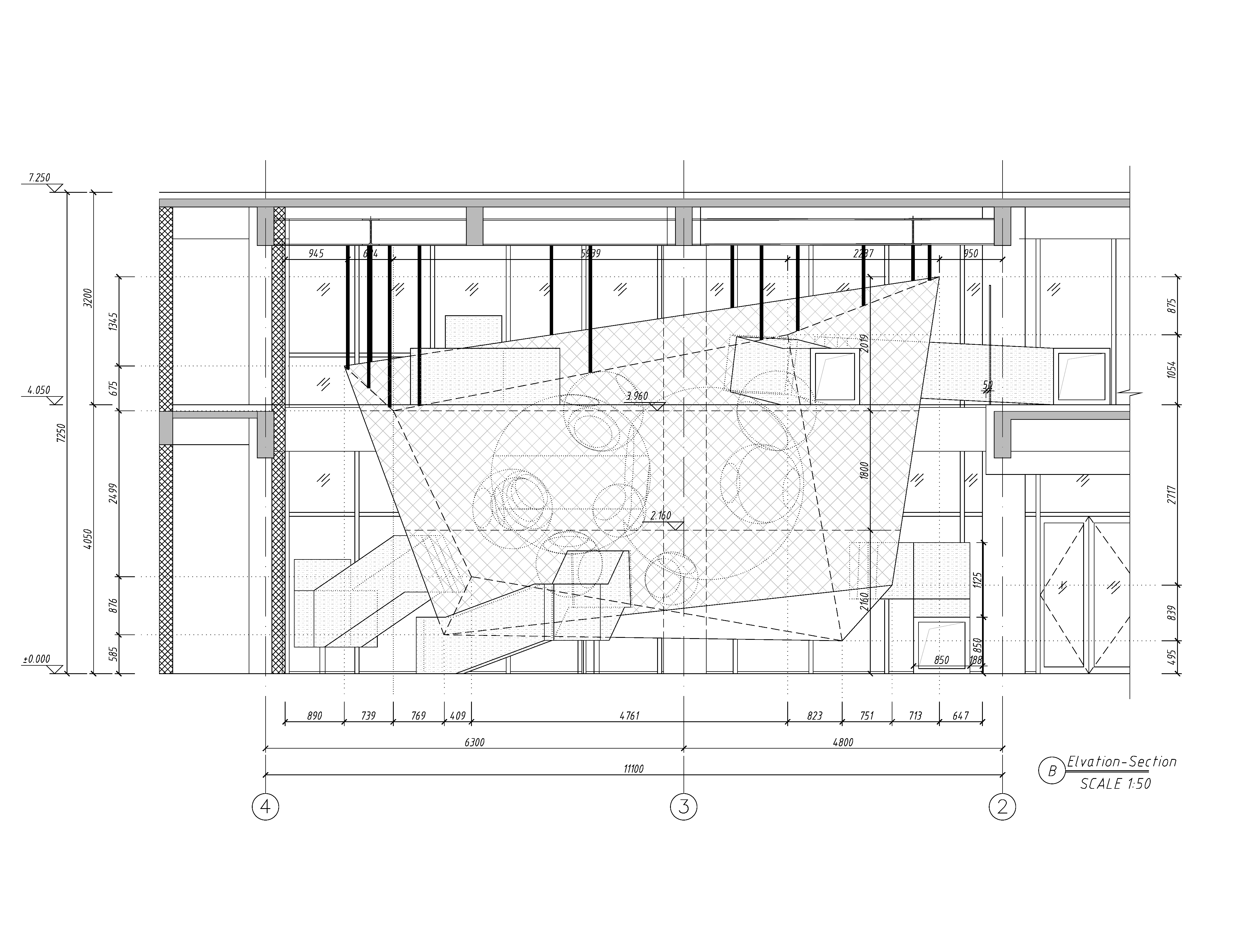
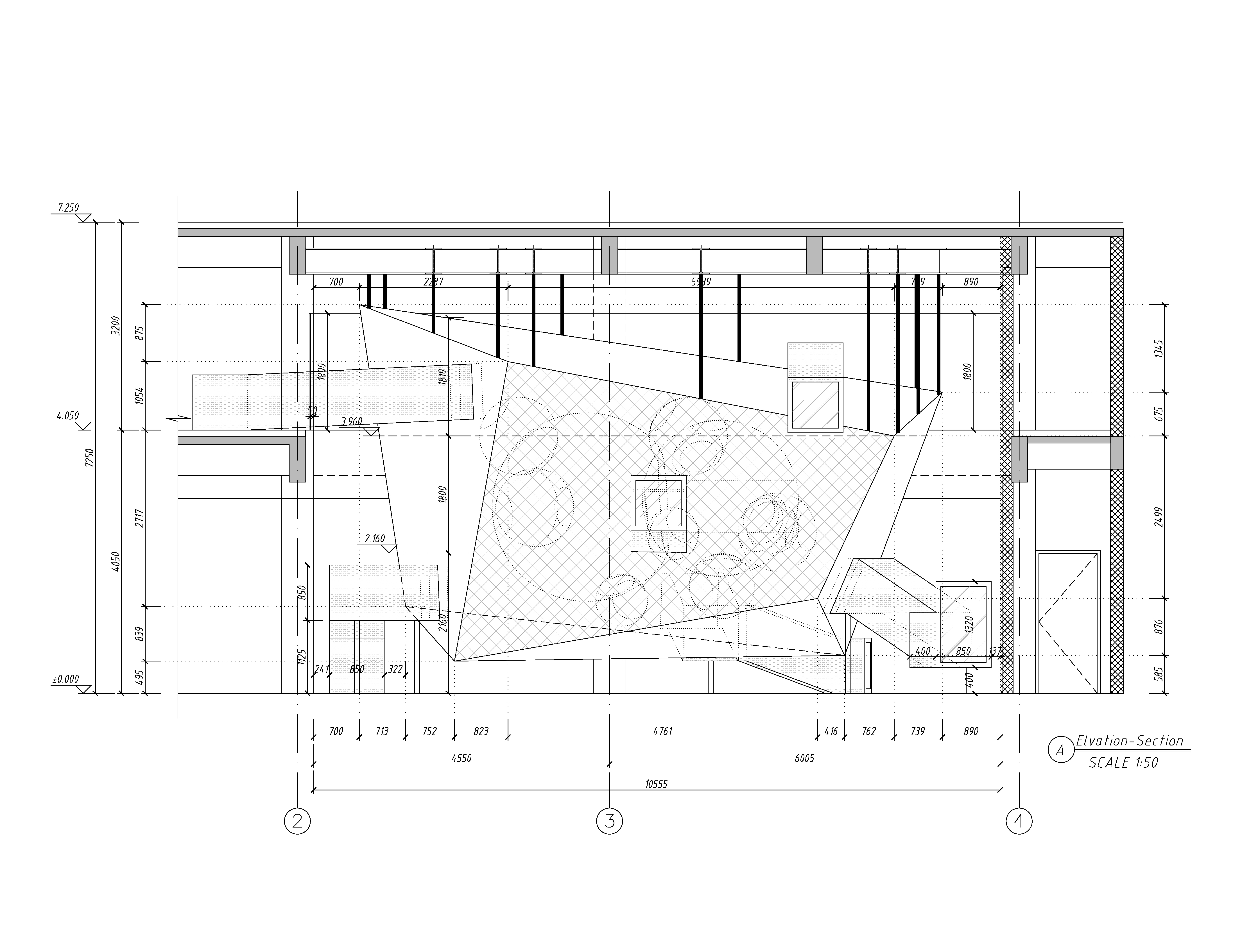
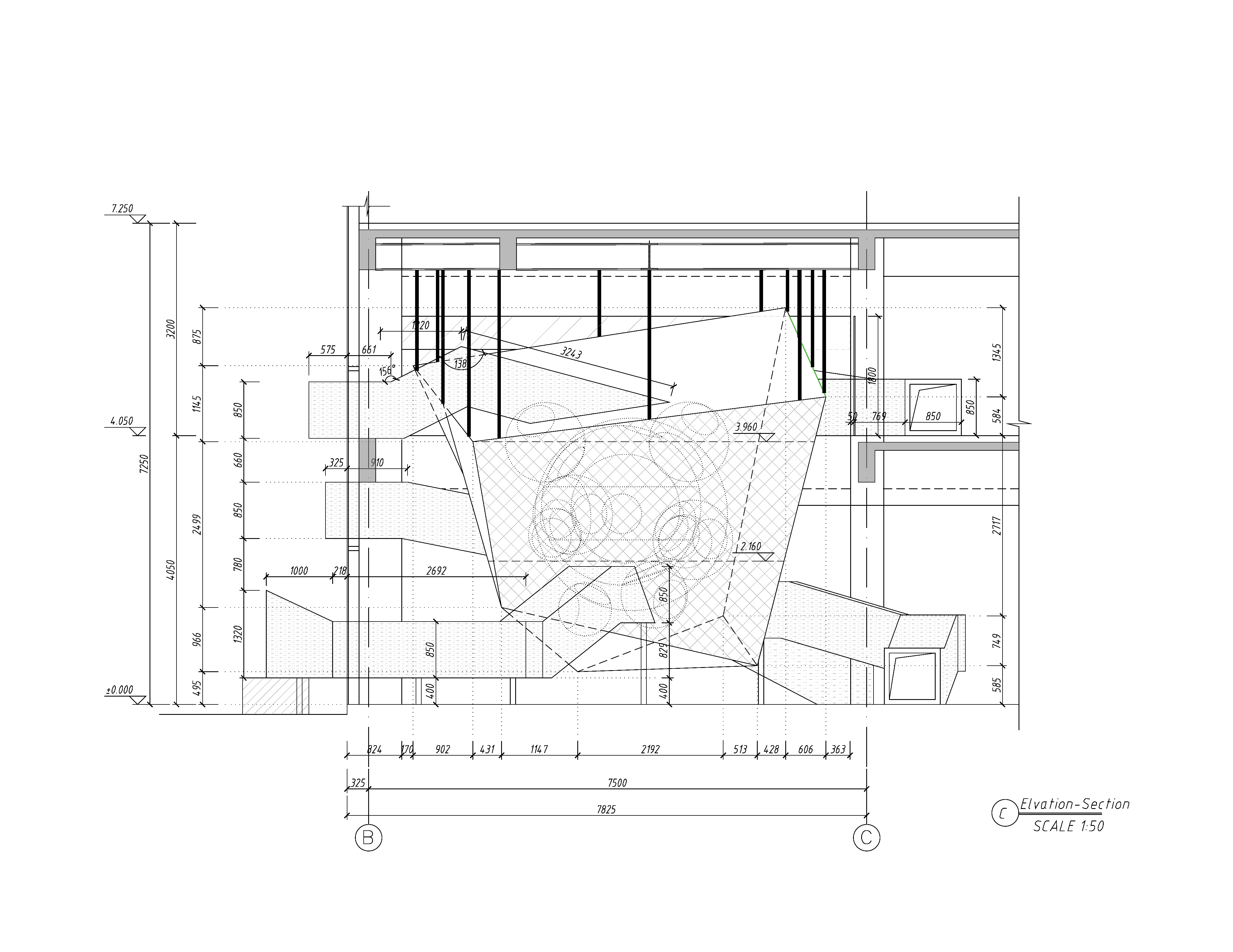
Inspiriert vom »Climbing Park of Luofu Mountain« in der südchinesischen Provinz Guangdong, hat unarchitecte eine 100m2 große Lobby eines Kindergartens in einen Abenteuerspielplatz verwandelt. Der Name ist Programm: »Walking Box« ist eine fünfteilige Installation, die Kinder durch unterschiedliche Formen, Muster und Materialien eine weniger alltägliche Raumwahrnehmung beibringen soll.
Wie bei einer Schatzsuche auf dem Dachboden erkunden die Kinder die Installation. Leicht verwinkelte Eingänge führen in die »Walking Box« hinein. Eine unregelmäßig geformte Box dient als Hauptkörper der Stahlstruktur, die mit geflochtenem Polyester überzogen ist. Innerhalb dieser Box befinden sich zehn eingerastete Kugeln unterschiedlicher Größen als Unterschlüpfe für die Kinder. In Analogie zur Schrägseilbrücke stützen und stabilisieren mehrere Stahlseile die Konstruktion.
Die gekrümmte Box, die verwinkelten Eingänge, der schwebende Kugelkomplex, die herunterhängenden Seile - jedes dieser Elemente der »Walking Box« kann auf eine pädagogische Weise genutzt werden. So entsteht ein vielfältiger Erlebnisraum, in dem sich die Sinneswahrnehmung von Kindern entfalten kann.












