// Check if the article Layout ?>
Gerahmte Aussicht: Villa K von Paul de Ruiter
Pieter Kers
Leicht und schwer, offen und geschlossen, Glas und Beton – ein Wechselspiel, das Paul der Ruiter immer wieder aufs Neue unter Beweis stellt. Priorisiert nach Lichtbedarf und Nutzung werden Nebenräume im Hang untergebracht und ermöglichen dem Wohnbereich so die gewünschte Transparenz und Aussicht.
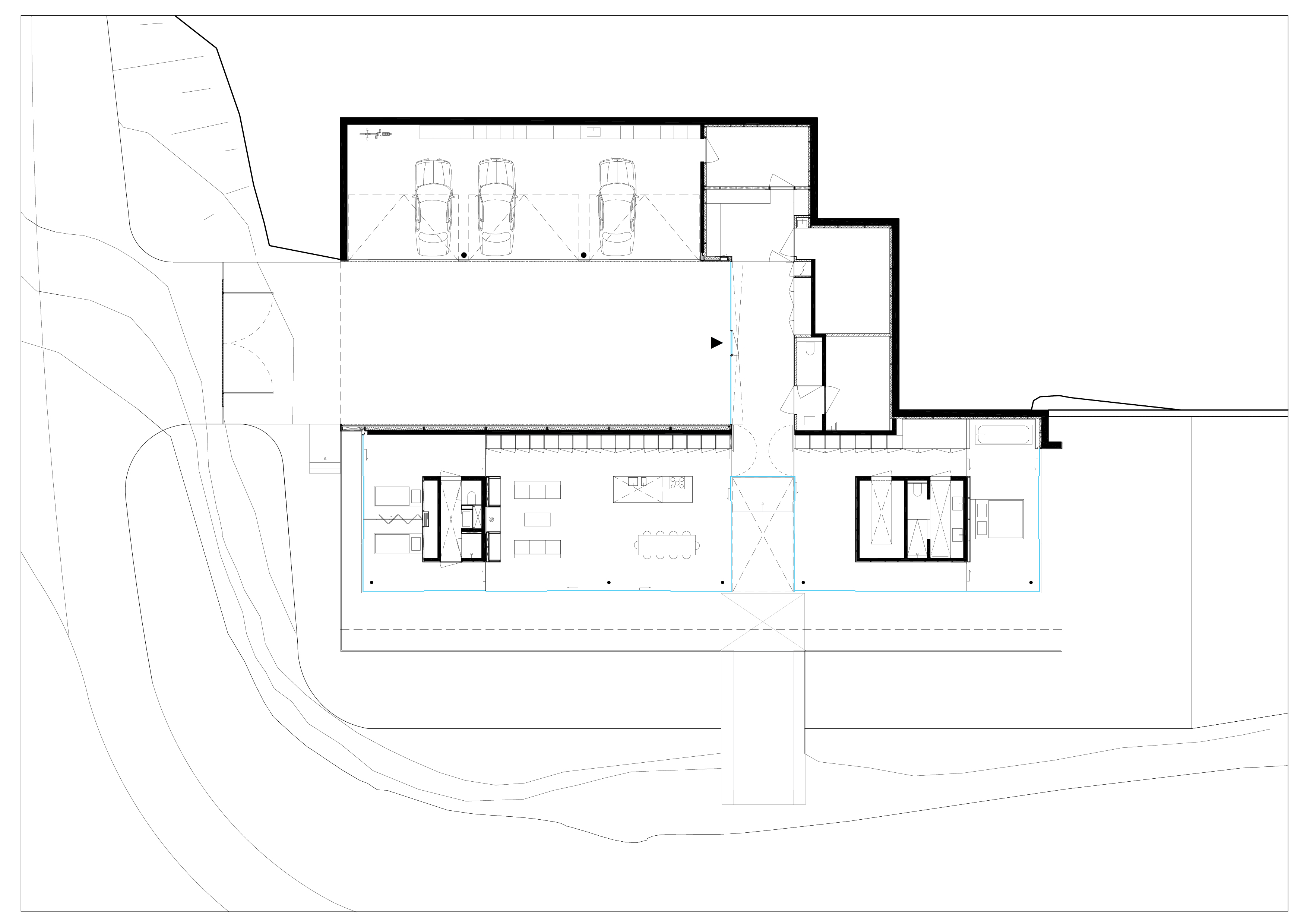
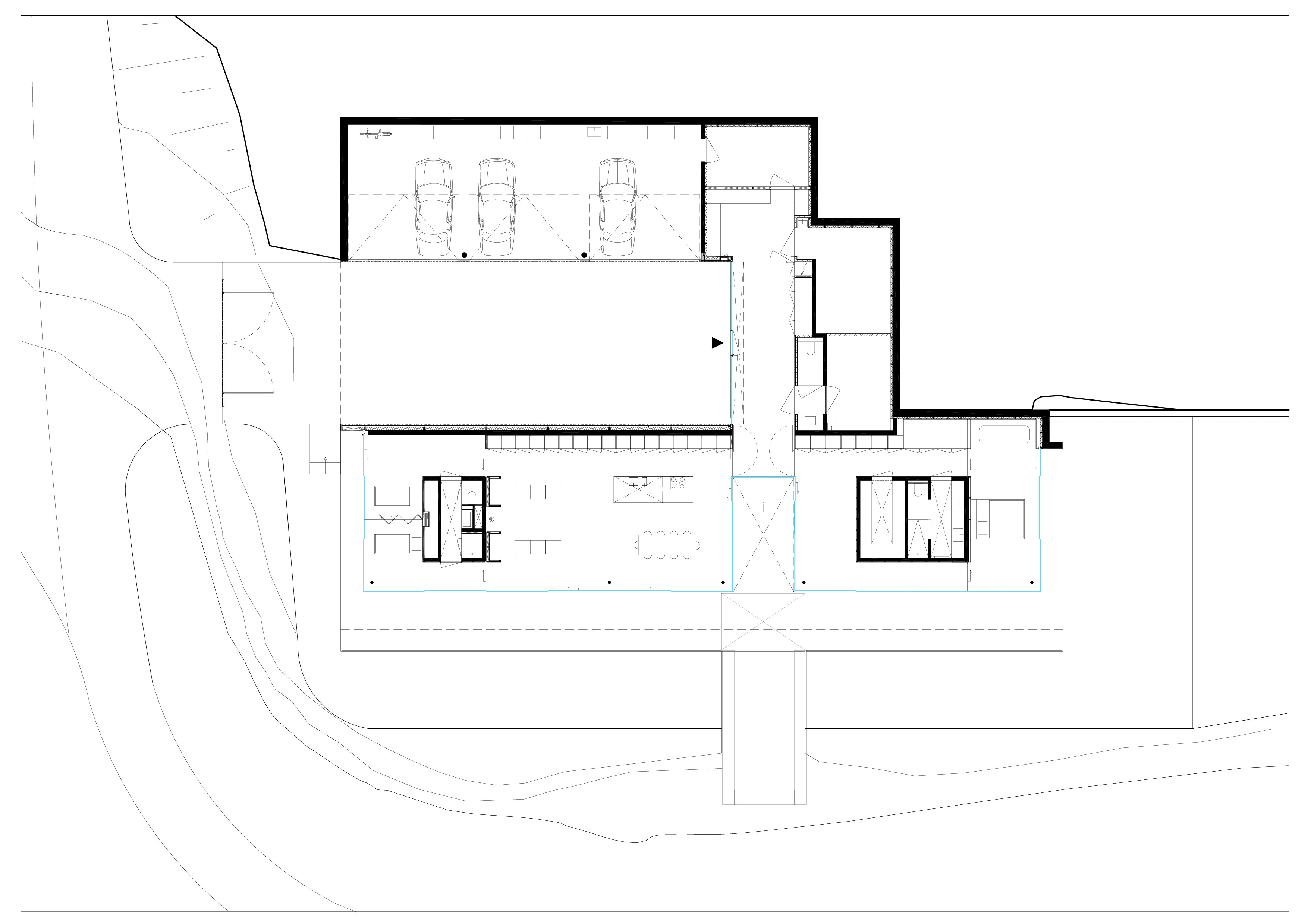
Betreten wird die Villa von der Hangseite im Norden aus. Dort situieren sich auch Nutzräume wie Speisekammer, Lager-, Technik- und Waschräume und eine Garage für stolze sechs Autos. Wohn- und Schlafzimmer orientieren sich nach Süden und werden von einer U-förmigen Terrasse eingerahmt. Beschränkt auf die Materialien Glas, Stahl und Beton formuliert das Gebäude einen bewussten Kontrast zur Umgebung, ohne den Hang zu dominieren – dafür sorgen seine geringe Höhe und umlaufende Transparenz: Die raumhohe Glasfassade mit großen Fensterformaten und minimaler Unterteilung öffnet den Blick über die gesamte Landschaft. Die Poolanlage kreuzt Terrasse und Villa zwischen Wohn- und Schlafbereich und scheint geradezu durch das Gebäude in den Hang »hineinzufließen«. Eines der Betonelemente, die den Terrassenboden ausbilden, lässt sich hydraulisch nach oben schieben, sodass der Pool benutzbar gemacht wird und die Terrasse als Einheit bestehen bleibt.
Solarzellen versorgen die Villa mit Strom und auch die Anordnung der Räume ist energetisch sinnvoll. Während sich die Südseite durch die Sonne erwärmt, sammelt sich die kalte Luft im kühlen Souterrain. Ein Wärmetauscher sammelt diese und transportiert sie zur Wärmepumpe. Diese speichert kalte Luft zum Kühlen im Sommer und warme Luft zum Heizen in der Winterzeit.
Betreten wird die Villa von der Hangseite im Norden aus. Dort situieren sich auch Nutzräume wie Speisekammer, Lager-, Technik- und Waschräume und eine Garage für stolze sechs Autos. Wohn- und Schlafzimmer orientieren sich nach Süden und werden von einer U-förmigen Terrasse eingerahmt. Beschränkt auf die Materialien Glas, Stahl und Beton formuliert das Gebäude einen bewussten Kontrast zur Umgebung, ohne den Hang zu dominieren – dafür sorgen seine geringe Höhe und umlaufende Transparenz: Die raumhohe Glasfassade mit großen Fensterformaten und minimaler Unterteilung öffnet den Blick über die gesamte Landschaft. Die Poolanlage kreuzt Terrasse und Villa zwischen Wohn- und Schlafbereich und scheint geradezu durch das Gebäude in den Hang »hineinzufließen«. Eines der Betonelemente, die den Terrassenboden ausbilden, lässt sich hydraulisch nach oben schieben, sodass der Pool benutzbar gemacht wird und die Terrasse als Einheit bestehen bleibt.
Solarzellen versorgen die Villa mit Strom und auch die Anordnung der Räume ist energetisch sinnvoll. Während sich die Südseite durch die Sonne erwärmt, sammelt sich die kalte Luft im kühlen Souterrain. Ein Wärmetauscher sammelt diese und transportiert sie zur Wärmepumpe. Diese speichert kalte Luft zum Kühlen im Sommer und warme Luft zum Heizen in der Winterzeit.





















