// Check if the article Layout ?>
Geschickt verhüllt: Verpackungsladen in Paris
Foto: Shizuka Kurokawa
Jede Falte im Papier der Verpackung gilt als Ausdruck des Herzens, das Band rundherum als Verbindung zwischen Schenker und Beschenktem. Ursprünglich handelt es sich bei Origata um einen kulturellen Ritus, der tief in der japanischen Kultur verwurzelt ist. Er entstand aus dem Umhüllen der den Göttern dargebrachten Opfergaben im Shinto. Noch heute können Mitglieder auf diese Weise ihren Geschenken das gewisse Etwas verleihen.
Der Architekt Fumihiko Sano geht auf diesen traditionsbehafteten Hintergrund ein und gestaltet den knapp 16 Quadratmeter kleinen Verpackungsladen »MIWA« in respektvoller Anlehnung an die, mit dem Verpackungskult eng verwobene, Shinto-Kultur. Über zahlreiche Elemente, die im Shinto von Bedeutung sind, schafft er den Brückenschlag von Japan direkt in den Laden nach Paris.
Die Straße ist gesäumt von größeren Geschäften, die die Aufmerksamkeit der Passanten auf sich ziehen. »MIWA« hingegen ist von außen fast nicht zu erkennen. Eine unscheinbare Holztür mit einem kleinen Vordach und einem abgehängten, in der Mitte gerafften Tuch – hinter diesem Eingang verbirgt sich der rituelle Ort.
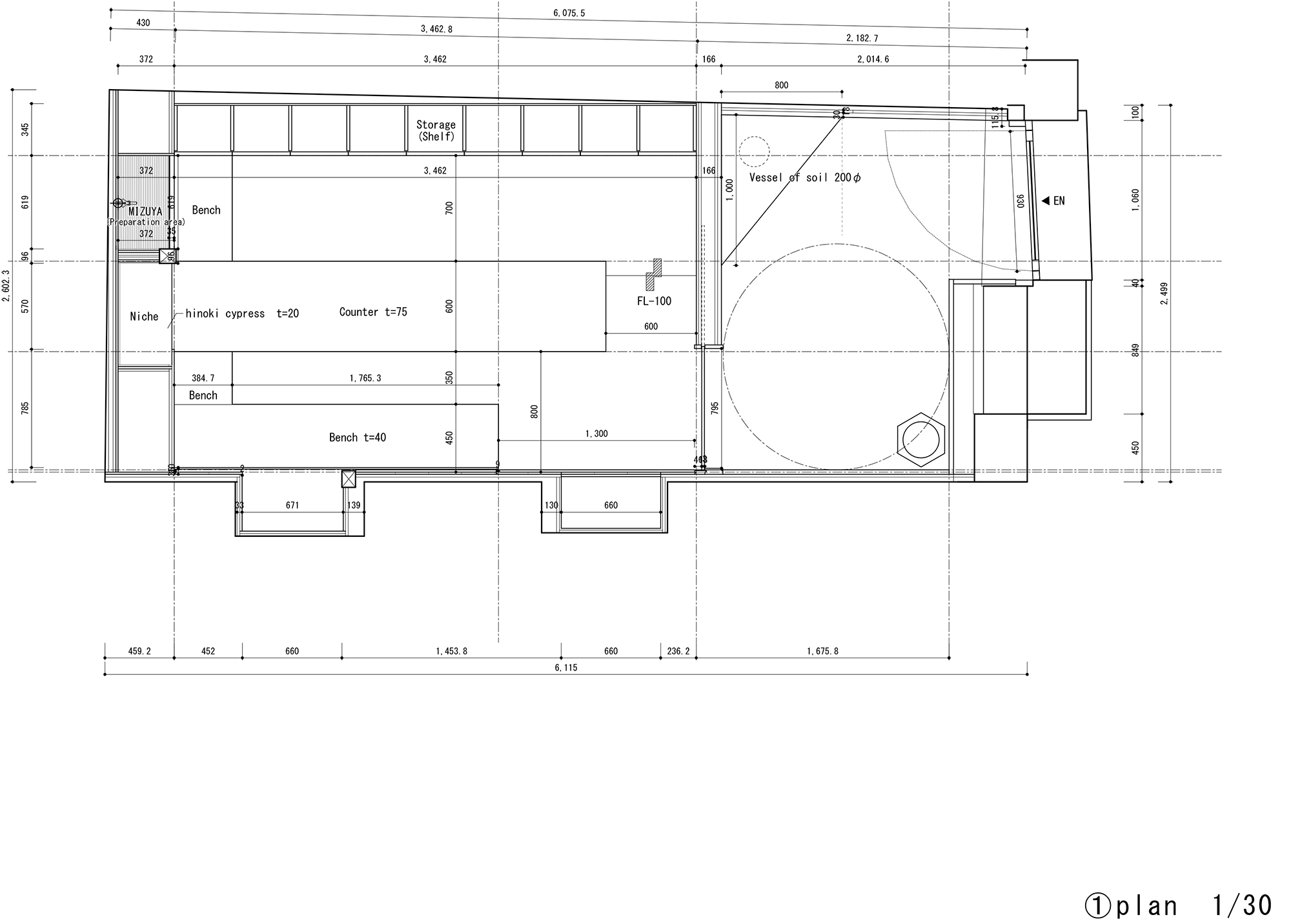
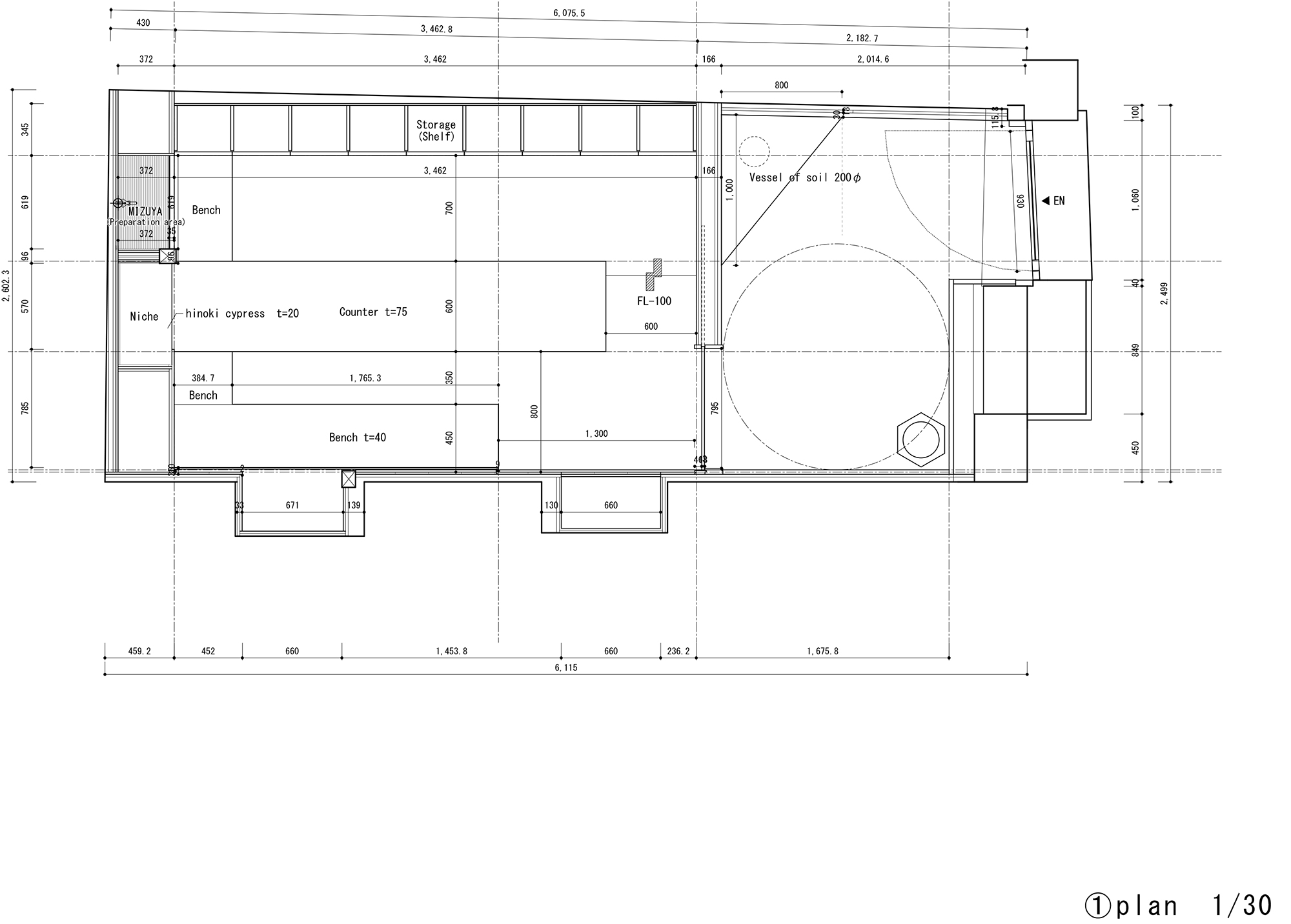
Der rechteckige Grundriss gliedert sich in ein winziges Vorzimmer und den dahinter liegenden Raum, in dem verpackt wird. Schon beim Betreten des Ladens bietet der düstere Vorraum einen mystischen, geheimnisvollen Empfang – umhüllt von gebrochenem, schwarzem Schieferstein; er stammt aus einer zerstörten Erdbebenregion in Japan und soll an dessen Betroffene erinnern und auf diese Weise einen Bezug zum Ursprungland des Origata herstellen.
Ansonsten ist das Innere geprägt von Attributen aus dem Shinto. Es spielt zum Beispiel die Zypresse eine zentrale Rolle. Sie ist mit der Kultur insofern verbunden, als sie primär für den Bau der heiligen Schreine Verwendung fand. Über eine Schiebetür gelangt man von dem dunklen Empfangszimmer weiter in den Hauptraum. Sämtliche Wände, sowie die Decke sind hier in Zypressenholz gekleidet, der Boden ist erneut in schwarzem Schiefer ausgeführt.
Rund um einen zentralen Tisch gibt es Bänke, um den Verpackungszeremonien beizuwohnen. In die Wände eingelassen findet man zahlreiche, effektvoll beleuchtete Nischen, sowie Stauraum für das benötigte Material.












