// Check if the article Layout ?>
Gestapelte Inszenierung: Café Waveon an der koreanischen Küste
Foto: Kim Jaeyoon
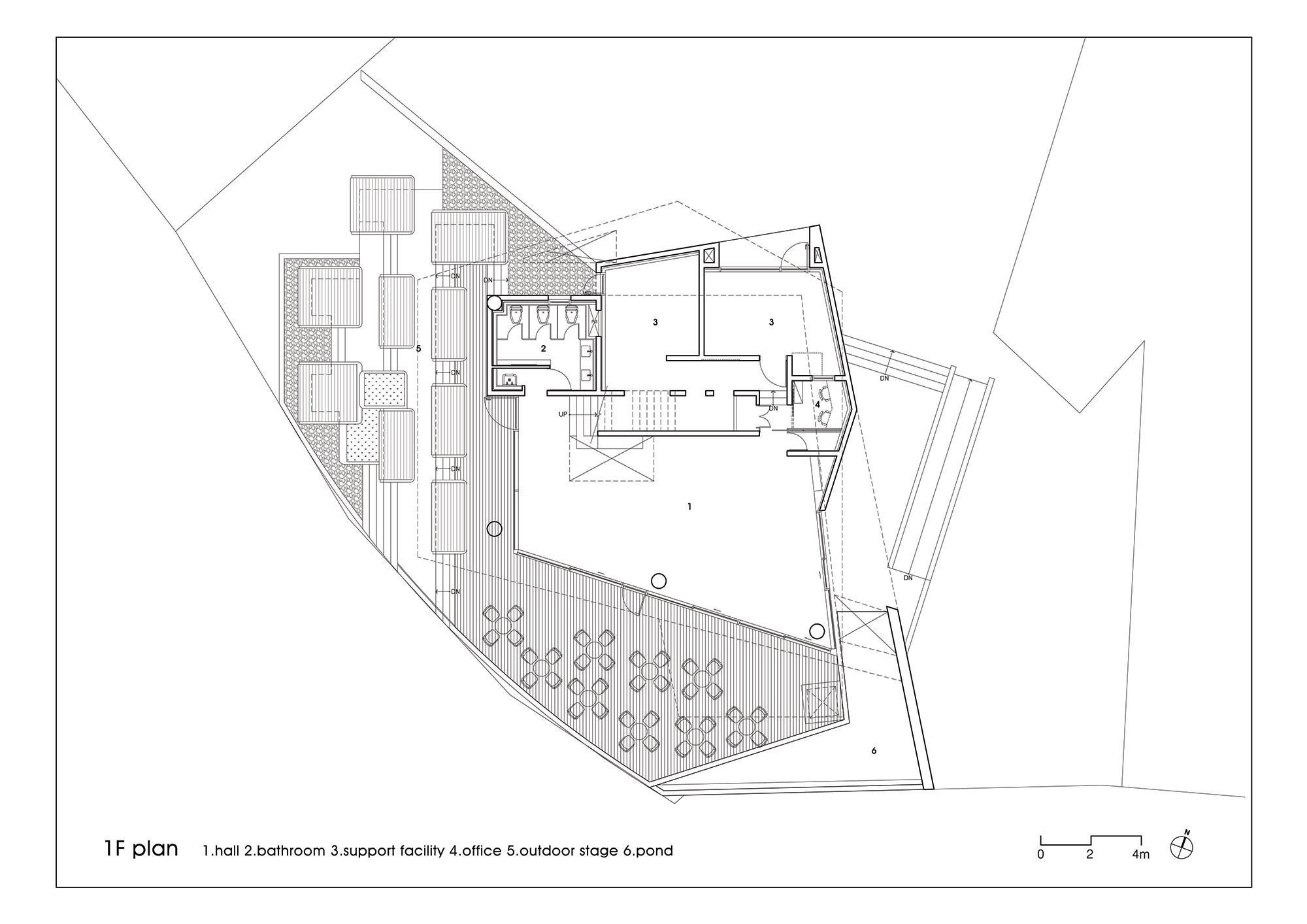
Die Ausrichtung des Grundstücks ist prädestiniert für eine Architektur, die sich die traumhafte Lage zunutze macht. Erschlossen über eine nordseitige Straße öffnet sich die Parzelle nach Süden und Osten zum offenen Meer hin. Der Baukörper orientiert sich an diesen Parametern: der Eingang liegt im Norden, während es in Richtung Küstenlinie liebevoll gestaltete Außenbereiche gibt.
Der Entwurf lebt von der gezielten Inszenierung der malerischen Landschaft, in die er sich einfügt. Er ordnet sich dieser dabei in keinster Weise unter, sondern stellt sich ihr vielmehr selbstbewusst entgegen. Ein Umgang, der sich für die Interaktion mit der kraftvollen Landschaft, mit ihren zum Teil schroffen Felsen, als perfektes Mittel für ein stimmungsvolles Ambiente erweist.
Eckig und kantig zeichnet sich das Café Waveon durch seine lebendigen Ansichten aus. Diese scheinen mit der Küstenlinie zu korrespondieren. Wie unabhängige Körper stapeln sich die einzelnen Geschosse auf drei Ebenen übereinander und kreieren dabei unterschiedlich ausgeformte Auskragungen und Außenflächen. Stets darauf bedacht, die Sichtbezüge nach draußen zu maximieren. Anstatt einer großen Terrasse kommen im Freien »Pyeongsangs«, traditionelle, pritschenähnliche Holzmöbel, zum Einsatz. Sie werden zu Inseln der Entspannung und des Austauschs - immer vor dem Hintergrund der malerischen Kulisse und dem Rauschen des Meeres.
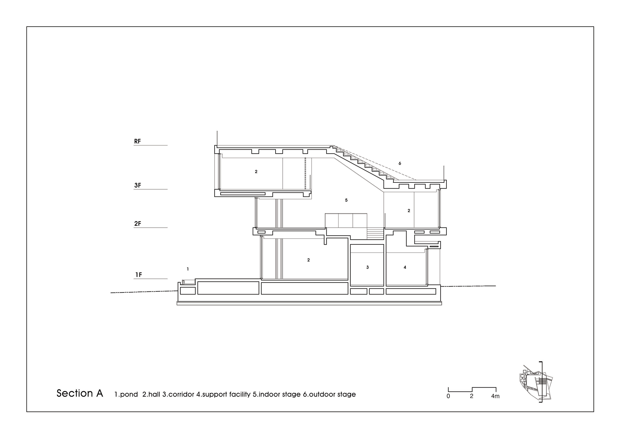
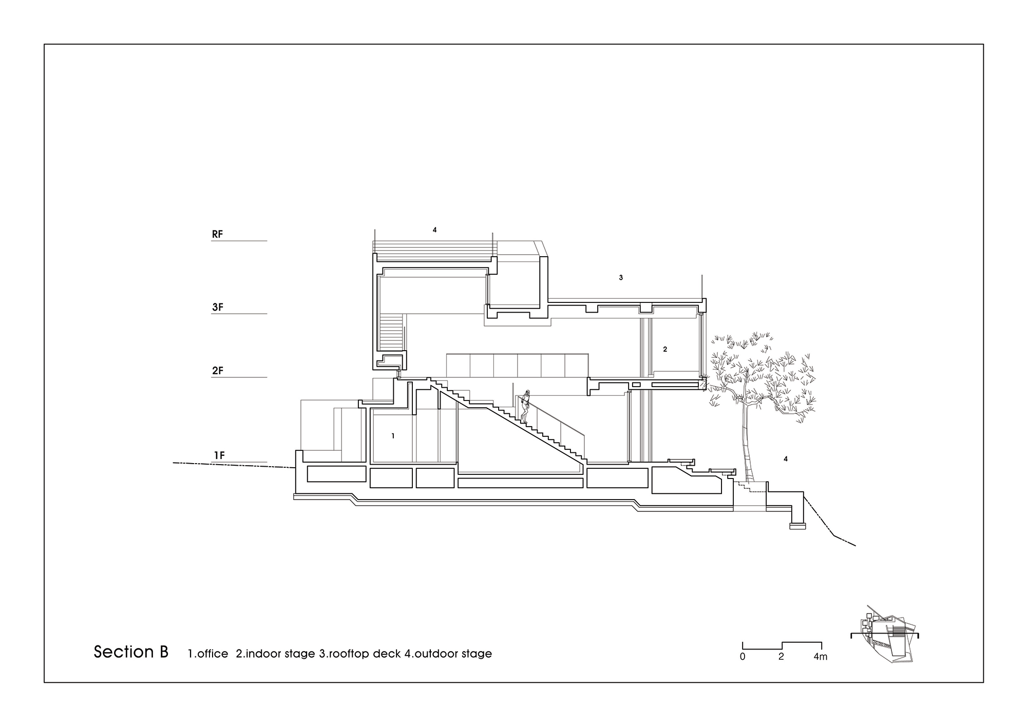
Die gestaffelte Gliederung der Außenbereiche findet sich auch in den Innenräumen wieder. Sämtliche Niveaus sind offen gestaltet und ermöglichen Blickbezüge quer durch den Bau und vor allem in die Natur hinaus. Im Erdgeschoss gibt es eine große Theke, die übrigen Bereiche verflechten sich rund um eine zentral positionierte Treppe. Die einzelnen Zonen gehen fließend ineinander über.
Ein schlichter Mix aus Oberflächen in Form von Sichtbetonwänden und Steinböden verschiedenster Grauabstufungen und Holz- bzw. Glaselementen zieht sich durch den ganzen Bau. Einzig die Sitzmöglichkeiten aus Holz und die Terrassenflächen heben sich farblich ab. Die Decken werden von rechteckigen Aussparungen strukturiert, in die die Leuchtmittel eingelassen sind.
Abgerundet wird das Café von einer Dachterrasse, die man über eine breite Außentreppe, die ihrerseits Teil der Aussichtsplattform wird, betritt. Nahezu unsichtbare Absturzsicherungen in Glas ermöglichen ungehinderte Panoramablicke bis zum Horizont, in denen man sich bei einer Tasse frisch gebrühtem Kaffee getrost verlieren kann.
























