Bürgernah statt autogerecht
Gesundheitszentrum in Kitakami von UtA/Unemori teco Associates
© Kai Nakamura
Im japanischen Kitakami haben UtA/Unemori teco Associates ein Park- und Geschäftshaus zum Gesundheitszentrum mit angeschlossenem Indoor-Spielplatz umgestaltet. Die 90 000-Einwohner-Stadt beweist damit Bürgernähe – und die Architekten zeigen, welch räumlicher Mehrwert sich auch einem städtebaulich hoch problematischen Gebäudetypus entlocken lässt.


© Kai Nakamura
„Fußgänger unerwünscht“ lautete die unausgesprochene Botschaft des Geschäftshauses in Kitakami, einer 90 000-Einwohner-Stadt im Norden von Japans Hauptinsel Honshu, vor seinem Umbau durch UtA/Unemori teco Associates. Nur eine Tordurchfahrt und die Einfahrt zum Parkhaus in den Obergeschossen öffneten sich in der Fassade, die wenigen Fensteröffnungen im Erdgeschoss waren mit Folie beklebt und dadurch undurchsichtig gemacht.
Nun haben die Architekten, ein Joint-Venture der Büros Unemori Architects und Teco, die unteren beiden Etagen des achtgeschossigen Baublocks von 1999 radikal umgestaltet und zur Straße geöffnet. „Bürger willkommen“ suggerieren das große wellenförmige Vordach und die zweigeschossige Glasfront mit ihren großen Glasschiebetüren, hinter der sich die Büro- und Kundendiensträume des städtischen Gesundheits- und Familienamts verbergen.
Und auch diese sind alles andere als behördenmäßig angelegt. Die Architekten nutzten die großzügige Geschosshöhe von fast 5 m, um die Wellendecke auch im Inneren fortzuführen. Im Erdgeschoss besteht sie aus transluzenten, 1,5 mm starken Polycarbonat-Wellplatten mit effektvoller Hinterleuchtung, im ersten Obergeschoss aus reflektierendem Wellblech, das von unten angestrahlt wird.


© Kai Nakamura
Quer durch die zweigeschossige Eingangshalle spannt sich eine – natürlich ebenfalls als Welle angelegte – Brücke mit Netzbespannung, die als Spiellandschaft für die wartenden Kinder dient.
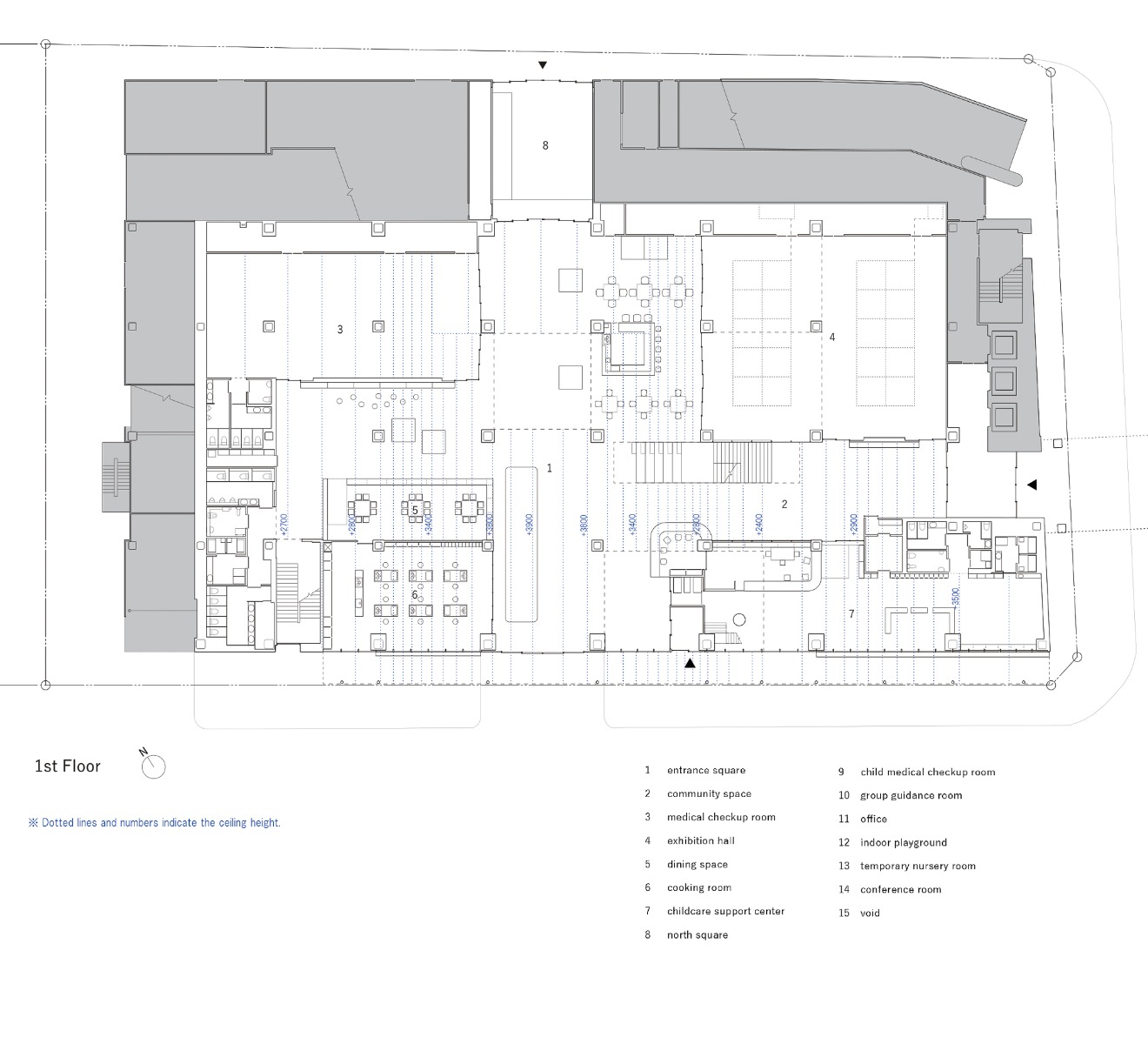
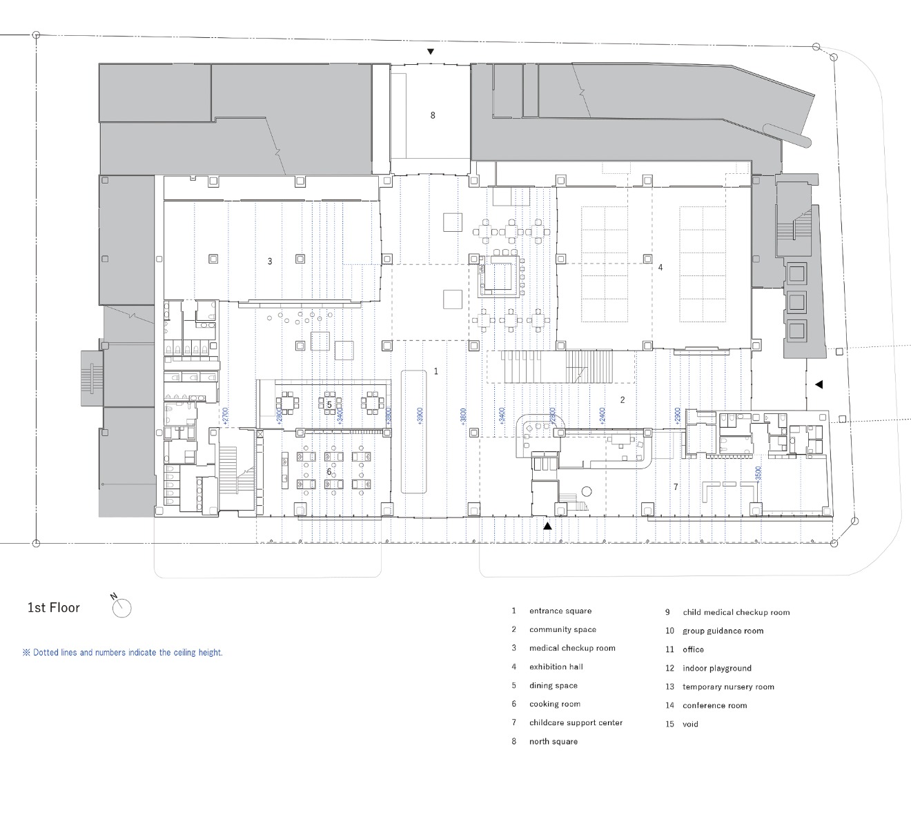
Der Kunde steht hier klar im Vordergrund, die städtischen Angestellten arbeiten auf vergleichsweise geringer Fläche in einem Großraumbüro im rückwärtigen Teil des Erdgeschosses. Weitere Bestandteile des Raumprogramms sind Konferenz- und Seminarräume, eine Ausstellungsfläche, Behandlungszimmer für Kinder und Erwachsene Patienten sowie eine Küche im Erdgeschoss, wo Kochkurse für Eltern und Kinder stattfinden.
BLINDTEXT Mehr dazu in Detail 3.2022 und in unserer Datenbank Detail Inspiration.


© Kai Nakamura


© Kai Nakamura
Lorem Ipsum: Zwischenüberschrift
Architektur: UtA/Unemori teco Associates
Bauherr: Stadt Kitakami
Standort: 269, Shinkokucho, Kitakami, Iwate 024-0092 (JP)
Tragwerksplanung: Design Office MOMI
TGA-Planung: ZO Consulting Engineers
Bauunternehmen: Hazama Ando Corporation, Obara Construction



















