Im Geist der Klassischen Moderne
Gigon/Guyer erweitern Josef Albers Museum in Bottrop
Erweiterungsbau des Josef Albers Museums Quadrat in Bottrop, © Stefan Müller, Berlin
Mit ihrem Erweiterungsbau führen Gigon/Guyer und PBR Planungsgruppe Rohling die Architektur des Josef Albers Museums Quadrat fort, ziehen aber auch Lehren aus den Schwächen des Bestands.


Nur vier große Fenster durchbrechen die dunkel eloxierte Aluminiumhülle des Gebäudes. © Stefan Müller, Berlin
Das Museum, das den Namen des aus Bottrop gebürtigen Malers Josef Albers (1888-1976) trägt, entstand in den 1970er- und 1980er-Jahren in zwei Bauetappen nach Plänen von Bernhard Küppers. Ein maßgeblicher Grund für den Neubau war die Schenkung von über 300 Werken Albers’ an dessen Geburtsstadt. Küppers’ Architektur ist den Prinzipien der Klassischen Moderne, insbesondere Mies van der Rohes Neuen Nationalgalerie in Berlin, verpflichtet. Sie hat mit dieser aber auch einige Schwächen gemein – etwa die großen Glasfassaden, durch die Seitenlicht hereinfällt, die ausschließlich künstlich zu belichtenden Innenbereiche und wenig Hängefläche für Bilder.
Ein Pavillon im Park
Damit standen implizit schon viele Anforderungen fest, die die Stadt an ihren jüngsten Erweiterungsbau stellte. Erstmals sollen damit nun größere Sonderausstellungen und die Albers-Dauerausstellung gezeigt werden können. Der Entwurf von Gigon/Guyer und der Planungsgruppe Rohling – Sieger eines nichtoffenen Realisierungswettbewerbs 2016 – glänzt äußerlich durch Nüchternheit.


Im Innenraum gibt es acht Ausstellungsräume. © Stefan Müller, Berlin
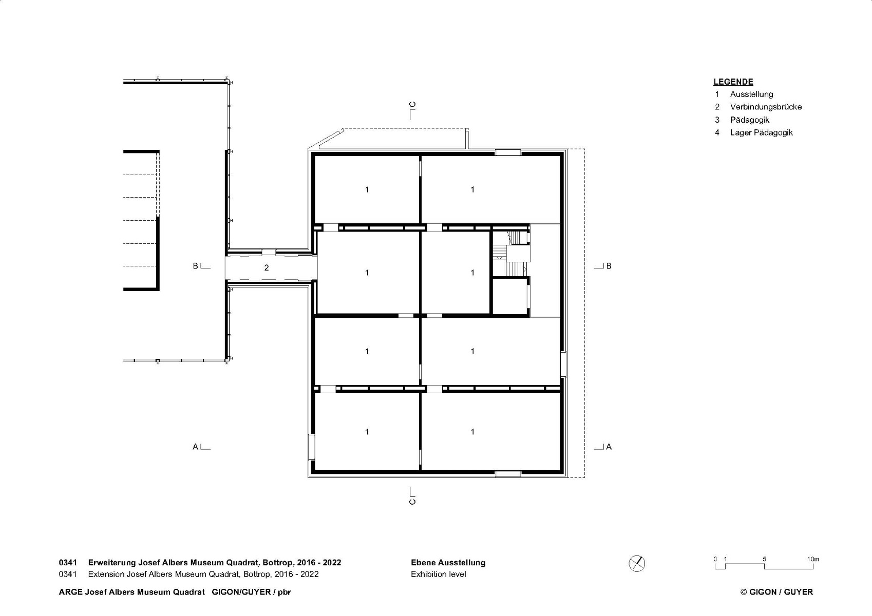
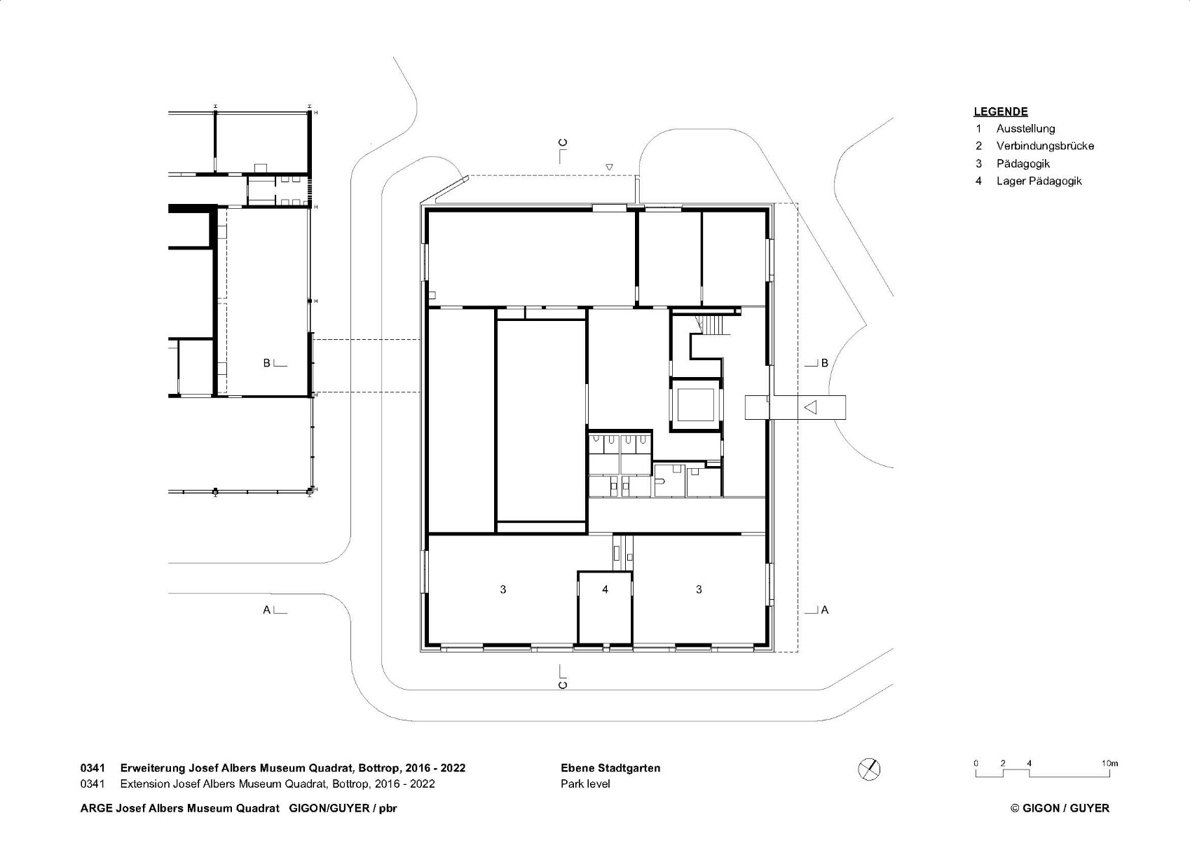
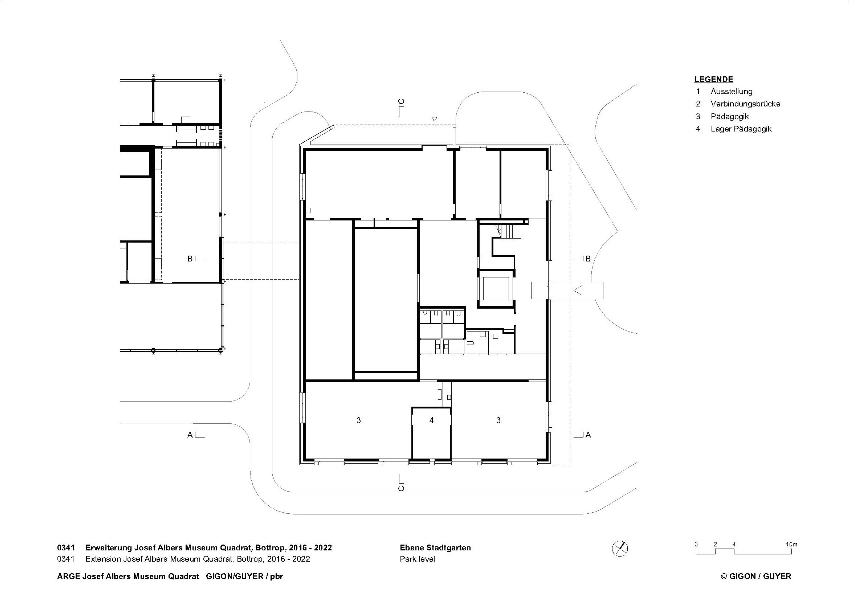
Ein 26 x 34 m großer Pavillon gesellt sich zu den vier bestehenden im Bottroper Stadtgarten. An den Bestand angebunden ist er über eine trapezförmige Brücke, die direkt in das obere Ausstellungsgeschoss führt. Dort verteilen sich acht Ausstellungsräume mit je 58 bis 112 m² Fläche. Eine Etage tiefer, auf Gartenniveau, sind zwei Räume für Museumspädagogik, ein Kunstdepot und ein Materiallager, eine Werkstatt und die Anlieferung untergebracht.


Das Sheddach bringt Tageslicht in die Ausstellungsräume. © Stefan Müller, Berlin


Ausstellungsräume, © Stefan Müller, Berlin
Sheddach bringt Tageslicht
Nur vier große Fenster durchbrechen die dunkel eloxierte Aluminiumhülle des Gebäudes. Tageslicht führt durch ein Sheddach ein, das von außen hinter der hochgezogenen Fassade verborgen bleibt. Nur auf der Nordostseite knickt diese am oberen Ende leicht nach außen vor, um mehr Licht durch das Dach fallen zu lassen. Eine ähnliche, doch abwärts geneigte Faltung in der Nordwestfassade bildet ein schützendes Vordach vor der Anlieferung.
Architektur: Annette Gigon / Mike Guyer Architekten
Bauherr: Stadt Bottrop, Fachbereich Immobilienwirtschaft
Standort: Im Stadtgarten 20, 46236 Bottrop (DE)
Baumanagement, Tragwerks- und TGA-Planung: pbr Planungsbüro Rohling
Lichtplanung: Institut für Tageslichttechnik Stuttgart
Bauphysik, Akustik: a°blue
Landschaftsarchitektur: Büro Drecker
Projektsteuerung: Kempen Krause Ingenieure



















