Bauen in den Alpen
Gläsernes Tor in die Allgäuer Alpen
Die Talstation der Nebelhornbahn, © Bruno Klomfar
Eine transparente Hülle aus hauchdünnem Glas legt sich über die 39 Bögen aus Brettschichtholz. Die Talstation der Nebelhornbahn von HK Architekten wird so zur offenen Pergola am neu gestalteten Dorfplatz von Oberstdorf.


Neuer Dorfplatz mit Servicegebäude und Talstation. © Bruno Klomfar
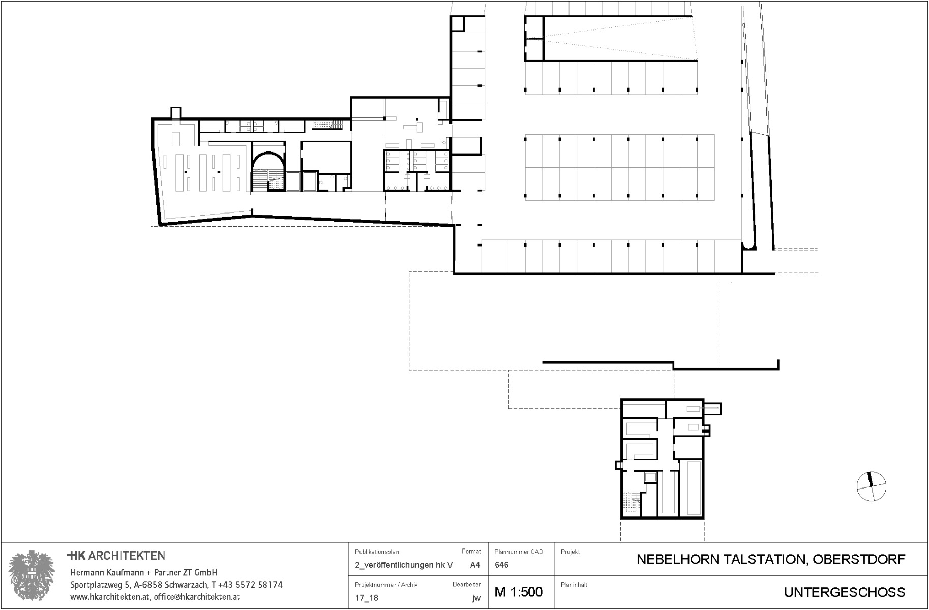
Bergbahnstationen sind meistens große Bauvolumen, die den Maßstab der kleinteiligen gewachsenen Dörfer sprengen. Der Blick in die Bergwelt öffnet sich nach längerem Schlangestehen im Dunkeln bei der Bergfahrt erst, wenn die Gondel das Gebäude verlässt. Nicht so bei der neuen Talstation der Nebelhornbahn in Oberstdorf.
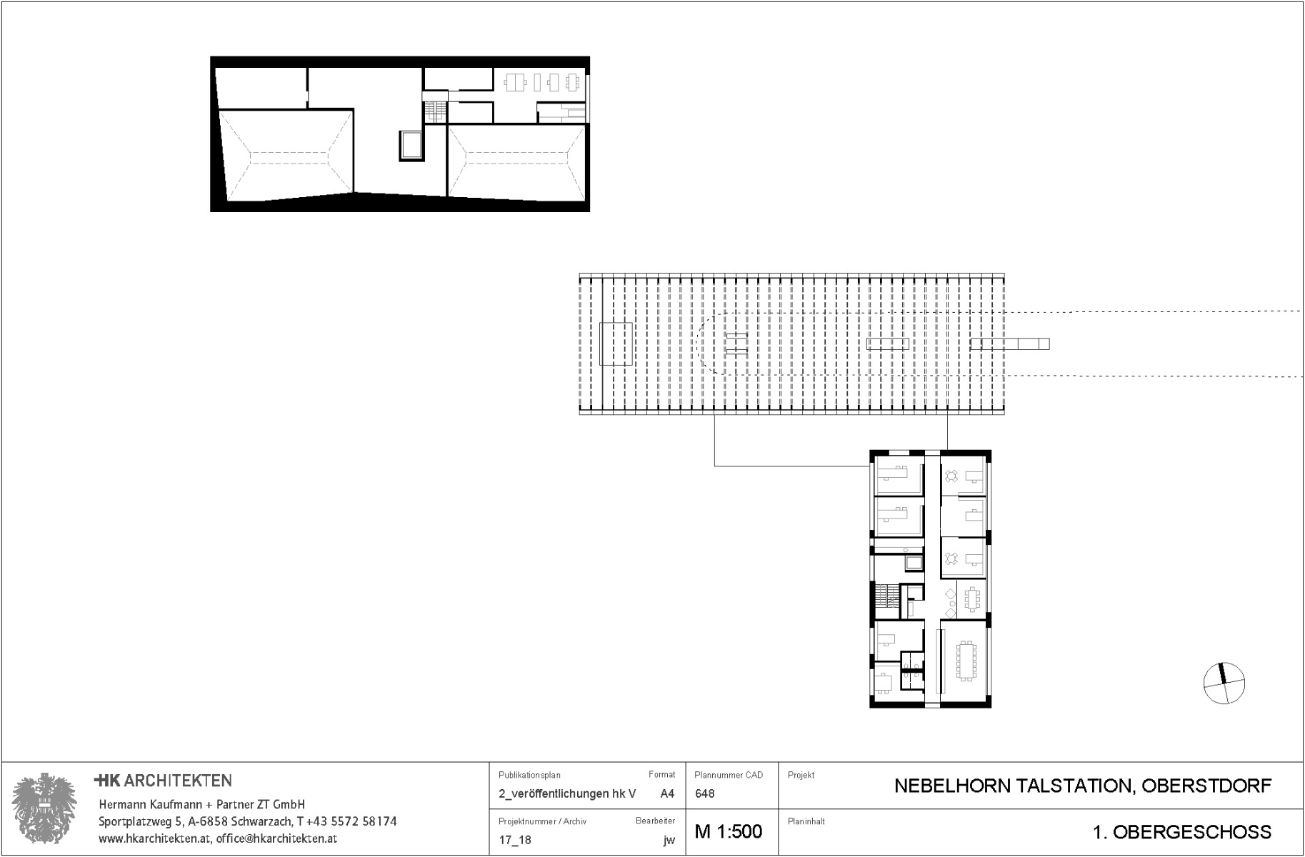
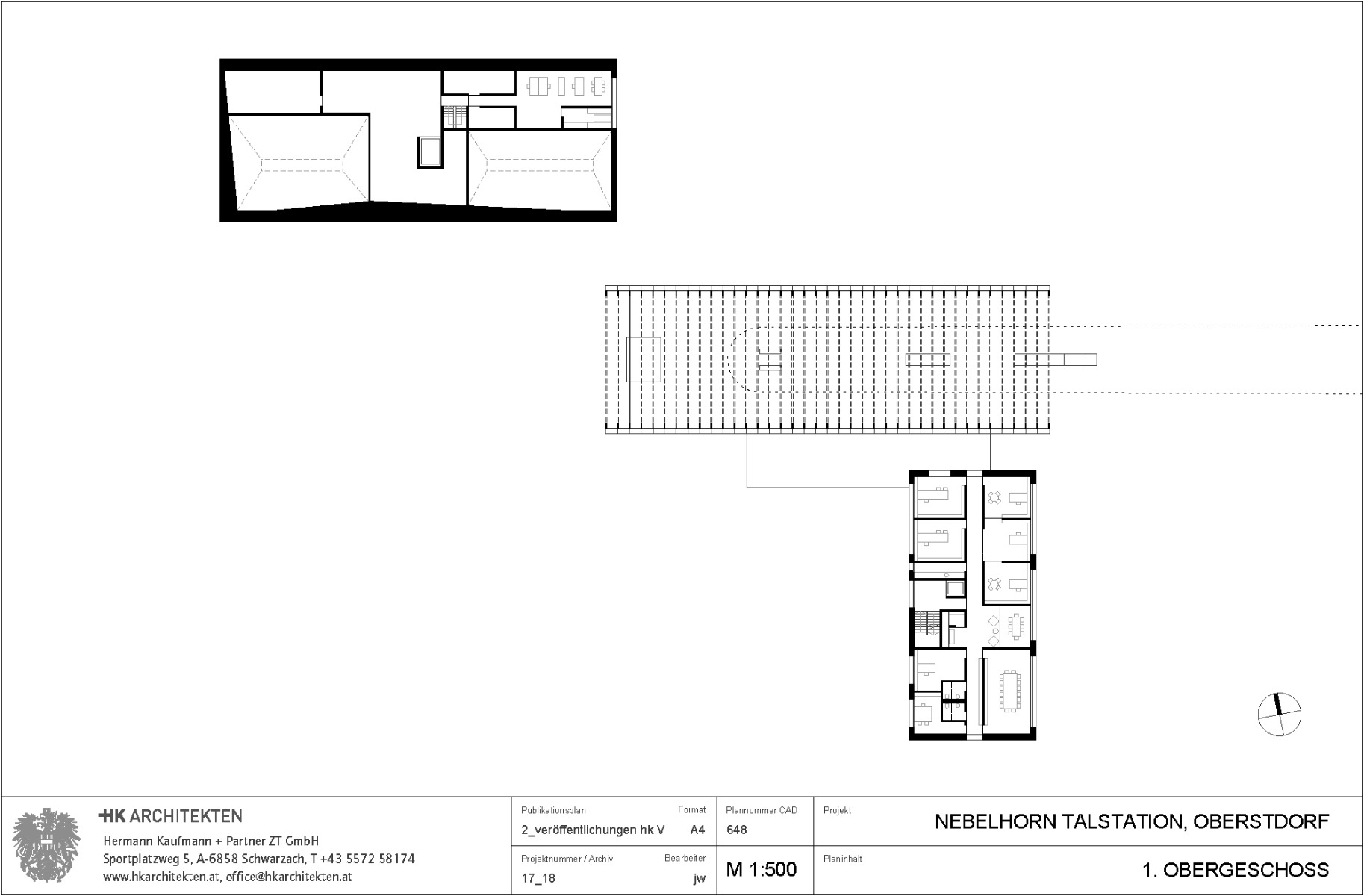
Hermann Kaufmann hat das umfassende Raumprogramm aus Station, Serviceräumen und Verwaltung in drei Baukörper aufgeteilt, die sich in ihren Dimensionen und Dachformen unaufdringlich in die Dorfstruktur einfügen. Sie sind um einen neuen Platz gruppiert, der gemeinsam mit den Holzbögen der Talstation einen attraktiven Auftakt zur Fahrt in die Bergwelt bildet: Ein Tor in die Allgäuer Alpen.


Talstation, © Bruno Klomfar
Wie eine offene Pergola wirkt das verglaste Tonnendach unter dem die Gondeln nach oben schweben. Das Servicegebäude mit einem Sportgeschäft und Verleih und Service von Ski- und Mountainbikeausrüstungen sowie das Verwaltungsgebäude mit Büros und Lagerflächen treten mit ihren traditionellen Satteldächern und Holzfassaden dezent in den Hintergrund.


Anschluss der Talstation ans Verwaltungsgebäude, © Bruno Klomfar
Vorbildlich sind auch der Verkehr und die Anordnung der zahlreichen Stellplätze gelöst. Der Parkplatz und das zweigeschossige Parkdeck liegen hinter den Gebäuden entlang des Gebirgsbachs und sind so vom Ort aus kaum sichtbar. Durch eine unterirdische Verbindung können die Bergsportler trockenen Fußes ins Untergeschoss des Servicegebäudes gelangen und dort aus einem der Schließfächer ihre Ausrüstung entnehmen.
Mehr dazu in Detail 5.2023 und in unserer Datenbank Detail Inspiration.
Architektur: HK Architekten
Bauherr: Nebelhornbahn-AG Oberstdorf (DE)
Standort: Nebelhornstraße 67, Oberstdorf (DE)
Baumanagement: Manfred Engstler
Tragwerksplanung: Merz Kley Partner
HLS-Planung: IBH Wolfgang Hirdina
Bauphysik: Hafner Weithas Bauphysik



















