// Check if the article Layout ?>
Glaskubus mit Kiemenatmung: Universitätsgebäude in Rotterdam
Foto: Tim van de Velde
Die Erasmus-Universität in Rotterdam (EUR) arbeitet schon länger daran, ihren Campus ökologisch umzugestalten. Bis 2025 sollen die CO2-Emissionen des Universitätsbetriebs gegenüber dem Basisjahr 1990 um 50% sinken; langfristig strebt die Universität einen komplett klimaneutralen Campus an. Zahlreiche Gebäude wurden in den letzten Jahren schon energetisch saniert und für einige davon Energiecontracting-Verträge unterzeichnet.
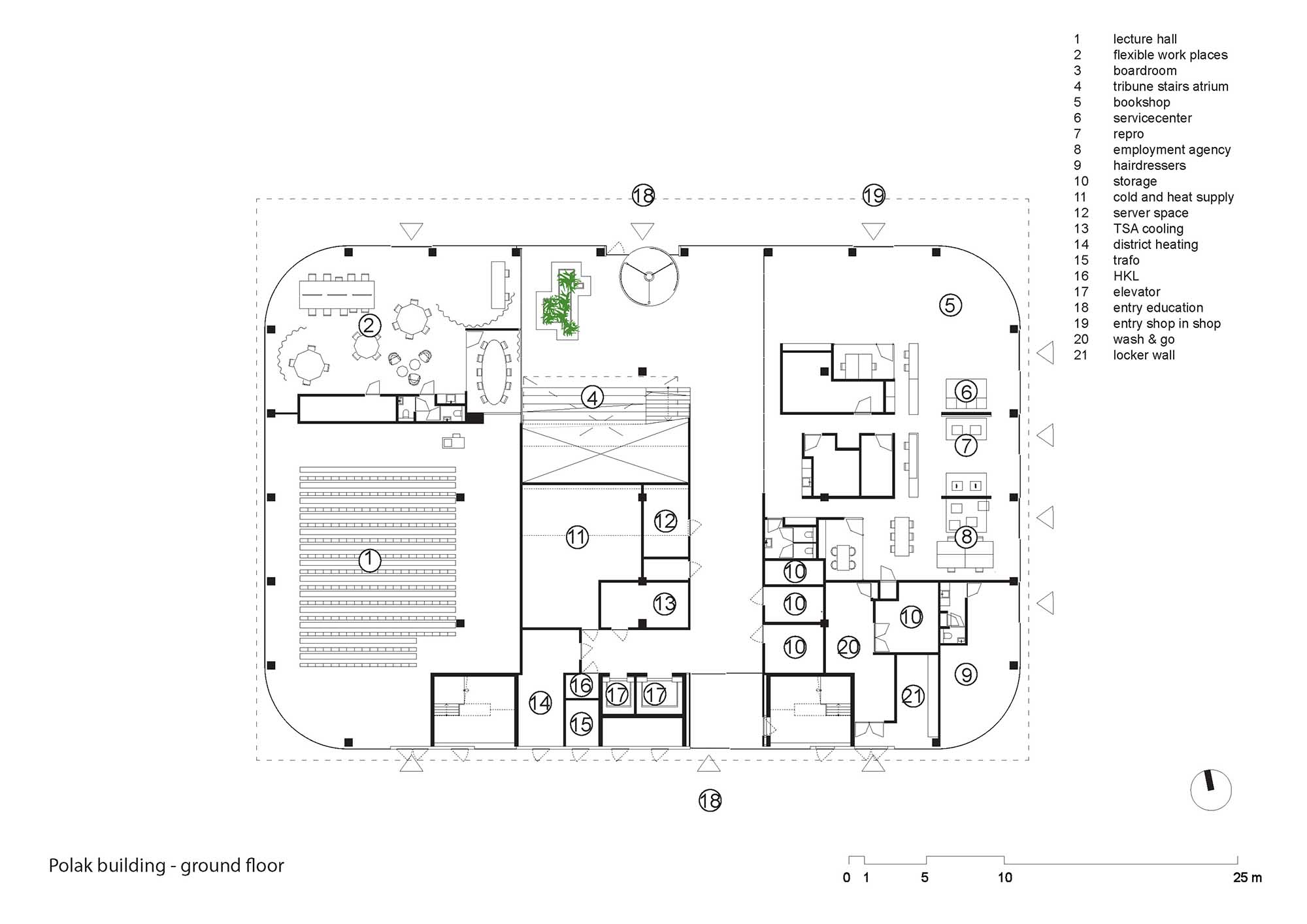
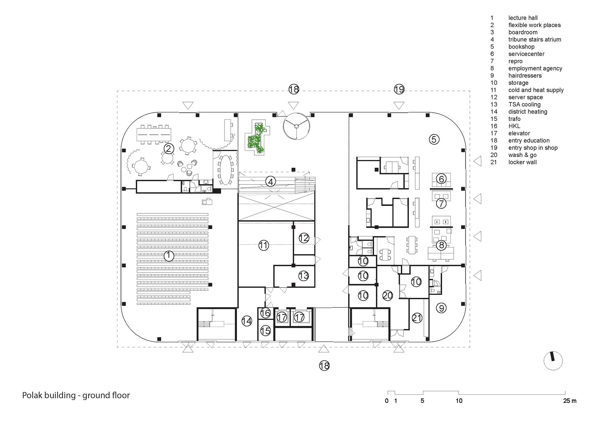
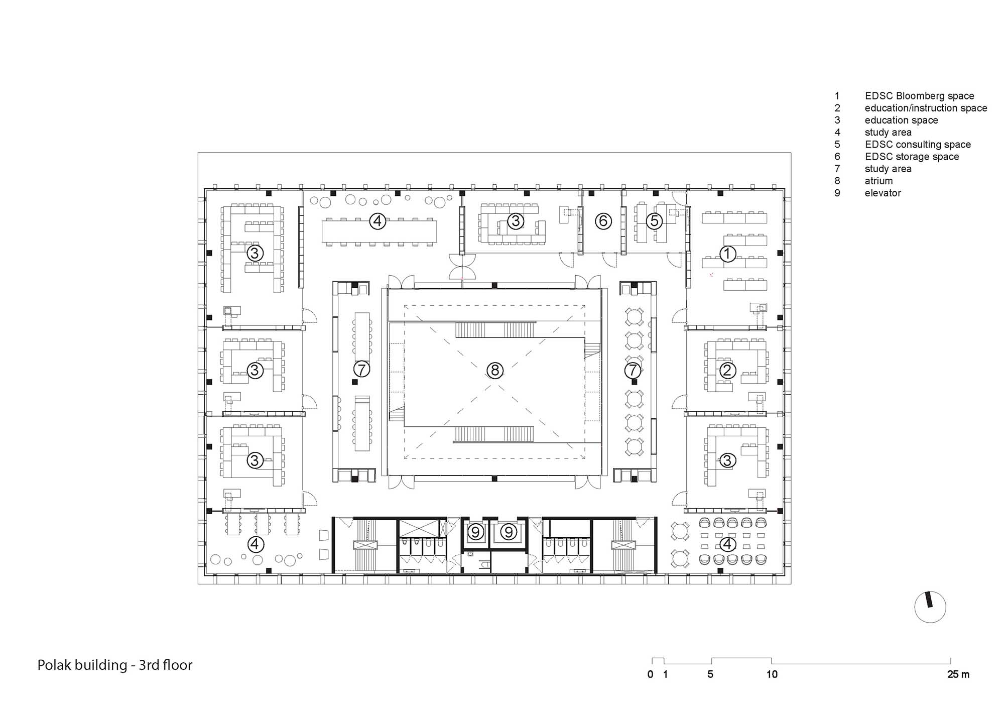
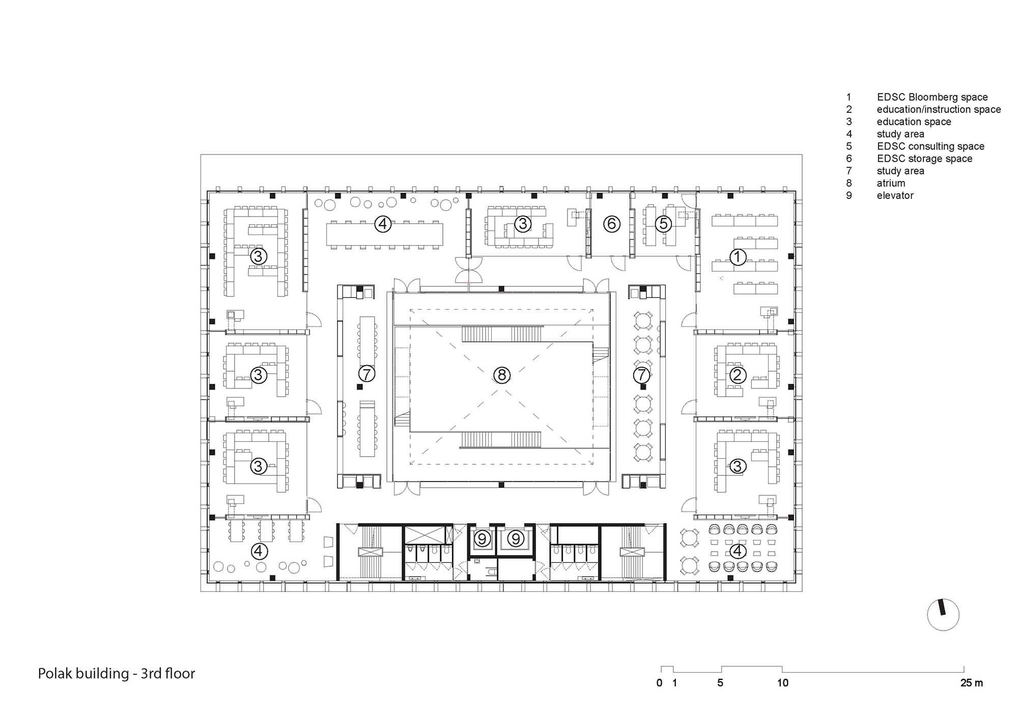
Auch das neue Polak-Gebäude von Paul de Ruiter Architects ist ein Baustein in der Effizienzstrategie der EUR. Der kubische Sechsgeschosser beherbergt eine Vielzahl unterschiedlicher Funktionen: Im Erdgeschoss gibt es einen Buchladen, einen Friseur, einen Copyshop und einen Waschsalon; außerdem ist hier ein temporärer Hörsaal untergebracht. Auf die Obergeschosse verteilen sich mehr als 600 Arbeitsplätze für individuelles Lernen. Hinzu kommen Seminarräume und Computerräume des Erasmus Data Service Centre, wo die Studenten elektronische wissenschaftliche Datenbanken und Veröffentlichungen einsehen können.
Im Zentrum des Neubaus öffnet sich ein glasüberdecktes Atrium über die volle Gebäudehöhe. Darin winden sich zwei Treppenläufe spiralförmig in die Höhe. Brüstungen und Treppengeländer sind in Weiß gehalten; die Bodenbeläge, Fensterrahmen und Sitzbänke bestehen aus Holz. Für die Selbstlernbereiche ließen die Architekten sechs Meter lange Tische aus Eichenholz fertigen, das auf dem Stadtgebiet von Rotterdam geschlagen wurde. Auch sonst legten sie (und ihr Bauherr) großen Wert auf kurze Transportwege sowie ökologisch und gesundheitlich unbedenkliche Materialien. Alle verwendeten Oberflächenbeschichtungen basieren auf Naturharzen; das Holz ist FSC- oder PEFC-zertifiziert.
Bei der Konstruktion der Gebäudehülle stand das Ziel hoher Energieeffizienz im Vordergrund. In das Glasdach des Atriums sind Solarzellen integriert. Die Fassaden sind dreifach verglast und werden von vertikalen Lamellen verschattet, die je nach Ausrichtung eine unterschiedliche Tiefe besitzen. Die ungewöhnliche Breite der Elemente erklärt sich daraus, dass sie zugleich der natürlichen Belüftung dienen. Dazu sind sie seitlich mit einer Perforation und an der Rückseite mit Lüftungsflügeln versehen, die sich manuell öffnen lassen.
weitere Informationen:
Architekten: Paul de Ruiter Architects
Projektarchitekten: Paul de Ruiter, Noud Paes
Projektteam: Marlous Vriethoff, Laura van de Pol, Richard Buijs, Marieke Sijm Bauingenieur: Van Rossum, Amsterdam
TGA-Planung: VIAC, Houten
Bauphysik: LBP Sight, Nieuwegein
Kostenplanung: bbn adviseurs, Houten
Elektroplanung: Croon, Rotterdam
Bauunternehmen: SMT Bouw, Rosmalen; Palte, Valkenburg
Landschaftsarchitekten: Juurlink[+], Rotterdam, und Bureau JvantSpijker, Rotterdam
Projektarchitekten: Paul de Ruiter, Noud Paes
Projektteam: Marlous Vriethoff, Laura van de Pol, Richard Buijs, Marieke Sijm Bauingenieur: Van Rossum, Amsterdam
TGA-Planung: VIAC, Houten
Bauphysik: LBP Sight, Nieuwegein
Kostenplanung: bbn adviseurs, Houten
Elektroplanung: Croon, Rotterdam
Bauunternehmen: SMT Bouw, Rosmalen; Palte, Valkenburg
Landschaftsarchitekten: Juurlink[+], Rotterdam, und Bureau JvantSpijker, Rotterdam

























