// Check if the article Layout ?>
Größe anders definiert: Wohnhaus in Melbourne
Foto: Tess Kelly
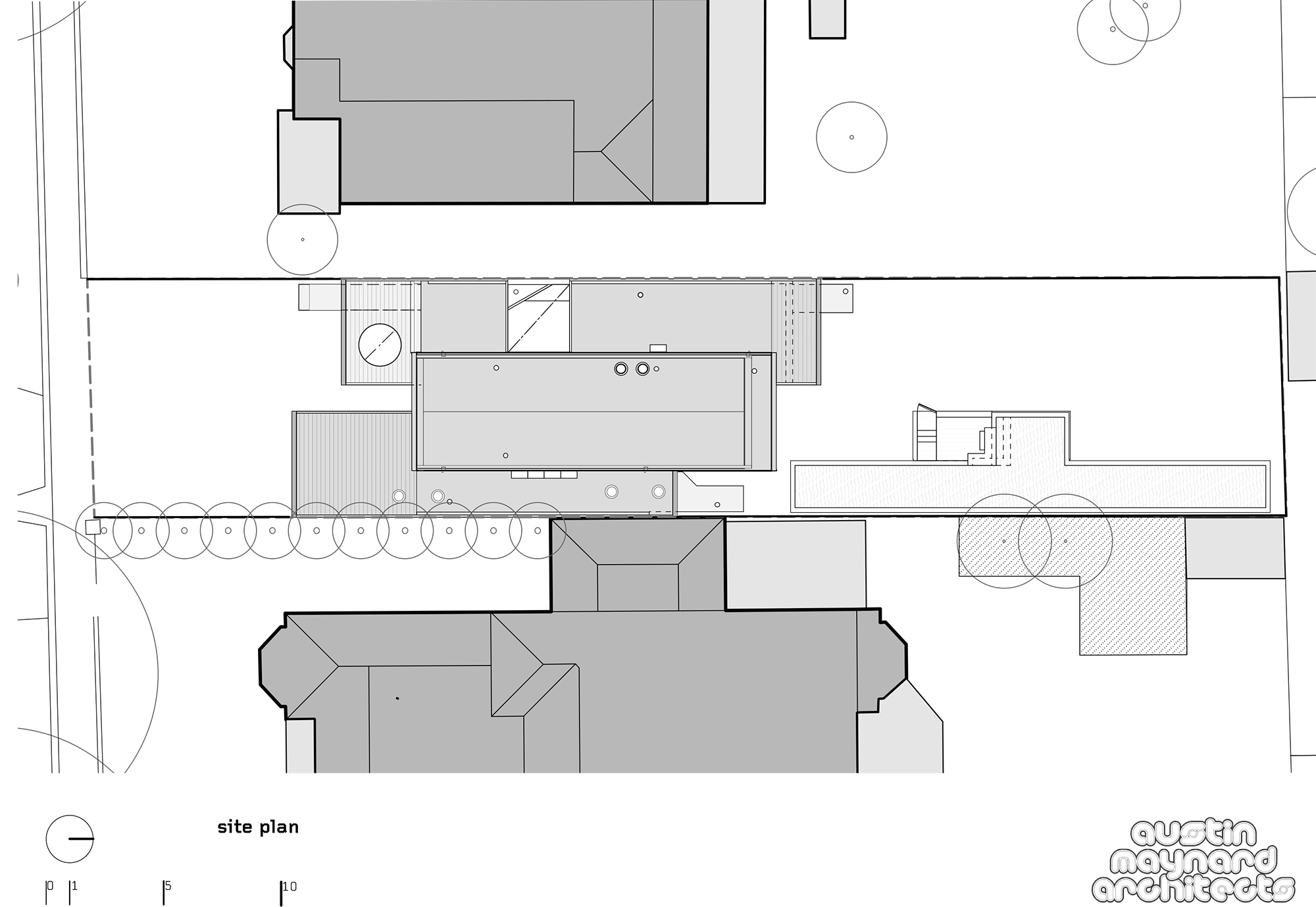
Die Antwort auf die Frage „Wieviel ist genug?“ muss jede Gesellschaft und jeder Einzelne für sich selbst finden. Bei der Bauherrenfamilie des THAT House in Melbourne lautete sie, in Zahlen gefasst: 252 Quadratmeter. Damit ist der Neubau immer noch um fast die Hälfte kleiner als seine Nachbarn – und außerdem deutlich weniger introvertiert. Denn während andere Grundstücke im Statteil Northcote fast komplett überbaut sind, öffnet sich dieses Gebäude zu einem kleinen Garten mit Rasenstück und voluminösem Swimmingpool.
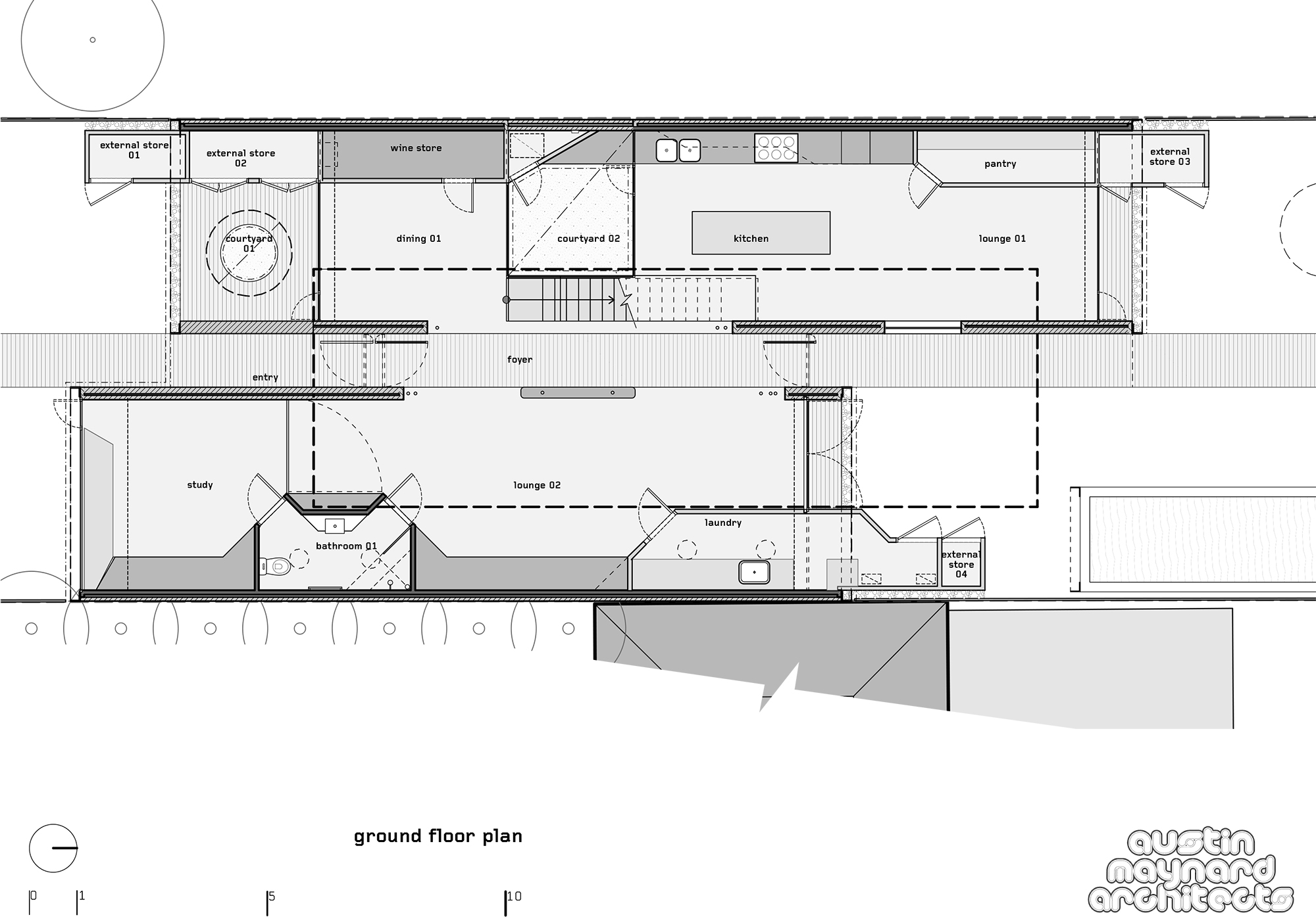
Drei Kuben, die vorn und hinten komplett verglast sind, bilden das Haus. Die beiden unteren sind aus Betonsteinen gemauert und mit einer Stahlbeton-Flachdecke versehen. Zwischen ihnen verläuft der zentrale Erschließungskorridor, der gleichsam das Rückgrat des Hauses bildet. Der Kubus im Obergeschoss hingegen basiert auf einer Holz/Stahl-Skelettkonstruktion. Neben Glas, lackiertem Stahl und weiß gestrichenem Beton sind Wellblech und „gumwood“ – das rötliche Holz einer in Ostaustralien vorkommenden Myrthenart – die prägenden Materialien des Neubaus. Mit dem gleichen Holz ist auch ein polygonales Staumöbel verkleidet, das den Wohnraum im Erdgeschoss flankiert.
Bewusst vermieden Austin Maynard Architects die fließenden, aber oft überdimensionierten Räume vieler anderer an der klassischen Moderne orientierten Wohnhäuser. Stattdessen gaben sie dem THAT House das Motto „alone, together“: Man wohnt zusammen, kann sich aber jederzeit in kleine Separées zurückziehen, die sich durch Schiebetüren und Drehwände abtrennen lassen. Auch der Essbereich schließt nicht etwa nahtlos an die Küche an, sondern ist von dieser durch einen kleinen Patio getrennt.
Nicht nur was die Wohnfläche betrifft, orientierten sich Bauherr und Architekten an ökologischen Prinzipien: Die großen Glasflächen weisen nach Norden und Süden; die West- und Ostfassaden sind hingegen fast komplett geschlossen, um unerwünschte Wärmeeinträge durch die tief stehende Sonne zu vermeiden. Aus dem gleichen Grund wählten die Architekten für die Flachdächer eine helle Dachbahn mit hoher Albedo. Im Garten ist eine Regenwasserzisterne vergraben, deren Wasser zur Toilettenspülung wiederverwendet wird, und auf dem Dach des Obergeschosses wurde eine Photovoltaikanlage installiert.
weitere Informationen:
Landschaftsarchitekt: Ben Scott, Garden Design
Bauingenieur: R. Bliem & Associates
Kostenplanung: Cost Plan
Bauunternehmung: Sargant Constructions
Photos: Tess Kelly Grundstücksfläche: 514m2
Wohnfläche: 255m2 Twitteraccount der Architekten: @AndrewMaynard
Bauingenieur: R. Bliem & Associates
Kostenplanung: Cost Plan
Bauunternehmung: Sargant Constructions
Photos: Tess Kelly Grundstücksfläche: 514m2
Wohnfläche: 255m2 Twitteraccount der Architekten: @AndrewMaynard

























