Großer Wurf: Sporthalle von Turkali Architekten
Foto: Christian Eblenkamp
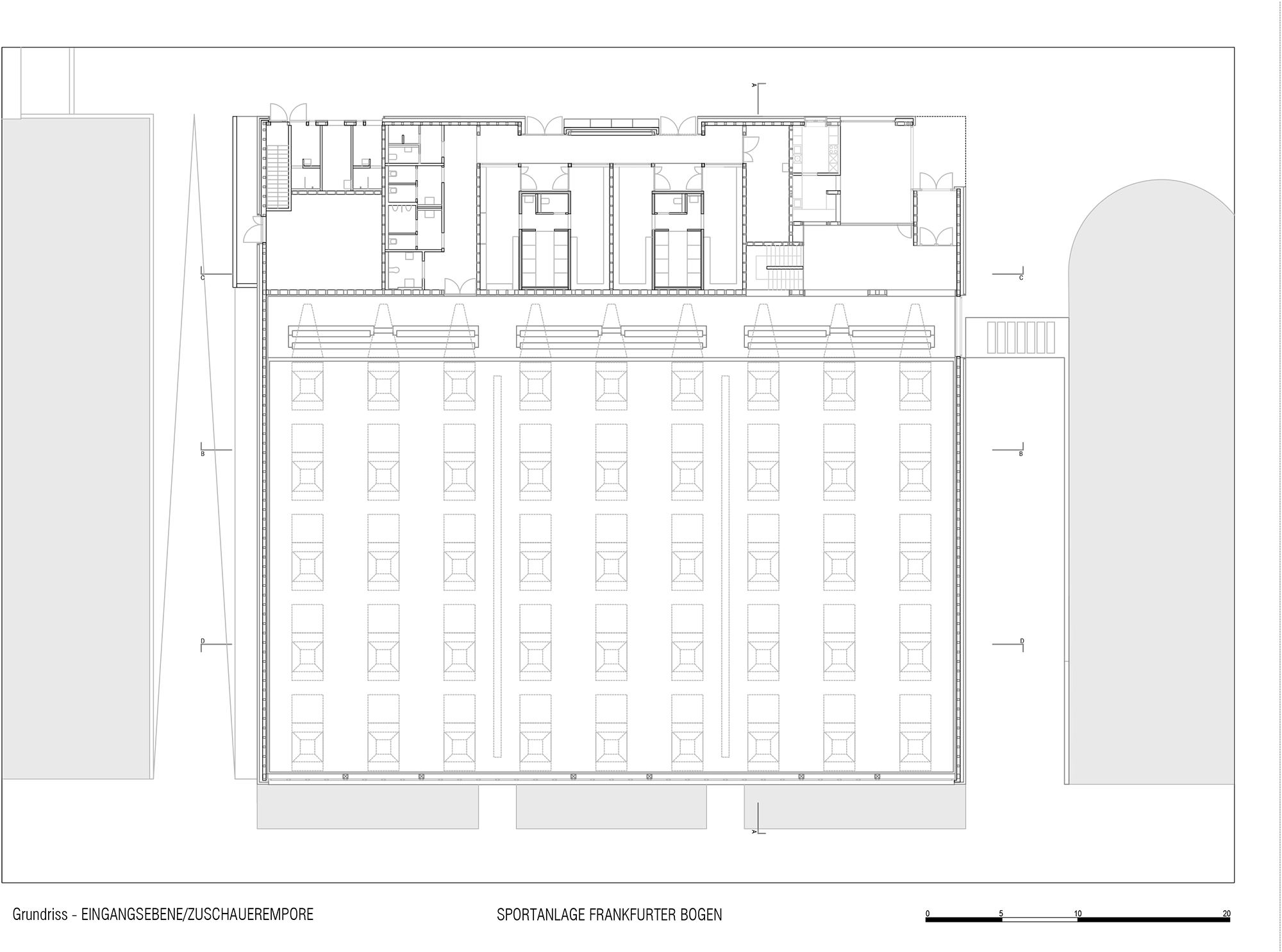
Die Halle inmitten der 6,5 ha großen Sportanlage in Frankfurt-Preungesheim ist ein ebenso vielschichtiges wie klar aufgebautes Gebäude. Am Hang gelegen, verbindet sie den niedrigeren Südteil der Außenanlage mit den nördlichen Sportfeldern. Optisch gliedert sich der Baukörper horizontal in drei Teile. Die unterste Schicht frisst sich in das Gelände, während die beiden oberen darüber hinaus ragen.
Die aus Stahlbeton gefertigte Sockelebene kontrastiert mit der Holzkonstruktion inklusive Holzverkleidung des oberen Gebäudeteils. Dieser gliedert sich wiederum in einen komplett geschlossenen Bereich hinter der sich das Hallentragwerk verbirgt und eine Mittelzone mit zahlreichen großformatigen Öffnungen und dem Haupteingang: Vom nordöstlich gelegenen Parkplatz aus kommend, gelangen die Besucher über diesen Zugang direkt zur Tribüne für 200 Zuschauer und zu einem Teil der Umkleiden. Ein zweiter Eingang für Sportler im Süden führt direkt auf das ein Geschoss tiefer liegende Spielfeld.
Decke und Wände der Halle sind mit unbehandelten Pressspanplatten verkleidet. Um einen homogenen Hintergrund für die sportlichen Aktivitäten zu generieren, sind der Fußboden und die Prallwände im gleichen Farbton gehalten. Im Eingangsbereich bieten großflächige Verglasungen Ausblicke auf die Skyline Frankfurts. Durch ein perforiertes Band an der Längsseite der Halle wird das seitliche Tageslicht gleichmäßig in die Halle gestreut. Zusätzlich verteilen 45 Oberlichtelemente aus weiß beschichteten Pressspanplatten das Tageslicht im Raum. Praktischerweise nehmen die Elemente der Oberlichter außerdem gleich noch Heizkörper, Lüftungsauslässe, Lautsprecher, Brandmelder, Leuchten und mehr in sich auf, sodass die Halle im Sportpark Preungesheim von außen wie von innen mit klaren Linien besticht.























