// Check if the article Layout ?>
Grüner Schleier: Laborgebäude in Hatfield
Foto: Hufton + Crow
Der Institutsneubau der University of Hertfordshire steht auf einem ehemaligen Parkplatz am Rande des Universitätscampus in Hatfield, rund 25 Kilometer nördlich von London. Er beherbergt Seminar- und Laborräume für Chemie, Biomedizin, Physik und Pharmazie und ist Teil eines Entwicklungsplans, mit dem die Universität den Campus bis 2020 um eine Reihe gestalterisch hochklassiger Neubauten erweitern und auch die Erschließung des Geländes neu ordnen will.
Fünf Geschosse hoch ragt das Gebäude über das leicht ansteigende Terrain empor. Vier davon sind größtenteils Nutzfläche, das oberste ist den technischen Anlagen vorbehalten. Dass diese so viel Raum beanspruchen, ist für ein hoch effizienten Neubau – das Laborgebäude erreicht immerhin den Standard BREEAM Excellent – ungewöhnlich, doch insbesondere die komplexe Lüftungstechnik für die Labore zollte hier ihren Tribut.
Erschlossen wird das Gebäude von Südwesten her, aus Richtung des Campuszentrums. Ein zweigeschossiger Rücksprung an der Gebäudeecke markiert den Hauptzugang, und auch die zwei obersten Ebenen sind an dieser Stelle als Dachterrasse ausgespart. Entlang dieser Einschnitte markieren Glaspaneele mit integriertem Kupfergewebe die »Schnittflächen«. Die restlichen Fassaden sind entweder geschosshoch verglast oder bestehen – an den Fluchttreppenhäusern – aus Sichtbeton.
Im Süden, Westen und Osten ließen die Architekten ein dreiseitig umlaufendes Screen aus Metallrahmen mit türkisgrün eloxiertem Aluminium-Streckmetall anbringen. Es fungiert als Brise-soleil und ist über Wartungsbalkone vom Baukörper getrennt. Die vertikalen, gebäudehohen Lamellen sind starr, aber von Raum zu Raum in unterschiedlichen Winkeln vor der Fassade angebracht. Von außen gesehen erscheinen sie je nach Blickwinkel opak oder transparent; von innen treten sie lediglich als zarter grünlicher Schleier in Erscheinung. Im Technikgeschoss ganz oben sind die Lamellen geschlossen, also parallel zur inneren Fassade angebracht.
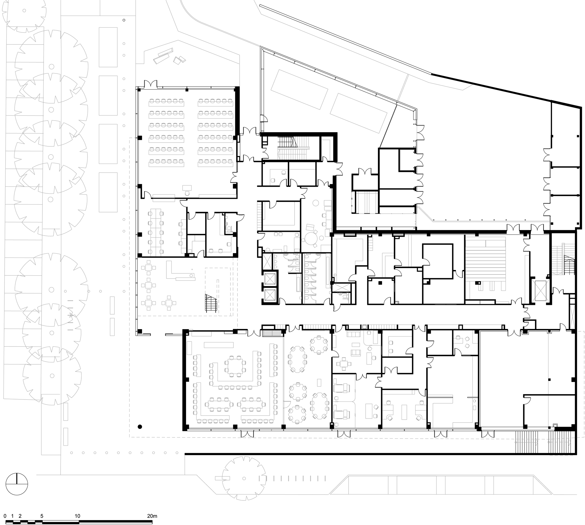
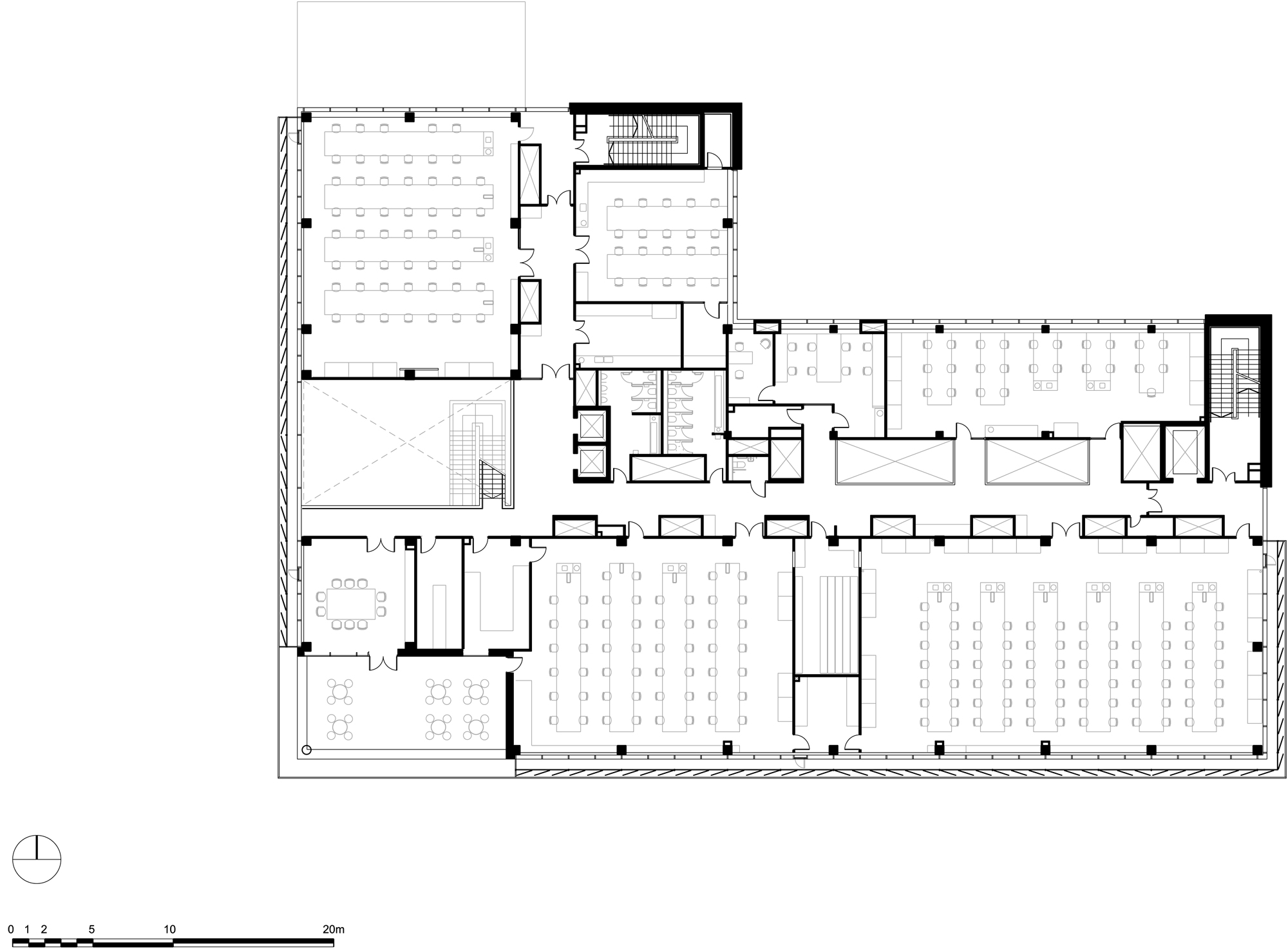
Hinter dem Haupteingang öffnet sich ein viergeschossiges Atrium mit Glasfassade und filigraner Stahltreppe. Während die größeren Seminarräume und Labore vorwiegend an der Süd- und Westfassade liegen, sind auf der Nord- und Ostseite des Gebäudes Reinräume und kleinere Labore untergebracht. Das gesamte Haus basiert auf einem Stützraster von 6,6 x 6,6 Metern. Spannbeton-Deckenelemente ermöglichten es, in den großen Sälen auch zwei Stützachsen – das heißt 13,20 Meter – stützenfrei zu überspannen.
Fünf Geschosse hoch ragt das Gebäude über das leicht ansteigende Terrain empor. Vier davon sind größtenteils Nutzfläche, das oberste ist den technischen Anlagen vorbehalten. Dass diese so viel Raum beanspruchen, ist für ein hoch effizienten Neubau – das Laborgebäude erreicht immerhin den Standard BREEAM Excellent – ungewöhnlich, doch insbesondere die komplexe Lüftungstechnik für die Labore zollte hier ihren Tribut.
Erschlossen wird das Gebäude von Südwesten her, aus Richtung des Campuszentrums. Ein zweigeschossiger Rücksprung an der Gebäudeecke markiert den Hauptzugang, und auch die zwei obersten Ebenen sind an dieser Stelle als Dachterrasse ausgespart. Entlang dieser Einschnitte markieren Glaspaneele mit integriertem Kupfergewebe die »Schnittflächen«. Die restlichen Fassaden sind entweder geschosshoch verglast oder bestehen – an den Fluchttreppenhäusern – aus Sichtbeton.
Im Süden, Westen und Osten ließen die Architekten ein dreiseitig umlaufendes Screen aus Metallrahmen mit türkisgrün eloxiertem Aluminium-Streckmetall anbringen. Es fungiert als Brise-soleil und ist über Wartungsbalkone vom Baukörper getrennt. Die vertikalen, gebäudehohen Lamellen sind starr, aber von Raum zu Raum in unterschiedlichen Winkeln vor der Fassade angebracht. Von außen gesehen erscheinen sie je nach Blickwinkel opak oder transparent; von innen treten sie lediglich als zarter grünlicher Schleier in Erscheinung. Im Technikgeschoss ganz oben sind die Lamellen geschlossen, also parallel zur inneren Fassade angebracht.
Hinter dem Haupteingang öffnet sich ein viergeschossiges Atrium mit Glasfassade und filigraner Stahltreppe. Während die größeren Seminarräume und Labore vorwiegend an der Süd- und Westfassade liegen, sind auf der Nord- und Ostseite des Gebäudes Reinräume und kleinere Labore untergebracht. Das gesamte Haus basiert auf einem Stützraster von 6,6 x 6,6 Metern. Spannbeton-Deckenelemente ermöglichten es, in den großen Sälen auch zwei Stützachsen – das heißt 13,20 Meter – stützenfrei zu überspannen.
Weitere Informationen:
Bauunternehmen: Bouygues UK
Projektsteuerung und Kostenplanung: Turner and Townsend
Tragwerksplanung: Aecom
TGA-Planung: Couch Perry Wilkes
Landschaftsarchitektur: The Landscape Partnership
Bauunternehmen: Bouygues UK
Projektsteuerung und Kostenplanung: Turner and Townsend
Tragwerksplanung: Aecom
TGA-Planung: Couch Perry Wilkes
Landschaftsarchitektur: The Landscape Partnership
















