Städtebauliches Bindeglied
Grundschule in Leipzig von Schulz und Schulz
© Stefan Müller
Schulz und Schulz realisieren die Grundschule am Addis-Abeba-Platz mitten in Leipzig. In Ziegel ausgeführt, integriert sich der Bildungsbau harmonisch in den städtischen Kontext. Zwischen dem urbanen Platz im Westen und einem neuen, geschützten Pausenhof in östlicher Richtung konzipieren die ebenfalls in der Stadt ansässigen Planer zwei ineinander verschränkte Volumen.


Der Bildungsbau integriert sich harmonisch in den städtischen Kontext. © Stefan Müller
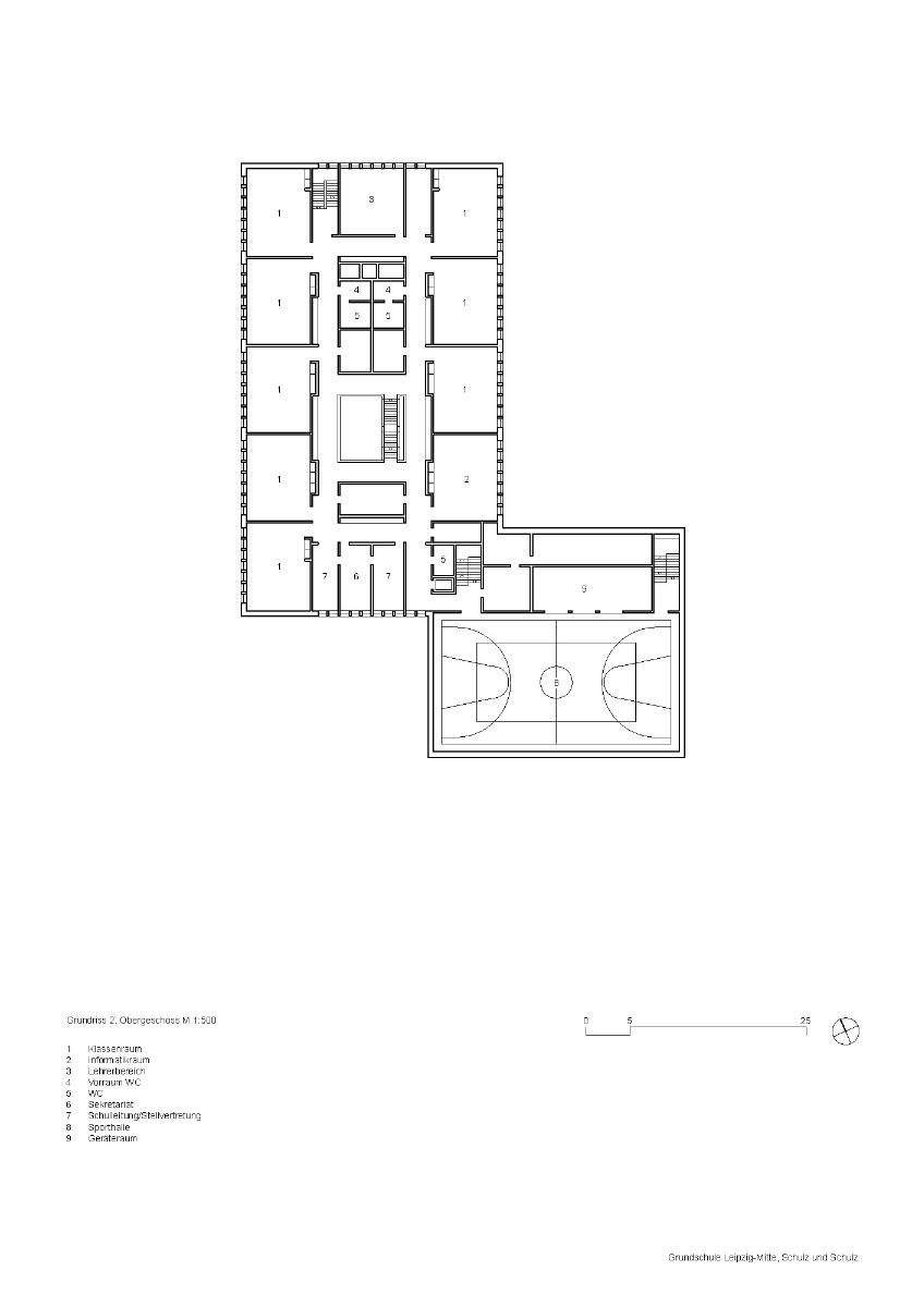
Die beiden rechteckigen Baukörper orientieren sich in Höhe und Proportion an ihrer Umgebung. Im größeren Trakt befindet sich die Schule mit Hort, der kleinere beinhaltet zwei gestapelte Sporthallen. Während Ziegel das Duo in seiner Materialität einheitlich zusammenfasst, differenzieren unterschiedliche Farben die beiden Teile gleichzeitig voneinander.
Gelbgrauer Klinker
Die Lochfassaden der Grundschule sind in gelbgrauem Klinker gemauert und nehmen mit ihren schmalen, stehenden Fensterformaten Bezug auf die historische Leipziger Innenstadt. Beim Nebengebäude mit langen Bandfenstern entschied man sich für ein klassisches Rotbraun.


Die beiden rechteckigen Baukörper orientieren sich in Höhe und Proportion an ihrer Umgebung. © Stefan Müller
Mit recycelten Ziegeln fiel die Wahl auf einen nachhaltigen Baustoff. Ein hoher Dämmstandard sowie ein optimiertes Lüftungskonzept mit Wärmerückgewinnung runden das Projekt energieeffizient ab.


Die Lochfassaden der Grundschule sind in gelbgrauem Klinker gemauert. © Stefan Müller


Ein warmer Rotton sorgt für bunte Farbtupfer. © Stefan Müller
Innenräume
Die Material- und Farbpalette im Inneren ist geprägt durch schlichtes Weiß und Holz in Form von Akustikpaneelen, Handläufen und Fensterrahmen. Ein warmer Rotton zieht sich von den Linoleumböden der Gemeinschaftsflächen bis in die Klassenzimmer und Gruppenräume, wo er mit akzentuierten Wänden und Einrichtungsgegenständen für bunte Farbtupfer sorgt.


Klassenzimmer, © Stefan Müller
Zentrales Atrium
Als Herzstück der Schule fungiert ein zentrales Atrium, welches von den Treppen und galerieartigen Erschließungswegen umrahmt wird. Von oben belichtet, verbindet es die vier Etagen mit dem Hort in den unteren beiden Stockwerken und den darüberliegenden Unterrichtsräumen. Im Erdgeschoss weiten sich die Stufen und werden zum multifunktionalen Treffpunkt für die Schul- und Hortkinder sowie Erzieher und Lehrpersonen. Sie dienen wahlweise als Bühne für kleine Aufführungen oder als Sitzgelegenheit.
Architektur: Schulz und Schulz
Bauherr: Stadt Leipzig, Amt für Jugend, Familie und Bildung
Standort: 04103 Leipzig (DE)
Tragwerksplanung: Staupendahl und Partner
TGA-Planung: Zimmermann und Becker
Freiraumplanung: Freiraumkonzepte Landschaftsarchitekten
Brandschutz, Bauphysik & Akustik: Staupendahl und Partner
Baukosten: 16,1 Mio. Euro
Nutzfläche: 5133 m²
Bruttogrundfläche: 8420 m²






















