Gelungenes Materialzusammenspiel
Grundschule von Dasch Zürn + Partner
Neubau der Grundschule in Ammerbuch, © ArchitekturImBild
In der Gemeinde Ammerbuch bei Tübingen bauen Dasch Zürn + Partner eine Grundschule mit Sporthalle. Das Gebäude reagiert geschickt auf die leicht abfallende Topografie und bildet optisch ein gelungenes Gesamtensemble.


Der Pausenhof öffnet sich zu den angrenzenden Freiflächen. © ArchitekturImBild
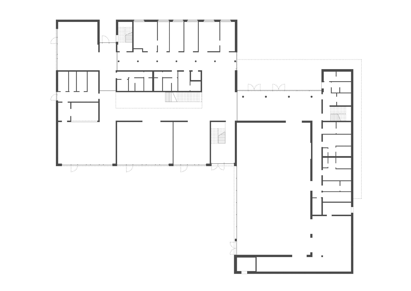
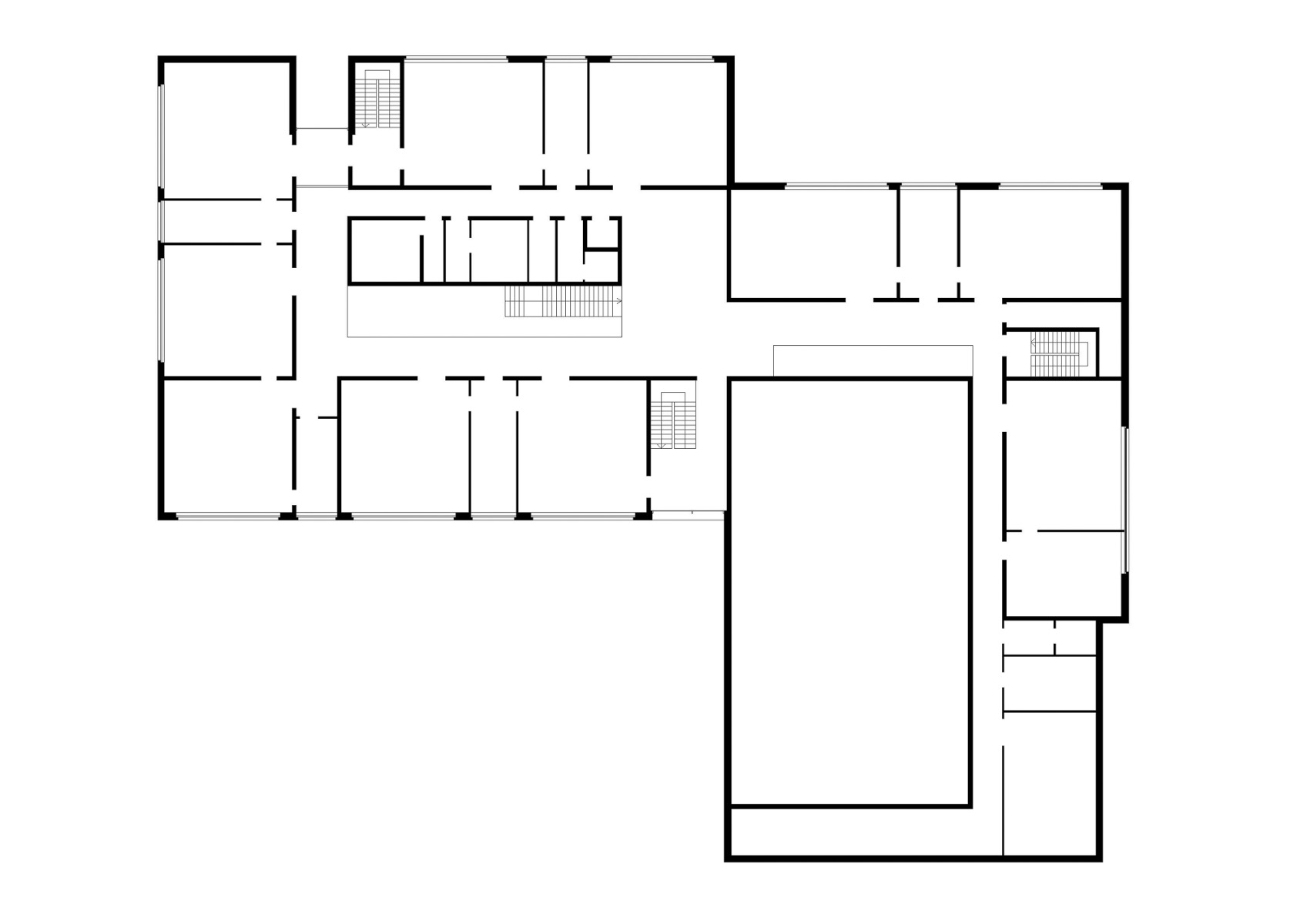
Konzept
Nach dem Beschluss der Gemeinde musste die bestehende Gesamtschule weichen, um Platz für die neue Grundschule zu schaffen. An dieser Stelle sollte ein Gebäudeensemble entstehen, das sowohl qualitätsvoll und wirtschaftlich als auch nachhaltig ist.
Die Architekten begegneten dieser Prämisse mit einer Gesamtanlage aus Schule, Sporthalle und Freiflächen, die gemeinsam einen Ort mit hohem Identifikationswert ausbilden. Durch die einheitliche Materialwahl der Fassade aus gebranntem Klinker entsteht ein harmonisches Gesamtbild. Die städtebauliche Setzung der Baukörper schirmt die anliegende Wohnbebauung vom lärmintensiven Pausenhof ab und öffnet diesen hin zu den anliegenden Freiflächen. Zudem wird der abgesenkte Pausenhof durch Sitzstufen mit dem umgebenden Gelände verknüpft.


Im Innenraum dominieren die Materialien Weißtanne und Sichtbeton. © ArchitekturImBild
Der Zugang zur Grundschule und Sporthalle erfolgt über einen Vorplatz. Durch das auskragende Obergeschoss der zweigeschossigen Schule entsteht eine überdachte Eingangssituation. Die Eingangshallen beider Bereiche sind im Innenraum miteinander verknüpft.


Sporthalle, © ArchitekturImBild
Räume der Grundschule
Die Sporthalle erstreckt sich räumlich über zwei Geschosse und wird mit einer Spange dienender Räume ergänzt, in denen sich im Obergeschoss zusätzliche Klassenzimmer befinden. Der Grundschulbau verfügt ebenfalls über funktionale Räume im Zentrum des tiefen Grundrisses, wodurch die umliegenden Klassenzimmer optimal mit Tageslicht versorgt werden.


Kommunikationsflächen in den Fluren der Grundschule, © ArchitekturImBild
Materialauswahl
Im Inneren des Gebäudes liegt der Fokus auf zwei Materialien. Durch das Zusammenspiel aus Sichtbeton und Weißtanne lassen die Planer ein harmonisches Gesamtbild entstehen.
Architektur: dasch zürn + partner
Bauherr: Gemeinde Ammerbuch
Standort: Schulstraße 14, 72119 Ammerbuch (DE)
Tragwerksplanung: Schneck, Schaal, Braun
HLS-Planung: Ebök
Bauphysik: BBI Bayer Bauphysik
Elektroplanung: Kienle Beratende Ingenieure
Landschaftsarchitektur: freiraumconcept














