// Check if the article Layout ?>
Harte Hülle, weicher Kern: Wohnhaus von i.s.m.architecten
Foto: Luis Díaz Díaz
Lange Zeit blieb das Grundstück in einer Siedlung in Grimbergen ohne Besitzer. Der Grund: Die äußerst unregelmäßige Form des Bauplatzes suchte nach unkonventionellen Lösungen und Offenheit in Sachen Gebäudeform und Zimmerzuschnitt. Für eine belgische Familie entwickelten i.s.m. architecten in Zusammenarbeit mit icw Bataille & ibens einen Baukörper, welcher die unregelmäßige Grundstücksform direkt aufnimmt und verkleinert. Entstanden ist ein dreigeschossiger Baukörper ohne Angst vor spitzen Winkeln.
Innen wie außen wurde das Wohnhaus vollständig in Ortbeton ausgeführt. Die homogene Fassade formt ein monolithisches Volumen, das sich zur Straßenseite mit einer fensterlosen Fassade präsentiert. Lediglich das kleinere, oberste Geschoss öffnet sich mit einer verglasten Fassade in Richtung Straße und ragt verhalten über den Baukörper hinaus. Die spitze Ecke des Erdgeschosses wurde ausgespart und dient als überdachter Stellplatz für Autos und Fahrräder.
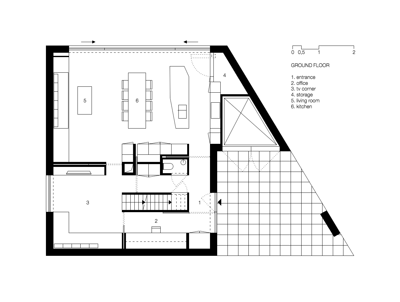
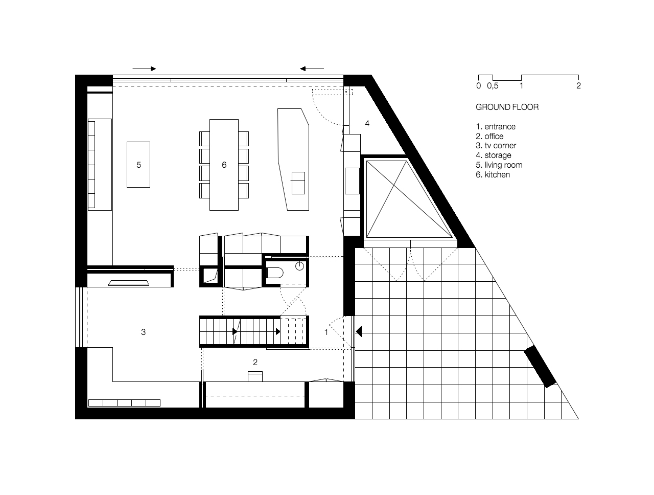
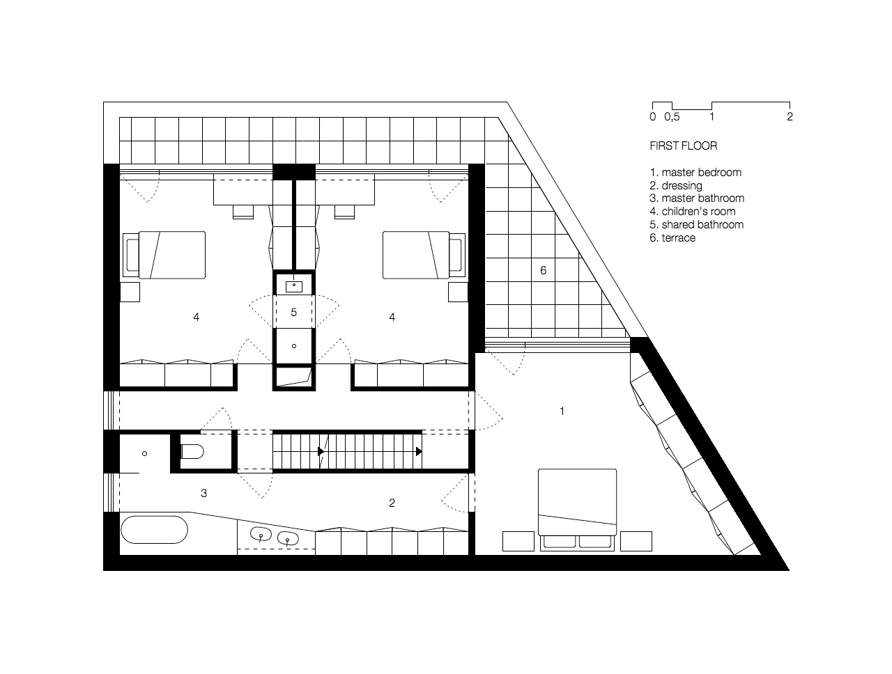
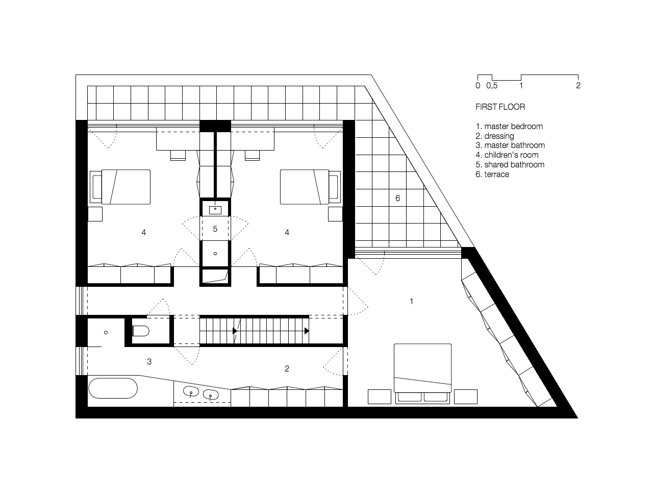
Die Positionierung und Größe der Gebäudeöffnungen wird durch die Privatsphäre der einzelnen Räumlichkeiten bestimmt. In Richtung Garten öffnet sich das Volumen mit großformatigen Fenstern. Großzügige Terrassen im Erdgeschoss und Obergeschoss erweitern hier die Innenräume zusätzlich nach außen. Im Erdgeschoss befinden sich die gemeinschaftlichen Wohnbereiche, wie Küche, Esszimmer, sowie eine Fernsehecke und ein kleines Büro. Die Schlafräume der Familie befinden sich im ersten Obergeschoss. Das aufgesetzte zweite Obergeschoss mit dem schrägen Dach dient als Gästezimmer oder zusätzlicher Arbeitsraum.
Nicht nur der Entwurf des Baukörpers, auch die Gestaltung des Interieurs wurde von i.s.m. architecten übernommen. In Kontrast zur grauen Betonfassade wurde der Innenraum mit Holzmobiliar ausgestattet und in zarten Farben gestaltet. Die natürlichen Holzoberflächen finden sich nicht nur in der eigens entworfenen Küche wieder, sondern auch in den praktischen Einbaumöbeln, die für ausreichend Stauraum und ein einheitliches Interieur sorgen. Auf diese Weise entstand ein Wohnhaus, das sich zunächst abweisend gibt, im Inneren jedoch eine behagliche Wohlfühlatmosphäre erzeugt. Das Ziel der Architekten, einen »warmen Hafen« für die Bewohner zu entwickeln, scheint geglückt.
Innen wie außen wurde das Wohnhaus vollständig in Ortbeton ausgeführt. Die homogene Fassade formt ein monolithisches Volumen, das sich zur Straßenseite mit einer fensterlosen Fassade präsentiert. Lediglich das kleinere, oberste Geschoss öffnet sich mit einer verglasten Fassade in Richtung Straße und ragt verhalten über den Baukörper hinaus. Die spitze Ecke des Erdgeschosses wurde ausgespart und dient als überdachter Stellplatz für Autos und Fahrräder.
Die Positionierung und Größe der Gebäudeöffnungen wird durch die Privatsphäre der einzelnen Räumlichkeiten bestimmt. In Richtung Garten öffnet sich das Volumen mit großformatigen Fenstern. Großzügige Terrassen im Erdgeschoss und Obergeschoss erweitern hier die Innenräume zusätzlich nach außen. Im Erdgeschoss befinden sich die gemeinschaftlichen Wohnbereiche, wie Küche, Esszimmer, sowie eine Fernsehecke und ein kleines Büro. Die Schlafräume der Familie befinden sich im ersten Obergeschoss. Das aufgesetzte zweite Obergeschoss mit dem schrägen Dach dient als Gästezimmer oder zusätzlicher Arbeitsraum.
Nicht nur der Entwurf des Baukörpers, auch die Gestaltung des Interieurs wurde von i.s.m. architecten übernommen. In Kontrast zur grauen Betonfassade wurde der Innenraum mit Holzmobiliar ausgestattet und in zarten Farben gestaltet. Die natürlichen Holzoberflächen finden sich nicht nur in der eigens entworfenen Küche wieder, sondern auch in den praktischen Einbaumöbeln, die für ausreichend Stauraum und ein einheitliches Interieur sorgen. Auf diese Weise entstand ein Wohnhaus, das sich zunächst abweisend gibt, im Inneren jedoch eine behagliche Wohlfühlatmosphäre erzeugt. Das Ziel der Architekten, einen »warmen Hafen« für die Bewohner zu entwickeln, scheint geglückt.
weitere Informationen:
Architekten: i.s.m. architecten; icw Bataille & ibens
Innenarchitekten: i.s.m.architecten
Bauunternehmer: Bouwbedrijf De Hauwere
Bauingenieur: util
Fertigstellung: 2014
Fotos: www.luisdiazdiaz.com (Luis Díaz Díaz)
Architekten: i.s.m. architecten; icw Bataille & ibens
Innenarchitekten: i.s.m.architecten
Bauunternehmer: Bouwbedrijf De Hauwere
Bauingenieur: util
Fertigstellung: 2014
Fotos: www.luisdiazdiaz.com (Luis Díaz Díaz)























