// Check if the article Layout ?>
Harte Schale, hölzerner Kern: Wohnungsbau in Alfortville
Foto: Huy Anh N Guyen
Nah am Wasser wohnt man in Alfortville fast überall. Die 45.000 Einwohner der Stadt südöstlich von Paris verteilen sich auf einen vier Kilometer langen, aber nur 500 bis 1000 m breiten Streifen Landes am Ostufer der Seine. Unmittelbar am Fluss steht auch der skulpturale Wohnungsbau, den die Pariser Architekten Ateliers O-S Architectes hier realisiert hatten. Verkehrsberuhigt ist die Lage nicht gerade, denn das dreieckige Grundstück ist auf allen Seiten von Straßen umgeben. Die Architekten realisierten darauf die L-förmige, unvollständige Version eines Baublocks mit nach Süden geöffnetem Hof. Er ist ebenso wie die Wohnungen um ein Geschoss über das Straßenniveau angehoben. Der gemeinsame Gebäudesockel beherbergt lediglich die Abstellplätze für Autos, Fahrräder und Mülltonnen sowie eine kleine Eingangshalle, durch die man eine Etage höher ins eigentliche Erdgeschoss der Wohnanlage gelangt.
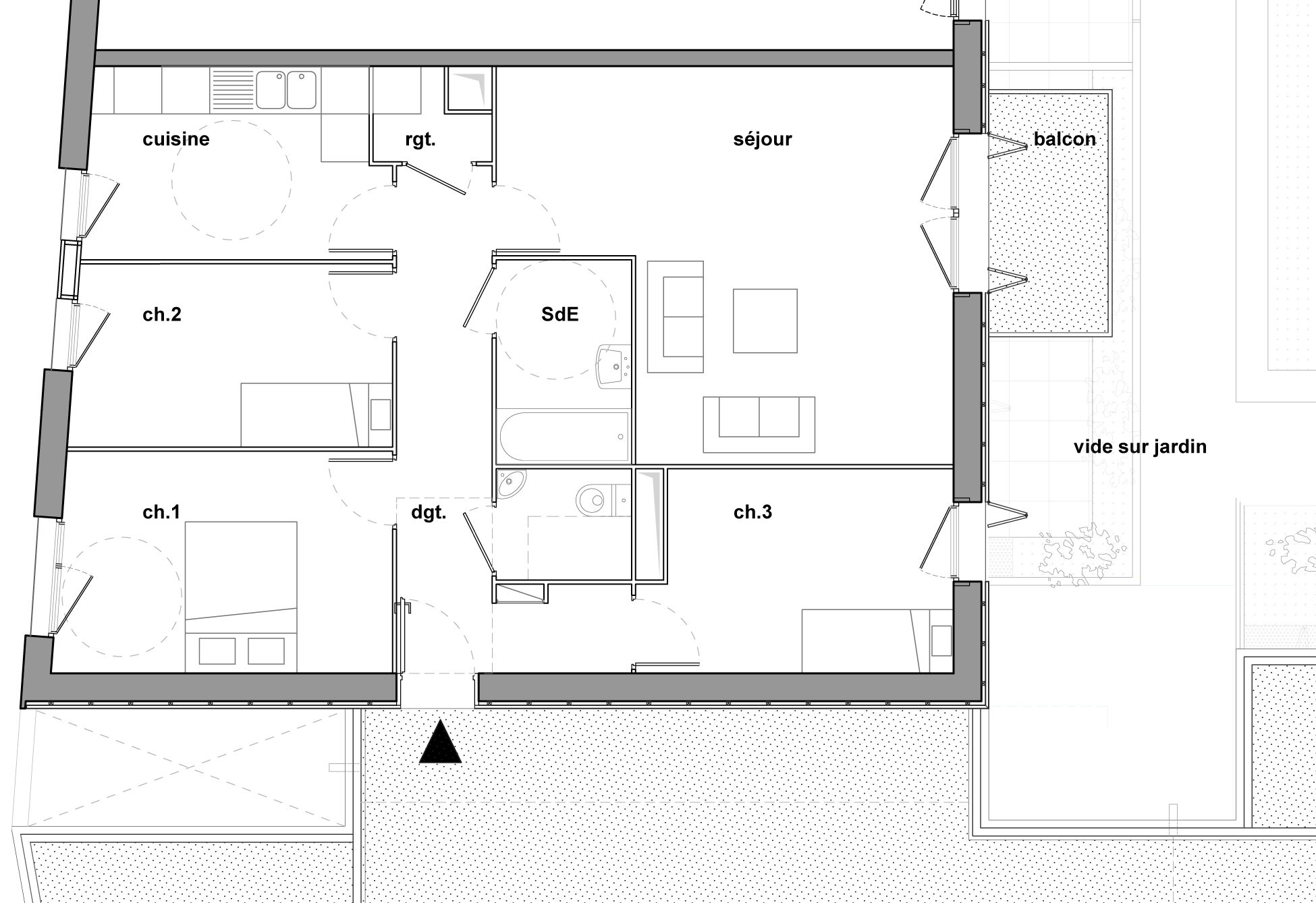
Insgesamt zwölf Eigentumswohnungen verteilen sich auf die drei skulptural geformten Baukörper. Dabei handelt es sich um „logements d’accession sociale“, die staatlich gefördert und im Preis gedeckelt sind, um auch weniger zahlungskräftigen Franzosen den Weg zum Wohneigentum zu ebnen.
Trotz der relativ homogenen Wohnungsgrößen (und damit Zielgruppe) weisen die Grundrisse eine recht große Variantenvielfalt auf. Die meisten von ihnen werden über offene Laubengänge erschlossen und erstrecken sich nur über eine Etage, doch es gibt auch zwei Maisonnettewohnungen in dem Gebäudekomplex. Drei der fünf Wohnungen im Hochpartette verfügen über einen direkten Zugang zum Innenhof.
Bei der Fassadengestaltung unterschieden die Architekten klar zwischen Außen- und Innenseite des L-förmigen Baublocks. Die straßenseitigen Fassaden bestehen aus großformatigen Weißbetontafeln mit ebenso großen, quadratischen Lochfenstern. Auf der Hofseite prägen eher die zahlreichen Balkone und Laubengänge das Bild. Die Fenster erhielten hier hölzerne Faltläden, die in geschlossenem Zustand nahtlos in die vertikale Holzverschalung der Fassaden übergehen.
Weitere Informationen:
Mitarbeiter: Vincent Baur, Guillaume Colboc, Gaël Le Nouëne, Marine Bouhin, Alice Varinot
Tragwerksplanung, TGA, Kostenplanung: Cabinet MTC
Generalunternehmer: GDC
Tragwerksplanung, TGA, Kostenplanung: Cabinet MTC
Generalunternehmer: GDC























