Mauerwerksbau mit Pastellhülle
Haus der Gärtner von Fanny Noël und Diogo Lopes
Die leicht gekrümmte Südfassade des Gärtnerhauses sollte eigentlich durch einen Baumkreis ergänzt werden. © Sven Högger
Ein Zweckbau für die Gartenbaubehörde – und doch viel mehr: Das kleine Haus im Neubaugebiet von Cabinet Fanny Noël Diogo Lopes Architectes geizt nicht mit Farbe und historischen Anspielungen.


Der eingeschossige Ziegel- und Holzbau bildet den Vorposten eines neuen Wohngebiets am Stadtrand. © Sven Högger
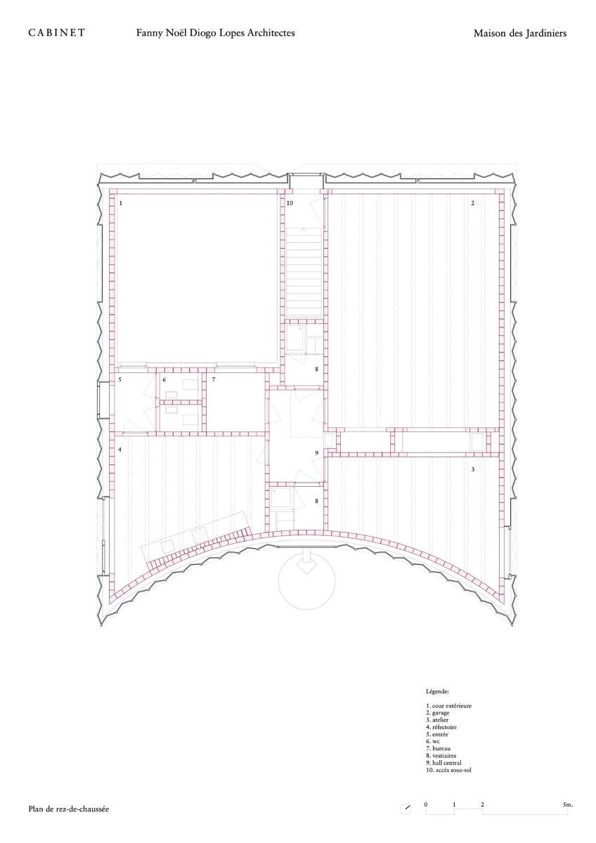
Die Gemeinde Thonex östlich von Genf plant für weiteres Wachstum: Zwischen Krankenhaus, einem Waldstück und einem Einfamilienhausgebiet sollen auf ehemals landwirtschaftlicher Fläche demnächst neue Wohnblocks entstehen. Das „Haus der Gärtner“ ist ein erster Vorposten dieser Entwicklung. Gefordert hatte die Gemeinde ein Werkstatt- und Lagergebäude für die Mitarbeiter des örtlichen Gartenbauamts. Die Architekten schlugen jedoch vor, in den Neubau eine größere Küche und einen Gemeinschaftsraum auch für die Anwohner des Quartiers zu integrieren.
Historische Landschaftsarchitektur als Vorbild
Inspiration bezogen die Architekten aus historischen Gartenanlagen. Dort waren die Wohnhäuser der Gärtner stets Teil eines künstlerischen Gesamtkonzepts. So auch hier: Die gekrümmte Südfront des Neubaus soll durch einen Baumkreis ergänzt werden, in dessen Mitte eine Lichtung in der Parklandschaft entsteht. Eine hellblau und weiß lasierte, profilierte Holzverschalung umhüllt das Gebäude. Nur rund um die Eingänge und die Fenster sind darin Bereiche mit glatter Holzverschalung ausgespart.


Stahlbetonbalken und Sichtziegel mit fein gearbeitetem Fugenbild prägen den Raumeindruck im Inneren. © Sven Högger
Robustes Ziegelmauerwerk
Ganz im Gegensatz dazu begrüßt innen robustes Ziegelmauerwerk die Besucherinnen und Besucher. Auch die Farben sind hier kräftiger – mit dunkelroten Türen und Einbaumöbeln. Zahlreiche Oberlichter bringen Licht ins Haus. Eng beieinander liegende Ortbetonbalken tragen das flach geneigte Betondach.


Nur am Haupteingang und am Trinkbrunnen setzten die Architekten dunkle Farbakzente in der pastelligen Holzfassade. © Sven Högger


Haupteingang, © Sven Högger
Profilierte Holzfassade
Für die Gebäudehülle nutzten die Architekten Schweizer Kiefernholz. Eine markante Dachlaterne überragt den ansonsten eingeschossigen Bau. Wenn die Gärtner anwesend sind, weist dort eine angeschaltete Kugelleuchte weithin sichtbar auf das Gebäude hin. In die geschwungene Südfassade ist ein Trinkbrunnen mit wellenförmig profilierter, dunkelblauer Rückwand aus Faserbeton integriert. Er soll an die Nymphäen historischer Gartenanlagen erinnern.


Rote Türen und Einbaumöbel sowie weiße Fliesen komplettieren die Materialpalette der Innenräume. © Sven Högger


Innen begrüßt die Besucher robustes Ziegelmauerwerk. © Sven Högger
Innenwände aus Sichtmauerwerk
Ziegel, weiße Fliesen und Sichtbeton dominieren die Materialpalette in den Innenräumen. Nur in den weißen Wandnischen rund um die Eingänge ist die Holzverschalung auch im Inneren sichtbar. Unter dem Gebäude befindet sich ein Kellergeschoss mit einer Stromverteilerstation für die Nachbarschaft und für die elektrischen Busse, die in Thonex verkehren.
Architektur: Cabinet Fanny Noël Diogo Lopes Architectes
Bauherren: Commune de Thônex, Services Industriels de Genève (SIG), Etat de Genève - Département des Infrastructures, Transports Publics de Genève (TPG)
Standort: Allée Belle-Terre, Thônex, Genève (CH)
Tragwerksplanung: ZS Ingénieurs civils
Landschaftsarchitektur: Oxalis Architectes Paysagistes
TGA-Planung: Amstein + Walthert Genève
Brandschutz: Zanetti Ingénieurs Conseils






















