Alpines Wohnen
Haus L. in Elsbethen von Dunkelschwarz Architekten
Innenraum Haus L in Elsbethen, © Markus Rohrbacher
Dunkelschwarz Architekten aus Salzburg entwarfen für die Bauherrschaft ein Wohnhaus mit Nebengebäude und gedecktem Zugang und schufen damit ein geschütztes, hofartiges Ensemble.


Haus L. im Salzburger Land, © Markus Rohrbacher


Das Satteldach des Einfamilienhauses entspricht dem regionalen Baustil. © Markus Rohrbacher
Regionaler Baustil
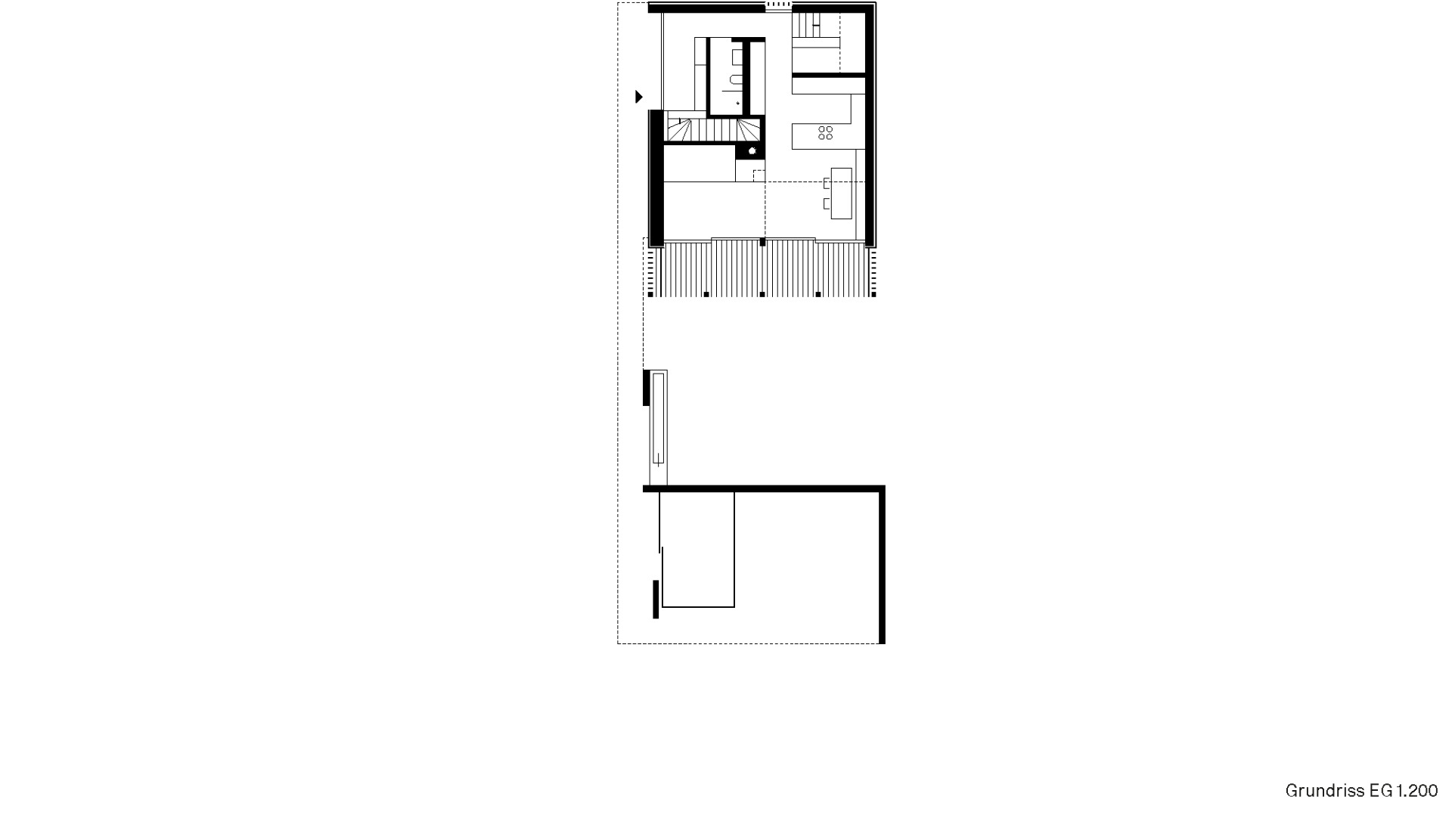
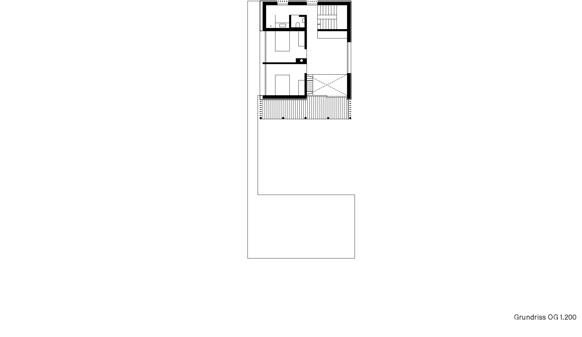
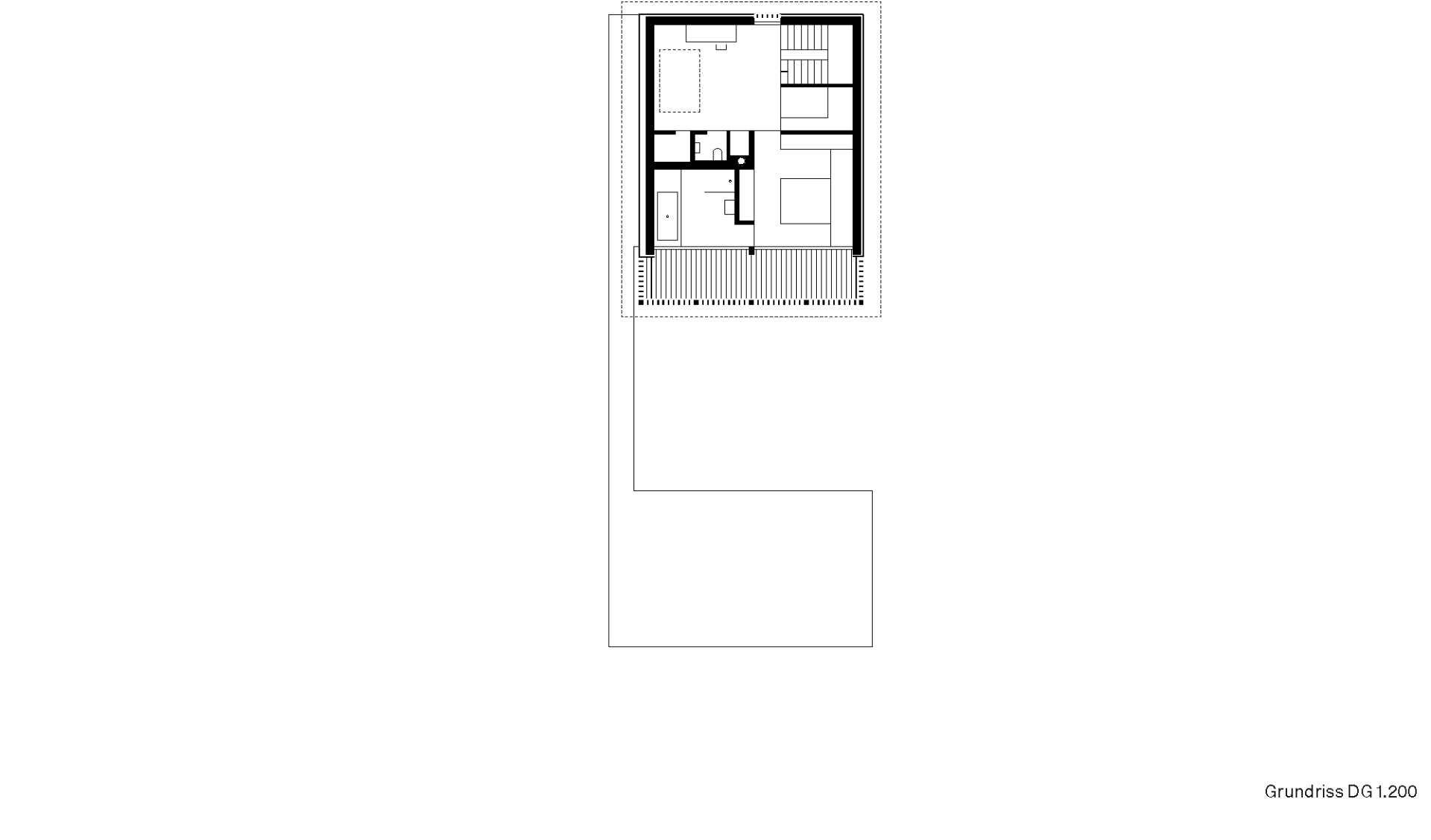
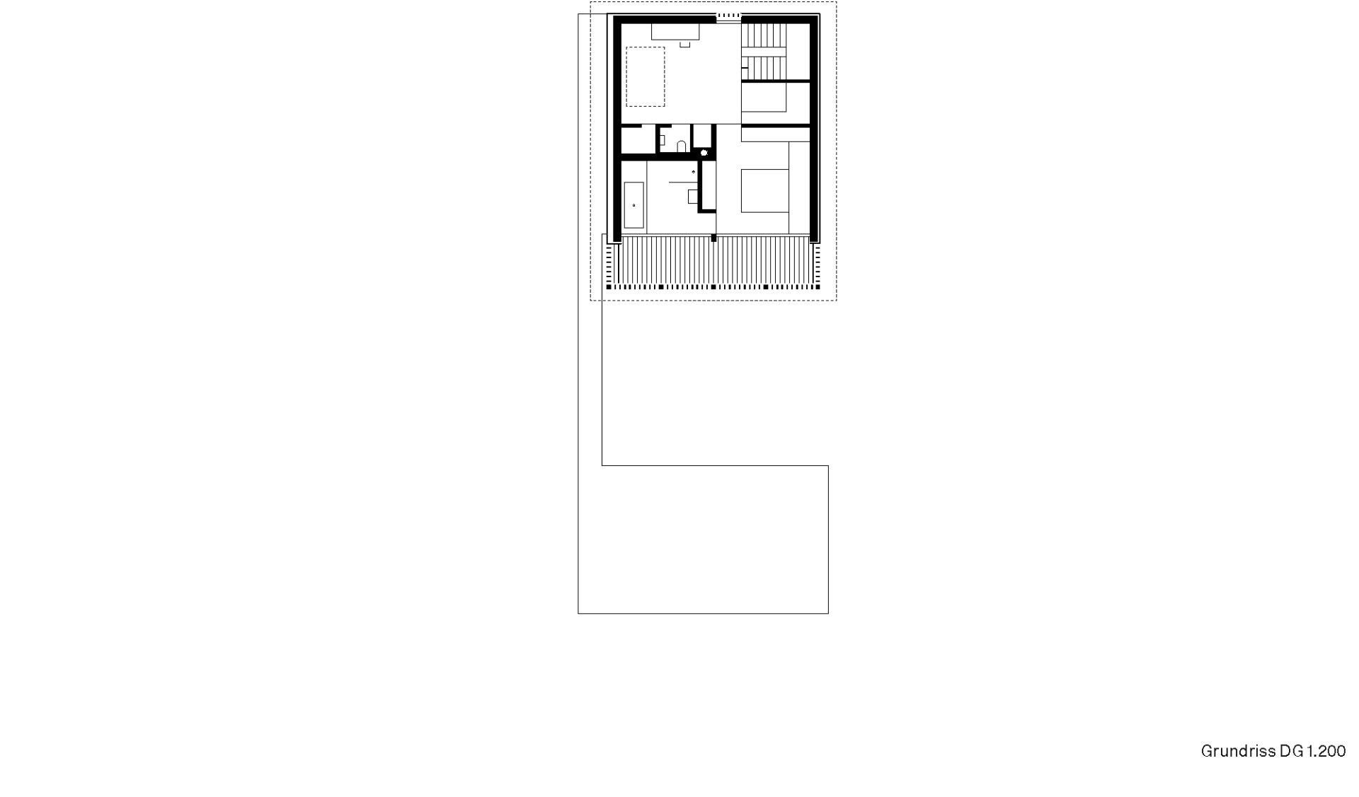
Der rechteckige Grundriss mit steilem Satteldach orientiert sich an der konventionellen Bebauung der Umgebung – im Inneren jedoch ermöglichen Lufträume mit eingespannten Netzen eine unkonventionelle Nutzung und verleihen dem Haus seinen eigenständigen Charakter.


Die Innenräume des Einfamilienhauses sind offen gestaltet. © Markus Rohrbacher
Offene Raumgestaltung
Die fließende, geschossübergreifende Raumfigur erzeugt eine großzügige Offenheit: Küche, offener Kamin, Ess- und Wohnbereich bilden das Zentrum des Hauses. Der so entstehende räumlich verschränkte Baukörper erlaubt in seiner täglichen Nutzung Vieles, bietet Offenheit und Schutz, gibt Wärme und Halt in hölzerner Hülle.
Architektur: dunkelschwarz
Bauherr: Privat
Standort: Elsbethen (AT)

















