Umbau wegen Eigenbedarf
Haus Sutter im Bregenzerwald von Firm Architekten
Nach dem Umbau hüllt sich das Haus in eine Fichtenholzlattung, die teilweise auch die Fenster überdeckt. © Adolf Bereuter
Das Haus Sutter steht am Dorfrand von Au im Bregenzerwald, im Ufergebiet der Bregenzerache und zu Füßen des 2044 m hohen Kanisfluh. Vor dem Umbau durch Firm Architekten fanden darin fünf Wohnungen Platz, von denen vier an Gäste vermietet wurden. Jetzt sind es nur noch zwei, die die Bauherren selbst nutzen.
Außen geschlossen, innen weitläufig
Vor allem im Erdgeschoss ließen die Architekten den in Massivbauweise errichteten Bestand radikal öffnen. Weil die Lage zwischen Fluss und Berg häufig kalte Nordwinde hervorruft, wurde die Terrasse auf der Südwestseite teilweise in das Bauvolumen integriert. Wie das gesamte Erdgeschoss liegt sie eine halbe Etage über dem umliegenden Terrain, was den geschlossenen, introvertierten Charakter des Baukörpers unterstreicht. Dazu trägt auch die Fassadengestaltung bei: Die Haupträume – allen voran der Wohnbereich – erhielten großzügige Öffnungen. Die Fenster der Nebenräume sind dagegen von der Fichtenholzlattung verdeckt, die den ganzen Baukörper umhüllt.


Die nach Südwesten gewandte Terrasse liegt etwas über dem Geländeniveau und ist über eine Außentreppe erreichbar. © Adolf Bereuter
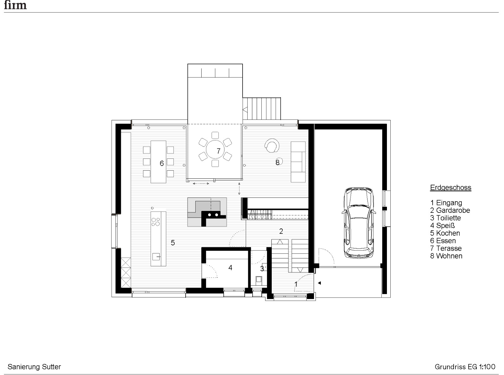
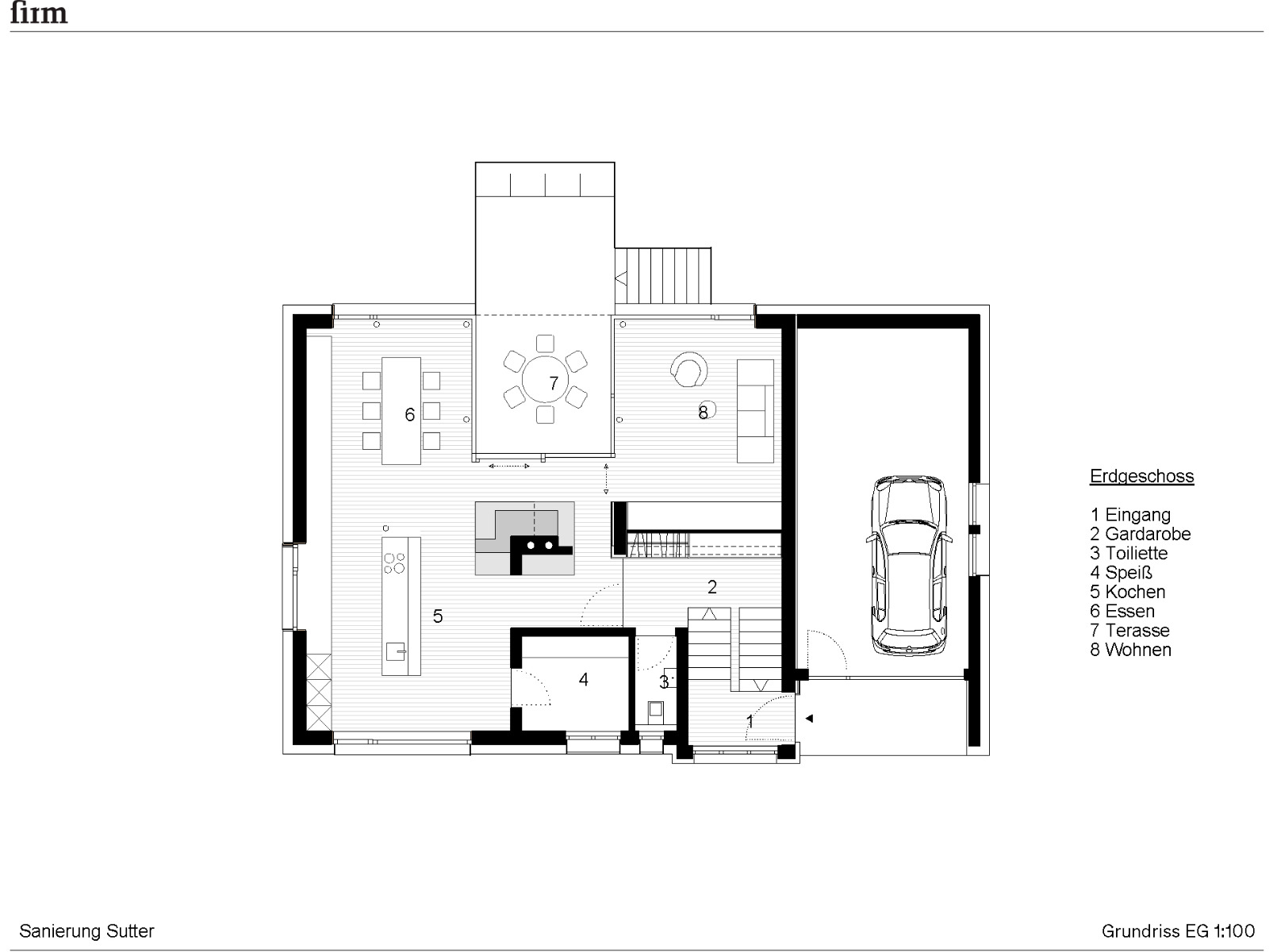
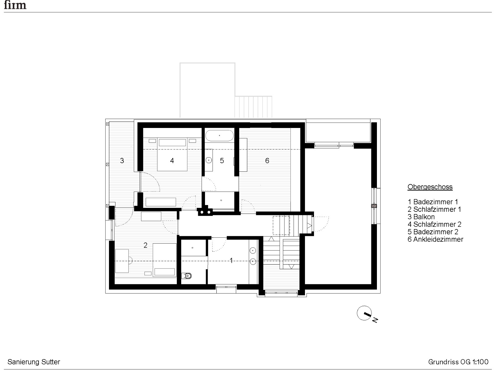
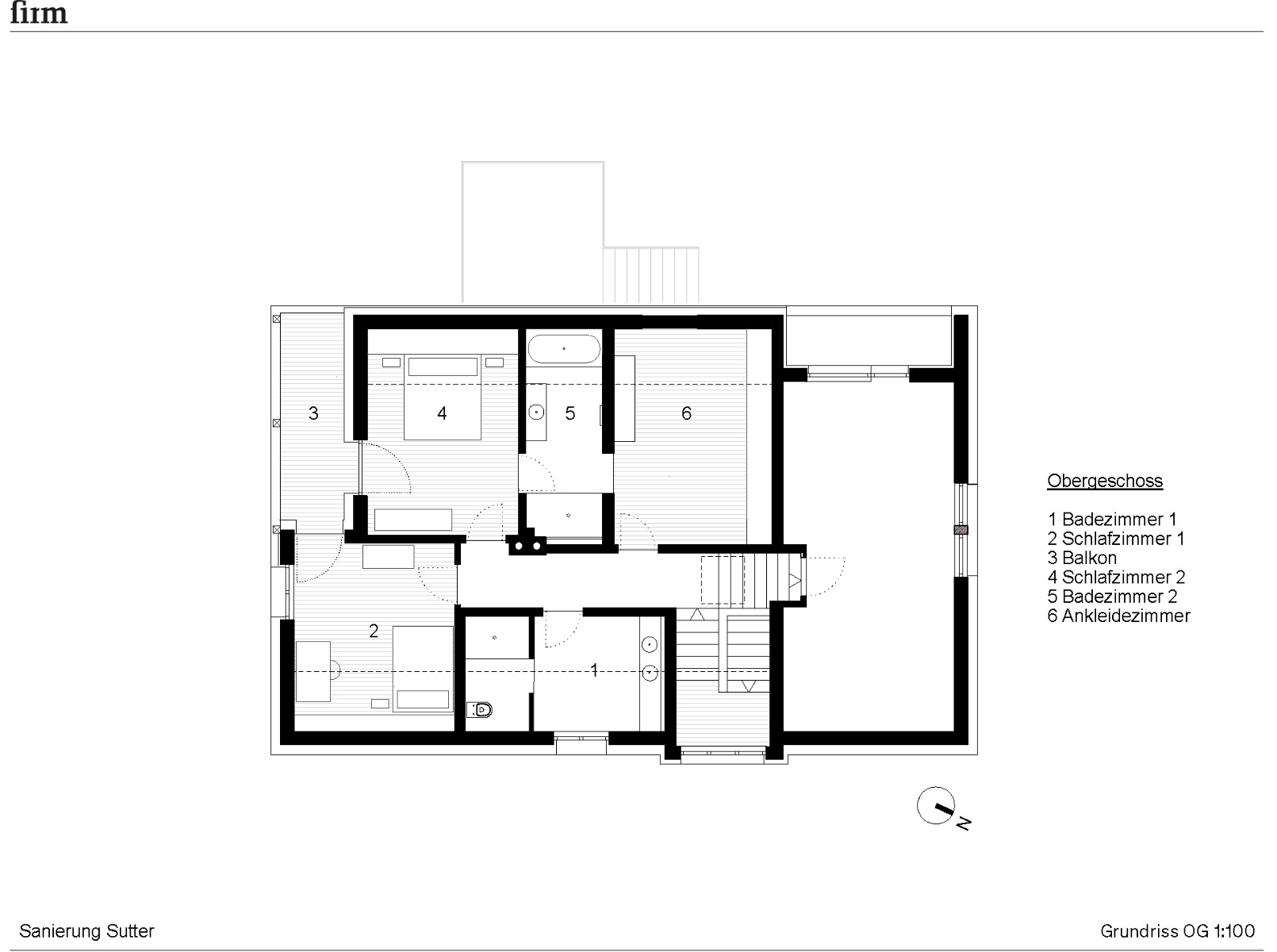
Offene Raumgestaltung
Im Erdgeschoss umgeben Küche, Esszimmer und Wohnbereich in einer offenen Raumfolge den wuchtigen Kachelofen, der aus dem bestehenden Haus übernommen wurde. Die Schlafzimmer und Bäder der Familie liegen hingegen im Obergeschoss; ebenso eine Kleinwohnung über der Garage. In den Innenräumen ergänzen sich Fußböden aus Eschenholz, Wandverkleidungen aus Tanne und ein leicht wolkiger Kalkputz an den Bestandswänden. Alle Einbaumöbel sind aus geöltem Tannenholz gefertigt.


Im Erdgeschoss wurden die Innenräume radikal geöffnet. Entstanden ist eine offene Raumflucht aus Küche, Ess- und Wohnbereich. © Adolf Bereuter
Wiederverwendete Fassadenverkleidung
Die Fassaden wurden im Zuge des Umbaus gedämmt und alle Fenster erneuert. Auch das Sparrendach ist neu gedämmt und mit Aluminiumschindeln belegt. Wo möglich, nutzten die Architekten Materialien aus dem Bestandsgebäude neu. So etwa die Fassadenverkleidung aus Holz, die gehobelt wurde und im Aufbau des Trockenbodens eine neue Verwendung fand. Dadurch, dass kein Nassestrich eingebracht wurde, verkürzte sich auch die Bauzeit.
Architektur: firm Architekten
Bauherr: privat
Standort: Au (AT)
Nutzungsfläche: 250 m²


















