// Check if the article Layout ?>
Heimat der Farben: Firmenzentrale von Brückner & Brückner
Foto: Constantin Meyer
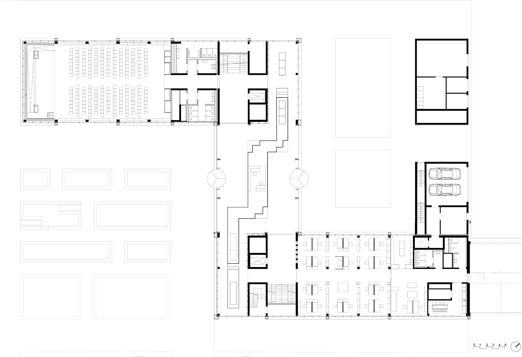
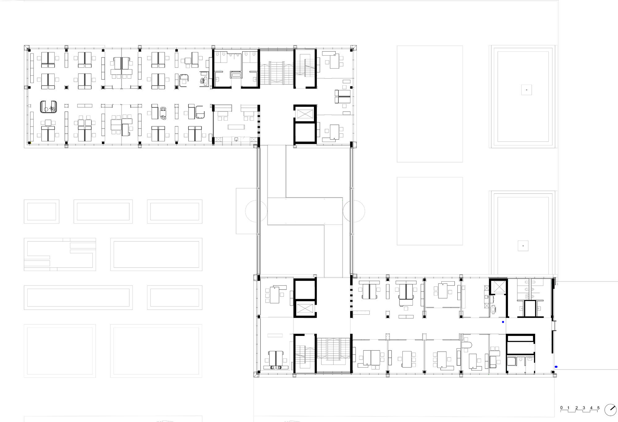
Am Ortseingang von Ober-Ramstadt in den Hügeln des vorderen Odenwalds befindet sich die Firmenzentrale von DAW SE. Als Familienunternehmen in der fünften Generation gehört die Geschichte so selbstverständlich zur Firmenidentität, wie Gegenwart und Zukunft. Der Entwurf von Brückner & Brückner Architekten sieht deshalb auch einen behutsamen Umgang mit dem Bestandsgebäude aus den 1950er- und 1960er-Jahren vor.
Die Handschrift des viergeschossigen Baus ist erhalten geblieben und auf die Neubauten übertragen worden, wobei die äußere Erscheinung insgesamt lebendiger und farbiger wurde. Die Fenster sind zum Teil geschossübergreifend gerahmt. Diese Rahmen greifen auf der Fassade wie Tetris-Steine ineinander. Sie setzen sich aus dezenten Natursteinplatten und hellgrau lasierten Fichtenholzpaneelen zusammen. Auch energetisch wird die Gebäudehülle nun besser genutzt. Eine hinterlüftete Fassade mit Hanfdämmung produziert Energie und trägt ihren Teil dazu bei, dass im Inneren auf eine aktive Lüftung verzichtet werden konnte.
Der Zugang zum Gebäude erfolgt durch das zentral gelegene, transparente Foyer. Die Halle nimmt drei der sechs Geschosse ein und gibt durch ihre Glasfassaden den Blick auf die benachbarten Produktionsstätten frei. Besucher werden von einem »Roten Teppich« empfangen, der Teil einer 50 m langen Möbelskulptur ist. Dieses markante Band führt in alle öffentlichen Bereiche, die Seminarräume, Treppen und die Cafeteria. Eine Brücke windet sich in luftiger Höhe durch das Foyer und verbindet die beiden angrenzenden Gebäudeflügel miteinander.
Neben einem 400 m² großen Saal mit 300 Sitzplätzen bietet die Firmenzentrale von DAW SE auch Platz für 140 Mitarbeiter. Den verschiedenen Abteilungen wurde jeweils eine charakteristische Farbe zugeteilt. So ist die Geschäftsleitung in ihren rundum verglasten Einzelbüros von Purpur umgeben, während dem Vertrieb ein strahlendes Gelb zugeschrieben wurde. Da die gewünschte Bewegungsfreiheit am Arbeitsplatz offene Grundrisse erfordert, blieb nicht allzu viel Platz um die Farben anzubringen. Von der Decke, den daran befestigten Akustikelementen und den Wangen der Stützen leuchten sie nun kräftig. Durch die Kombination mit hellem Eichenholz wirken die Büroräume hochwertig und warm.
Lediglich die Räume des FarbDesignStudios, jene Abteilung, die mit den Architekten das Farbkonzept entwickelt hat, bleiben weiß. So können auch künftige Materialmuster in einem neutralen Licht beurteilt werden.




















