Hereinspaziert durchs historische Tor: Schule von Mikou Studio
Foto: Filip Dujardin
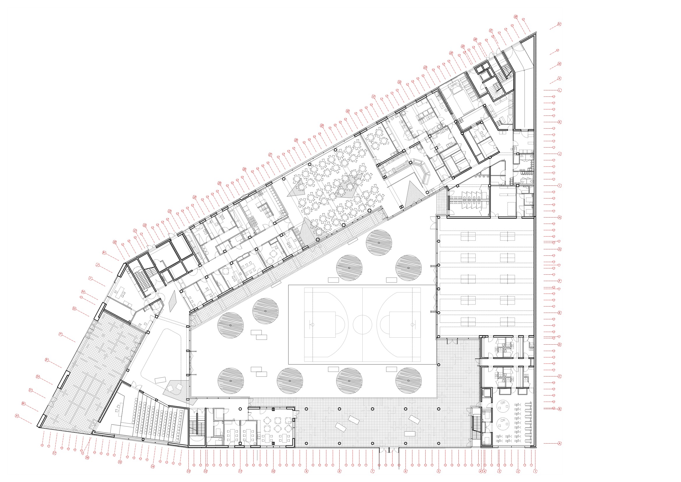
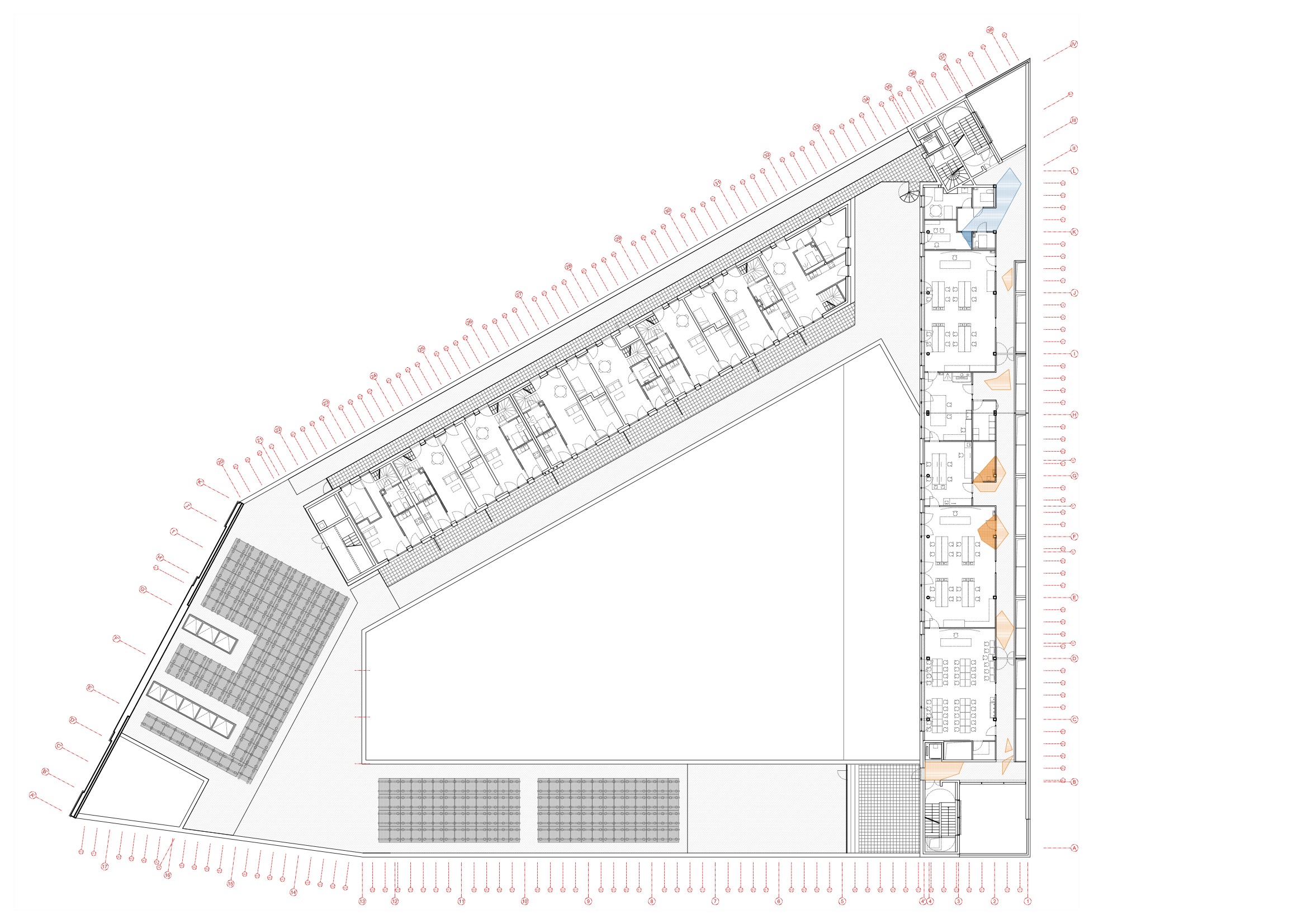
Boulogne-Billancourt ist ein Vorort süd-westlich von Paris. Auf dem Areal, auf dem sich früher das Renault-Werk befand, ist inzwischen ein ganzer Stadtteil entstanden. Die einstige Pforte zum Werk steht heute an der Grenze zwischen der Altstadt und dem neu entwickelten Stadtteil. Sie wird von den Architektinnen als bedeutende städtebauliche Komponente geschätzt und deswegen als Bestandteil der Fassade nur leicht verändert und integriert. Das Grundstück für den Neubau einer weiterführenden Schule ist annähernd dreieckig und schließt mit dem Kopfende an diese Pforte an. Der Baukörper zeichnet den Umriss des Grundstückes nach, sodass er einen großen Innenhof in der Mitte umschließt. An mehreren Stellen ist das Erdgeschoss aufgeständert und generiert so einen offenen, einladenden Raum. Das entspricht ganz der gemeinschaftlichen Nutzung des Auditoriums und der Sporträume, die sich dort befinden und auch Anwohnerinnen und Anwohnern offen stehen.
Der Sockel des Gebäudes ist in strukturiertem Sichtbeton ausgeführt. Darüber ist die Fassade sowohl zum Innenhof als auch zur Umgebung mit bedruckten und mit emaillierten Glaspaneelen verkleidet. Die mineralisch kühle Farbpalette wird erst im Innenraum durch kräftige Farbakzente auf den Geländern, den Böden und den Fliesen der Wandverkleidungen gebrochen. Als Verteiler übernimmt die zweigeschossige Halle hinter dem Eingangsportal eine zentrale Rolle. An französischen Schulen hat das Schultor generell eine größere Bedeutung als in Deutschland, da es während des Schultags verschlossen bleibt und Ein- und Auslass streng kontrolliert werden. Im Lycée du Trapèze laufen an diesem Punkt zusätzlich sämtliche Funktionen zusammen: Pausenbereiche, das öffentliche Auditorium und der Zugang zu den Unterrichtsräumen. Nur die Maisonette-Apartments im dritten Obergeschoss werden durch einen separaten Eingang im Süden erschlossen.
Zugunsten eines angenehmen Raumklimas im Sommer lassen sich die Gemeinschaftsräume manuell lüften. Ihre Fassaden im Erdgeschoss können sogar komplett zum Innenhof geöffnet werden.
Weitere Informationen:
Künstler: Benoit van Innis
Textildesign: Chevalier Masson
Innenarchitektur: Doorzon
Fotografie: Filip Dujardin



































