In luftiger Höhe
Hochhäuser mit Weltrekord-Auskragung in Dubai von Nikken Sekkei
Die beiden Türme von Nikken Sekkei ragen mit 235 und 305 m in die Skyline von Dubai. © Hufton & Crow
Es gibt recht viele Hochhäuser in Dubai. Einige ahmen westliche Vorbilder wie den Big Ben oder das Crysler Building nach, nicht alle zeigen Charakter. Das ist bei den zwei Türmen One Za‘ abeel des japanischen Architekturbüros Nikken Sekkei anders. Die beiden Hochhäuser ragen mit 235 und 305 m in die Skyline zwischen dem Flughafen und dem Finanzdistrict der Stadt.


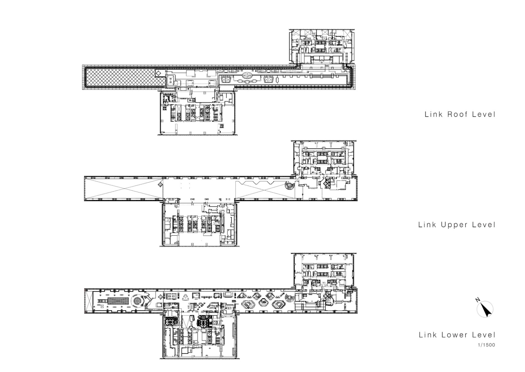
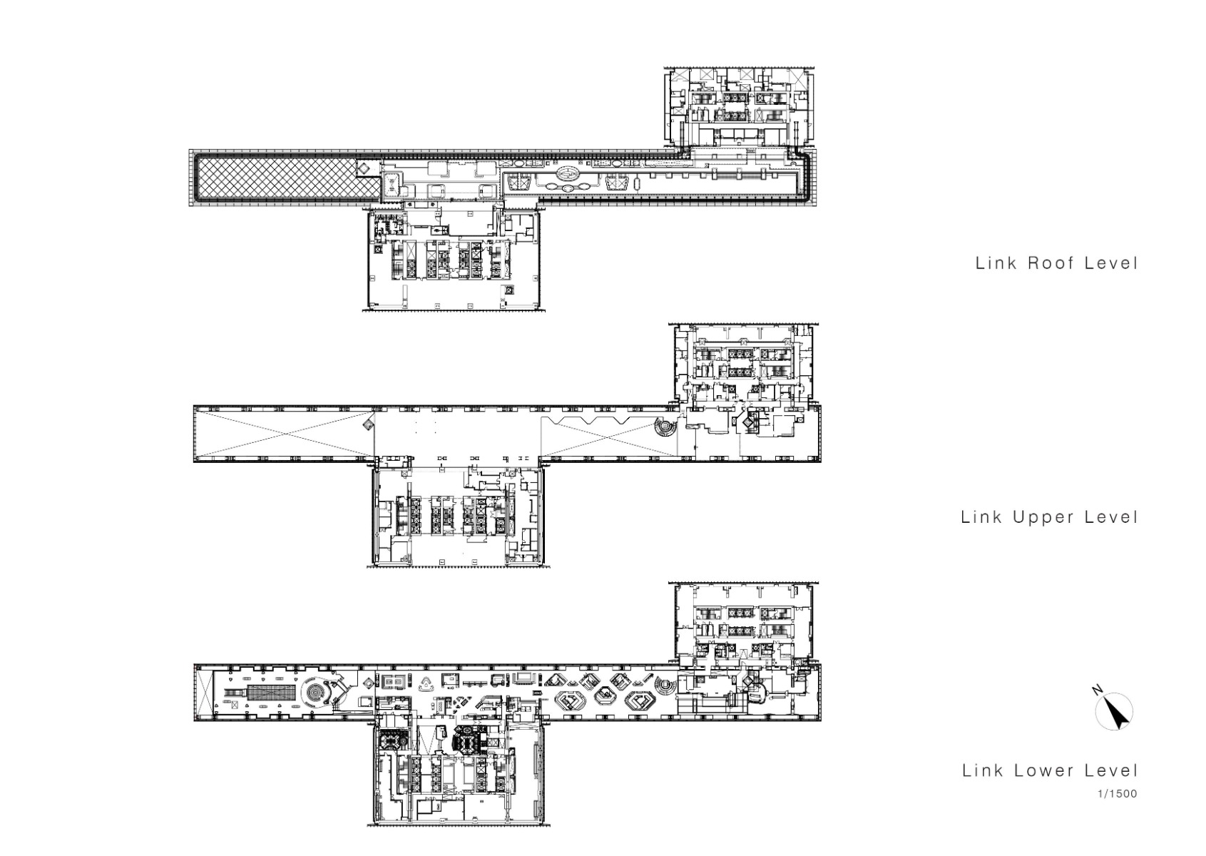
Weltrekord-Auskragung: In 100 m Höhe sind die Hochhäuser durch eine dreigeschossige Brücke verbunden. Sie kragt an einem Ende 67,5 m aus. © Hufton & Crow
Brücke mit Rekord-Auskragung
In luftigen 100 m Höhe sind sie durch eine spektakulären 230 m lange Brücke miteinander verbunden. „The Link“, so der Name der dreigeschossigen verglasten Verbindung, kragt 67,5 m aus – ein Weltrekord. Unter dem Baukörper und zwischen den Hochhäusern tost ein sechsspuriger Highway, auf seinem Dach breitet sich in luftiger Höhe eine Outdoor-Plattform mit atemberaubendem Panorama aus.
Multi-Use der Superlative
Insgesamt 530 000 m² Fläche fasst das Projekt mit sieben Untergeschossen. Die Hochhäuser wurden nach nur sechsjähriger Bauphase im Februar 2023 fertiggestellt. Ihre Nutzung ist so vielschichtig wie eine Stadt in der Stadt. Im dreigeschossigen Sockelgebäude The Podium befinden sich 12 000 m² Fläche für Läden und Restaurants. Auf seinem Dach liegt ein großer tropischer Park mit Kinderspielplatz und schattigen Wegen zwischen den Wasserflächen. Der kleinere Turm fasst 264 Wohneinheiten. In den 68 Geschossen des zweiten Turms befindet sich zwei neue Hotels von Kerzner International, außerdem Büros, Restaurants und Bars.


In rund 100 m Höhe geben die Restaurants Panoramablicke auf die Stadt frei. © Hufton & Crow
Das neue One & Only mit 229 Zimmern sowie zusätzlich Private Homes und Branded Penthouses ist als vertikales Urban Resort konzipiert. Neu ist auch das Hotelkonzept des Siro. Mit seinem breiten Fitnessangebot ist es auf die Sportbegeisterung der Gäste ausgerichtet. Die stützenfreie Glasbrücke zwischen den beiden Türmen nimmt acht Restaurants und Bars auf. Die Räume sind als offenes Kontinuum angelegt – mit Rundumblicken über die Stadt. Auf dem Dach befindet sich ein Outdoor-Bereich mit Infinity Pool in luftiger Höhe.


Die Vorhangfassade der Türme ist je nach Nutzung in unterschiedlichen Rastern konstruiert. © Hufton & Crow


Glasschwerter strukturieren das Außenbild und dienen als Sonnenschutz. © Hufton & Crow
Konstruktion und Fassade
„Der Turm ist ein starkes Statement“, so Fadi Jabri, CEO von Nikken Sekkei Dubai. Sein Büro mit Hauptsitz in Tokio war unter anderem auch für die komplexe Tragwerksplanung zuständig. Die rund 10 000 t schwere Stahlstruktur des Links wurde in zwei Etappen über dem Highway montiert. An zwei Stellen ist der die verglaste Stahlkonstruktion mit 21 m Spannweite mit den Hochhäusern verbunden. Die rautenförmige tragende Struktur bleibt durch die Verglasung auch im Innenraum sichtbar. An der Spitze der Auskragung fällt der Blick durch den gläsernen Boden in die Tiefe, bis auf den Verkehr weit unten. Etwa 60 Fachplanungsbüros waren an dem Leed-gold-zertifizierten Projekt beteiligt. „Es ist noch nicht zu Ende“, so der ebenfalls deutsche Projektarchitekt David Lehnort von Nikken Sekkei. Kurz vor der Hoteleröffnung ist er für den letzten Feinschliff gekommen. 2013 gewann Nikken Sekkei den Wettbewerb, auch die elegante Fassade hat dazu beigetragen. Je nach Nutzung wechselt das Raster der Vorhangfassade von 12 m in den Büroetagen bis zu 6 und 9 m. Glasschwerter bieten Sonnenschutz und strukturieren den Spiegeleffekt zu einem zurückhaltenden Erscheinungsbild. Ein Stück Japan in Dubai.
Architektur: Nikken Sekkei
Bauherr: One Za’abeel Holdings LLC
Standort: Za‘ abeel Street, Za‘ abeel 1, Dubai (AE)
Tragwerksplanung, Haustechnik, Landschaftsplanung, Projektmanagement: Nikken Sekkei
Generalübernehmer: Alex Engineering and Contracting
Fertigstellung: Februar 2023
























