Hochprozentiges Erlebnis: Destillerie in Bad Mergentheim
Foto: Brigida Gonzalez
Wenn ein Bauherr die Silhouette seines Neubaus – oder Teile davon – kurzerhand ins firmeneigene Logo übernimmt, weiß der Architekt: Er hat einiges richtig gemacht. So geschehen in Bad Mergentheim, wo der Architekt Rolf Klärle und sein Büro für einen ortsansässigen Familienbetrieb eine neue Schnapsbrennerei mit Verkaufsraum geplant hatten. Die Ambition war klar: Auf dem dreieckigen Restgrundstück in einem gesichtslosen Gewerbegebiet sollte ein Neubau mit Wiedererkennungswert entstehen, in dem die Kunden beim Brennvorgang zusehen, die Produkte anschließend verköstigen und mit nach Hause nehmen können.
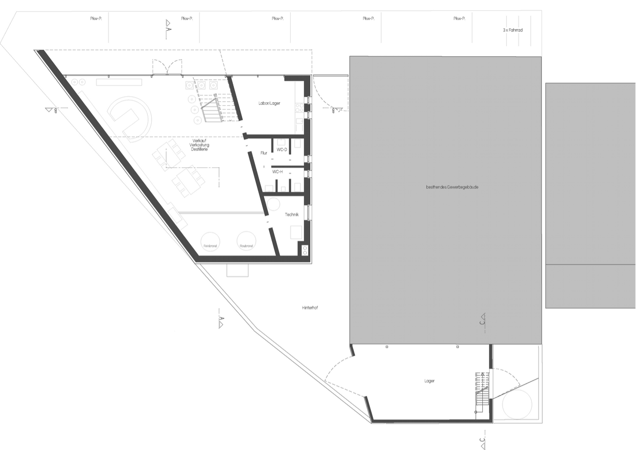
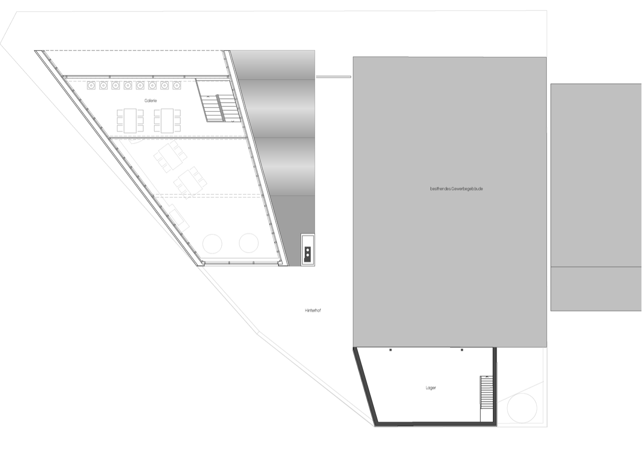
Die Architekten gliederten den trichterförmigen Gebäudegrundriss in zwei Segmente – einen breiteren für die Brennerei samt Verkaufsraum und einen schmaleren für Labor, Technik- und Sanitärräume. Das bestimmende Merkmal des Neubaus – und Logobestandteil der Brennerei Herz – ist das vierteilige Tonnendach, das sich quer über den größeren Gebäudeteil spannt. Der Seitentrakt greift das Gestaltungsthema mit zwei kleineren Tonnen auf. In seinen rückwärtigen Teil integrierten die Architekten den Schornstein als integralen Teil ihres Neubaus. Dazu Rolf Klärle: „Die dadurch entstehenden Formen verleihen dem Haus einerseits etwas vom Charme eines historischen Industriegebäudes und lassen es andererseits selbst irgendwie ‚maschinenhaft’ erscheinen, fast als ob es Teil des Brennvorganges in seinem Inneren sei.“ Dort wiederum bilden die Brennblasen für den Schnaps das zentrale Element und den Fluchtpunkt aller Blickachsen. Das darüber liegende, hintere Tonnendachsegment ist höher als die übrigen und endet in einem Oberlichtband an der Gebäuderückwand, durch das die Brenndämpfe nach draußen abgelüftet werden können. Die Tonnendächer sind als Holzkonstruktion auf den brettrau geschalten Sichtbetonwänden des Hauses aufgesetzt. Außen zogen die Architekten die Holzverschalung bis zum Erdboden herunter, sodass der Neubau innen massiv und außen hölzern erscheint. Der Zwischenraum zwischen Betonwand und Fassadenhülle ist mit Zellulose gedämmt, die Bodenplatte besteht aus flügelgeglättetem Beton.


















