Höhe gewonnen: Wohnhaus in Tacna
Foto: Diego Elgueta
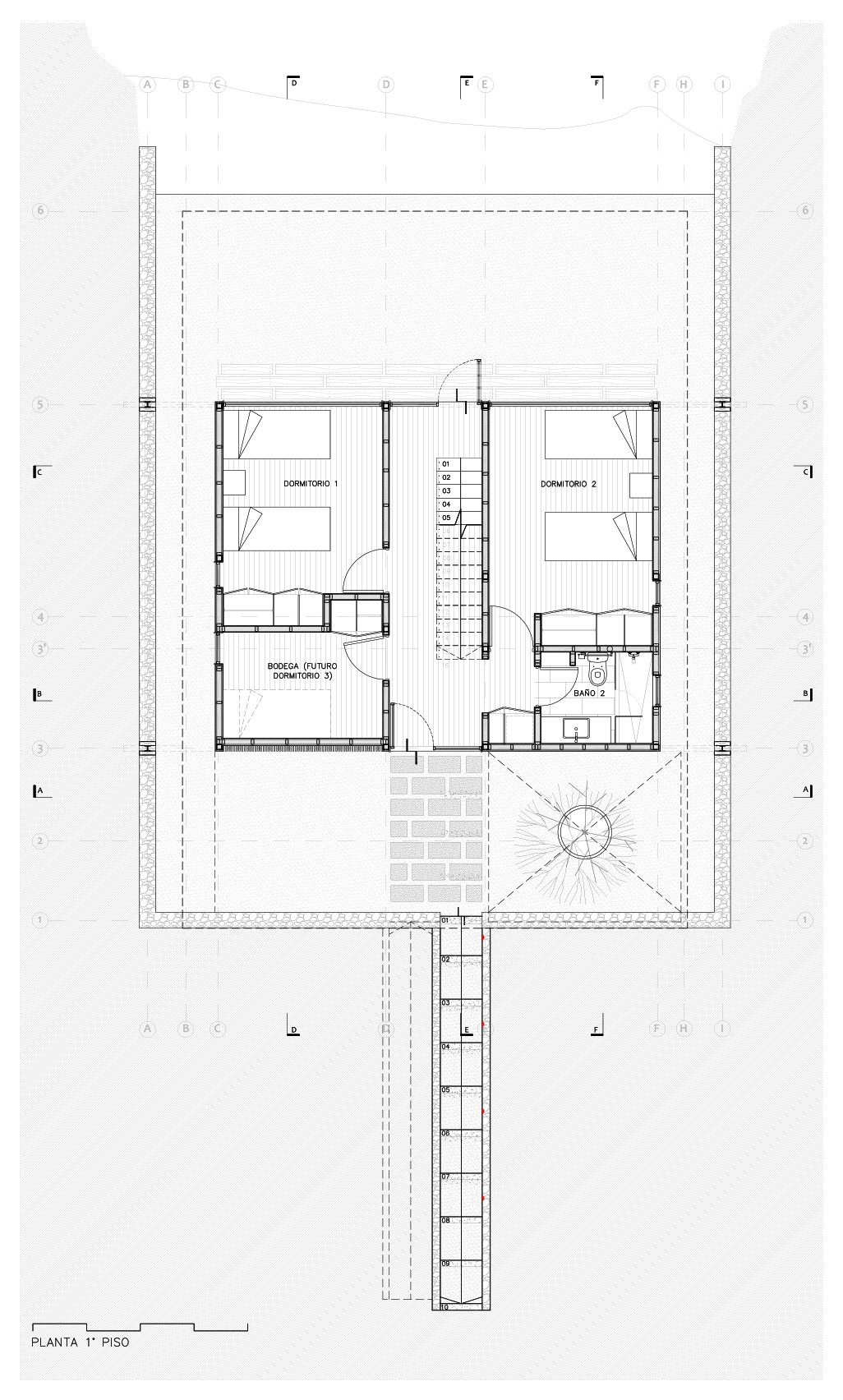
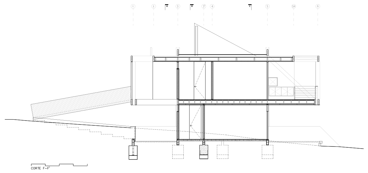
An Kiefernholz herrscht in Chile kein Mangel; es wächst in riesigen Plantagen vielerorts im Land. Die Materialwahl für das Wochenendhaus in Tacna lag für PAR Arquitectos daher nahe, das Tragwerk ist dennoch außergewöhnlich: Das Obergeschoss wird von einem außenliegenden Skelett aus mächtigen Brettschichtholzbalken getragen. Die geschlossenen Außenwände bestehen aus geschosshohen Sandwichpaneelen, sogenannten Structural Insulated Panels, und sind ebenfalls mit Kiefernholz beplankt. Einzig in der Decke über dem Erdgeschoss verbergen sich einige Stahlträger – die einzigen im Haus, wie die Architekten versichern.
Das Gebäude ist als Wochenendresidenz für bis zu acht Personen konzipiert. Da das Grundstück leicht zum Meer hin abfällt, führen von der Zufahrt im Westen eine flache Treppe hinunter ins Erdgeschoss und eine Rampe hinauf auf die obere Ebene. Innen verbinden filigrane Stahl-Holztreppen die beiden Ebenen miteinander und mit der – natürlich kiefernholzbeplankten Dachterrasse. Mit einem Kniff sorgten die Architekten für Schatten und zusätzliche Privatsphäre in dem relativ dicht bebauten Wohngebiet: Das Obergeschoss kragt deutlich über die untere Ebene hinaus. Auf der Eingangsseite schützt ein Holzscreen mehrere Meter vor der eigentlichen Fassade die Bewohner vor ungewollten Einblicken ins Haus.

























