Höhenrekord im Massivholzbau: Wohngebäude von C.F. Møller in Västerås
Foto: Nikolaj-Jakobsen
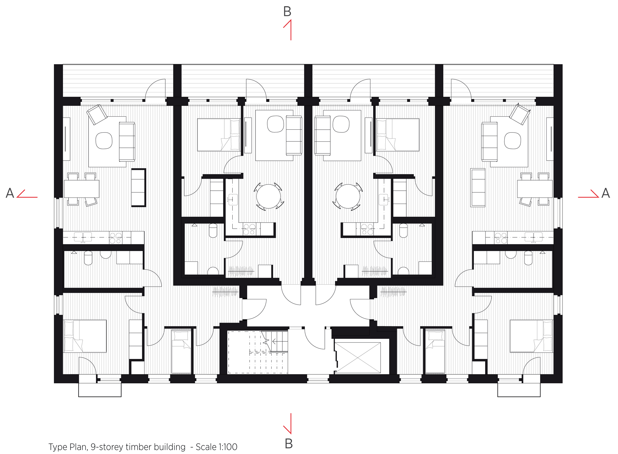
Der Holzbau erlebt in Schweden schon länger einen regelrechten Boom. Gebäude mit sieben bis acht Geschossen gibt es bereits einige, vor allem im südschwedischen Växjö und in der Gegend rund um Stockholm. Das Wohnhaus Kajstaden von C.F. Møller setzt dennoch einen neuen Rekord: Mit achteinhalb Geschossen ist der Neubau am Ufer des Mälarsees in Västerås, eine Autostunde westlich von Stockholm, das bisher höchste Wohngebäude des Landes mit einer Tragstruktur komplett aus Massivholz. »Komplett« heißt in diesem Fall: einschließlich Aufzugsschacht, Treppenhaus und Erdgeschoss – jenen Bauteilen also, die bei anderen Holzgebäuden aus Gründen des Brandschutzes und der räumlichen Flexibilität gern aus Stahlbeton errichtet werden. Die Grundstruktur bilden Wände, Geschossdecken und Balkonplatten aus Brettsperrholztafeln. An den Grundrissen lässt sich leicht das Tragwerksprinzip ablesen; mit außen U-förmig umlaufenden, tragenden Außenwänden und einer kammartigen Struktur aus ebenfalls tragenden Innenwänden. Dadurch erreichten die Architekten die im Massivholzbau so wichtige Begrenzung der Deckenspannweiten. Die tragenden Wände geben zugleich die Grundrissgliederung in vier Wohneinheiten pro Geschoss vor, die sich allesamt mit großen Glasflächen und vorgelagerten Balkonen zum See hin öffnen. Die Vierteilung ist vor allem an der Westfassade und der Dachsilhouette ablesbar: Zwei der obersten Wohnungen wurden mit aufgesetztem Staffelgeschoss und zweigeschossigen Lufträumen auf der Seeseite zur Maisonette ergänzt. Auch das Erdgeschoss ist überhöht, obwohl dort ebenfalls Wohnungen untergebracht sind.
Als Vorteile der Holzbauweise nennen die Architekten vor allem die CO2-Bilanz und die Zeitersparnis. Über den Lebenszyklus der Immobilie gerechnet, spart die Wahl von Holz statt Stahlbeton nach ihren Berechnungen 550 Tonnen des Treibhausgases ein. Für die Montage des Massivholzbaus benötigten vier Arbeiter lediglich drei Tage pro Geschoss. Außen erhielt der Neubau eine zusätzliche Dämmung und eine Verkleidung mit vorgefertigten, geflammten Holzpaneelen. Ihre dunkle Färbung bildet einen reizvollen Farbkontrast zu der helleren, weil nicht geflammten Verkleidung auf der Innenseite der Balkonnischen. Im Inneren des Hauses ist von der Holzbauweise indes wenig zu spüren. Hier sind Decken und Wände lückenlos mit Gipskarton verkleidet.


















