Gemeinschaftliches Wohnen am Flussufer
Hof an der Wümme von Felix Brinkhege
Blick vom Flussufer auf das neue eingeschossige Wümmehaus neben dem sanierten Bestandsgebäude und den Innenhof. © Caspar Sessler
Ein preußischer Prinz ließ sich Anfang des zwanzigsten Jahrhunderts am Ufer der Wümme nieder und ließ ein Haupt- und Pförtnerhaus umgeben von einer 10 000 m² umfassenden Parkanlage errichten. Im heutigen Bremen-Borgfeld wurde das denkmalgeschützte Anwesen – eingebettet zwischen Fluss, Deichen und dem Naturschutzgebiet der Wümmewiesen – 2021 von Felix Brinkhege zu einer Wohngemeinschaft für bis zu sieben Parteien erweitert. Die nun gemeinsam als Garten genutzte Parkanlage mit Bootshaus und Zugang zum Fluss galt es dabei weitestgehend so zu erhalten, wie sie bereits 1909 angelegt wurde.


Blick ins Arbeitszimmer des Wümmehauses, im Hintergrund das Scheunenhaus, © Caspar Sessler
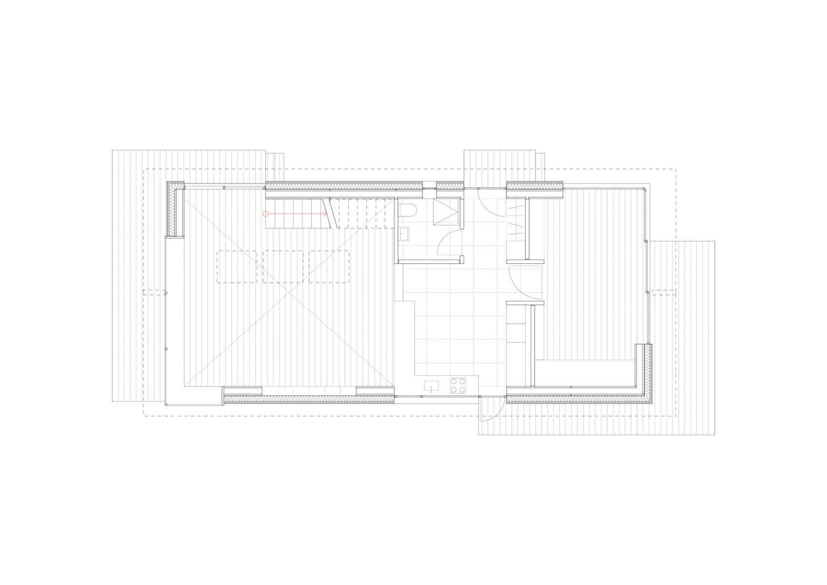
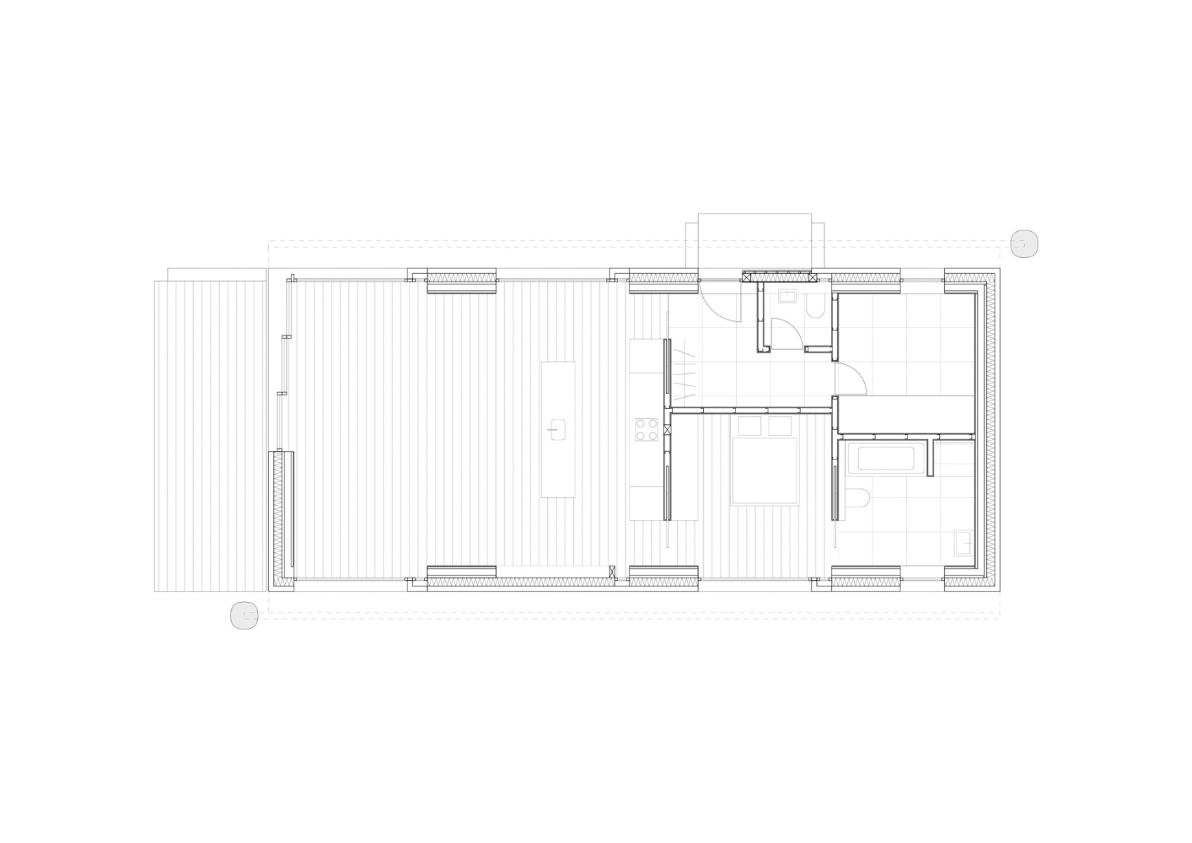
Ländlicher Hofcharakter
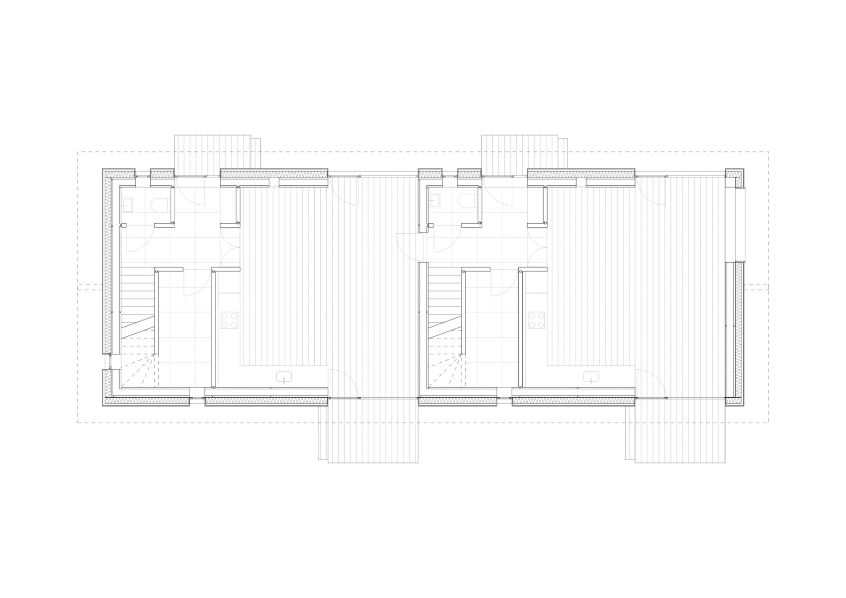
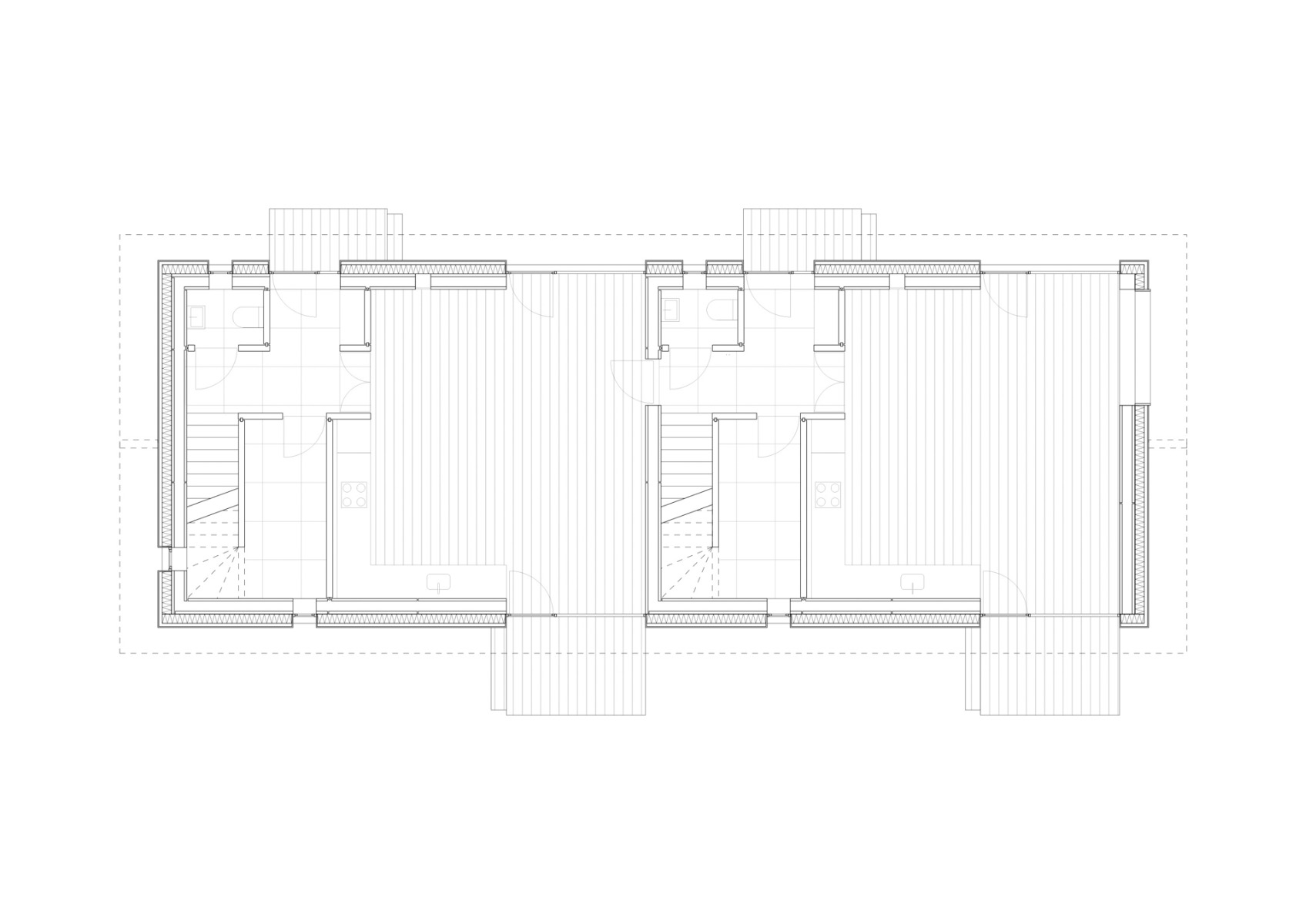
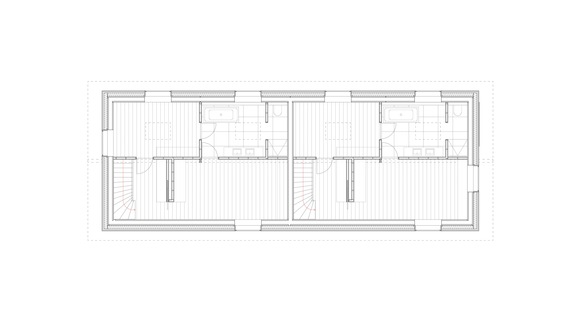
Das Bestandsgebäude von 1935 erhielt eine neue Aufteilung und eine denkmalgerechte Sanierung. Die Neubauten eines Doppelhauses und zwei freistehender Häuser fügen sich auf dem Grundstück an den Stellen des ehemaligen Pferdestalls, der Scheunen und Schuppen des Hofes ein. Das Ensemble aus Alt- und Neubauten formt somit eine nach innen geschützte Hofsituation, angelehnt an die ehemalige landwirtschaftliche Typologie eines ländlichen Bauernguts.
Verbindung zum Wümmemoor
Da das Grundstück zum Überschwemmungsgebiet der Wümmewiesen gehört, wurden alle Häuser nicht unterkellert auf kleinen Warften errichtet. Um einen Ortsbezug herzustellen wurden die drei verschiedenen Klinkermischungen des Schuppenhauses in einer örtlichen Ziegelei mit Torf gebrannt. Dies suggeriert eine scheinbar bereits gealterte Materialität.


Das Schuppenhaus und der Innenhof im Hintergrund, © Caspar Sessler
Ebenso inspiriert durch die lokale Tradition der Torfstecher, sind die beiden Scheunenhäuser mit einer karbonisierten Holzfassade verkleidet. Diese haben die Holzbohlen ihrer Stege und Boote mit dem Verfahren des Verkohlens – ähnlich der jahrhundertealten japanischen Technik Shou Sugi Ban – vor Insekten und der Feuchtigkeit des Moores geschützt.


Die Dächer der Gebäude sind mit unbehandelten Stehfalzblechen aus Aluminium sowie (im Foto nicht sichtbar) historischen Doppelmuldenfalzziegeln gedeckt. © Felix Brinkhege


Die auskragenden Elemente der bis zu 4 m hohen Fensterscheiben treiben die Tradition des Blumenfensters auf die Spitze. Ein frischer Strauß signalisiert Einbrechern, dass das Gebäude bewohnt ist. © Felix Brinkhege
Materialkombination aus Beton & Holz
Die ausgedehnten Spannweiten und großzügigen Eckverglasungen der Bauvolumen wurden aus einer Kombination von Betonfertigteilen und Ortbeton errichtet. Auskragende Stahlwinkel tragen die bis zu 4 m hohen Festverglasungen und ermöglichen dabei im Innenraum eine ausreichende Tiefe für Sitz- und Liegemöglichkeiten auf den Fensterbänken. Im Innenraum finden sich weitestgehend unverputzt belassene Materialien wie polierter Sichtbeton und Betonestrich. Böden, Vertäfelungen und Einbaumöbel aus Eichenholz kreieren eine warme Atmosphäre.
Architektur: Felix Brinkhege
Tragwerksplanung & Klimatechnik: ConcreTec GmbH & Co. KG
Geotechnik: Underground
Standort: Katrepeler Landstraße 48–52, 28357 Bremen (DE)
Hersteller:
Vorgefertigte Betonelemente: fdu GmbH & Co. KG
Klinker: Torfbrand Architektur-Klinker





























