// Check if the article Layout ?>
Holz-Beton-Strohbau: Turnhalle in Rillieux-la-Pape
11h45
Vor zwei Jahren stellte das Architektur- und Ingenieurbüro Tectoniques im Rillieux-la-Pape nördlich von Lyon das Paul-Chevallier-Schulzentrum fertig. Der 5000 m2 große Gebäudekomplex besteht aus zwei asymmetrischen, V-förmigen Holzbauten, die eine Kindertagesstätte und eine Grundschule beherbergen.
Eine überaus regelhafte Form wählten die Architekten nunmehr für das „Gymnase Hacine Chérifi“, das den nordöstlichen Abschluss des Schulareals bildet. Die Doppelturnhalle erhielt ihren Namen zu Ehren des gleichnamigen, ehemaligen Boxweltmeisters, der 1969 in Lyon das Licht der Welt erblickte und in Rillieux-le-Pape aufwuchs.
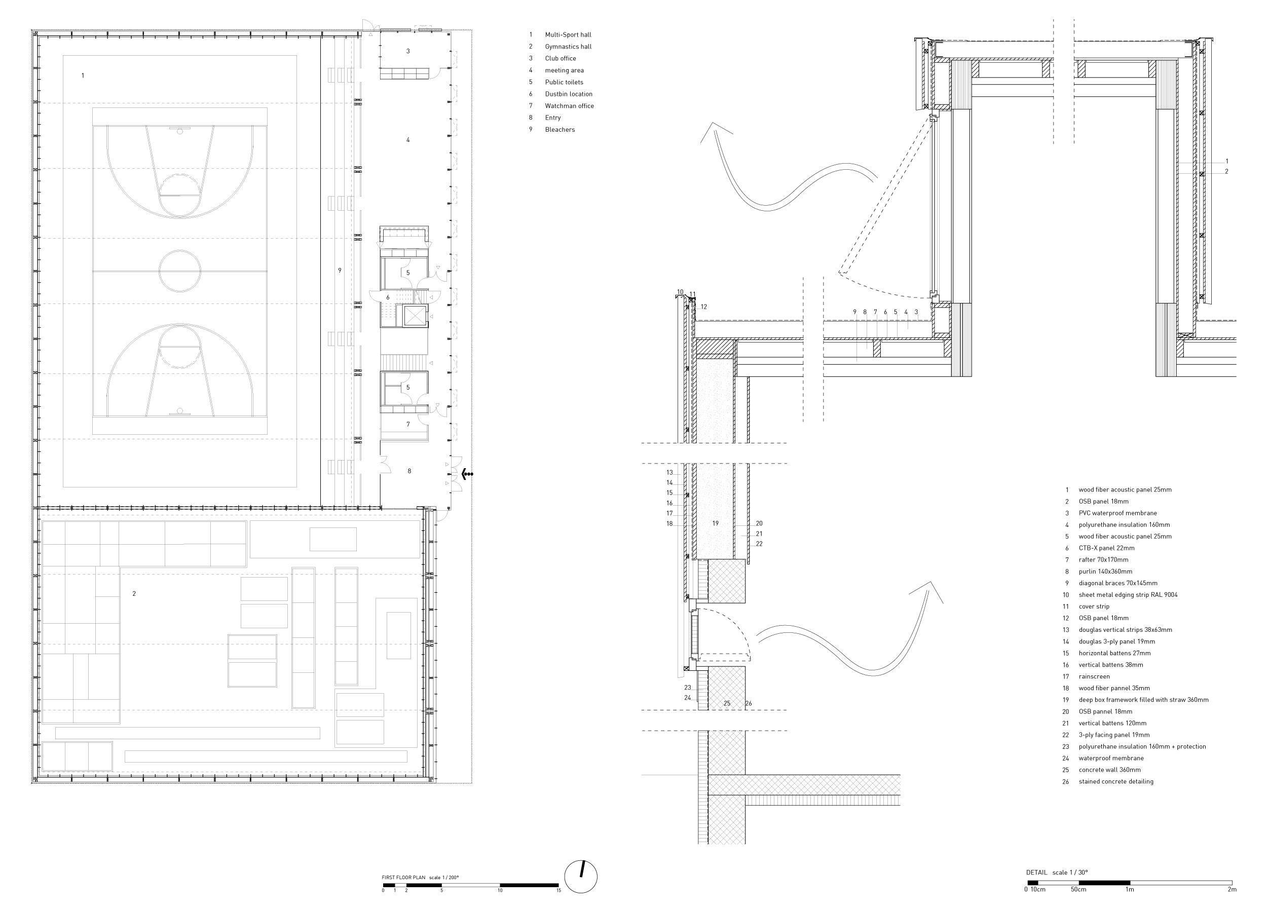
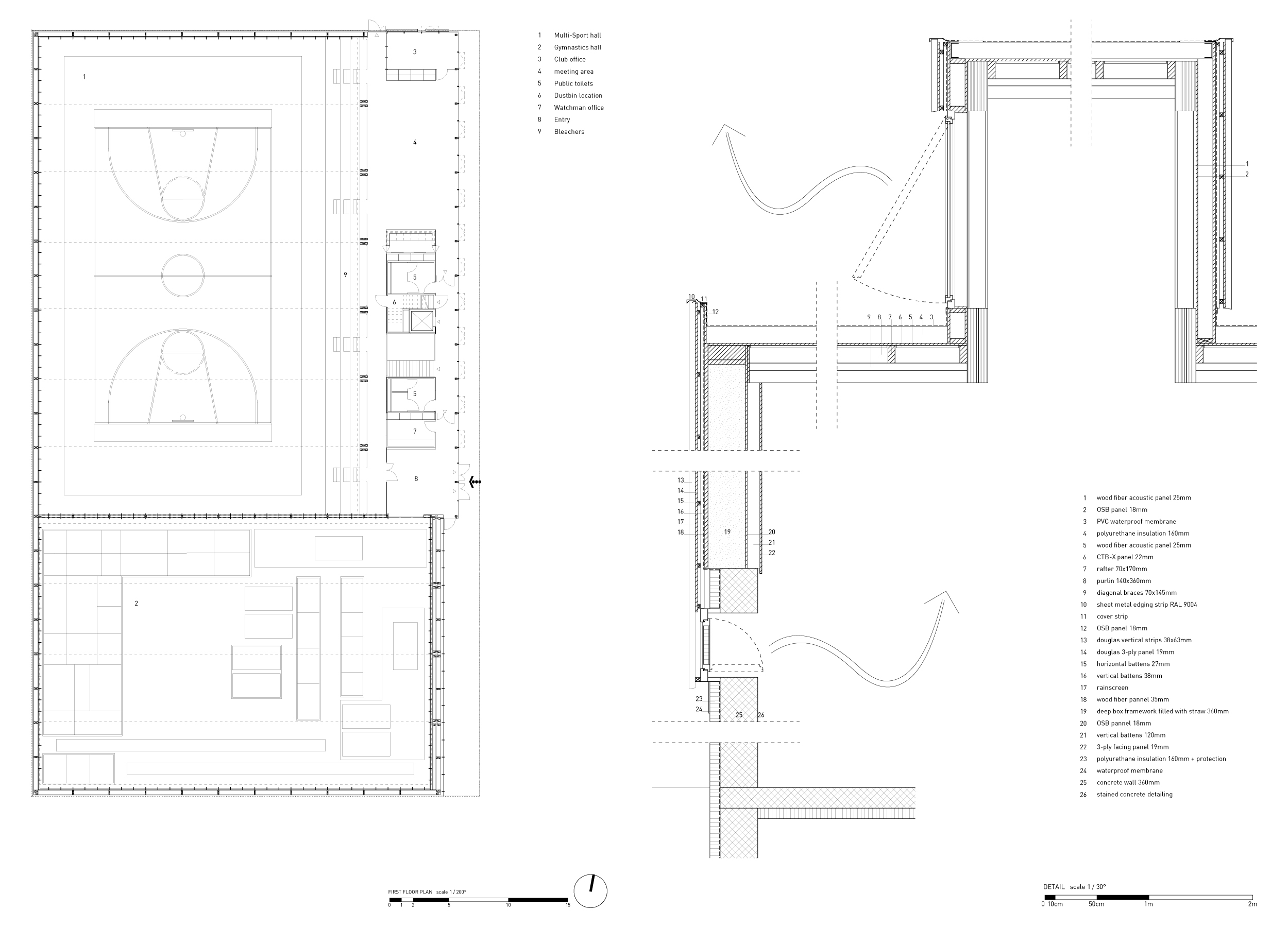
In seinem Inneren vereint der Neubau eine 1100 m2 große Mehrzwecksporthalle und eine 800 m2 große Gymnastikhalle, die L-förmig einen verglasten Eingangsbereich samt Cafeteria und WCs umgeben. Die Geräteräume und Umkleiden sind eine Etage tiefer untergebracht. Indem die Architekten das Gebäude um etwa drei Meter ins Gelände einsenkten, wirken die Hallen mit ihren immerhin 9-12 Metern Deckenhöhe etwas weniger dominant. Das dürfte vor allem die künftigen Bewohner der Wohnbauten freuen, die derzeit auf dem unmittelbar westlich angrenzenden Areal entstehen.
Ihnen streckt der Hallenbau seinen fensterlosen, mit Douglasienholz verkleideten Rücken entgegen. Zur Straße hin öffnet er sich mit einer geschosshohen Verglasung, über die das holzverkleidete Volumen leicht auskragt. Bei der Materialwahl folgten die Architekten konsequent – und sichtbar - der Geschossgliederung: Die unteren drei Meter der Halle sind einschließlich der 400 Personen fassenden Zuschauertribüne aus Sichtbeton gefertigt; darüber schließt sich ein reiner Holzbau an. Die Holzfachwerkbinder spannen über 34 Meter und ruhen auf Leimholzstützen im Abstand von 5,8 Metern, die teils paarweise angeordnet sind. Angeliefert wurden die Dachbinder in jeweils zwei Stücken, die auf der Baustelle zusammengesetzt und per Kran in ihre endgültige Position gehoben wurden.
Durch die wechselseitige Anordnung der Dachflächen auf Höhe der Ober- und Untergurte ließ sich auch die natürliche Belichtung der Halle mit blendfreiem Nordlicht überaus elegant bewerkstelligen. Die Atmosphäre in den beiden Hallen ist von hellen Holztönen, dem Grau der Sichtbetonflächen geprägt. Einen deutlichen Kontrast hierzu bilden lediglich die Turngeräte, die die Architekten ausnahmslos in Feuerwehrrot wählten.
Eine konstruktive Besonderheit verbirgt sich in den Außenwänden: Die opaken Teile der Fassaden bestehen aus nicht tragenden Holzkastenelementen, die mit 36 Zentimeter starken Strohballen gefüllt sind. Beplankt sind die Wände beidseitig mit Dreischichtplatten – innen aus Fichte und außen aus Douglasie. Vertikale, 38 x 73 mm starke Leisten aus Douglasienholz verleihen den äußeren Wandoberflächen zusätzlich ein feines Relief. Insgesamt 2000 Quadratmeter dieser vorgefertigten Holz-Strohelemente wurden am Gymnase Hacine Cherifi verbaut.




























