// Check if the article Layout ?>
Holz-Zelt mit Meeresblick: Ferienhaus auf Krokholmen
Foto: Åke E:son Lindman
Das Ferienhaus von Tham & Videgård liegt auf der Insel Krokholmen im Süden des Stockholmer Schärengartens. Krokholmen ist Teil einer Inselgruppe östlich von Stockholm, deren Landschaft durch Felsen und windgepeitschte Zwergkiefern charakterisiert ist. Der Entwurf inszeniert die Lage des Hauses direkt am Meer und den Fernblick, der bis zum Leuchtturm Almagrundet im offenen Meer reicht.
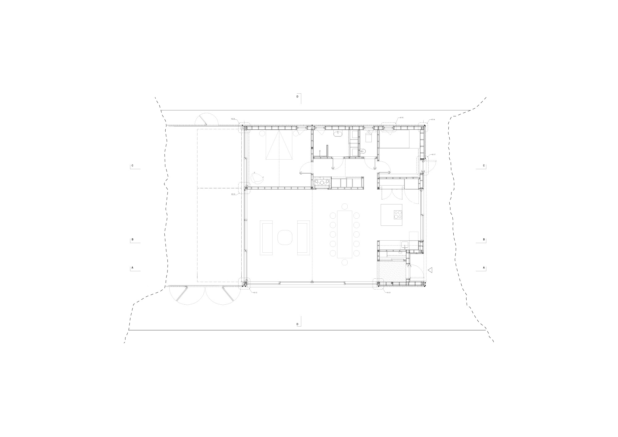
Tham & Videgård entwerfen einen Bau, dessen zwei Funktionsbereiche – Schlafen und Wohnen – durch eine im Grundriss mittig platzierte Wand voneinander getrennt werden. Eine schmale Öffnung führt zu einem Korridor mit Zugängen zu Schlafzimmern, Bad und Lagerraum – alle zum Wald hin orientiert. Dadurch erhält das geräumige Wohnzimmer einen Ausblick in drei Himmelsrichtungen: eine beeindruckende Raumwirkung. Große Schiebetüren führen auf eine windgeschützte bzw. eine zum Meer hin offene Terrasse. Die Holzverblendung, die den Außenraum vor starken Winden schützt, schließt nahtlos an die Fassade an; somit verbinden sich symbolisch der Innen- und der Außenraum. Alle Oberflächen und Tragteile des kleinen Bauwerks, bis auf den Hauptträger aus Stahl, sind aus Holz gefertigt. Das expressive Dach bewirkt eine besondere räumliche Qualität: Abgesehen von einer eleganten Haussilhouette besticht die »zeltartige« Atmosphäre im Inneren des Ferienhauses.














