1:0 für die Gemeinde Neutal
Holzhybrid für Sport und Kultur von Solid architecture in Neutal
Kurt Kuball, © SOLID architecture ZT GmbH
Lorem Ipsum: Zwischenüberschrift
Im 1000-Seelen-Dorf Neutal an der östlichen Grenze Österreichs zu Ungarn gelingt Solid architecture ein kleines Meisterwerk der Architektur. In Ortsrandlage neben weiteren öffentlichen Freizeiteinrichtungen befindet sich die neue Sport- und Kulturhalle der Gemeinde. Zwei Besonderheiten zeichnen dieses Gebäude aus: Zum einen ist der Holzhybridbau das Ergebnis eines partizipativen Prozesses, bei dem die Gemeindeverwaltung zusammen mit dem Bürgermeister und der Bevölkerung die Anforderungen an den Gemeinschaftsbau entwickelten. Zum anderen zeigt sich hier, wie Architektur identitätsstiftend und über die Grenzen dieser kleinen Gemeinde hinaus wirken kann: 2020 wurde das Gebäude mit dem Holzbaupreis Burgenland und dem Architekturpreis Burgenland ausgezeichnet.


© Kurt Kuball, © SOLID architecture ZT GmbH
Lorem Ipsum: Zwischenüberschrift
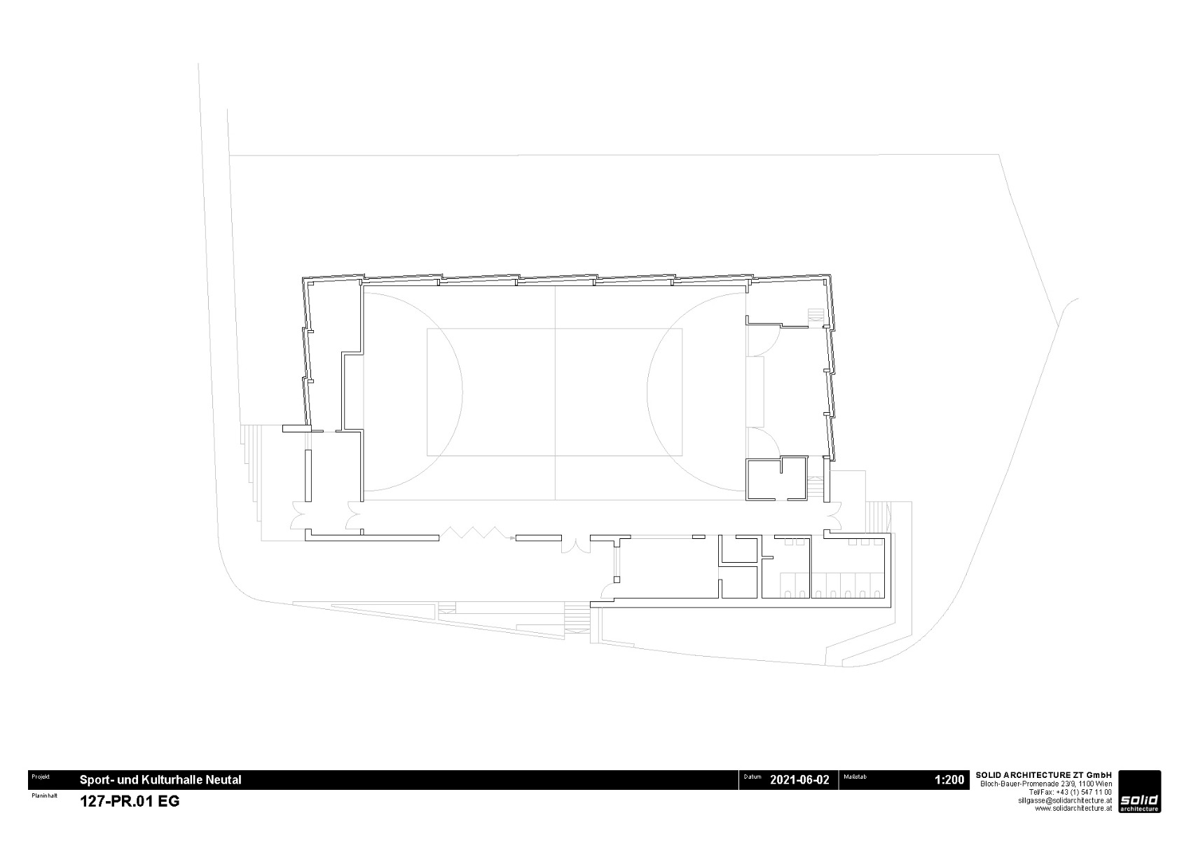
Die Kulturhalle selbst ist in Mischbauweise konzipiert. Auf der massiven Bodenplatte aus Stahlbeton sitzt der ebenfalls aus Stahlbeton errichtete Riegel für die Sanitärräume, der bis in das leicht ansteigende Gelände reicht und auf der Nordostseite für den Eingang einen kleinen Vorplatz am Hang bildet.
Lorem Ipsum: Zwischenüberschrift
Den Betonriegel umschließt ein kompakter, heller Kubus aus vorgefertigten Holzriegel-Wandelementen. Diese sind leicht versetzt zueinander angeordnet, sodass eine schuppenartige Struktur entsteht, die sich auch nach innen fortsetzt und dort die Raumakustik positiv unterstützt. Aber nicht nur die schuppenartige Fassadengeometrie, sondern auch die Farbigkeit von hellem Holz und anthrazitfarbenem Beton spiegelt das Äußere im Inneren.


© Kurt Kuball, © SOLID architecture ZT GmbH
Lorem Ipsum: Zwischenüberschrift
Die Halle entspricht mit einer Grundfläche von 23 x 37 m den Maßen einer Normturnhalle und bildet als flexible Spiel- und Mehrzweckfläche das Herzstück des Gebäudes. Sie ist ausgestattet mit einem Bühnenraum und modernster Medientechnik, die jeglichen Ansprüchen heutiger Veranstaltungen gerecht wird.


© Kurt Kuball, © SOLID architecture ZT GmbH


© Kurt Kuball, © SOLID architecture ZT GmbH
Lorem Ipsum: Zwischenüberschrift
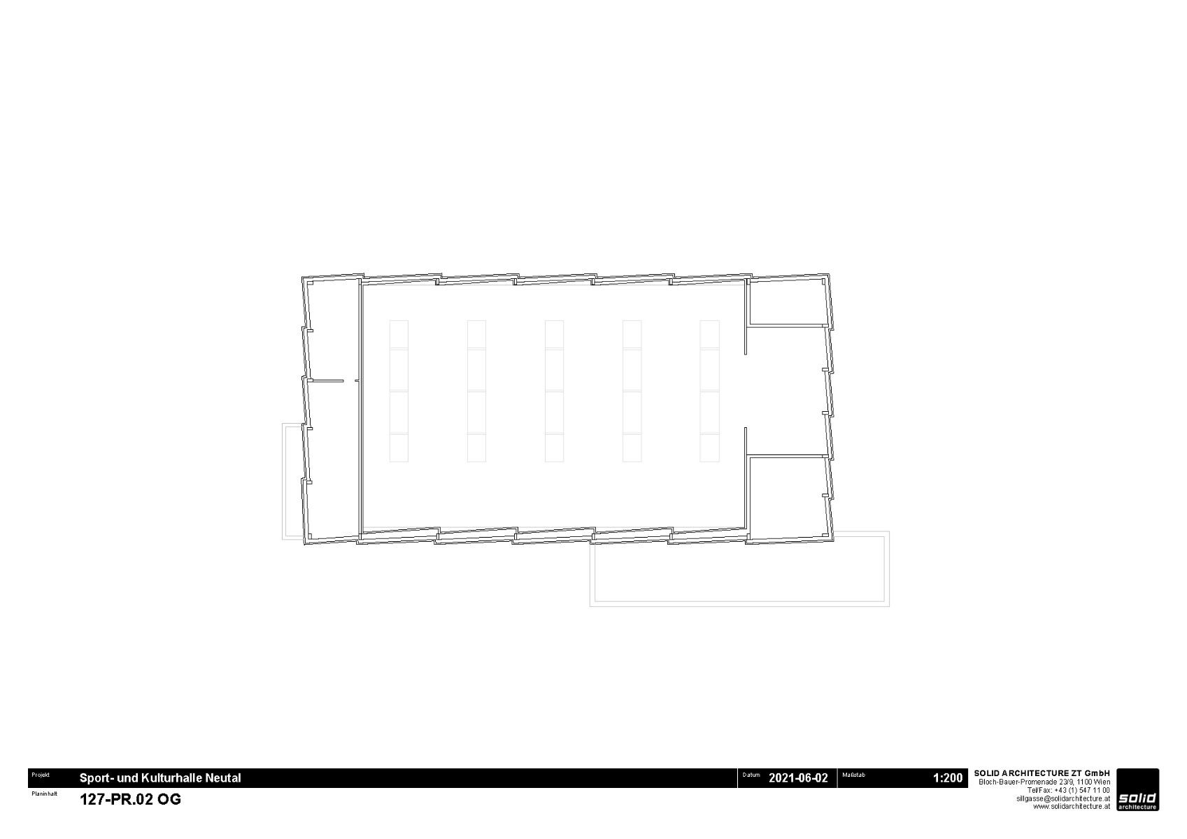
Eine Galerie bietet Platz für Zuschauer bei Sportereignissen, die Halle ist jedoch auch teilbar in zwei kleinere Untereinheiten und so flexibel für Veranstaltungen jeglicher Größe bis 300 Personen nutzbar. Notwendige Nebenräume wie Garderoben, Lager und Umkleiden befinden sich auf zwei Ebenen an der Stirnseite der Halle.


© Kurt Kuball, © SOLID architecture ZT GmbH
Lorem Ipsum: Zwischenüberschrift
Das gigantische Dachtragwerk aus vorgefertigten Brettsperrholzträgern mit aufgesetzten Oberlichtbändern erlaubt eine natürliche Belichtung und sorgt mit den unbehandelten Holzoberflächen für eine angenehme Atmosphäre im Innenraum. Der gesamte Holzbau aus Außenwandelementen, Trenndecken und Dachtragwerk wurde werksseitig vorgefertigt und vor Ort innerhalb von drei Wochen montiert.
Architektur: SOLID architecture ZT GmbH
Bauherr: Gemeinde Neutal
Standort: 7343 Neutal (AT)
Tragwerksplanung: Woschitz Engineering ZT GmbH (Massivbau), RWT+ (Holzbau)
Generalkonsulent, TGA-Planung: Woschitz Engineering ZT GmbH



























