// Check if the article Layout ?>
Homeoffice am Innenhof: Reihenendhaus in Dublin
Foto: Christian Richters
Das Grundstück an der Royal Canal Bank in Phibsborough liegt in einem ruhigen und doch nur einen Kilometer vom Stadtzentrum entfernten Viertel im Norden von Dublin. Wie der Name erraten lässt, floss vor dem Grundstück früher ein Nebenarm des Royal Canal vorbei, der später zugeschüttet wird. Ein breiter Grünzug und ein Park mit großem Wasserbecken 100 Meter die Straße hinunter lassen diese Vergangenheit jedoch noch erahnen. Ebenso die ungewöhnlich tiefen Vorgärten der eingeschossigen Reihenhäuser, die hier die Straße säumen.
Das nördliche Endhaus der alten Reihenhauszeile war lange verlassen, inzwischen zur Ruine verfallen und von Bäumen überwuchert. Freie Bahn also für mccullough mulvin architects und ihren Bauherrn, hier Neues zu schaffen. Das Haus »One up, two down« ist nicht eben üppig bemessen, überragt seine bescheidenen Nachbarn zur Linken jedoch deutlich und vermittelt so zu dem dreigeschossigen Wohngebäude weiter nördlich. Das gilt auch bezüglich der Bauflucht, da es der Bebauungsplan den Architekten erlaubte, das Haus einen Meter näher an die Straße zu rücken als das verfallene Vorgängergebäude.
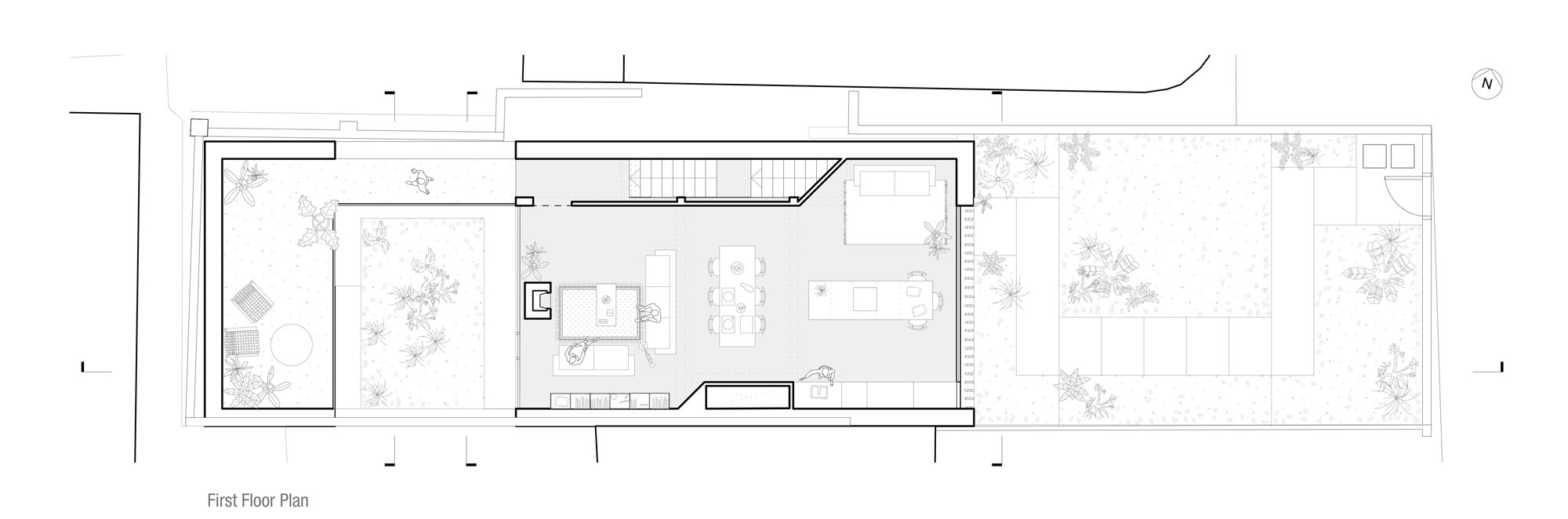
Vertikale Irokoholzlatten in der Eingangsfassade verschleiern den Blick durch die bodentiefen Fenster ins Innere des Gebäudes. Dort kehrten die Architekten die übliche Anordnung um: Im Erdgeschoss sind zwei Schlafzimmer untergebracht, im Obergeschoss das Wohn- und Esszimmer, das über die ganze Gebäudetiefe reicht. Der Grund: Oben ist die Aussicht einfach schöner, Richtung Grünanlage und Park. Jenseits eines kleinen Innenhofes liegt in einem Annex das Arbeitszimmer. Auf Vorder- und Hinterhaus legten die Architekten jeweils eine Dachterrasse an.
Ausgeprägte Patina erhält das Haus durch die Vormauerung, die aus den wiederverwendeten Ziegeln des Vorgängergebäudes erstellt wurde. Die tragende Wandschale dahinter ist hingegen neu. Die Geschossdecken sind nicht betoniert, sondern bestehen aus weiß gestrichenen Holz– und Stahlträgern. Sie bleiben an der Deckenunterseite sichtbar und variieren auf diese Weise das Thema der vertikalen Holzlatten vor der Eingangsfassade und an dem Staketenzaun im oberen Bereich des Innenhofs.
Das nördliche Endhaus der alten Reihenhauszeile war lange verlassen, inzwischen zur Ruine verfallen und von Bäumen überwuchert. Freie Bahn also für mccullough mulvin architects und ihren Bauherrn, hier Neues zu schaffen. Das Haus »One up, two down« ist nicht eben üppig bemessen, überragt seine bescheidenen Nachbarn zur Linken jedoch deutlich und vermittelt so zu dem dreigeschossigen Wohngebäude weiter nördlich. Das gilt auch bezüglich der Bauflucht, da es der Bebauungsplan den Architekten erlaubte, das Haus einen Meter näher an die Straße zu rücken als das verfallene Vorgängergebäude.
Vertikale Irokoholzlatten in der Eingangsfassade verschleiern den Blick durch die bodentiefen Fenster ins Innere des Gebäudes. Dort kehrten die Architekten die übliche Anordnung um: Im Erdgeschoss sind zwei Schlafzimmer untergebracht, im Obergeschoss das Wohn- und Esszimmer, das über die ganze Gebäudetiefe reicht. Der Grund: Oben ist die Aussicht einfach schöner, Richtung Grünanlage und Park. Jenseits eines kleinen Innenhofes liegt in einem Annex das Arbeitszimmer. Auf Vorder- und Hinterhaus legten die Architekten jeweils eine Dachterrasse an.
Ausgeprägte Patina erhält das Haus durch die Vormauerung, die aus den wiederverwendeten Ziegeln des Vorgängergebäudes erstellt wurde. Die tragende Wandschale dahinter ist hingegen neu. Die Geschossdecken sind nicht betoniert, sondern bestehen aus weiß gestrichenen Holz– und Stahlträgern. Sie bleiben an der Deckenunterseite sichtbar und variieren auf diese Weise das Thema der vertikalen Holzlatten vor der Eingangsfassade und an dem Staketenzaun im oberen Bereich des Innenhofs.














