Hommage an die Industriekultur
Hotel Ace Toronto von Shim-Sutcliffe Architects
Eingangsbereich Hotel Ace Toronto, © Scott Norseworthy
Mit seiner Ziegelfassade und einem Interieur mit viel Sichtbeton, Holz und Metall zollt der Hotelneubau der Lokalgeschichte Tribut: Der Garment District von Toronto war früher ein Standort von Textilfabriken.


Hotel Ace Toronto, © Scott Norseworthy
Das Hotel Ace Toronto ist die erste Dependance der Ende der 1990er-Jahre gegründeten, US-amerikanischen Kette auf kanadischem Boden. Für die Architektur zeichneten Shim-Sutcliffe Architects verantwortlich, bei der Innenraumgestaltung kooperierten sie mit der Designabteilung des Betreibers, Atelier Ace.
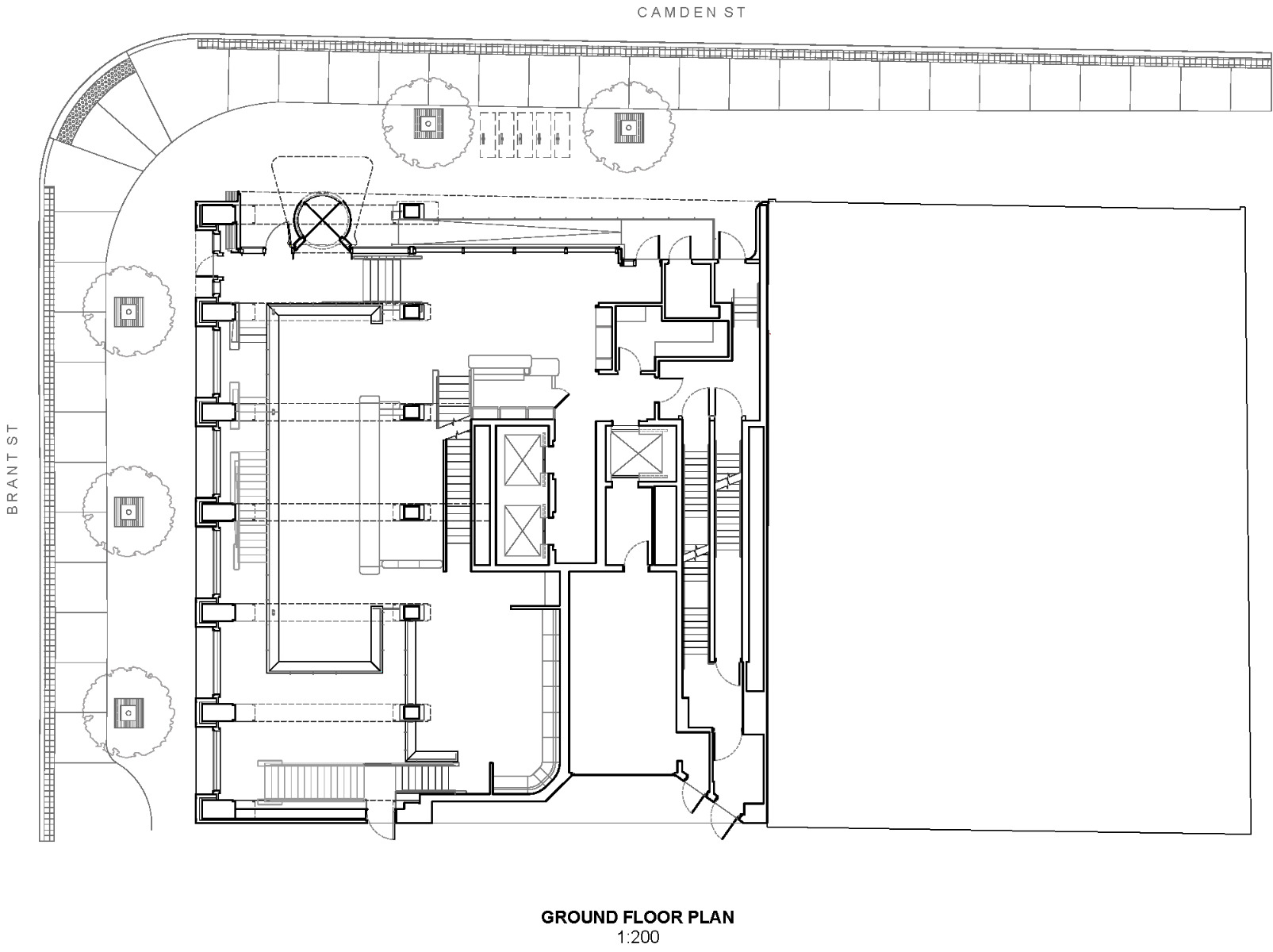
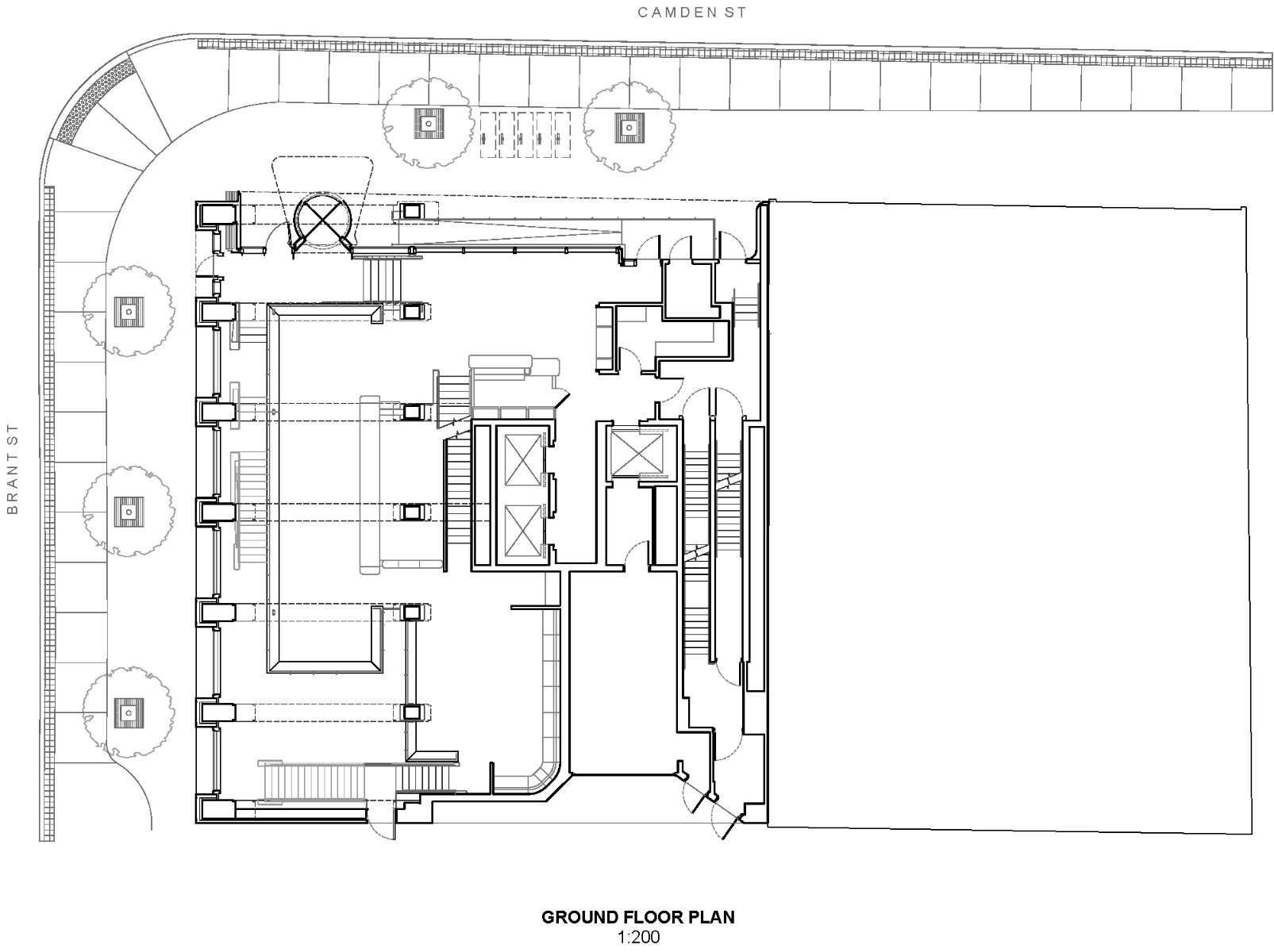
Noch heute prägen viele rötliche Ziegelbauten das nahe des Ontario-Sees gelegene Garment District – früher ein Standort der Textilindustrie, heute Kreativquartier mit vielen Kneipen, Modeläden und einem breiten Gastronomieangebot. Mit den ziegelverkleideten Fassaden des 14-geschossigen Neubaus greifen die Architekten diese Materialpalette auf. Der markante, von einem Bogen überwölbte Haupteingang führt von einer ruhigen Seitenstraße ins Gebäude und bereitet die Besucher schon auf den Raumeindruck in der Lobby vor: Dreigeschossige, mit sägerauen Brettern geschalte Sichtbetonbögen strukturieren den Raum. Sie sind auf überdimensionalen Stahlgelenken gelagert, die man sonst eher aus dem Brückenbau kennt.


Mit sägerauen Brettern geschalte Sichtbetonbögen strukturieren den Raum. © Scott Norseworthy
Vielfältige Materialpalette
Ungewöhnlich an diesem Raum ist auch seine vertikale Staffelung: Die wenig über dem Eingangsniveau gelegene Lobby hängt als riesiger Balkon an Stahlseilen von den Deckenbögen herab. Ihre Brüstung ist mit rötlichem Eichenholz verkleidet – einem weiteren Material, das an vielen Stellen im Hotel wiederkehrt. Neu gepolsterte Vintage-Möbel und eine mit weiß glasierten Ziegeln verkleidete Bar stehen hier für die Gäste bereit. Die von Drachen inspirierten Hängeleuchten aus weißem Plexiglas und Holz sind Eigenentwürfe der Architekten.


Bar, © Scott Norseworthy
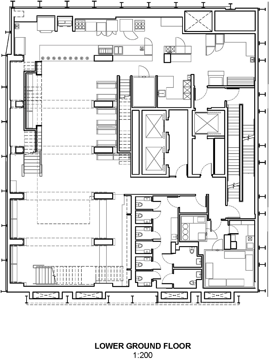
Das hauseigene Restaurant Alder liegt eine Etage tiefer im Souterrain. Beim Weg hinunter passieren die Gäste die „Horizon Line“, eine dreigeschossige, von A. Howard Sutcliffe gestaltete Wandverkleidung aus unbehandelten Sperrholzplatten in unterschiedlichen Farben. Unten angekommen, können sie auf Sitzbänken zwischen den Betonpfeilern Platz nehmen. Die Materialpalette ist hier deutlich dunkler und gedämpfter als im Eingangsgeschoss.


© Scott Norseworthy


© Scott Norseworthy
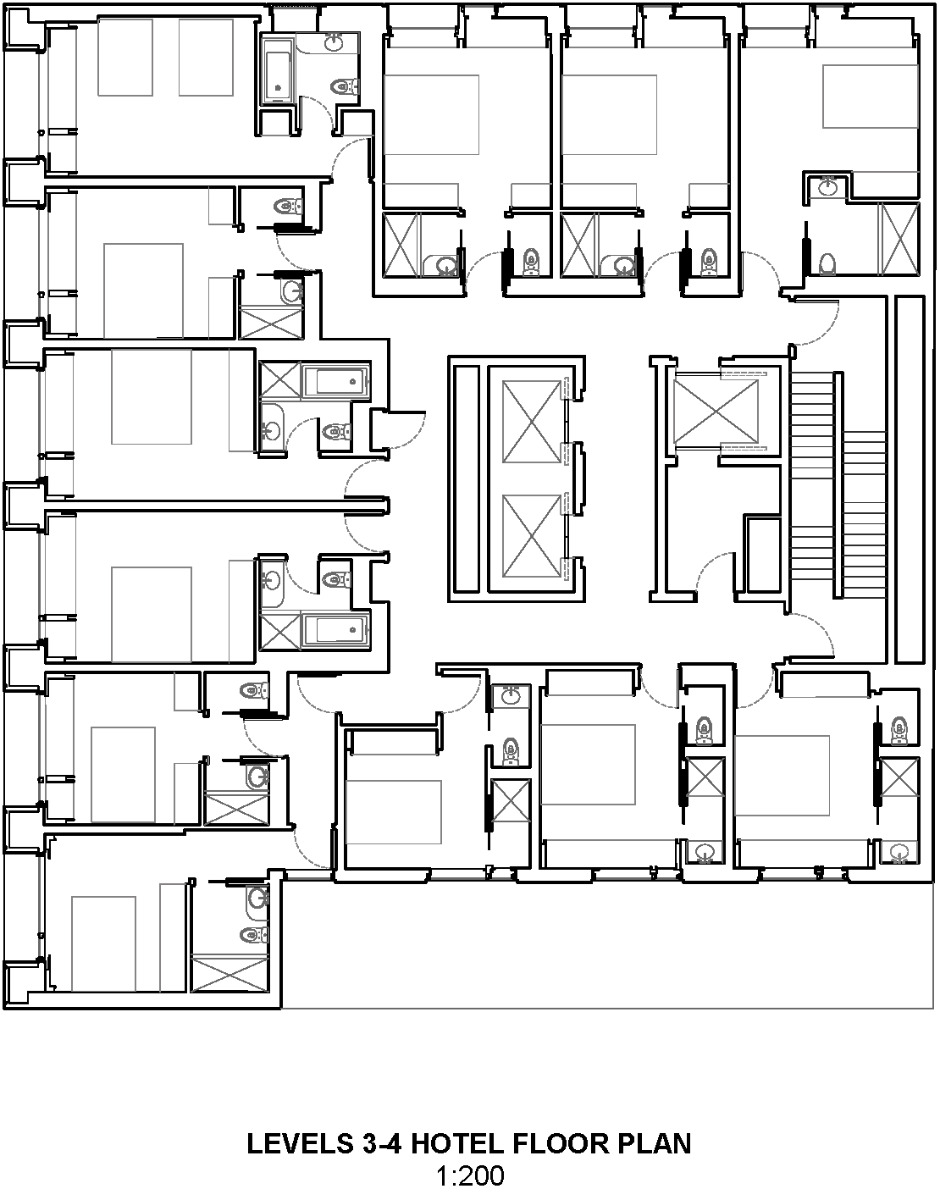
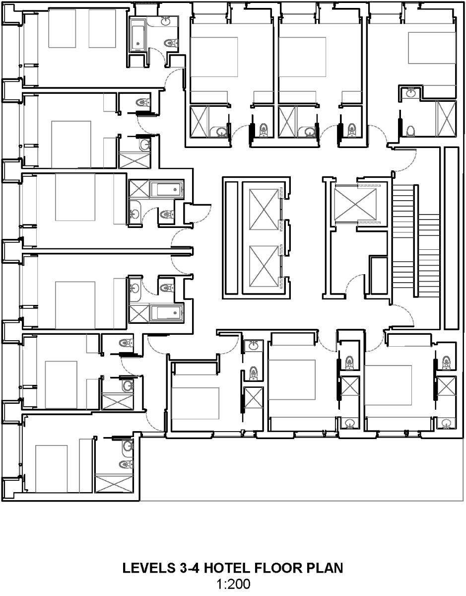
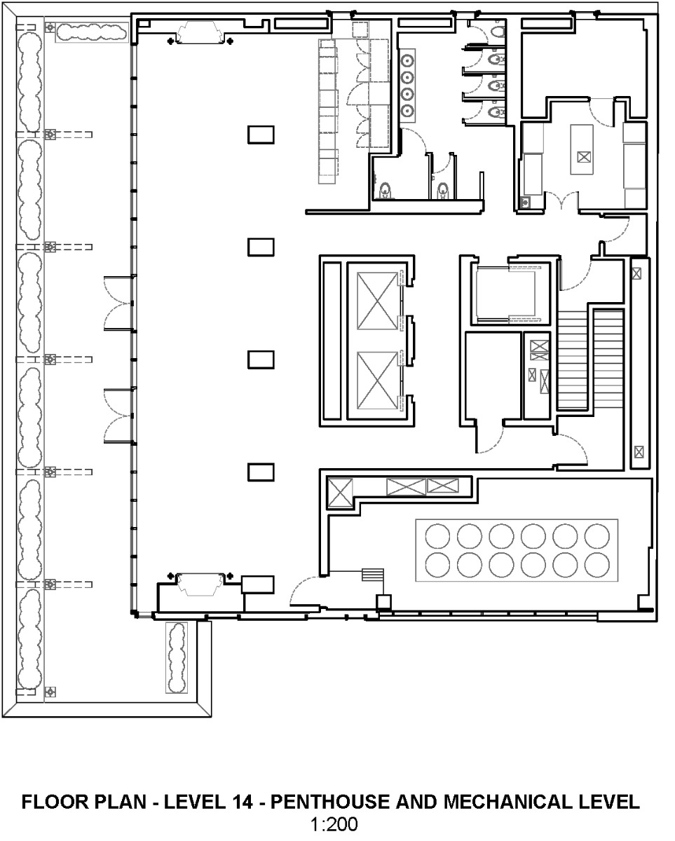
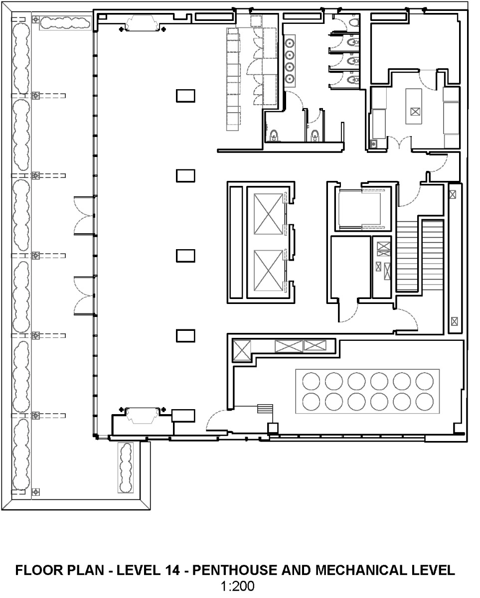
Im Mezzanin über der Eingangsebene haben die Architekten drei Besprechungsräume mit Größen zwischen 50 und 200 m² untergebracht. In den 123 Zimmern und Suiten in den Obergeschossen finden wir eine ähnliche Materialpalette wie in Lobby und Restaurant – mit tiefen, holzgerahmten Sitznischen an den Fenstern, schwarzen Lederpolstern und kupferverkleideten Badezimmerspiegeln mit gerundeten Ecken.
Architektur: Shim-Sutcliffe Architects
Bauherren: Alterra, B-right, Finer Space Corporation, Prowinko, Zinc Developments
Standort: 51 Camden Street, Toronto (CA)
Innenarchitektur: Shim-Sutcliffe Architects, Atelier Ace
Tragwerksplanung: Reed Jones Christoffersen
Landschaftsarchitektur: NAK Design Strategies
TGA-Planung: MCW Consultants
Stadtplanung: Bousfields Inc Planning, Stikeman Elliott

























