Grüne Nachverdichtung
Hotel La Fantaisie in Paris von Petitdidierprioux
In den zurückgesetzten Dachgeschossen des Hotel La Fantaisie sind großzügige Balkone und eine Bar mit Dachterrasse entstanden. © Sergio Grazia
Die Rue Cadet liegt etwa auf halbem Weg zwischen Tony Garniers Oper und der Gare du Nord in der Pariser Innenstadt. Als sie im 17. Jahrhundert angelegt wurde, war sie von Gemüsegärten flankiert. Heute ist davon nichts mehr übrig: Das 9. Arrondissement ist der Bezirk der französischen Hauptstadt mit den wenigsten Grünflächen.


Die Metallfassade des Hotels bringt Grün in die enge Rue Cadet. © Sergio Grazia
Verwinkelten Bestandsbau begradigt
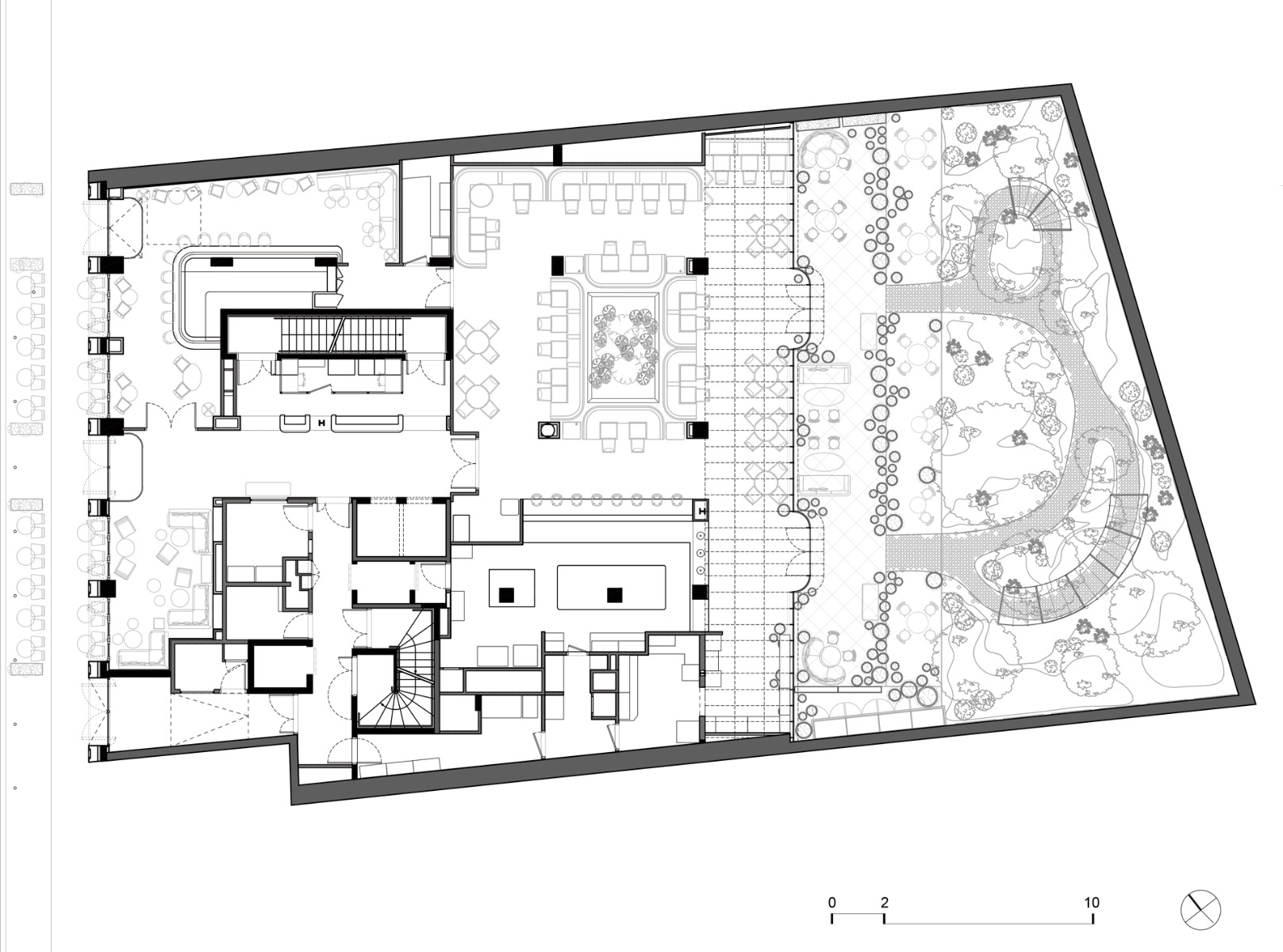
Nicht nur Nachverdichtung, sondern auch „Nachvergrünung“ stand daher ganz oben auf der Prioritätenliste von Cédric Petitdidier und Vincent Prioux, als sie hier ein Hotel aus dem späten 20. Jahrhundert umbauen und erweitern sollten. Mit ockerfarbener Putzfassade, Mansarddach und Erkern zitierte der Bestandsbau zwar historische Bautypologien. Zwischen den älteren und um einiges höheren Nachbarbauten wirkte er dennoch als Fremdkörper. Außerdem fehlte ihm vieles, was zeitgenössische Hotels brauchten: Der Eingangsbereich war zu eng und der kleine Innenhof kaum mehr als eine ungenutzte Restfläche.
80 % der Bestandsstruktur erhalten
Mit dem Umbau begradigten Petitdidierprioux die Straßenfront, setzten dem Gebäude ein zusätzliches Staffelgeschoss mit Bar auf und gestalteten den Hofbereich neu. Dennoch gelang es ihnen nach eigenen Angaben, 80 % der Baustruktur zu erhalten. Zwar musste einiges an Asbest entfernt werden, doch an sich erwies sich das Betontragwerk den zeitgenössischen Ansprüchen gewachsen.


Das Hotel-Restaurant öffnet sich in einem wintergartenartigen Anbau zum Innenhof. © Sergio Grazia
Grüne Oase der Ruhe
Ein wesentliches Planungsziel lautete, den Gästen Ruhe und Erholung mitten in Paris zu spenden. Der Garten wurde erweitert und neu angelegt, das Restaurant in einem gewächshausartigen Anbau auf der Gartenseite untergebracht. Auf der Straßenseite sind im Erdgeschoss zusätzliche, vermietbare Ladenflächen entstanden. Die Tiefgarage ließen die Architekten zum Wellnessbereich umfunktionieren.


Die Fassade greift in abstrakter Form die Gliederung der Nachbargebäude auf. © Sergio Grazia


© Sergio Grazia
Viel Glas und profiliertes Zinkblech
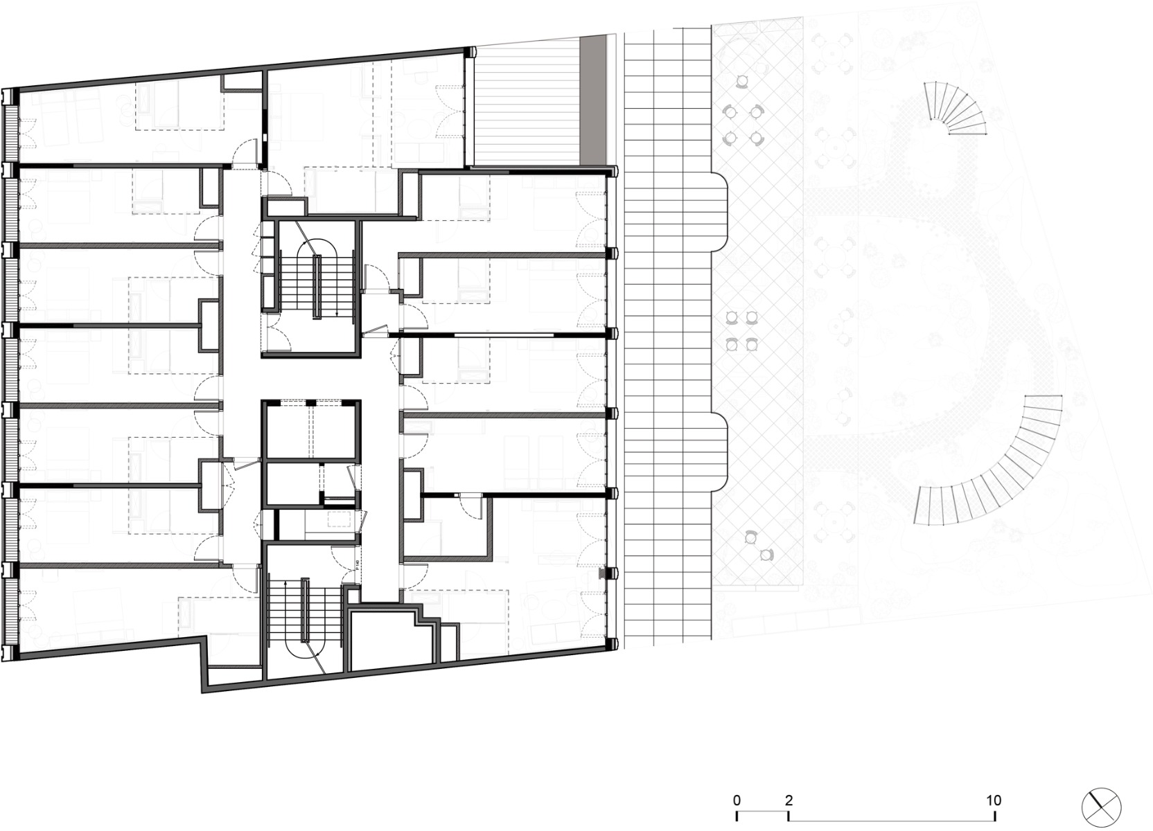
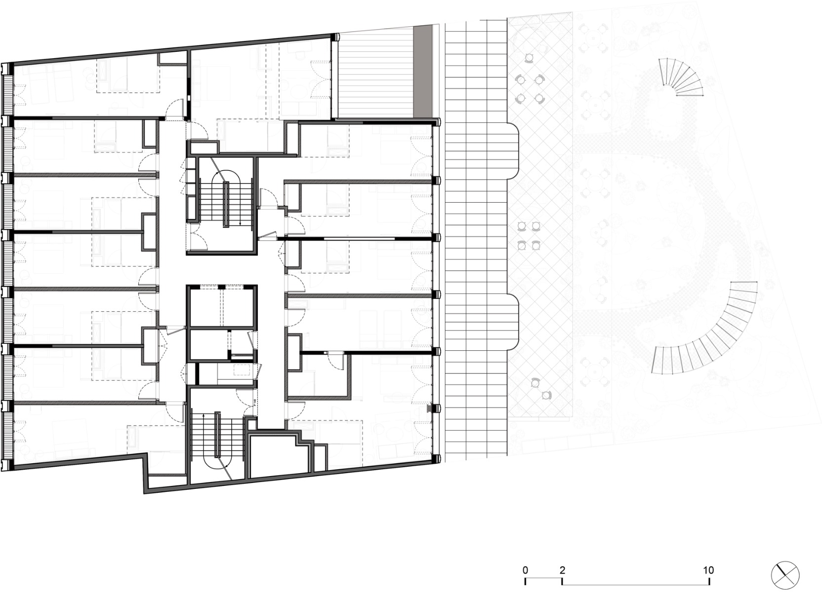
In den Obergeschossen wurde die Raumaufteilung so geändert, dass alle Hotelzimmer sich nun direkt zur Straße oder zum Hof öffnen. Zudem erhielten sie raumhohe und nahezu raumbreite Verglasungen. Schmale – und in den obersten Geschossen etwas weniger schmale – Balkone schützen die Gäste auf der Straßenseite vor ungewollten Einblicken. Topfpflanzen und ein kleiner Dachgarten bringen nun zusätzliches Grün in die Rue Cadet. Doch damit nicht genug: Als Fassadenbekleidung wählten Petitdidierprioux grün beschichtetes Zinkblech in unterschiedlichen Strukturen – teils glatt und teils profiliert. Die Fassadengliederung greift in abstrahierter Form die doppelte Säulenordnung des benachbarten Neorenaissance-Baus auf.
Architektur: Petitdidierprioux
Bauherr: Leitmotiv
Standort: 24 rue Cadet, 75009 Paris (FR)
Innenarchitektur: MBDS
Tragwerks- und TGA-Planung: Atixis
Landschaftsarchitektur: Agence Christophe Gautrand & Associés
Lichtplanung: Cobalt
Akustik: Meta



















