Hürdenlauf im Flur: Dreifachsporthalle in Passau
Foto: Stefan Müller-Naumann
Das Schulzentrum im Passauer Stadtteil Haidenhof, südwestlich der Altstadt, liegt auf einem flachen Bergausläufer, der die Flusstäler von Donau und Inn trennt. Die neue Sporthalle liegt nördlich davon, die steile Topografie fällt von der Straße weg in Richtung Donau ab.
Entwurf
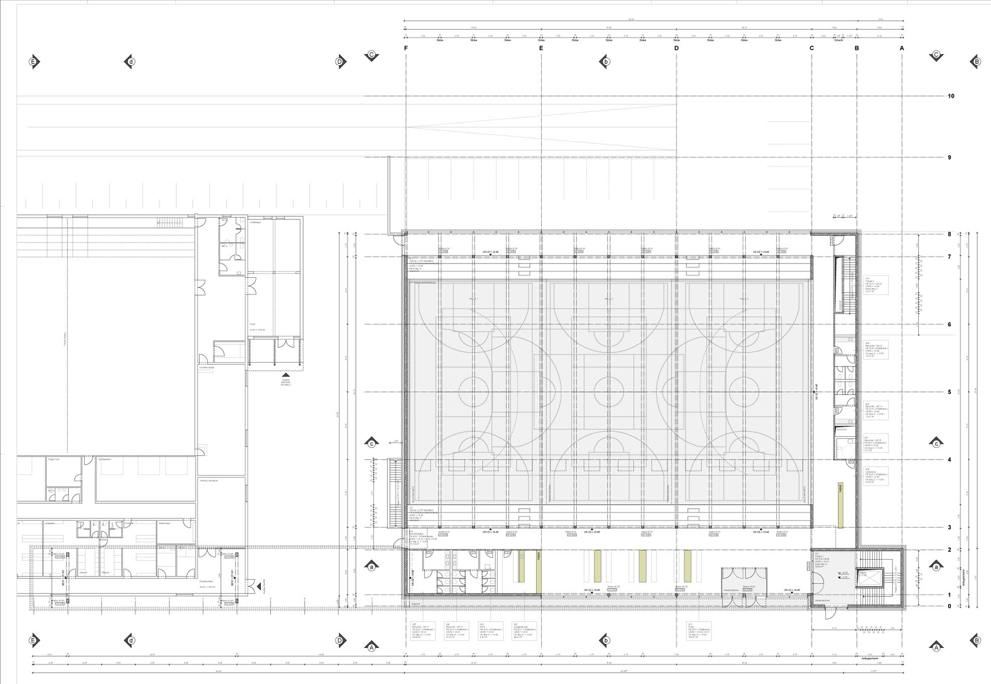
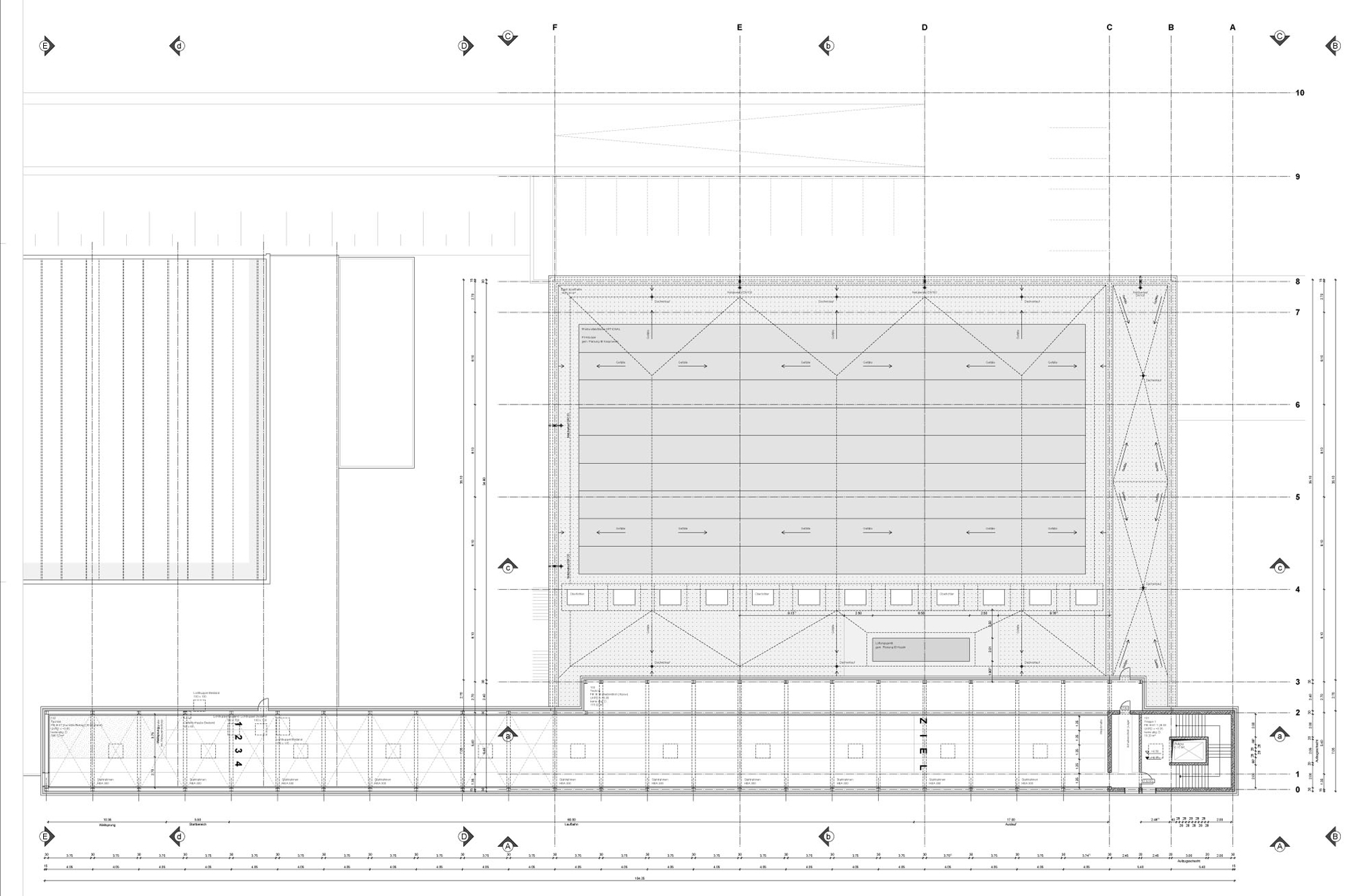
Das Münchener Büro Schwinde Architekten nutzte dieses Relief und legte zur Neuburger Straße hin ein Vorfeld mit Parkplätzen, einer Busvorfahrt und einem großzügigen Hallenzugang an. Unmittelbar westlich der neuen Sportstätte liegt die alte, in ihrer Kapazität nicht mehr ausreichende Halle. Der Neubau wurde analog zur bestehenden Halle hangparallel angeordnet. Entlang der Hauptstraße entstand so an der Südseite eine übergeordnete Wegeachse zwischen der östlichen Real- und der westlichen Berufsschule. Dieser Achse folgt auch der fensterlose Skywalk im ersten Obergeschoss. Hierin befindet sich eine über 60 m lange Indoor-Leichtathletik-Wettkampfanlage mit vier Bahnen.
Nutzung
Infolge des abgesenkten Spielfelds wird die Sporthalle straßenseitig auf der Zuschauerebene betreten. Bis zu 600 Zuschauer finden an den Längsseiten Platz. Der südliche Zuschauerbereich kann auch für Festivitäten genutzt werden, weshalb im vorgelagerten Foyer eine Ausgabenküche angegliedert ist. Belichtet wird der Sportbau über Verglasungen im Norden und Süden und über Lichtkuppeln im Dach. Trennwandvorhänge erlauben die Aufteilung in drei Einzelhallen. Umkleiden und Geräteräume sind auf Spielfeldebene angeordnet. Unterhalb der Sporthalle befindet sich eine seitlich offene Parkebene mit 100 Stellplätzen. Die Zufahrt erfolgt über eine Außenrampe, die natürliche Belüftung haustechnikfrei von der Seite.
Konstruktion
Die neue Sportstätte wurde als Stahlbetonskelettbau ausgeführt, dessen aussteifende Wände in der Technikebene wie auch alle Decken aus Ortbeton bestehen. Die nichttragenden Wände wurden in Trockenbau ausgeführt. Das Hallendach ist eine Leichtbaukonstruktion mit Trapezblechdeckung, die auf zwölf jeweils 35,10 m langen und 1,565 m hohen Angelina-Lochstegträgern aufliegt. Hierbei handelt sich um großformatige IPE-Profile, deren Mittelstege durch einen kurvenförmigen Brennschnitt aufgetrennt werden. Die beiden so geschaffenen wellenförmigen T-Profile werden anschließend um eine halbe Öffnungsbreite versetzt und erneut miteinander verschweißt. So entsteht ein Lochstegträger mit vergrößerter Höhe bei gleicher Stahlmenge, der ein verbessertes Verhältnis von Trägheitsmoment zu Gewicht aufweist.
Der so genannte »Laufschlauch«, die Kampfbahn im 1. OG, besitzt ebenfalls ein Dach in Leichtbauweise mit quertragenden Stahlprofilen und einer Trapezblechdeckung. Bemerkenswert ist auch die Tiefgarage, die ohne Bodenplatte auskommt. Gearbeitet wurde hier wie im Straßenbau, der Asphalt wurde auf einen klassischen Unterbau aufgebracht. Der Tiefgaragenbelag wurde schon vor Beginn der Rohbauarbeiten eingebracht, damit war die Baustelle ausgesprochen sauber.












