// Check if the article Layout ?>
Im Wechselspiel der Gezeiten: Seashore Chapel
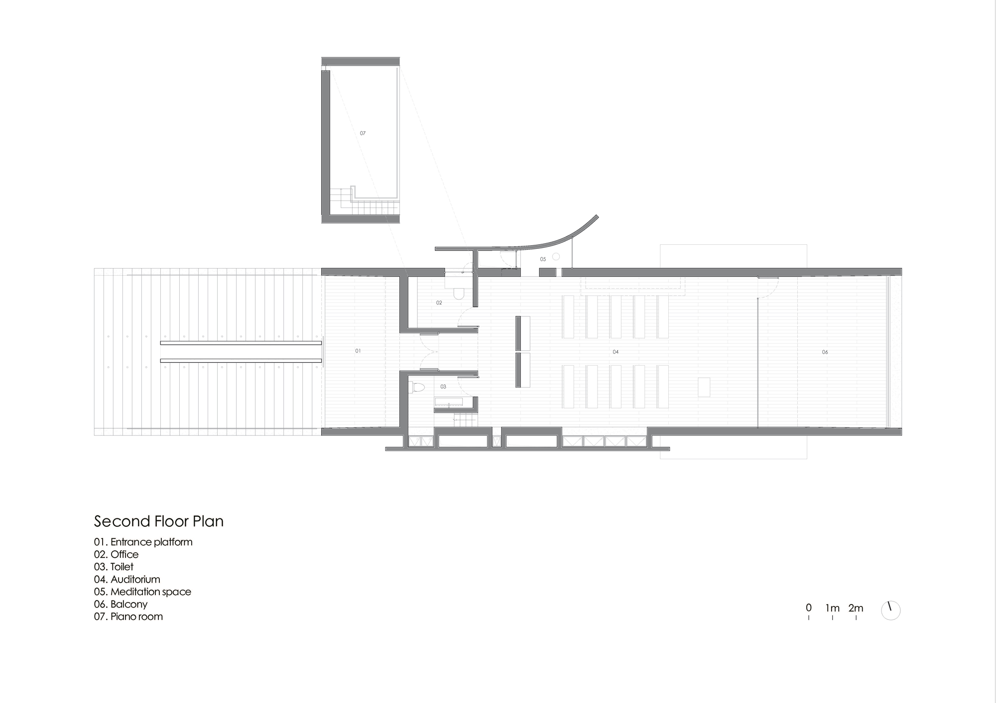
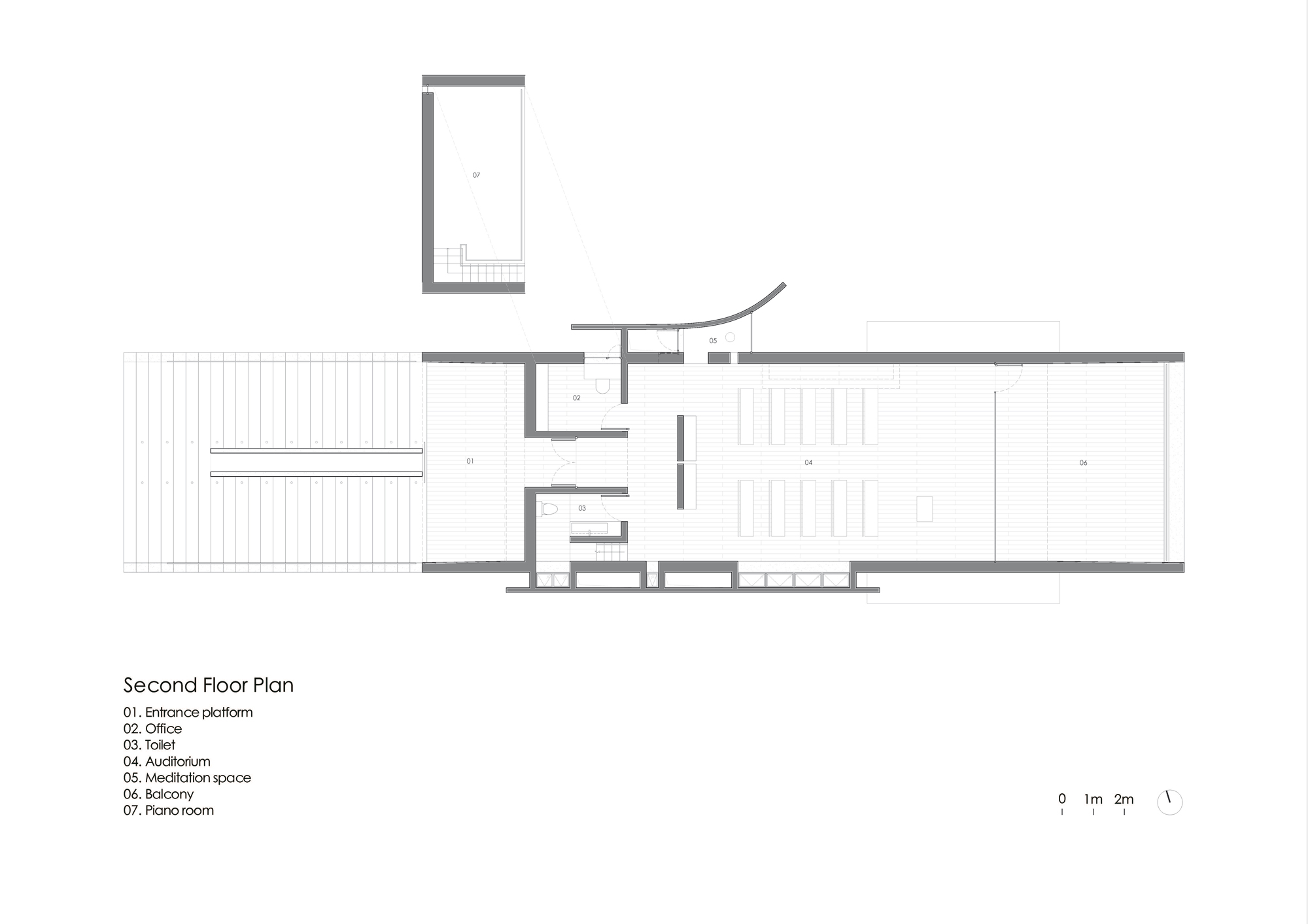
Die Raumerfahrung beginnt mit einem 30 Meter langen Pfad, der durch den Sandstrand auf die Kirche zuführt. Am Ende des Wegs wird das Gebäude eindrucksvoll von der großen Eingangstreppe eingeleitet, durch die der Besucher buchstäblich hindurch sehen kann: Dank eines 60 Millimeter breiten Spalts inmitten der geschlossenen Stufen wird beim Hochsteigen ein Blick auf den Golf von Bohai erhascht. Eine Fuge im Betondach unterstreicht die Übergangszone vom Äußeren zum Inneren, bevor man durch eine zweiflüglige Tür den Eingangsbereich betritt. Von hier erschließt sich über eine Treppe das Untergeschoss, ein überdachter Außenraum zum Ruhen und Verweilen. Das Obergeschoss steht auf Stützen – die erhöhte Position schafft eine enge Verbindung von Raum und Meer. Es herrscht eine äußerst spirituelle Atmosphäre – umgeben vom Rauschen des Meeres blick man auf die sichtbare Grenze zum Himmel. Das Bild der Kirche ändert sich mit dem Wechselspiel der Gezeiten: Wenn die Flut kommt, läuft das Wasser im unteren Geschoss ein. Deutlich zeigt dies die Illusion, die hinter der Idee der Architekten steckt: das Gebäude treibt, wie ein Boot, losgelöst im offenen Meer. Beim Begehen des oberen Stockwerks durch den schmalen Korridor eröffnet sich dem Besucher das Auditorium: Ein 14 Meter langer und 7 Meter breiter Gemeindesaal bietet Platz für 30 bis 40 Besucher. An der Nordseite befindet sich ein auskragender Raum der Meditation, der gerade groß genug ist, dass eine Person dort Platz findet.
Tageslicht war ein wichtiger Aspekt für die Architekten: Die Öffnungen der Kirche sind bewusst platziert, um grelles Licht einzudämmen und gleichzeitig diffuses Licht in den Raum treten zu lassen. Das große Aussichtsfenster befindet sich an der Ostseite. Mit einer Höhe von 2,70 Metern umrahmt es die uneingeschränkte Sicht vom großen Saal aufs weite Meer. Darüber präsentiert sich ein Kreuz, das von oben wie von unten beleuchtet wird. Ein 300 Millimeter schmaler Lichtkanal, zwischen der gekrümmten Wand im Norden und dem Dach, lässt zusätzlich natürliches Licht hineinstrahlen. Das innen abgerundete Dach ist orientiert am höchsten Stand der Sommersonne. Im Frühling, Sommer und Herbst, wenn die Sonne nahezu senkrecht am Himmel steht, scheint das Licht direkt auf die Wand im Norden. Ist dies auch nicht von langer Dauer, so wird die Materialität für einen Moment in Szene gesetzt und es entstehen lebhafte Lichteffekte.
Die Konstruktion ist mit weißem Rauputz verkleidet, was ihr von Innen wie von Außen ein einheitliches Bild verleiht. Bambusdielen bieten einen warmen Kontrast zu der Geradlinigkeit der Oberfläche, untermalt von hölzernen Fensterrahmen. Der Bodenbelag erstreckt sich bis auf den Balkon, der sich hinter der großen Fensterfront befindet. Von hier besteht der direkte Kontakt zum tiefblauen Ozean – man kann das Meer riechen und den Wellenaufschlag spüren.
Tageslicht war ein wichtiger Aspekt für die Architekten: Die Öffnungen der Kirche sind bewusst platziert, um grelles Licht einzudämmen und gleichzeitig diffuses Licht in den Raum treten zu lassen. Das große Aussichtsfenster befindet sich an der Ostseite. Mit einer Höhe von 2,70 Metern umrahmt es die uneingeschränkte Sicht vom großen Saal aufs weite Meer. Darüber präsentiert sich ein Kreuz, das von oben wie von unten beleuchtet wird. Ein 300 Millimeter schmaler Lichtkanal, zwischen der gekrümmten Wand im Norden und dem Dach, lässt zusätzlich natürliches Licht hineinstrahlen. Das innen abgerundete Dach ist orientiert am höchsten Stand der Sommersonne. Im Frühling, Sommer und Herbst, wenn die Sonne nahezu senkrecht am Himmel steht, scheint das Licht direkt auf die Wand im Norden. Ist dies auch nicht von langer Dauer, so wird die Materialität für einen Moment in Szene gesetzt und es entstehen lebhafte Lichteffekte.
Die Konstruktion ist mit weißem Rauputz verkleidet, was ihr von Innen wie von Außen ein einheitliches Bild verleiht. Bambusdielen bieten einen warmen Kontrast zu der Geradlinigkeit der Oberfläche, untermalt von hölzernen Fensterrahmen. Der Bodenbelag erstreckt sich bis auf den Balkon, der sich hinter der großen Fensterfront befindet. Von hier besteht der direkte Kontakt zum tiefblauen Ozean – man kann das Meer riechen und den Wellenaufschlag spüren.
Seashore Chapel from DETAIL online on Vimeo.
Weitere Informationen:
Partnerarchitekten: Dongping Sun, Yi Chi Wang, Jiahe Zhang
Tragkonstruktion: Beijing Yanhuang International Architecture & Engineering Co. Ltd.; Lixin Ji, Zhongyu Liu
Bauzeit: November 2014 – Oktober 2015
Tragkonstruktion: Beijing Yanhuang International Architecture & Engineering Co. Ltd.; Lixin Ji, Zhongyu Liu
Bauzeit: November 2014 – Oktober 2015


























