In den Hang gebaut: Wohnhaus aus Ortbeton von Tectoniques Architectes
Foto: Jérôme Ricollea
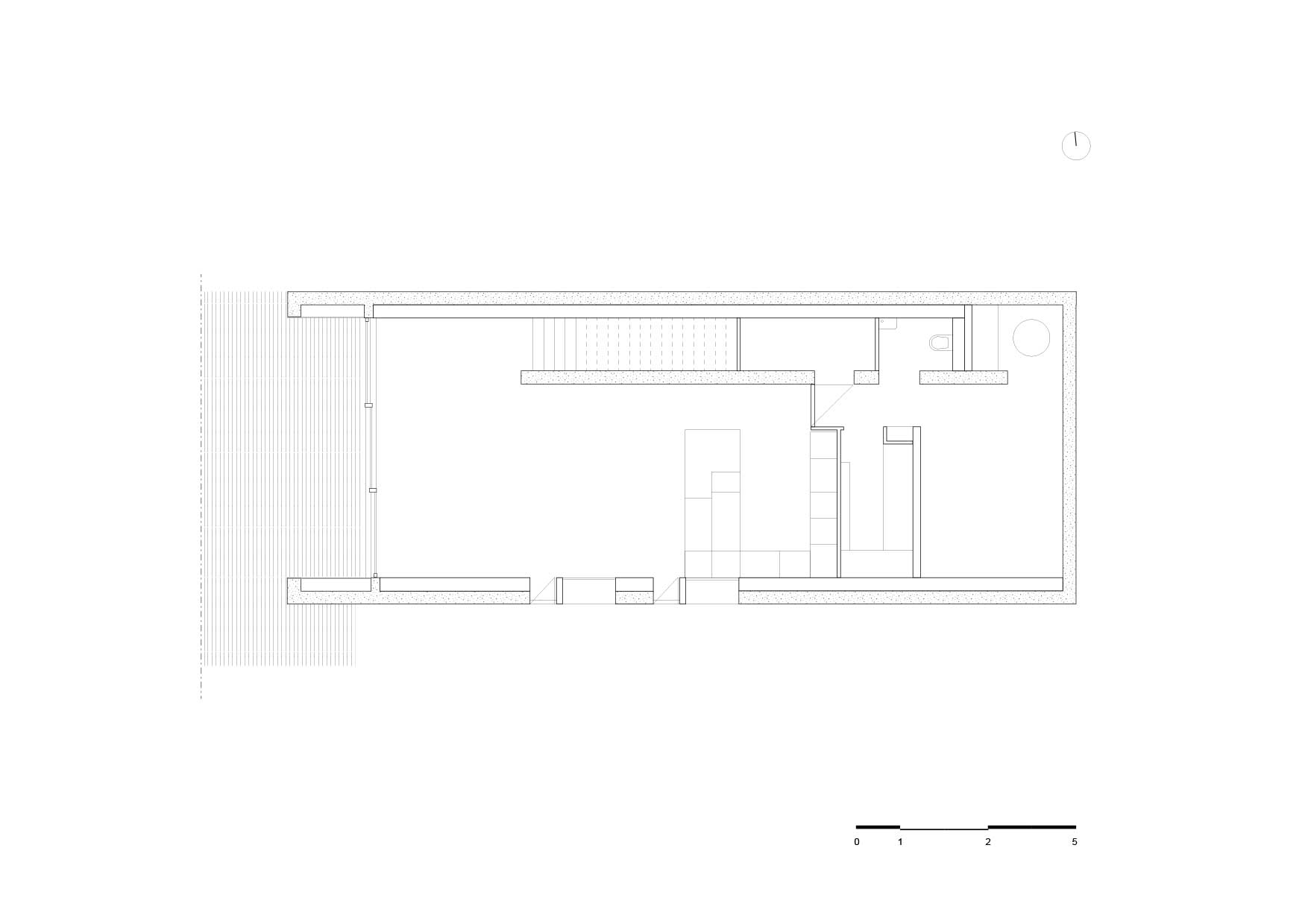
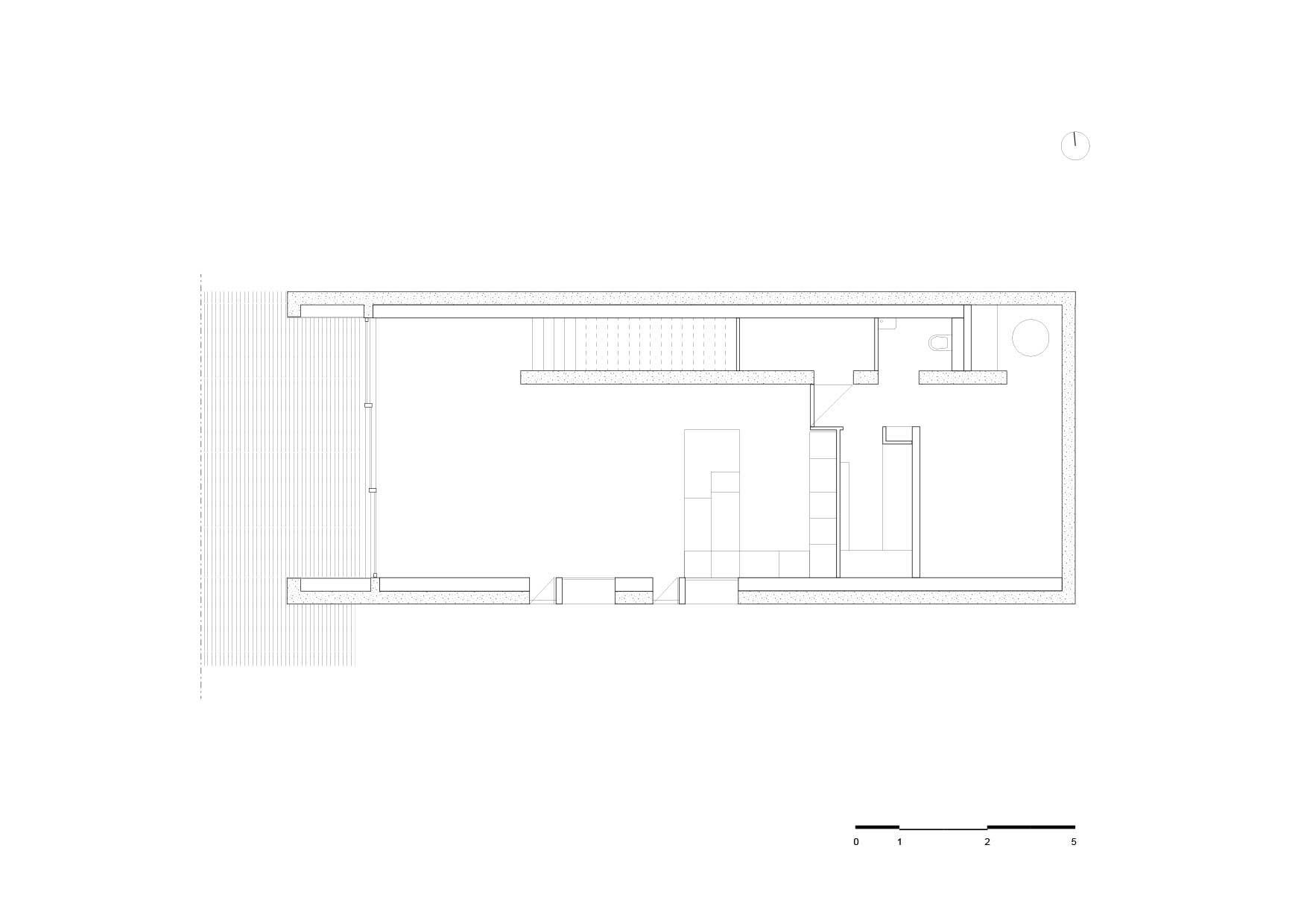
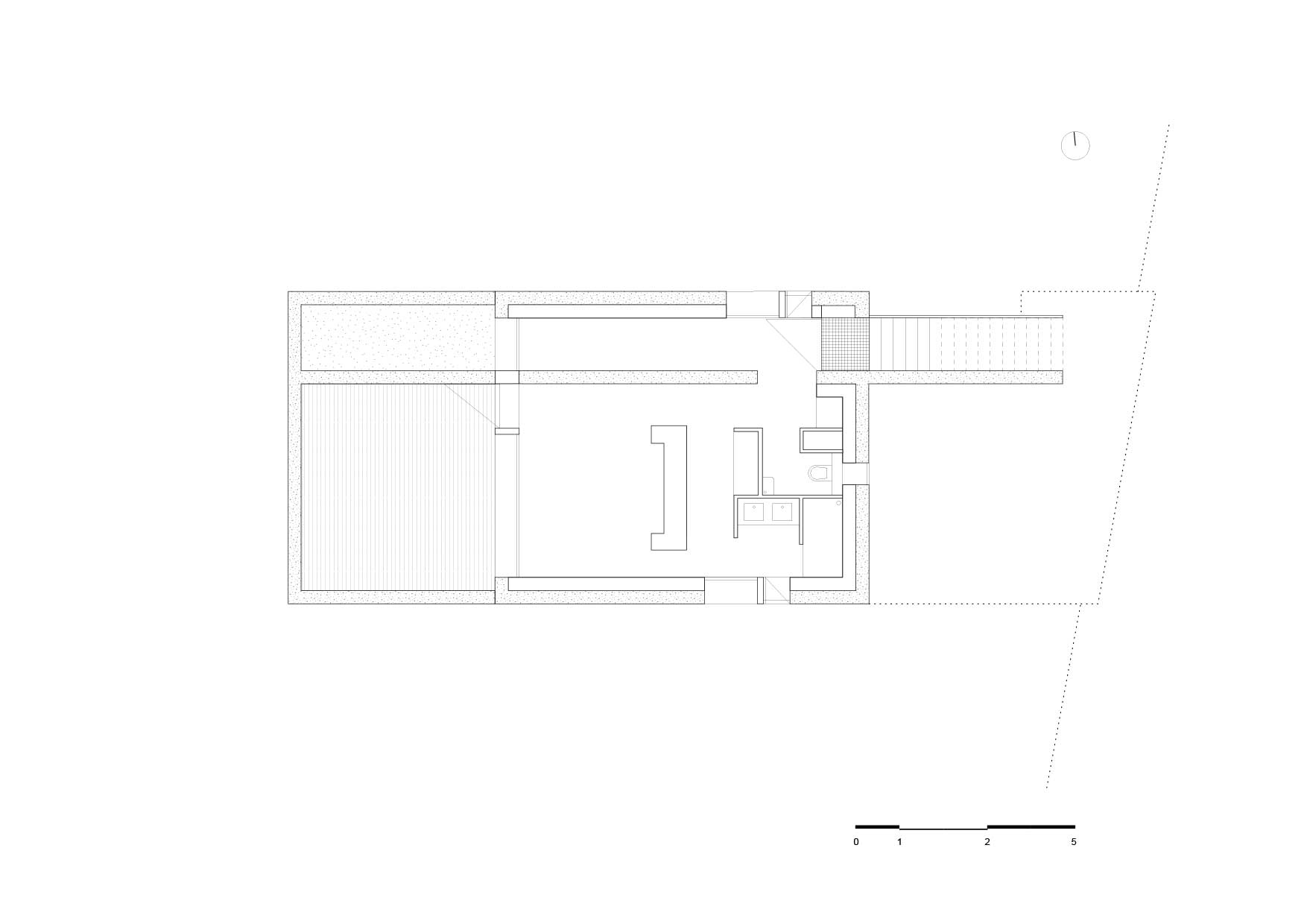
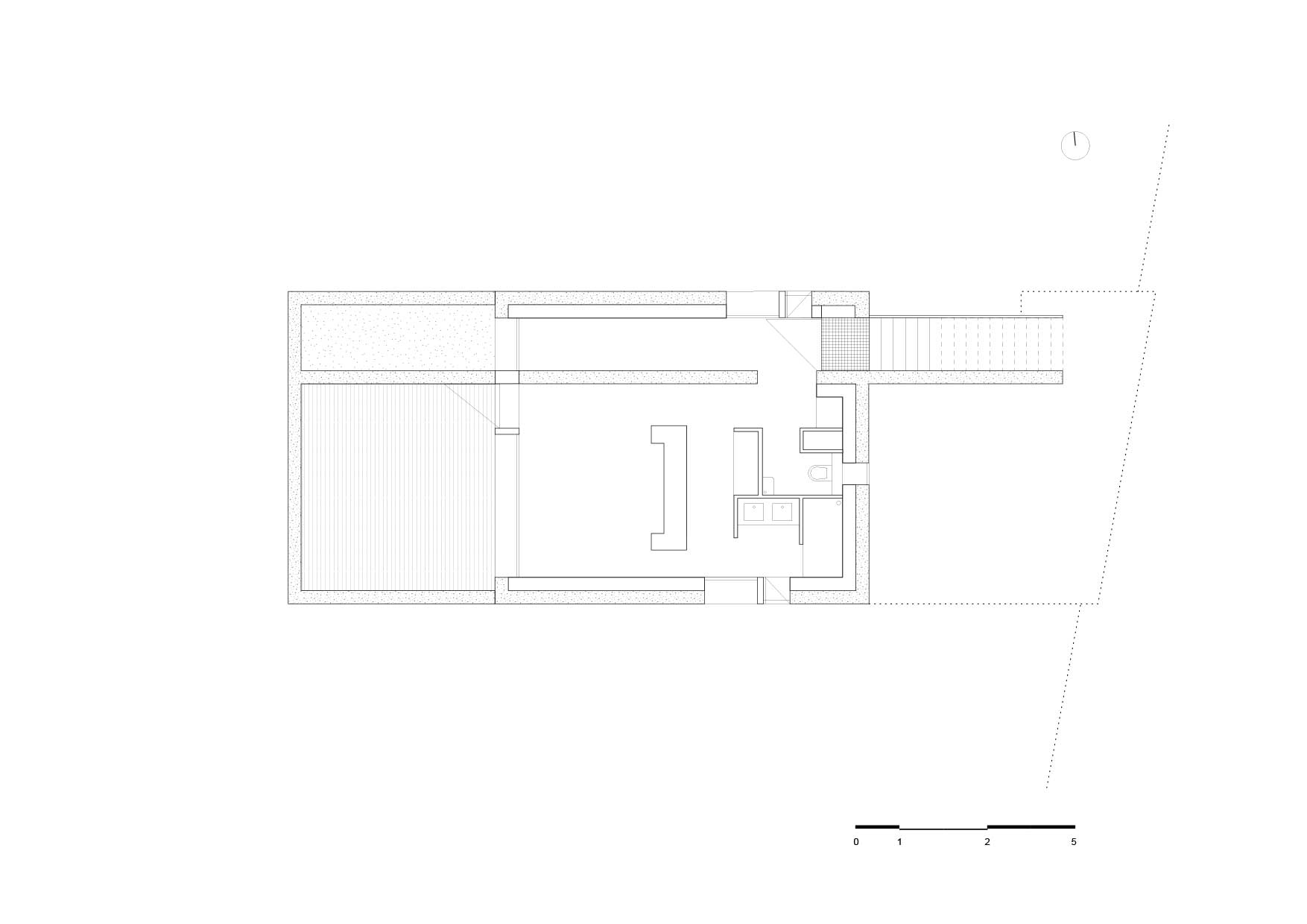
Von der Straße, an der der Altbau steht, ist das neue Wohnhaus nicht zu sehen. Lediglich eine kleine Brücke führt von dort auf das Dach des Neubaus, das als Parkfläche dient. Über die Hälfte des Volumens wurde unterirdisch in den Hang gebaut. Der sichtbare Teil des dreigeschossigen Baukörpers bildet großformatige Stufen und folgt den Gesetzmäßigkeiten eines Terrassenhauses. Großzügige Verglasungen ermöglichen weite Ausblicke in das westlich gelegene Tal. Auf der nördlichen Längsseite hat das robuste Haus nur wenige Öffnungen. Die Eichenholzfenster auf der Südseite bestehen jeweils aus einem verglasten Teil, der sich öffnen lässt, sowie einem Lüftungsflügel.
Zum oben gelegenen Eingangsgeschoss führt eine einläufige Außentreppe, die sich im Innenraum fortsetzt und nacheinander alle drei Etagen erschließt. Im obersten Geschoss befindet sich der Hauptschlafraum, auf der mittleren Ebene das Kinderzimmer und im Erdgeschoss der Wohnbereich mit ebenerdigem Zugang zum Garten mit Pool.
Tectoniques Architectes sind eigentlich für Trockenbautechnik und ihre Arbeit mit Holz bekannt. Obwohl dem Besitzer ein Betonhaus vorschwebte, wünschte er sich ausdrücklich eine Zusammenarbeit mit den Architekten, die die Herausforderung annahmen und mit dem Material experimentierten.
Die Außenwände sind einschalig in Ortbeton ausgeführt, die Wärmedämmung befindet sich auf der Innenseite. Der gesamte Wandaufbau kommt auf eine Stärke von fast 60 cm; die tragende Betonschale misst 35 cm. Die Architekten verwenden einen ocker durchgefärbten Weißbeton mit geringerem Sand- und Wasseranteil als bei konventionellem Beton. Die durch manuelles Rütteln entstehenden Unregelmäßigkeiten sind gewollt: In Form von feinen Linien, Farbwechseln und Unterschieden in der Körnigkeit tragen sie bei zu einer lebendigen Oberflächentextur der Fassade und der Sichtbetonwand im Innenraum. Die Farbe des Betons soll den sandig-goldenen Steinen gleichen, die sich in der unmittelbaren Umgebung in den Hügeln der Beaujolais-Weinanbaugebiete finden und ihnen ihren Namen verliehen – Monts d'Or, die goldenen Hügel.
Weitere Informationen:
Ingenieurbüro: Tectoniques Ingénieurs
Landschaftsarchitektur: Sandrine Ligonnet
Fotos: Jérôme Ricollea






















