// Check if the article Layout ?>
In Klammern: Laborgebäude von Schulz und Schulz
Foto: Gustav Willeit
Im Osten Leipzigs liegt der Wissenschaftspark Permoserstraße. Rohrleitungen schlängeln sich oberirdisch um die Gebäude, Tanks und Schornsteine erzählen von der technischen Nutzung der Bauten. Auch das Leibniz-Institut für Troposphärenforschung (TROPOS) hat hier seinen Standort und wurde nun um einen Laborriegel von Schulz und Schulz erweitert.
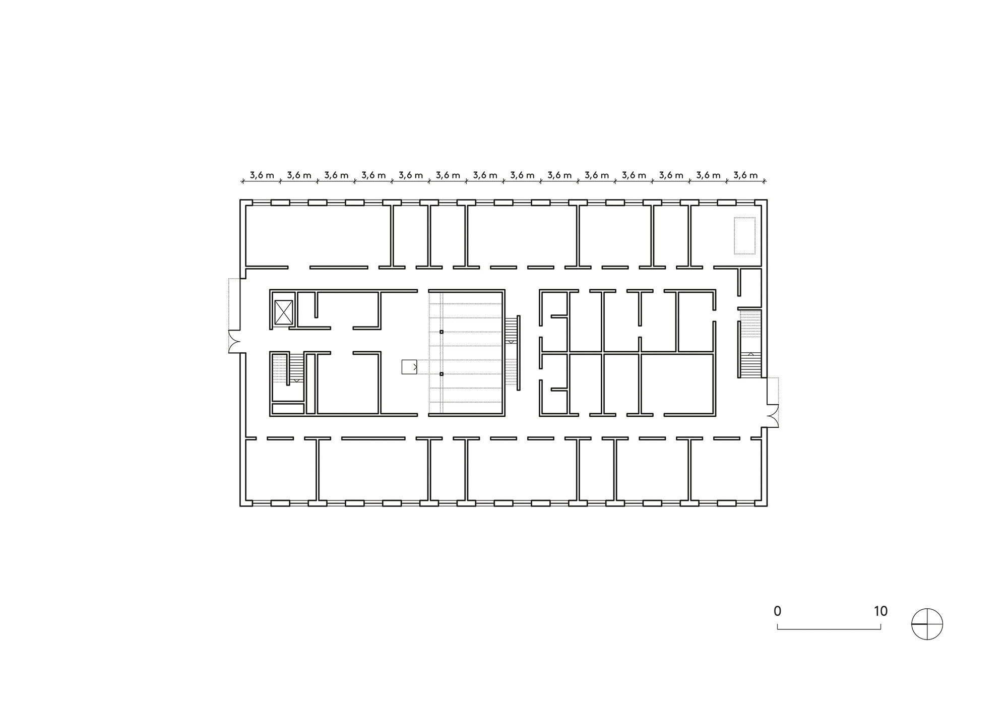
An den Längsseiten des Gebäudes reihen sich die Fenster wie in einem japanischen Kapselhotel aneinander. Laboreinheiten von 3,6 x 7,2 x 3,6 m bilden die konzeptionelle Basis des Gebäudes, was sich auch auf die Fassade und die Konstruktion überträgt. Die vorgefertigten Sandwichplatten, bestehend aus Tragschicht, Dämmung und Fassadenbekleidung, erzeugen ein Raster aus Quadraten. Unterstützt wird dieser Effekt noch von den breiten, etwa 2 cm erhabenen Faschen. Im Gegensatz zur glatt geschalten Sichtbetonoberfläche der Fassadenelemente sind sie sandgestrahlt. Eine weiße Blecheinfassung der Fenster reflektiert bereits das zweite, prägende Fassadenmaterial.
An den Stirnseiten liegen jeweils eine Tür und ein Fenster in der weißen Metallfassade. Diese Geschlossenheit unterstreicht das Konzept der aneinandergereihten Raummodule. Wie eine Klammer legt sich das Metall der Fassaden über die Stirnseiten und das Dach, aus dem eine von Technik dominierte Dachlandschaft wächst. Oben auf den zwei Geschossen mit Laborräumen wurde ein Freiluftlabor eingerichtet, in dem Langzeitstudien durchgeführt und neue Messmethoden getestet werden können.
Blau und weiß, die Farben der Corporate Identity von TROPOS bekleiden den Innenraum. Böden, Treppen und die Decken der langen Flure bilden die Farbtupfer in diesem sehr sachlichen Laborgebäude. Im Herzen des Gebäudes liegt die zweigeschossige Aerosolkammerhalle, in der die Ergebnisse aus den umliegenden Speziallaboren weiterverarbeitet und zusammengeführt werden können.














