// Check if the article Layout ?>
In Licht getaucht: Chalet GRAND-PIC
Foto: ©Félix Michaud
Die Gestaltung des Ferienhauses ist von traditionellen Formen inspiriert. Die Eigentümer des Chalets wünschten sich einen Raum, der die umgebende Natur ins Haus hinein lässt. Im Haus von APPAREIL Architekten, mit Sitz in Montreal, verbindet sich die einfache Formsprache mit einer ausgeklügelten Raumstruktur. Der Außenraum beeinflusste den Entwurf: Ein schmaler Weg führt vom Parkplatz durch den Wald zu den beiden Bauten und wird anschließend zu einem leicht angehobenen Holzsteg.
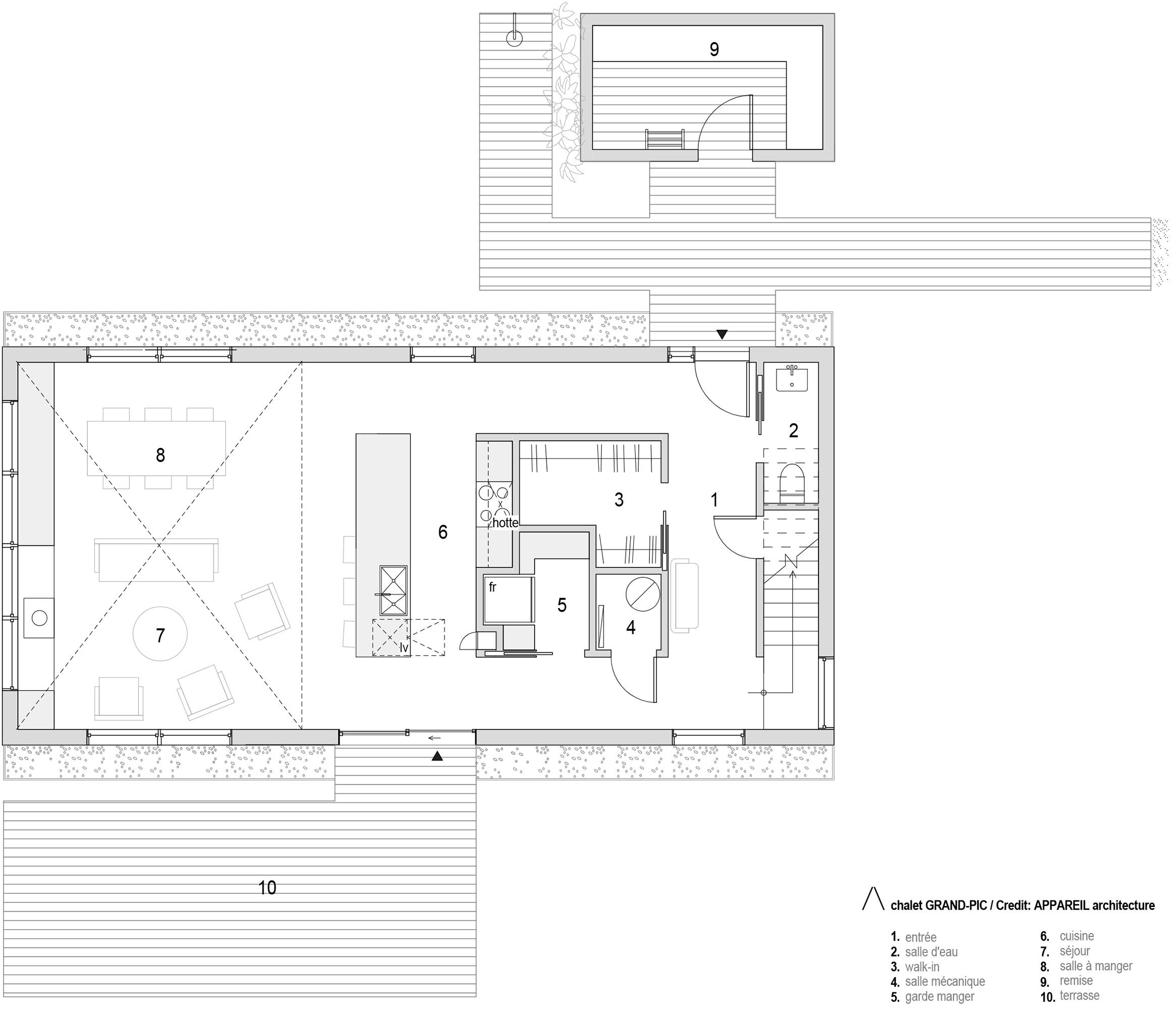
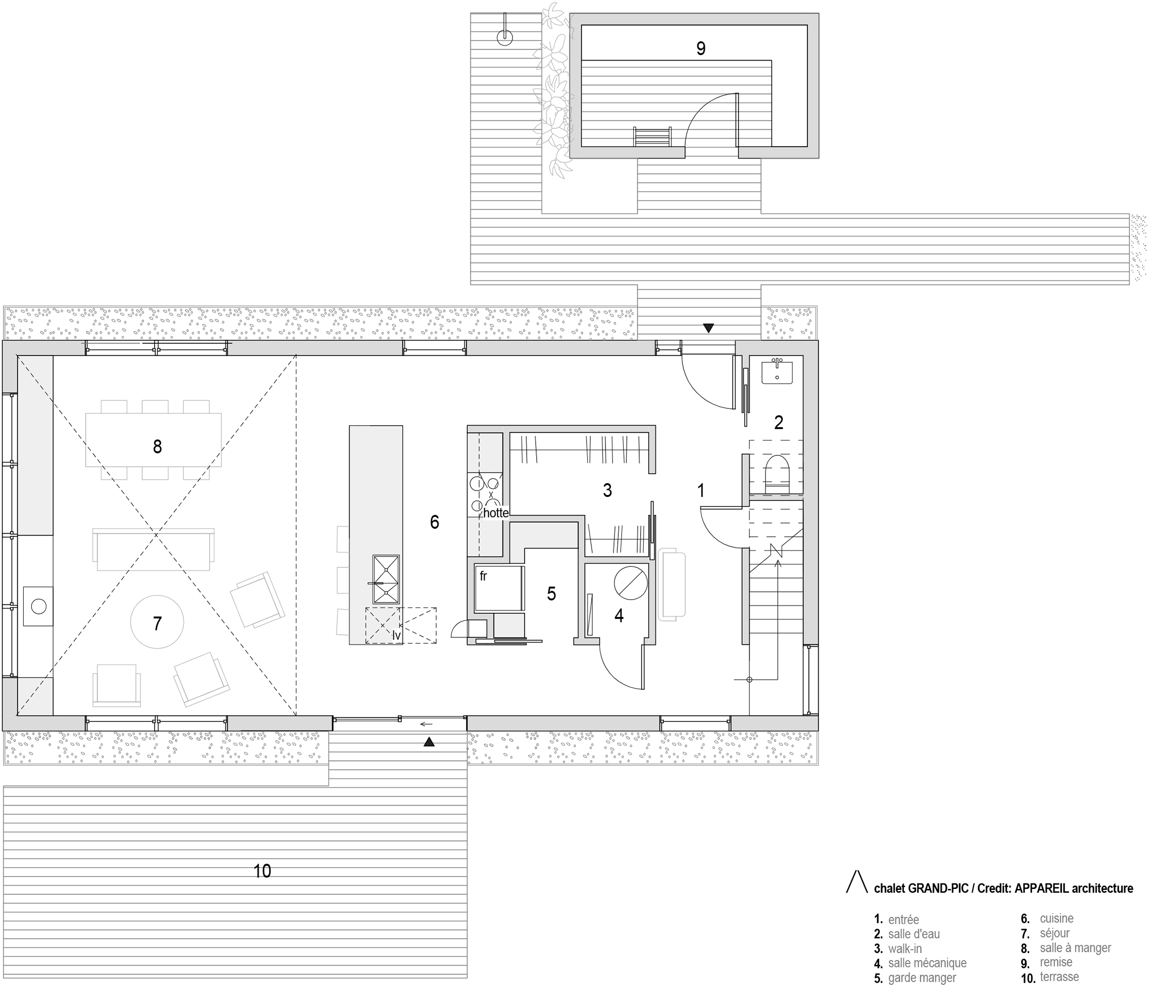
Der Innenraum ist um einen zentralen Kern herum organisiert. Das Erdgeschoss ist möglichst offen gehalten, um die Raumwirkung zu entfalten. Große Fenster im zweigeschossigen Wohnraum lassen gar den Eindruck entstehen, man befinde sich direkt im Wald. Im Obergeschoss befinden sich mehrere kleinere Schlafräume und ein Bad. Im Gegensatz zu den einheitlichen schwarzen Außenfassaden ist das Hausinnere von Licht durchdrungen. Die Innenverkleidung aus hellem Sperrholz ist in ein warmes Licht getaucht, das die Struktur des Holzes deutlich hervortreten lässt.













