// Check if the article Layout ?>
In sich gekehrt: »Wiggly House« bei Mailand
Foto: Andrea Martiradonna
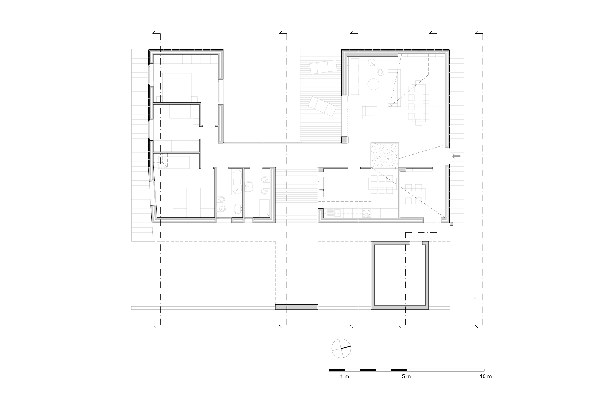
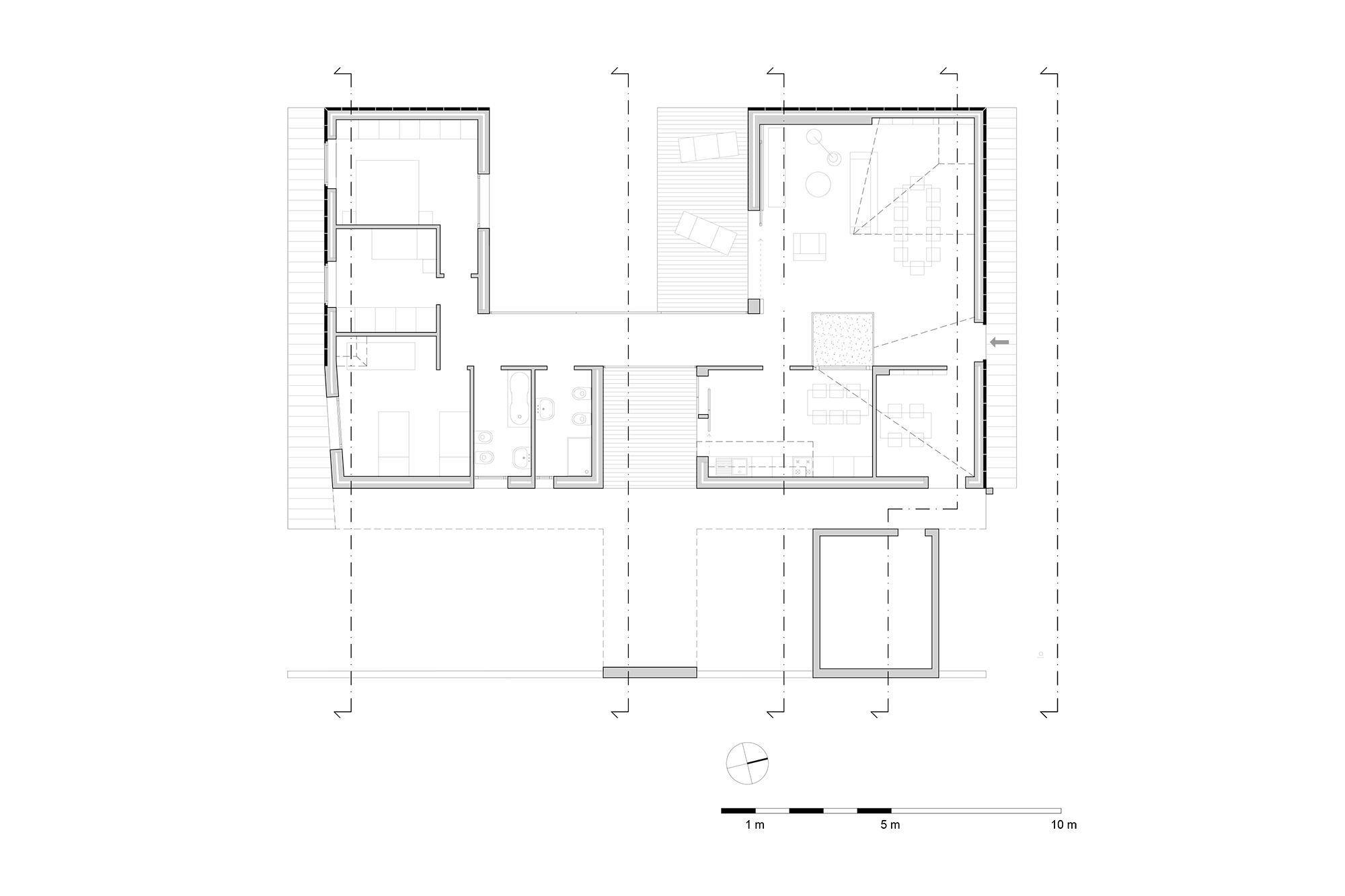
»Wiggly House« legt sich wie eine Art Raster auf das Grundstück und wirkt dabei, mit seinen aneinander gereihten Baukörpern, eher wie eine gebaute Landschaft, als ein Einfamilienhaus. Anstatt einer rigiden Geometrie ergibt sich ein lockeres Gesamtbild. Dabei organisiert sich alles rund um einen zentral positionierten Längsteil, der sich von Nord nach Süd erstreckt und die diversen Anbauten und Innenhöfe zusammenfasst und strukturiert.
Der besondere Grundriss des »Wiggly House« beschäftigt sich mit den neuen Anforderungen an zukünftige Bauten. Konventionelle Wohnformen können auf gesellschaftliche Veränderungen meist nicht reagieren und werden deshalb den flexibleren, adaptiven Konzepten sukzessive weichen müssen.
Die Form wirkt sehr lebendig. Sie ist geprägt durch ein ständiges Auf und Ab der Dachflächen, die in ihrer Neigung und Ausrichtung differieren und je nach Betrachtungswinkel stets neue Gebäudekonturen nachzeichnen. Öffnungen in den nach außen gekehrten Fassaden gibt es kaum. Der Bau orientiert sich vielmehr nach innen und oben und erhält durch diverse Kamine und Lichthöfe neben maximaler natürlicher Belichtung auch seinen unverwechselbaren Charakter.
Konstruktiv betrachtet handelt es sich bei dem »Wiggly House« um einen Betonbau. Die größtenteils graue Hülle besteht aus Granit und schützt vor ungewünschten Einblicken gleichermaßen wie vor extremen Temperaturen. Das Heizsystem wird von einer gekoppelten Solaranlage gespeist. Jeweils entgegengesetzt positionierte Fensteröffnungen sollen eine bestmögliche Belüftung gewährleisten.
Das Einfamilienhaus wird aus nördlicher Richtung betreten. Im mittleren Gebäudeteil befinden sich ein Gang, über den man in sämtliche Innenräume, sowie Küche und Bäder gelangt. Gleich zur Rechten gibt es einen großzügigen Wohnbereich, die Schlafzimmer sind nach Süden orientiert.
Das Innere lebt von der Ausrichtung nach oben. Diese Intention spürt man in allen Bereichen gleichermaßen. Ob beim Oberlicht, das über der Küchenzeile positioniert, gleichzeitig zum kaminartigen Dunstabzug wird, oder beim kleinen Dachfenster, das den Meditationsraum in ein warmes Licht taucht. Im Wohnraum zieht sich der verglaste Innenhof bis zum Boden hinunter und wirkt wie eine Insel, um die sich das alltägliche Leben abspielt.


















